"뛰어난 건축은 단순히 공간을 만드는 것이 아니라, 시간과 기억을 담아내는 그릇이다." - 타다오 안도

탕산 광산의 문화적 변신: 책과 기억이 공존하는 공간
산업유산의 재탄생: 과거와 현재의 대화
붉은 벽돌 굴뚝과 콘크리트 아치형 지붕이 만드는 독특한 실루엣은 이 건물이 지닌 이중적 정체성을 한눈에 보여줍니다. 한때 산업 시설로 기능했던 이 공간은 시유-아크와 아트+젠 건축사사무소의 섬세한 설계를 통해 지역 문화의 중심지로 거듭났습니다. 건축가들은 기존 구조물의 역사적 가치를 존중하면서도 현대적 프로그램에 맞는 공간으로 재해석했습니다.
이 프로젝트는 단순한 물리적 변형을 넘어 장소의 기억과 새로운 문화적 의미를 연결하는 다리 역할을 합니다. 오래된 산업 시설의 거친 질감과 현대적 서점의 정제된 디자인 언어가 만나 독특한 공간적 경험을 창출합니다.
공간의 흐름: 중첩된 경험의 레이어
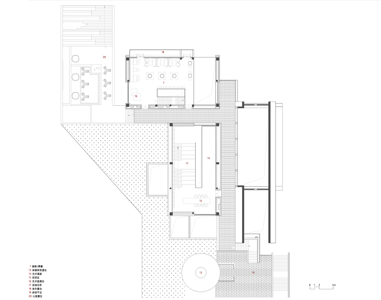
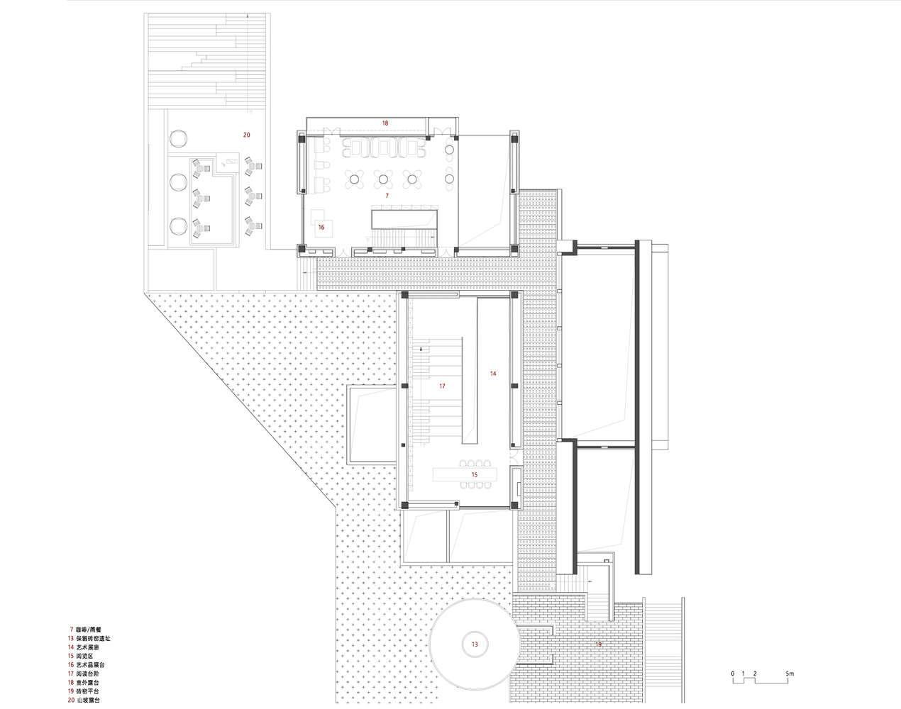
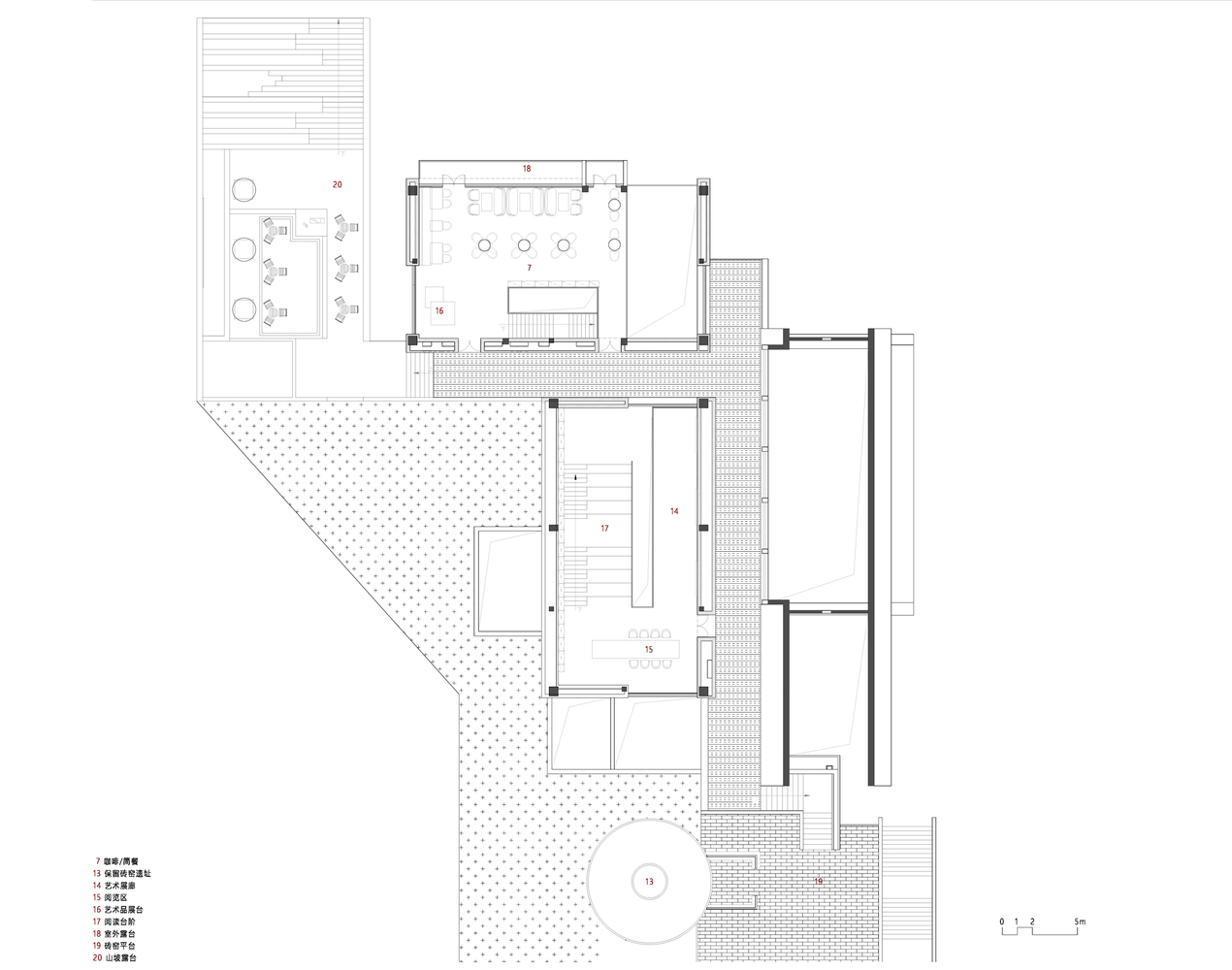
방문객은 넓은 콘크리트 진입 광장을 지나며 건물을 향한 기대감을 키워갑니다. 붉은 벽돌 파사드의 다공성 패턴이 만드는 빛과 그림자의 놀이는 내부 공간에 대한 호기심을 자극합니다. 입구를 지나면 2층 높이의 개방된 중앙 공간이 방문객을 맞이하며, 이곳에서 건물 전체의 다양한 기능 영역을 한눈에 파악할 수 있습니다.
내부 공간은 서가, 열람 공간, 전시 영역, 카페로 자연스럽게 구분되면서도 시각적으로 연결되어 있습니다. 특히 메인 홀의 아치형 천장은 공간에 특별한 리듬감을 부여하며, 다양한 높이와 깊이를 통해 풍부한 공간감을 경험하게 합니다. 2층 갤러리는 메쉬 난간을 통해 아래층과 시각적으로 소통하면서도 보다 조용한 분위기를 제공합니다.
건축가들은 동선 계획에 특별한 주의를 기울여, 책을 둘러보는 과정이 하나의 여정처럼 느껴지도록 했습니다. 서점 내부를 걷다 보면 책장과 전시 공간, 휴식 영역이 리듬감 있게 전개되며, 때로는 넓게 트인 공간에서 전체를 조망하고, 때로는 아늑한 구석에서 책에 몰입할 수 있습니다.
빛과 그림자의 교향곡
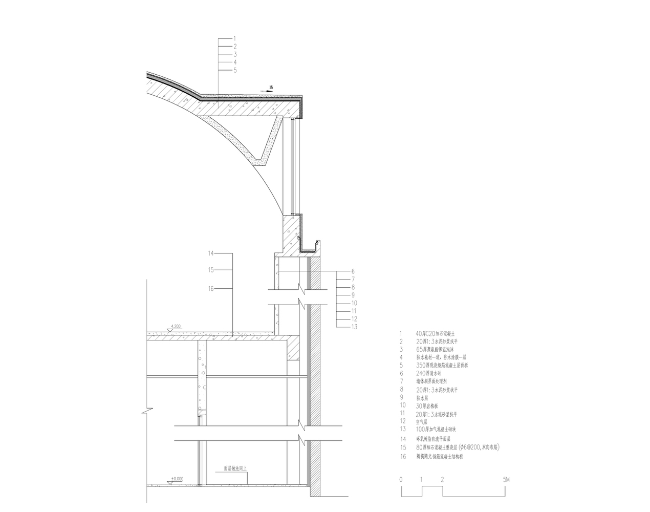
이 프로젝트에서 가장 두드러진 특징 중 하나는 빛의 섬세한 활용입니다. 아치형 천장의 측면 개구부와 전략적으로 배치된 천창은 하루 종일 변화하는 자연광을 내부로 끌어들입니다. 이 빛은 콘크리트 벽면과 바닥에 다양한 패턴을 그리며, 건물 내부에 시간의 흐름을 시각화합니다.
특히 서가에 설치된 간접 조명은 책들을 부각시키는 동시에 따뜻한 분위기를 조성합니다. 해가 저물면 건물 전체는 마치 거대한 랜턴처럼 변모하여 주변 경관 속에서 문화적 신호탑 역할을 합니다. 이러한 빛의 연출은 건물의 구조적 특성과 공간적 깊이를 강조하며, 방문객에게 잊지 못할 시각적 경험을 선사합니다.
재료의 정직함: 과거와 현재의 대화
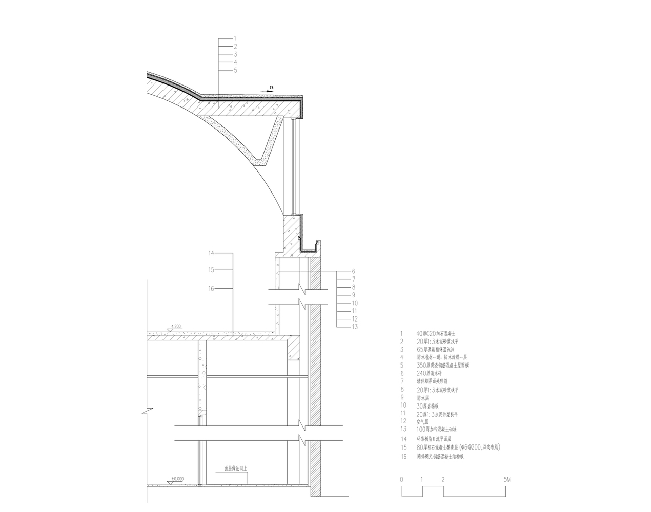
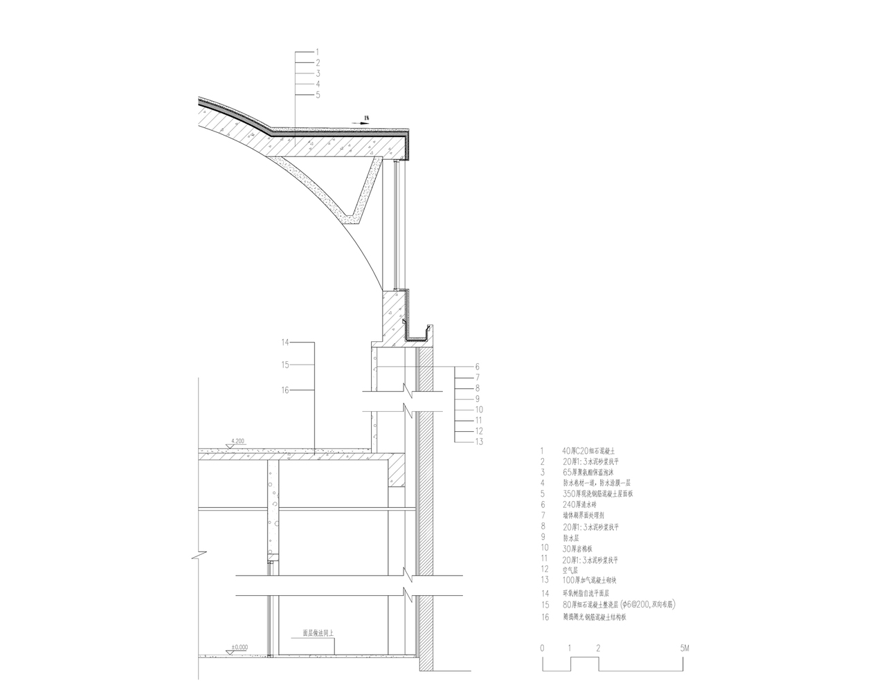
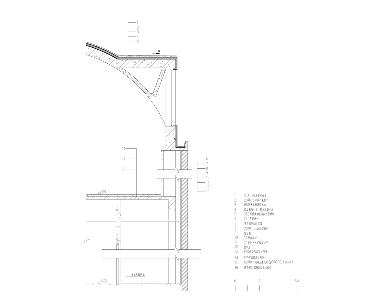
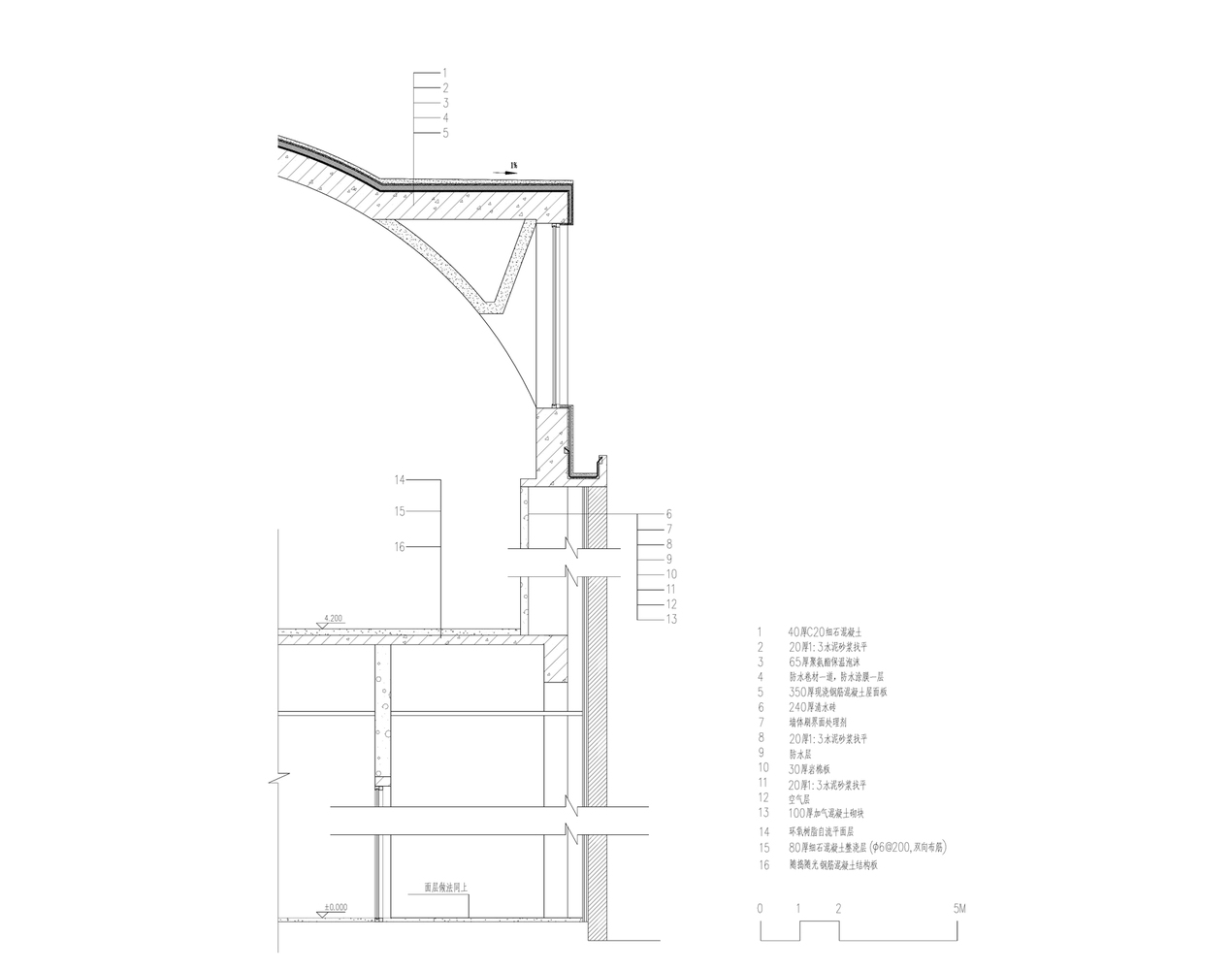
건축가들은 원래 건물의 산업적 특성을 강조하는 재료 선택에 특별한 주의를 기울였습니다. 노출 콘크리트 아치와 붉은 벽돌 벽면은 건물의 역사적 정체성을 상기시키며, 목재 서가와 가구는 따뜻함을 더합니다. 이러한 재료의 대비는 과거와 현재가 끊임없이 대화하는 듯한 분위기를 조성합니다.
특히 주목할 만한 것은 벽돌 패턴을 활용한 다공성 파사드로, 자연 환기와 빛 조절의 기능적 역할을 수행하면서도 건물에 독특한 시각적 정체성을 부여합니다. 건축가들은 재료 본연의 물성을 존중하는 접근법을 취하며, 인위적인 마감재보다는 시간이 흐름에 따라 자연스럽게 변화하고 숙성되는 소재를 선호했습니다.
프로그램의 다양성: 복합 문화 공간으로의 확장
이 서점은 단순한 도서 판매 공간을 넘어 다양한 문화적 경험을 제공하는 복합 공간으로 설계되었습니다. 주요 서가 공간 외에도 아이들을 위한 독서 공간, 소규모 전시 영역, 다목적 이벤트 공간이 유기적으로 연결되어 있습니다. 카페테리아는 방문객들이 편안하게 책을 즐길 수 있는 휴식 공간을 제공하며, 옥상 테라스는 주변 경관을 조망할 수 있는 열린 공간으로 기능합니다.
이러한 다양한 프로그램 구성은 서점을 단순한 상업 공간이 아닌 지역 문화의 중심지로 탈바꿈시키며, 다양한 연령과 관심사를 가진 방문객들에게 풍부한 경험을 제공합니다. 책을 중심으로 한 여러 활동이 자연스럽게 어우러지며, 문화적 교류와 소통의 장을 형성합니다.
지속가능성: 미래를 향한 책임
이 프로젝트는 기존 산업 구조물의 재활용이라는 측면에서 이미 지속가능한 접근을 보여주지만, 건축가들은 여기에 더해 다양한 환경 친화적 전략을 적용했습니다. 벽돌 파사드는 자연 환기와 일조량 조절에 기여하며, 고효율 단열재와 에너지 절약형 설비 시스템이 에너지 소비를 최소화합니다.
옥상 정원과 건물 주변의 조경은 도시 열섬 현상을 완화하고 생물다양성을 증진하는 동시에, 방문객들에게 자연과 교감할 수 있는 기회를 제공합니다. 또한 빗물 수집 시스템은 조경 용수로 활용되어 수자원 관리에 기여합니다.
이러한 지속가능한 설계 접근법은 단순히 환경적 영향을 줄이는 것을 넘어, 건축이 어떻게 생태적 책임을 다하면서도 문화적, 사회적 가치를 창출할 수 있는지 보여줍니다.
맺음말: 기억과 미래가 공존하는 문화적 랜드마크
탕산 광산 서점은 산업 유산의 보존과 현대적 재해석의 균형을 성공적으로 보여주는 사례입니다. 이 프로젝트는 단순한 건축적 변형을 넘어 지역 사회에 새로운 문화적 구심점을 제공하며, 과거의 기억과 미래의 가능성을 연결하는 다리 역할을 합니다.
건축가들의 섬세한 접근과 깊은 이해는 역사적 맥락을 존중하면서도 현대적 필요에 부응하는 공간을 창출해냈습니다. 이 서점은 건축이 어떻게 문화적 재생과 지역 정체성 강화에 기여할 수 있는지 보여주는 영감적인 사례로, 다른 산업 유산 재활용 프로젝트에도 중요한 참고점이 될 것입니다.
방문객들은 이곳에서 책을 읽고, 사색하고, 소통하면서 자연스럽게 장소의 역사와 교감하게 됩니다. 그리고 이런 경험을 통해 건축이 단순한 물리적 공간 이상의 의미를 가질 수 있음을 깨닫게 됩니다. 탕산 광산 서점은 과거와 현재, 그리고 미래가 한데 어우러진 살아있는 문화적 유산으로서 우리에게 건축의 시간을 넘어선 가치를 일깨웁니다.
Write by Claude & Jean Browwn






















SEU-ARCH + art+zen architects-Tangshan Mine Bookstore of Librairie Avant-grade
A new addition to a 50-year-old corporate office within a century old educational campus in Belagavi posed a unique design challenge: to expand the existing structure without compromising its integrity, disrupting its daily operations, or overshadowing its historical significance.
Though architecturally unremarkable, the original two storey building held deep institutional value. It had already been retrofitted and was in constant use, making any intrusive structural intervention unfeasible. The expansion needed to respond sensitively to three distinct contexts — its location on a major city road, its position as a frontage to the historic campus, and its edge along the sports ground.
The solution was a minimalist yet strategic intervention: a new structure that floats above the old, supported by just eight cylindrical RCC columns that avoid existing activities below. This hovering volume, framed by two full-floor-height red trusses, forms an openplan office of 1,000 sqm, visually light and spatially efficient. A vertical circulation core connects the addition to the ground, forming an L-shaped profile that creates a striking triple-height entry portal aligned with a central tree-lined avenue. This not only marks a threshold into the campus but also frames heritage structures within.
Wrapped in a continuous verandah inspired by colonial architecture, the new office engages with its surroundings while mitigating the climate. The verandah serves as a social space and climatic buffer, shielding the interiors from sun and rain. Operable aluminium fins and expanded mesh control light and views, while sliding glass doors allow seamless access to the outdoors. Inside, a neutral palette, vibrant accents, and indoor plants create a tranquil, daylit workspace.
The plan is zoned into three sections: an entrance lobby with the chairman's chambers, a central block of private offices and meeting rooms, and a rear section of open workstations overlooking the city and sports field. Exposed roof trusses and a clerestory skylight define a central circulation spine.
Connecting old and new is a glass elevator overlooking the sports field, offering a moment of pause as one transitions between buildings. The terrace of the old office has been reimagined as an interstitial space — partially open, partially sheltered by the new structure — accessible via a sculptural circular staircase.
What appears at first as a simple linear volume is, in fact, a layered response to multiple contextual, functional, and climatic demands. The new addition presents a calm, screened façade to the city, serves as a welcoming portal to the campus, and becomes a subtle yet visible edge to the sports field. Through thoughtful spatial negotiation and quiet clarity, the intervention offers the institution a renewed presence while honouring its legacy.
from archdaily