"건축은 삶을 위한 틀이 아니라, 삶 그 자체가 되어야 한다." - 루이스 칸(Louis Kahn)

![]() |
![]() |
![]() |
전통과 현대의 조화: 캘리포니아 농가주택의 새로운 해석 Fergus Garber Architects-Rural Reimagined House
자연 속에서 찾은 소박한 아름다움
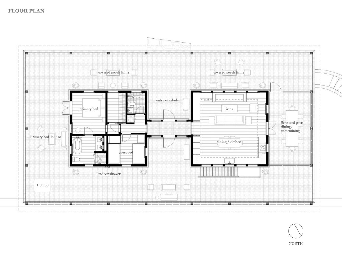
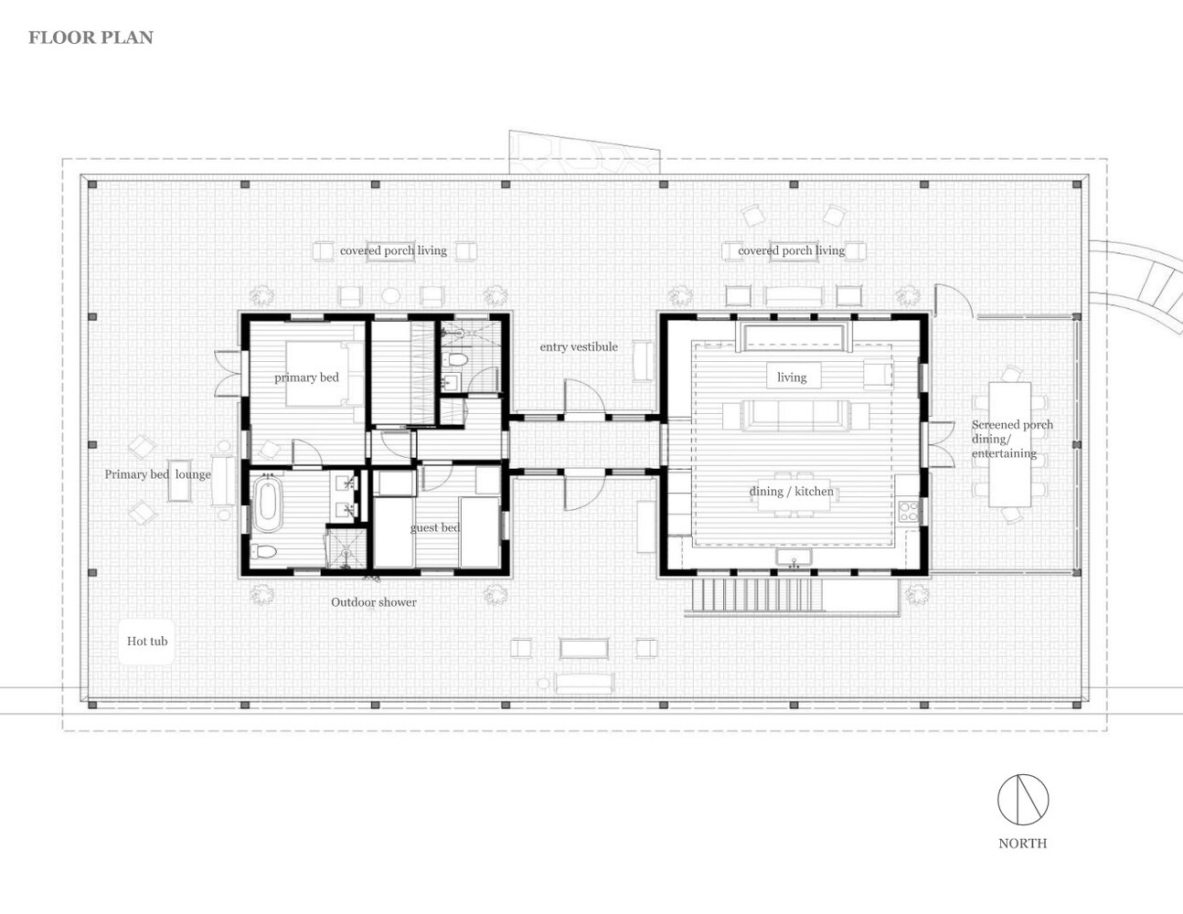
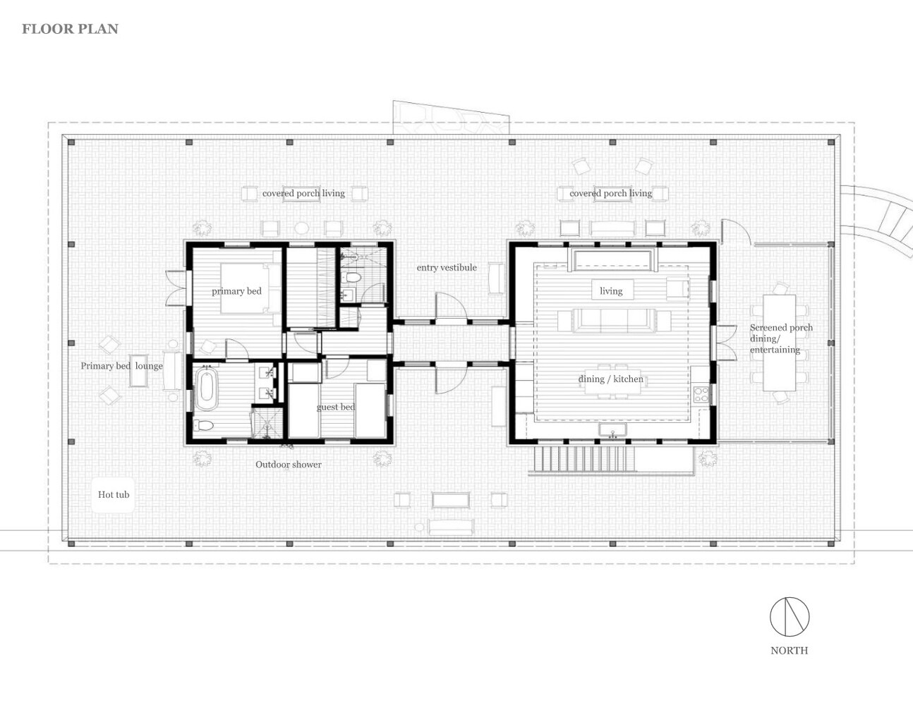
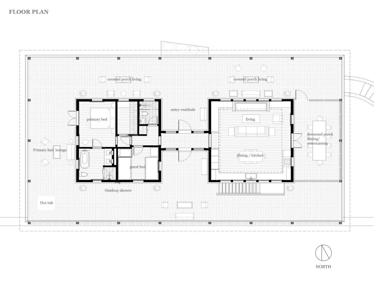
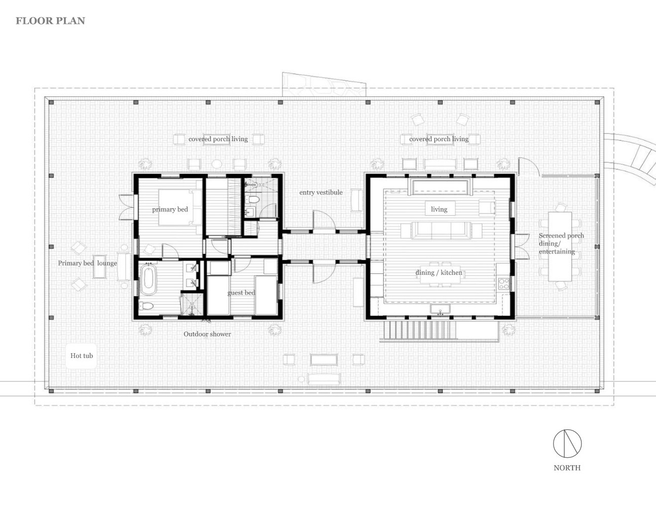
햇살 가득한 북부 캘리포니아의 관목 지대에 자리한 이 새로운 농가주택은 나파와 소노마 밸리 사이, 13에이커 농지 위에 조용히 들어서 있다. 퍼거스 가버 아키텍츠(Fergus Garber Architects)가 설계한 이 1,200평방피트 규모의 단층 주택은 그 크기를 훨씬 넘어서는 공간감을 선사한다. 팰로 알토에서 은퇴한 부부는 더 작은 집과 여유로운 삶을 꿈꾸며 이곳을 선택했다. 이들의 큰아들 가족이 거주하는 100년 된 2층 농가 건너편, 두 언덕 사이의 완만한 땅에 새로운 보금자리가 완성되었다.
과거를 품은 현재의 모습
외관은 기존 농지의 시골 정취와 유서 깊은 농가의 건축적 전통을 고스란히 이어받았다. 깔끔한 흰색 혀촉 사이딩, 단정한 기둥들, 그리고 스탠딩 심 금속지붕이 건물의 품격을 드러낸다. 건물을 감싸는 덮개 베란다는 충분한 햇빛 차단막 역할을 하면서도, 사방에 설치된 높다란 프렌치 도어와 트랜섬 창을 통해 자연광과 시원한 바람을 실내로 끌어들인다. 바구니짜기 패턴으로 깔린 벽돌 바닥은 베란다에서 현관으로 이어지며, 실내외 공간의 경계를 자연스럽게 허문다.
삶의 리듬을 담은 공간 구성
내부는 좁은 현관 홀을 중심으로 공용 공간과 사적 공간이 유기적으로 연결된다. 거실, 식당, 주방과 야외 식사를 위한 스크린 베란다가 공용 영역을 이루고, 주침실과 욕실, 드레스룸, 그리고 아담한 규모의 게스트룸이 사적인 휴식 공간을 완성한다. 각 공간은 독립적이면서도 전체적인 흐름 속에서 조화를 이룬다.
캘리포니아의 혼이 깃든 소재와 디테일
캘리포니아 고유수종인 더글라스 퍼를 수작업으로 다듬어 만든 건축 요소들이 집 전체에 따스함과 통일감을 불어넣는다. 수직결 목재판은 벽면 패널링과 맞춤 제작 캐비닛, 책장과 수납장, 가전제품 패널까지 아우르며 공간 곳곳에 정성스러운 손길을 전한다. 거실의 조명 선반과 집 전체를 둘러싸는 액자걸이 몰딩 같은 섬세한 디테일들이 서부 해안 지역 전통 인테리어의 진수를 보여준다.
이 농가주택은 단순히 작은 집이 아니다. 자연과 조화를 이루며 살아가려는 현대인의 꿈을 구현한 공간이자, 전통적 가치와 현대적 편의가 만나는 지점에서 탄생한 건축적 성취작이다.
건축가: 퍼거스 가버 아키텍츠(Fergus Garber Architects)
위치: 캘리포니아 북부, 나파-소노마 밸리 사이
면적: 1,200평방피트 (약 36평)
Write by Claude & Jean Browwn


























Designed to embrace the sunny Northern California chaparral landscape, a newly constructed farmhouse between the Napa and Sonoma Valleys harkens back to the region's roots. Nestled between two hills on 13 acres of farmland stands a cozy, multifunctional single-story ADU that lives larger than its actual 1,200 square foot footprint. Its owners, a retired couple from Palo Alto, were yearning for a smaller home and a slower pace when they decided to build on a rolling plot of land where their eldest son and his family inhabited a century-old two-story farmhouse.
Outside, the new home's exterior respects both the rural character of the property and the existing historic farmhouse located on the other side of a screen of broad heritage oak trees. Like its architectural predecessor, it features crisp white tongue and v-groove siding, handsome columns, and a standing seam metal roof. Its wrap around covered porch provides ample sun protection but also light and ventilation from breezes that flow through towering French doors and transom-topped sash windows on all four sides of the structure. Laid in a basketweave pattern, the porch's brick floor continues across the threshold into the entry hall to seamlessly merge the outdoor and indoor spaces.
Inside, the thoughtful floor plan connects the public gathering areas and the private bedrooms through a narrow entry hall. The public areas include the great room, dining room, and kitchen, as well as a screened porch for al fresco entertaining. The private area includes a primary bedroom with a bathroom and walk-in closet, and an intimately scaled guest suite.
Architectural elements from hand hewn from Douglas fir, a native California tree and a hallmark of historic West Coast interiors, imbue warmth and cohesion. The vertical-grain boards comprise the wall paneling, custom cabinetry, built-ins and bookshelves, appliance panels, and closets, among other bespoke details, such as the light shelf in the living area and the picture rail that wraps the interior of the home.
from archdaily


