"건축은 자연의 일부가 되어야 한다. 자연을 정복하는 것이 아니라 자연과 대화하는 것이다." - 알바 알토(Alvar Aalto)

![]() |
![]() |
![]() |
자연이 이끄는 건축: 노르웨이 피오르드의 조립식 휴양주택 Office Inainn models prefabricated Norwegian house on slate
지형과의 협상
오피스 이나인이 설계한 18-07 휴양주택은 노르웨이 서해안 뫼레 오그 롬스달 지역 발달 계곡의 극적인 풍경 속에서 조립식 건축의 새로운 가능성을 제시한다. 이 드라마틱한 경관을 만끽하고자 수년간 부지를 찾아다닌 건축주를 위해, 올레순 기반의 건축 스튜디오는 풍경을 압도하기보다는 "자연이 주도하는" 주택을 만들라는 명확한 지침을 받았다.
"이 주택은 가파른 바위 경사면을 따라 피오르드 위 높은 곳에 자리잡고 있으며, 이곳에서 건축은 언제나 지형과의 협상이다"라고 스튜디오 창립자 막시밀리안 사비츠키는 설명한다. 이러한 철학은 프로젝트 전반을 관통한다. 팀은 처음부터 가파른 바위 지형을 평평하게 만들지 않기로 결정했다. 지형을 재구성하는 대신 그 특성을 보존한 것이다.
18-07 휴양주택의 수평적 형태는 현지 슬레이트의 "층위, 변화, 그리고 균열"에서 직접적 영감을 얻었다. 부지를 압도하기보다는 섬세한 형태, 현지 재료, 그리고 하나의 지침 원칙을 통해 부지에 응답한다. 바로 풍경이 길을 이끌도록 하는 것이다.
조립식 모듈의 건축적 구현
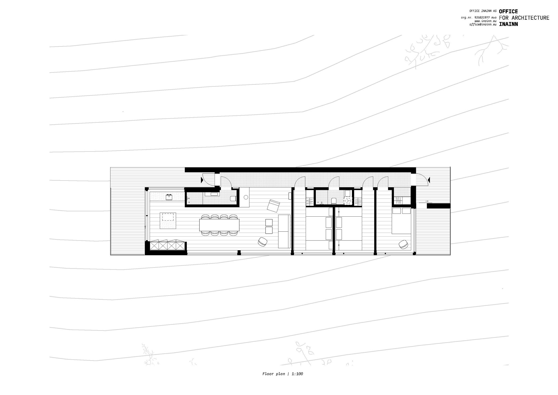
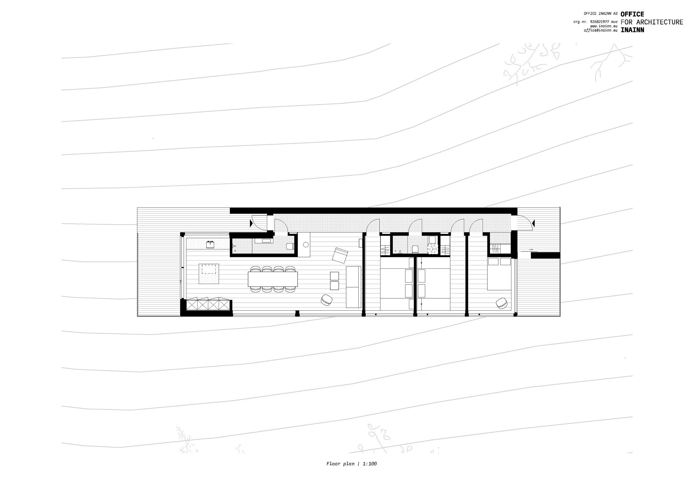
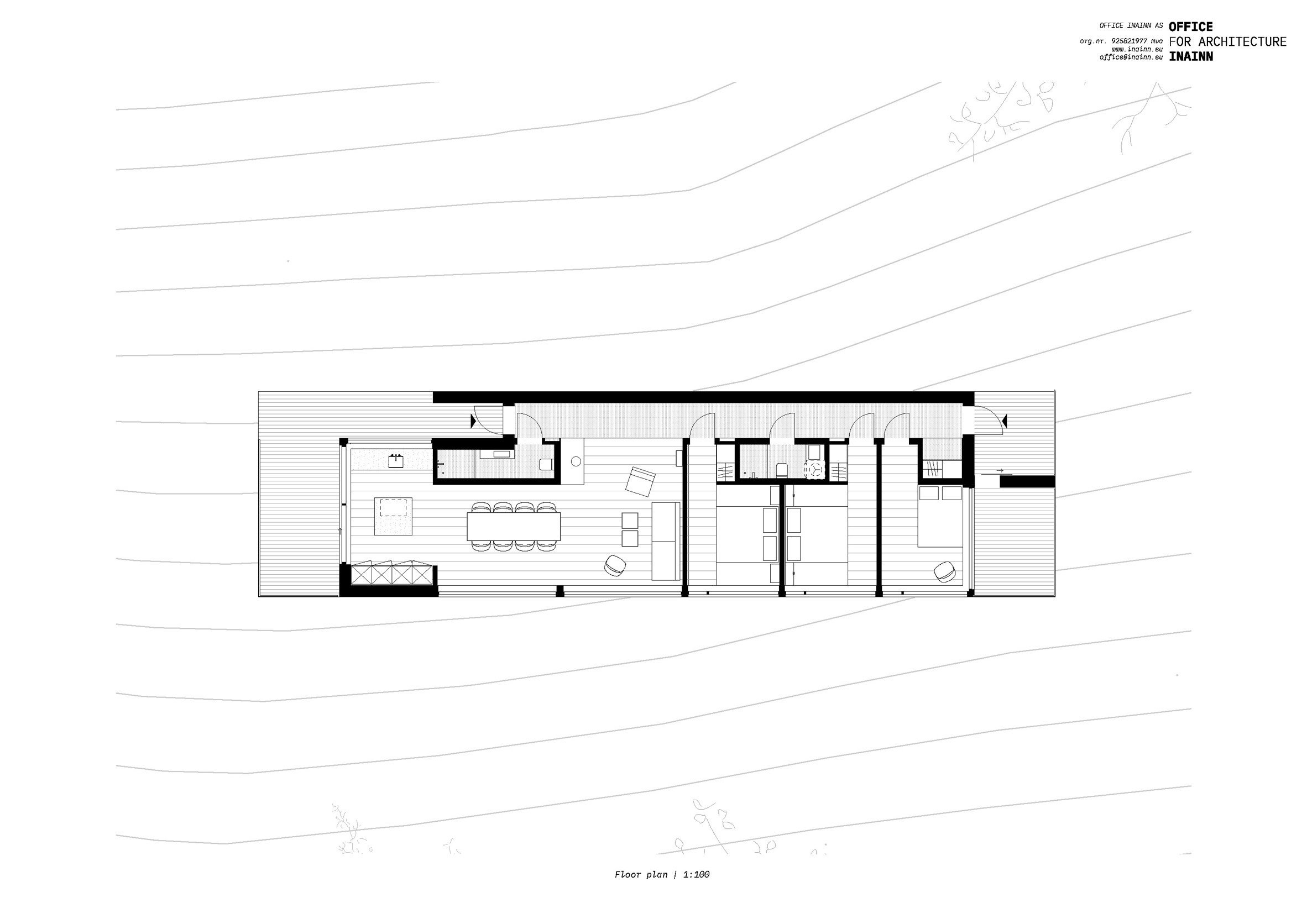
이 127제곱미터 규모의 구조는 조립식 시스템을 통해 건설되었다. 이를 통해 프로젝트의 탄소 발자국을 최소화하고 현장에서 중장비 사용을 피할 수 있었다. 주택의 평면은 콘크리트 기단 위에 놓인 두 개의 직사각형 모듈을 기반으로 하며, 기단은 언덕의 바위 경사면에서 들어올려져 있다.
미묘하게 위치를 달리한 두 개의 볼륨이 경사면을 따라가며, 높이의 자연스러운 변화를 만들어내고 빛을 이끌어 들인다. 이로써 추가적인 벽의 필요성을 없애고, 방들이 기하학 자체에서 생겨나도록 했다. 결과적으로 지어진 것이 아닌 자라난 듯한 느낌의 구조가 형성된다.
검게 그을린 목재 외장은 건물이 인근 숲과 자연스럽게 어우러지도록 돕는다. 방문자들은 암석 노두와 건물 사이의 좁은 길을 따라 주택에 접근하며, 경사면의 윤곽을 따라 길처럼 이어지는 높고 선형적인 복도로 들어선다.
현지성과 공간 경험
복도는 거실, 주방, 식당, 침실을 포함한 주택의 메인 공간으로 열린다. 거실과 침실에서는 피오르드의 파노라마 조망을 감상할 수 있다. 내부에서는 주변 환경을 참조하는 색상과 재료를 선택했으며, 숲의 녹색 벽과 목재 바닥이 자연과의 연속성을 강조한다.
무엇보다 이 휴양주택은 현지성에 대한 깊은 존중을 보여준다. 디자인 회사 피오르드피에스타에서 현지 조달한 가구와 인근 마을 제조업체들이 생산한 액세서리들이 배치되어 있다. 모든 빌트인 목공, 문, 그리고 사다리는 현지 장인들이 손으로 제작했으며 이 프로젝트를 위해 특별히 설계되었다. 이는 단순한 지역 경제 지원을 넘어, 땅과 사람, 그리고 건축이 어우러지는 진정한 장소성의 구현이라 할 수 있다.
Write by Claude & Jean Browwn
















Architecture studio Office Inainn drew on the layered composition of slate for the stacked form of the prefabricated 18-07 Holiday Home on Norway's western coast.
The house is designed for a client who spent years searching for a site where they could enjoy the dramatic landscape of Valdall, a valley in Møre og Romsdal county.
Ålesund based Office Inainn's brief was to create a house that would "let nature lead", rather than dominating this landscape.
The horizontal form of 18-07 Holiday Home references local slate and "its layers, shifts, and fractures", said studio founder Maksymilian Sawicki.
"The home is perched high above a fjord on a steep, rocky slope, where building is always a negotiation with the terrain," explained Office Inainn.
"Rather than imposing on the site, the project responds to it through subtle form, local materials, and a guiding principle: to let the landscape lead the way."
This 127-metre-square structure of 18-07 Holiday Home was built using a prefabricated system. This allowed Office Inainn to minimise the project's carbon footprint and avoid the use of heavy machinery on site.
Its plan is based on two rectangular modules on concrete plinth, raised off the hill's rocky incline. Blackened timber cladding helps the building blend in with nearby forests.
"From the start, the team chose not to level the steep, rocky terrain preserving its character instead of reshaping it," said the studio.
"This decision defined the entire project. Two subtly shifted volumes follow the slope, creating natural variations in height, guiding light and eliminating the need for added walls. Rooms emerge from the geometry itself, forming a structure that feels grown rather than built."
Visitors approach the house along a narrow path between outcrops and the building, and enter a tall, linear corridor that follows the contour of the slope like a pathway.
This opens up into the main house, which includes a living area, kitchen, dining space, and bedrooms. The living area and bedrooms include panoramic views of the fjord.
Inside, Office Inainn chose colours and materials that would reference the surrounding environment, with forest green walls and timber floors.
The holiday home incorporates locally sourced furniture from design firm Fjordfiesta and accessories produced by manufacturers in nearby villages. All the built in carpentry, doors, and ladders were handmade by local craftsmen and designed specifically for the project.
from dezeen


