Architecture is the learned game, correct and magnificent, of forms assembled in the light.
건축은 빛 아래에서 빚어지는 덩어리들의 현명하고 올바르며 장엄한 유희다. — Le Corbusier

![]() |
![]() |
![]() |
비움의 미학: 빛으로 빚어낸 재생의 공간
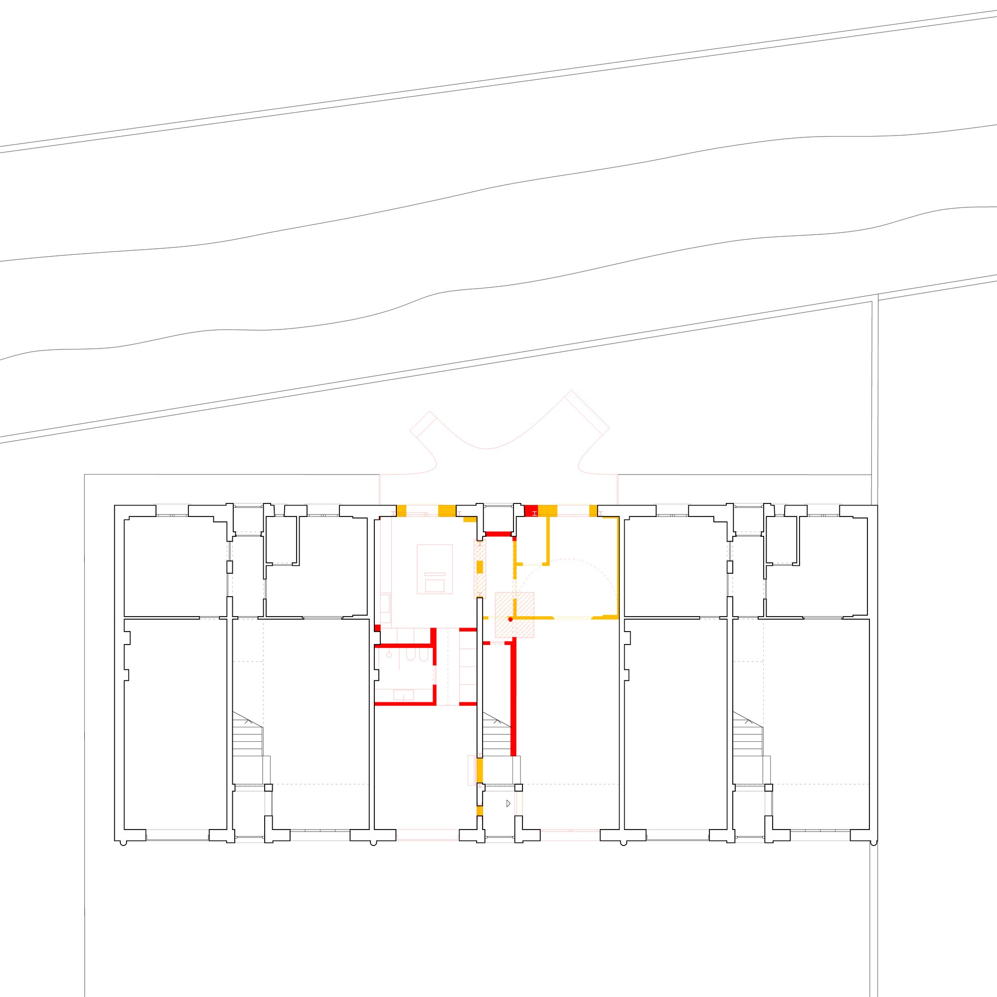
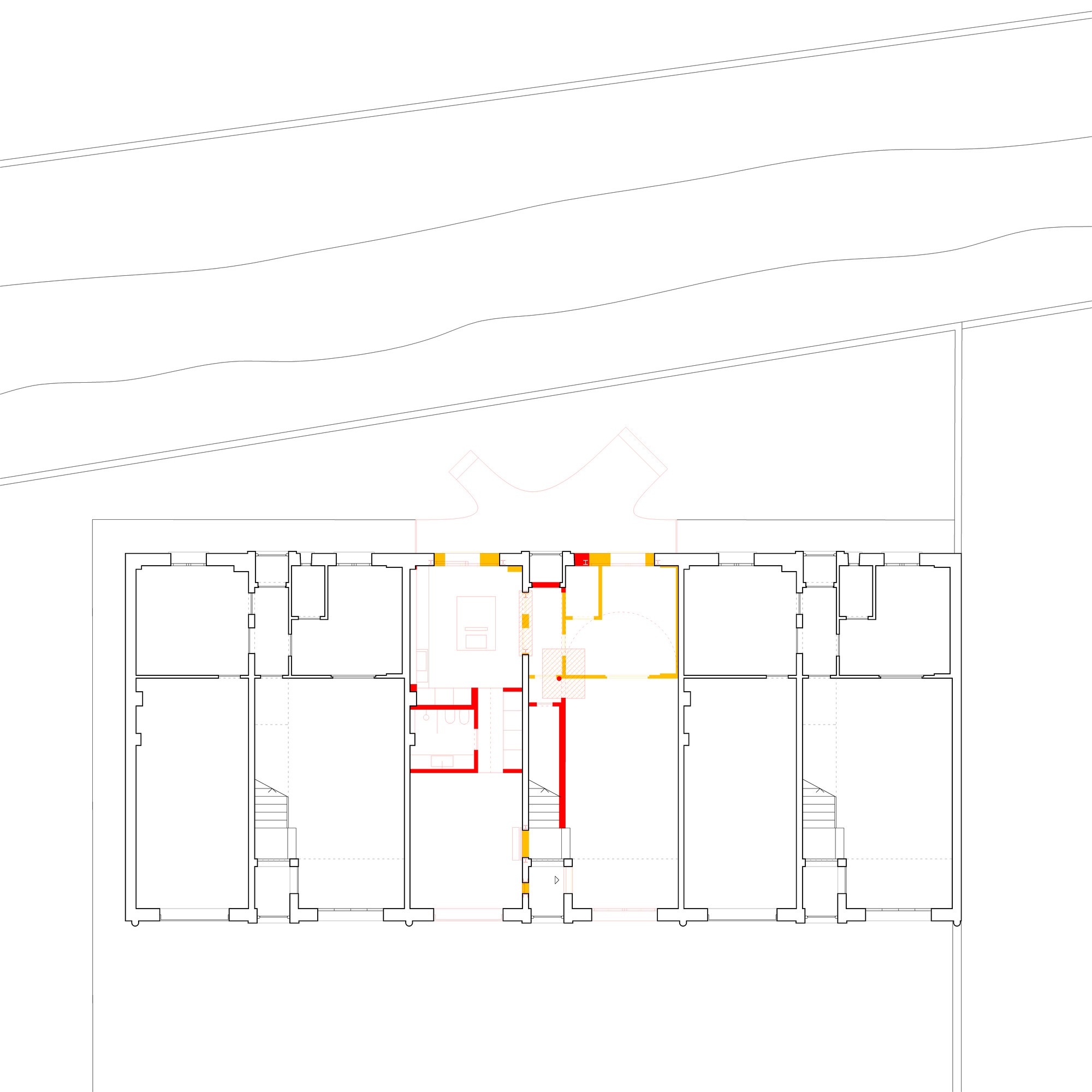
밀라노 남부, 도시의 가장자리에 위치한 **Casa LL**은 포스트모던 시대의 오피스 건물을 개인 주거 공간으로 탈바꿈시킨 재생 프로젝트입니다. 이 프로젝트의 핵심은 '빛', 그리고 가공되지 않은 추상적인 '물성'을 통해 건물 내부의 비워진 공간(Void), 즉 채워진 형태 사이의 여백을 새롭게 조형하는 데 있습니다.
기하학적 부피와 공기의 흐름
대대적인 구조 보강 공사를 통해 기존의 넉넉했던 볼륨을 더욱 확장하고 자연광의 유입을 극대화했습니다. 그 결과, 높이 7미터에 달하는 층고, 볼트(vault) 천장, 피라미드와 프리즘 형태의 볼륨, 구(sphere), 원통의 일부 등 독특한 기하학적 요소들이 어우러져, 마치 공기의 흐름이 느껴지는 듯한 공간이 탄생했습니다. 집 안의 모든 공간은 저마다의 뚜렷하고 입체적인 조형미를 드러냅니다.
정적의 성소와 삶의 별자리
주택의 절반은 특별한 기능을 비워둔 오픈 플랜(open-plan) 공간입니다. 매우 높고 깊이감 있는 이 공간은 마치 성소와 같은 정적이고 명상적인 분위기를 자아냅니다. 조각품을 연상시키는 곡면의 반사형 금속 난간이 이 공간을 감싸 안으며, 볼트 천장 아래로 이어지는 상승 동선을 이끕니다. 반면, 건물의 나머지 절반은 모든 주거 기능을 담은 콤팩트한 볼륨들이 서로 맞물려 있습니다. 다양한 형태를 가진 작은 공간들이 마치 별자리처럼 배치되어 메인 공간을 보조합니다.
빛의 유희와 무한한 확장
피라미드 형태의 단면을 가진 1층의 방들은 천창을 모방한 조명과, 기존 볼트 천장을 뚫고 들어오는 실제 천창이 어우러져 시각적으로 무한히 확장되는 느낌을 줍니다. 이 프로젝트의 백미는 단연 볼륨 내부에서 펼쳐지는 '빛의 유희'입니다. 자연광과 인공광은 서로 교차하고 쫓고 쫓기며 공간에 대한 지각을 끊임없이 변화시킵니다. 기존의 유리 블록과 대화를 나누듯 사용된 강철 소재는 부드럽고, 마치 한 폭의 회화 작품 같은 반사광을 실내로 끌어들입니다.
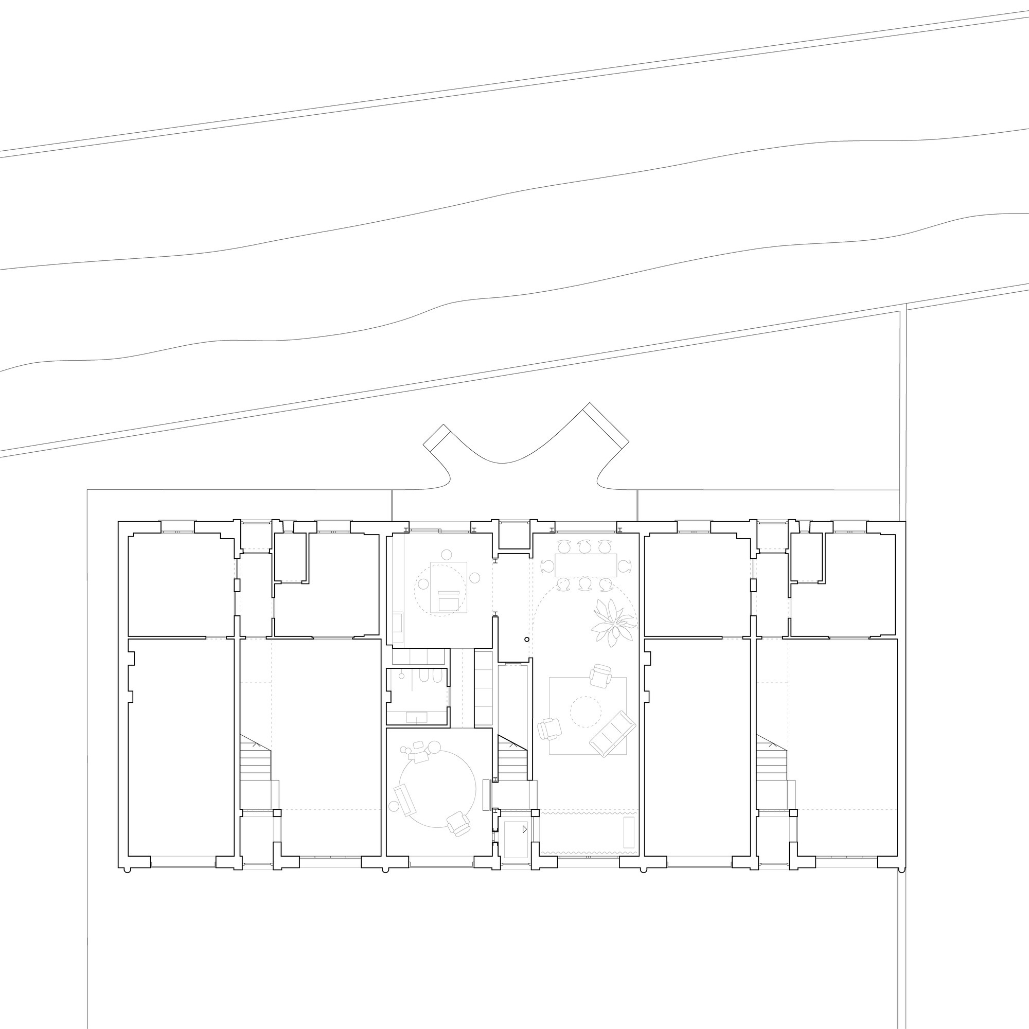
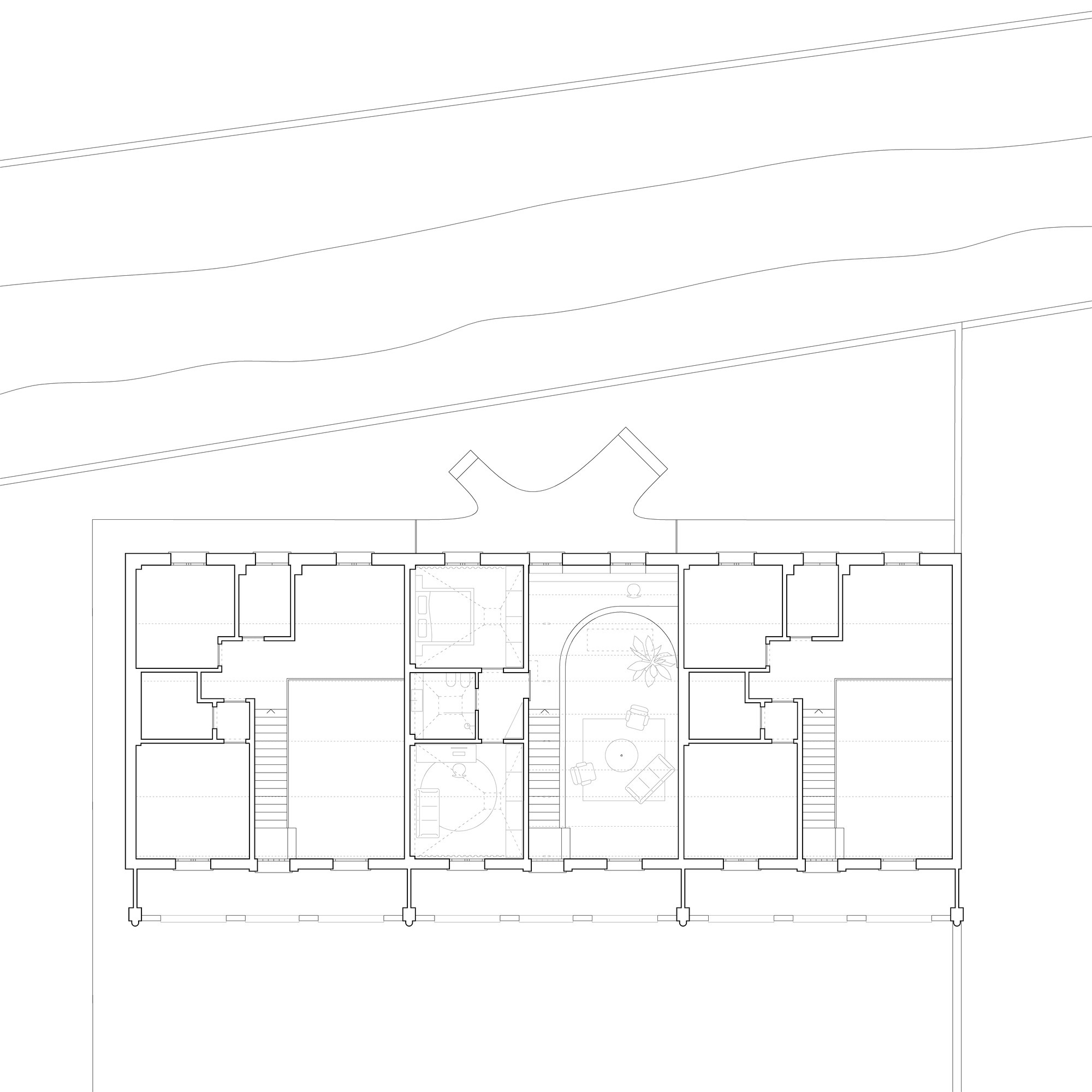
가공되지 않은 물성의 진정성
거대한 곡면 가공 강철판과 더불어, 각 공간의 성격에 맞는 소재들이 자리를 잡았습니다. 내밀한 공간의 가구에는 칠레산 소나무 합판을, 주방에는 조립식 철근 콘크리트를 사용했습니다. 또한 욕실은 베올라(Beola) 그린 석재 슬래브로, 침실 바닥은 산업용 파케(parquet)로, 거실 바닥은 마이크로 시멘트로 마감했으며, 외부 공간은 금속 격자(grating)와 자갈로 정의했습니다. 모든 재료는 인위적인 착색 없이 가공되지 않은 원자재 상태 그대로 사용하여 고유의 질감을 보존했습니다. 이 집에서 나무는 나무답게, 돌은 돌답게, 강철은 강철답게, 그리고 콘크리트는 콘크리트다운 본연의 모습을 드러냅니다.
기하학의 유연한 변주와 명암
실내의 정교한 기하학은 정원으로 나오면서 한층 유연해집니다. 부분적으로는 자유롭고, 부분적으로는 직교하는 형태가 두 개의 영역을 정의합니다. 하나는 사람이 머무를 수 있는 곳이고, 다른 하나는 접근할 수는 없지만 바라볼 수는 있는 영역입니다. 이는 자연적이면서도 산업적인 배경이 되어 끊임없이 변화하는 풍경을 만들어냅니다. 내부에서는 비움, 벽체, 붙박이 가구를 정의하는 요소들이 모두 흰색으로 마감되어, 빛과 어둠의 명암(키아로스쿠로)을 통해 공간의 볼륨감을 명확히 드러냅니다.
기념비성과 주거의 공존
결국 이 프로젝트의 진정한 건축 재료이자 유일한 장식은 '빛'입니다. 빛은 공간을 조각하고 거친 표면에 생명력을 불어넣습니다. 이를 통해 Casa LL은 웅장한 기념비성을 가지면서도, 소박하고 환대하는 분위기를 품은 진정한 '집'으로 완성되었습니다.
Write by Claude & Jean Browwn





























P•A•N-Casa LL - Office Transformation
In Milano, on the southern edge of the city, Casa LL originates from the reuse and transformation of a postmodern office building into a private residence. The project focused on shaping the void, the space between solids, through light and through raw, abstract materials.
Extensive structural works made it possible to expand already generous volumes and increase the intake of natural light, giving form to an airy place defined by unique spatial conditions: spaces up to seven meters high, a barrel vault, pyramidal and prismatic volumes, spheres, and portions of cylinders. Each space in the house is thus characterized by distinctive and specific plastic qualities.
Exactly half of the dwelling is an open-plan space: a very tall and very deep room, with an almost sacred and meditative character, a place devoid of a specific function. A sculptural, reflective balustrade partially envelops it and accompanies the ascent up to beneath the vault. The other half of the building accommodates an interlocking composition of more compact volumes that host all domestic functions: a constellation of small spaces with different forms, placed alongside and in service of the main one.
The rooms on the first floor, with pyramidal sections, extend ideally toward infinity through lighting that simulates skylights or through real skylights that pierce the existing vault. The most distinctive aspect of the project is the play of light within the volumes. Natural and artificial light alternate, change, and chase one another, constantly transforming the perception of space. The extensive use of steel, in dialogue with the pre-existing glass blocks, introduces soft, almost painterly reflections.
Alongside large calendered steel plates, the following materials were used: Chilean pine plywood for the furnishings of the more intimate spaces; prefabricated reinforced concrete for the kitchen; green beola stone slabs for the bathroom fittings; industrial parquet for the sleeping area; microcement for the living area; while metal grating and gravel define the outdoor space. All materials are used in their raw state, without coloration, preserving their natural texture: in this house, wood is wood, stone is stone, steel is steel, concrete is concrete.
The precise geometries of the interiors become less rigorous in the garden, where a form that is partly free and partly orthogonal defines two realms: one inhabitable, from which to contemplate the other, inaccessible one, a scenography that is both natural and industrial, in constant transformation. Inside, the elements that define the voids, walls, and built-in furnishings are white, to clearly delineate the volumes through chiaroscuro.
Light, in fact, the true building material and the project's sole decoration, shapes the spaces and animates the raw surfaces, creating a sober yet welcoming domesticity, a place capable of becoming a home even in its monumentality.
from archdaily
'House' 카테고리의 다른 글
| * 경계를 허물고 안으로 열린 집 [ TIMM Architecture ] Inverted House (0) | 2026.02.09 |
|---|---|
| * 비버리힐즈의 빛, 대지에 박힌 원석 [ Donaldson + Partners ] Fractal-Facade House (0) | 2026.02.04 |
| * 벽돌과 콘크리트의 주갈반디 / PMA 마두샬라 - 랑만치 하우스 [ PMA madhushala ] Rangmanch House (0) | 2026.01.30 |
| * "대지와 시간의 층위를 쌓아 올린 붉은 풍경 [ HPA Arquitetura ] Casa Corten (0) | 2026.01.28 |
| * 비의 리듬을 시각화하다 [ Wittman Estes ] French Creek Workshops House (1) | 2026.01.26 |


