"나의 집은 나의 피난처다. 그것은 차가운 편의시설이 아니라, 정서적인 건축물이어야 한다." — Luis Barragán (루이스 바라간)

![]() |
![]() |
![]() |
경계를 허물고 안으로 열린 집 TIMM Architecture - Inverted House
제약, 새로운 건축의 시작
진정한 건축은 제약 속에서 피어난다. 벽은 단절의 도구가 아닌, 새로운 세계를 품는 그릇이 된다. 조지아 트빌리시(Tbilisi) 외곽, 오크로카나(Okrokana) 언덕에 자리 잡은 이 주택은 지역 특유의 폐쇄적인 도시 조직을 새롭게 해석한 결과물이다. 건축가는 기존 질서에 순응하는 대신, 시선을 내부로 돌리는 '내향적(Inward-looking)' 구조를 선택했다. 집 자체가 스스로를 보호하는 견고한 경계가 되어, 그 안에서 빛과 프라이버시, 그리고 풍요로운 공간감을 빚어낸다.
담장으로 단절된 도시의 풍경
오크로카나는 트빌리시가 내려다보이는 높은 지대라는 이점에도 불구하고, 그 공간적 실체는 '개방'보다 '폐쇄'에 가까웠다. 좁은 골목과 다닥다닥 붙은 필지, 프라이버시를 위해 높게 쌓아 올린 담장들이 이곳의 풍경을 정의한다. 대지 역시 삼면이 이웃집 담장으로 막혀 있었고, 나머지 한 면마저 도로에 접해 있어 외부 조망은커녕 채광 확보조차 쉽지 않은 상황이었다.
담장, 그 자체가 집이 되다
이 프로젝트는 이러한 악조건을 회피하지 않고, 오히려 새로운 주거 모델을 제안하는 기회로 삼았다. 건축가는 관습적인 '주택 대 담장'의 관계를 뒤집는 **'반전 주택(Inverted House)'**을 구상했다. 건물을 담장 뒤로 숨기는 대신, 건축물 자체가 대지의 경계선이 되도록 한 것이다. 집은 대지를 감싸 안으며 돌아가고, 모든 주요 공간은 닫힌 외부가 아닌 열린 내부를 향하도록 설계했다.
경계를 조율하는 두 개의 정원
도로와 면한 입면은 살짝 뒤로 물러나 앉아, 별도의 담장 없이도 공적 공간과 사적 공간 사이의 경계를 부드럽게 완화한다. 공간 구성의 핵심은 두 개의 정원이다. 집의 진정한 심장 역할을 하는 **'내부 중정(Inner Courtyard)'**과, 거리와의 관계를 조율하는 '외부 정원'이 공간의 흐름을 주도한다.
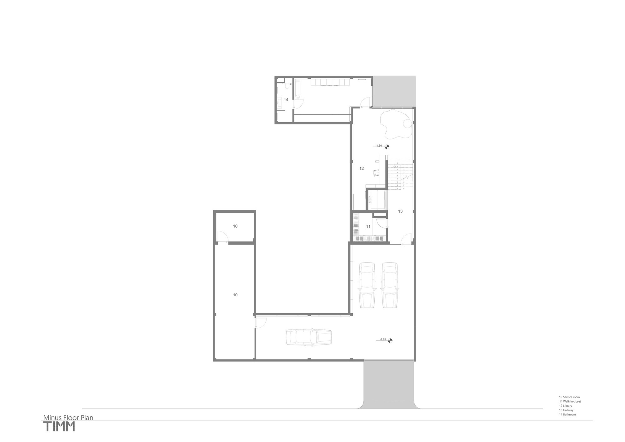
허공을 가로지르는 수영장과 공간의 흐름
현관, 거실, 주방 등 주요 생활 공간은 모두 내부 중정을 향해 열려 있어, 중정을 마치 '지붕 없는 거실'처럼 확장한다. 이 빈 공간(Void)을 가로지르며 허공에 띄워진 수영장은 하부에 아늑한 그늘을 드리우고, 시각적으로 상부 층을 연결하는 매개체가 된다. 단면을 살펴보면, 건물은 뒤쪽에서 3층 높이로 솟아오르지만 도로 쪽에서는 단층으로 보여 위압감을 덜어냈다. 이러한 높이 차이는 2개 층 높이의 시원한 층고와 스킵 플로어(Skip-floor) 구조를 만들어내며, 점진적이고 유연한 공간 경험을 선사한다.
검은 껍질 속 숨겨진 순백의 반전
재료의 사용은 이 집의 '반전 논리'를 더욱 극적으로 보여준다. 도로와 마주한 외관은 **'탄화목(Charred wood)'**으로 마감했다. 목재 표면을 불에 태워 내구성을 높이는 이 전통 기법은, 숯처럼 검고 거친 질감으로 집을 보호하는 단단한 껍질 역할을 한다. 그러나 중정으로 들어서는 순간, 검은 껍질은 사라지고 가공되지 않은 천연 목재가 등장해 따뜻함을 전한다. 더 깊숙한 내부 공간은 순백색으로 마감해, 빛과 비례 그리고 공간감 그 자체가 주인공이 되게 했다. '탄화목 → 천연 목재 → 추상적인 백색'으로 이어지는 이 흐름은, 거친 외부에서 내밀한 중심으로 진입할수록 물성이 점차 사라지는 '비물질화(Dematerialization)'의 경험을 완성한다.
스스로를 지키며 확장하는 집
TIMM 인버티드 하우스는 담장을 '거주 가능한 건축'으로 재정의하며, 밀집된 교외 환경에 적합한 새로운 주거 유형을 제시한다. 제약에 저항하기보다 이를 내부화하여 공간적 자산으로 승화시킨 이 집은, 층층이 쌓인 구조와 재료의 반전을 통해 스스로를 지키면서도 안으로 무한히 확장되는 세계를 구축하고 있다.
Write by Claude & Jean Browwn

















from archdaily
'House' 카테고리의 다른 글
| * 지그재그 평면이 숲을 꿰뚫다 [PL.architekci ] S House (1) | 2026.02.24 |
|---|---|
| * 비움으로 빚어낸 빛의 서사 [ Leckie Studio ] Lantern House (0) | 2026.02.11 |
| * 비버리힐즈의 빛, 대지에 박힌 원석 [ Donaldson + Partners ] Fractal-Facade House (0) | 2026.02.04 |
| * 빛, 물성, 그리고 조각된 비움" [ P•A•N ] Casa LL (0) | 2026.02.03 |
| * 벽돌과 콘크리트의 주갈반디 / PMA 마두샬라 - 랑만치 하우스 [ PMA madhushala ] Rangmanch House (0) | 2026.01.30 |


