
일본 전통방식의 주거를 재해석한 호텔 프로젝트 입니다. 좌식생활의 다다미방을 바탕으로 싱글 또는 트윈베드 타입의 객실이 준비됩니다. 현대적이면서도 정갈한 공간이 제공됩니다.
Using the local community to convey the charm of downtown - Situated in Koto ward, Morishita used to prosper as a temple town during the Edo period. Currently standing as a residential and commercial area, we can still find some long-established stores participating in an old fashion atmosphere typical of the downtown. In order to absorb this charming familiarity, we created a hotel that would introduce to visitors the local stores. An opened terrace is placed in front of the entrance, aiming to create a new place of communication for the guests and the neighborhood.
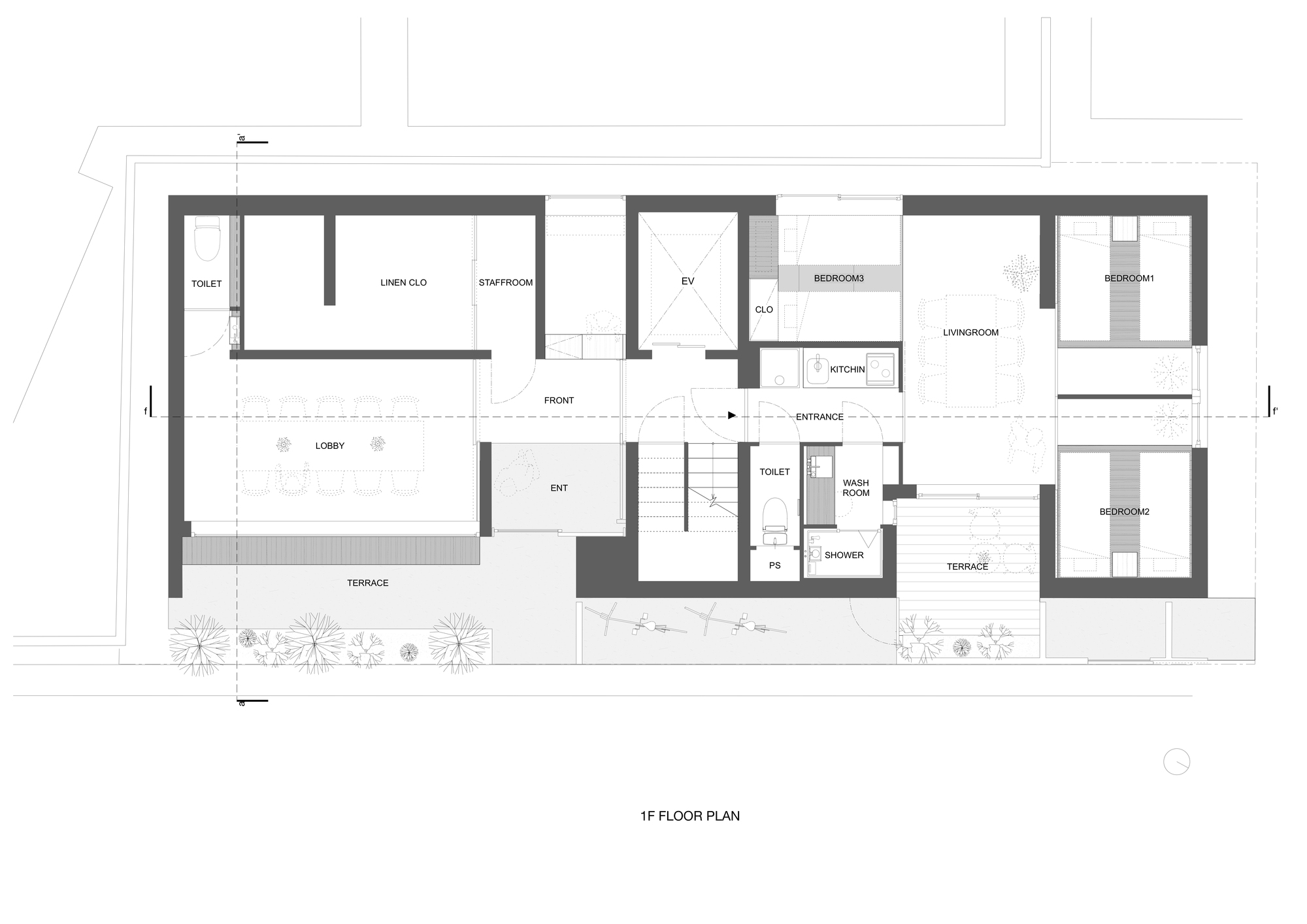
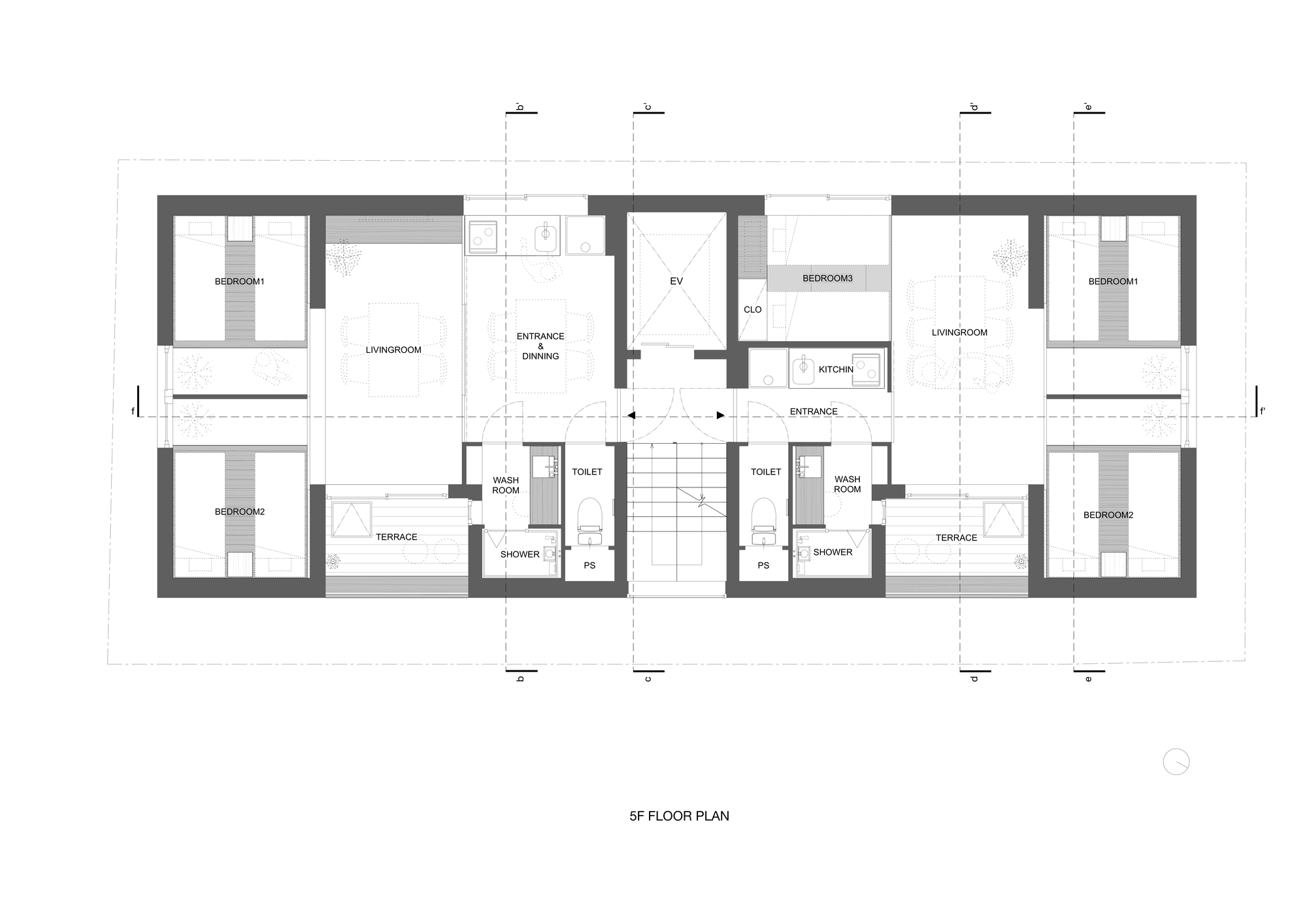
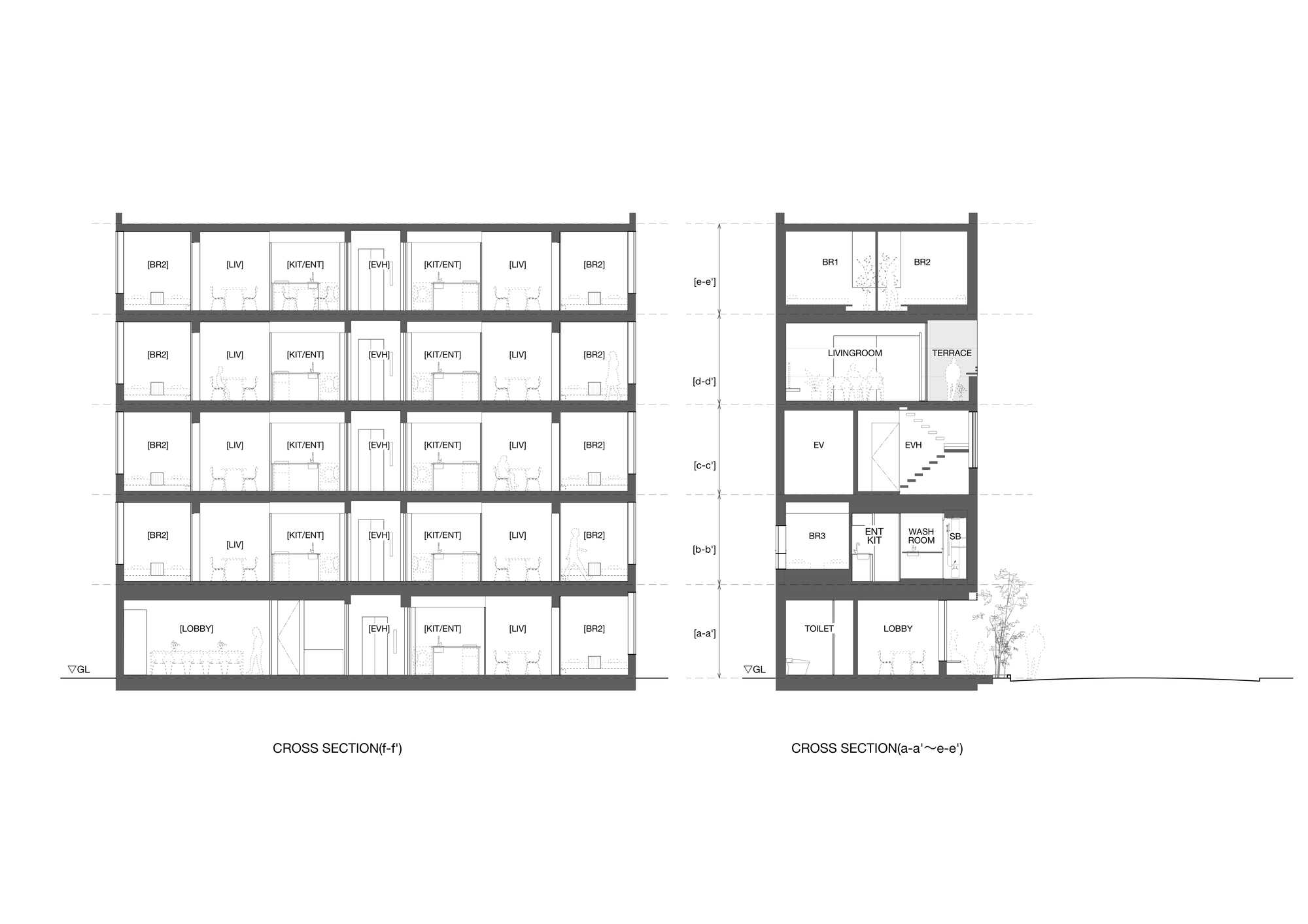
Reinterpreting a traditional style of housing in the present day - The general composition adopts the stairwell style, similar to public housing during Japan's period of rapid economic growth. Two accommodation rooms of approximately 40 m2 are allocated on each floor across the staircase. With the aim to be distinguished from Tokyo's offer, where the majority of the rooms are single, twin or double beds, we propose nine rooms able to accommodate a large number of family members or friends. Each room is equipped with a kitchen and a washing machine, which can be used by up to six people. This way, a possible conversion into apartments can be considered in the future.
We chose to use a modern structure made of reinforced concrete, while keeping a Japanese traditional way to conceive the space. For example, the reversed concrete beam is used for the upper tatami room, while the lower floor contains a traditional sitting table and lower chairs. This configuration ensures privacy from the outside, and a sense of security. On the other hand, by widening the opening on the ceiling, we encourage the line of sight upwards. This gives a feeling of openness to the outside surroundings, and the opportunity to admire the exceptional location and feel a sense of unity with the city.

















from archdaily