
시게루 반이 설계한 솔리드 시더 하우스는 근대건축가 미스 반데어 로에의 주택설계에서 영감을 받은 실험적인 주거공간 입니다. 지역적 재료를 이용한 구축론은 수직과 수평의 단순한 기하학적 법칙으로 구현됩니다. 이를 통해 구현된 건축환경은 외부로 부터 분리된 시선을 만드는 동시에 자연환경을 적극적으로 안을 수 있는 수렴공간을 만듭니다.
The Solid Cedar House, designed by the Japanese architect Shigeru Ban and built with solid cedar, was conceived based on acclaimed modernist architect Mies Van Der Rohe.
Solid Cedar House
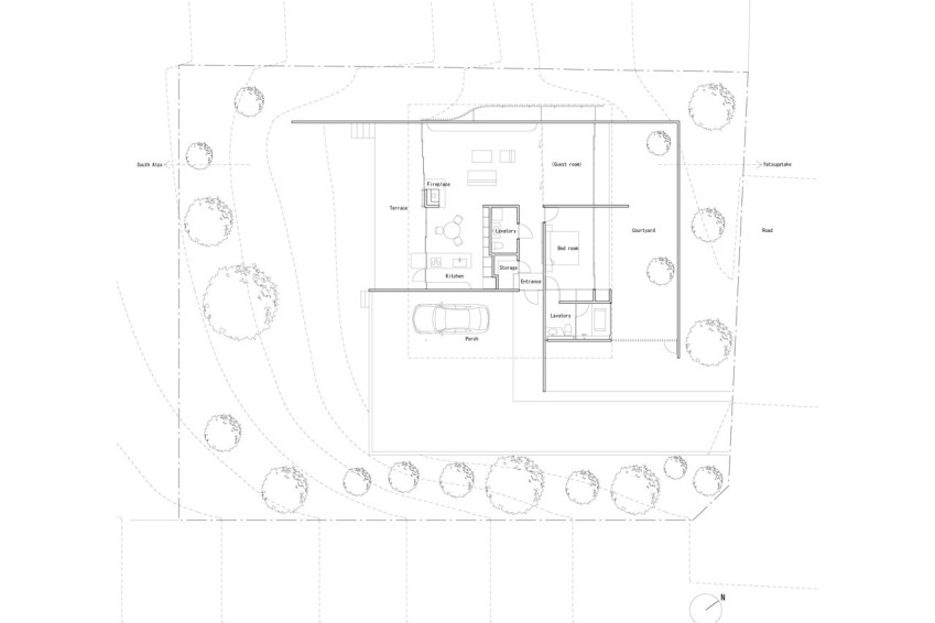
Japanese architect Shigeru Ban has, over the past years, conceived several design concepts based on the work of acclaimed modernist architect Mies Van Der Rohe. “Solid cedar house” is located in the Japanese prefecture of Yamanashi and is also part of these ongoing studies. Mies used concrete and brick structure walls to connect the space sequence’s from the interior space to the landscape. Similarly, the wall and the slab in this work (ceiling, roof) cut a wide variety of scenery in every room.
As the name suggests, the ‘Solid Cedar House’ has been constructed using locally sourced wood, with vertical and horizontal planes creating a series of carefully configured living spaces. The walls in this house frame the scenery and play an essential role in ensuring a sense of seclusion and privacy hiding the neighboring houses and the roads. The most intimate areas of the house are found at the center of the single-story plan.

Architects: Shigeru Ban
Typology: Residencial Projects / Private Residences
Location: Kobuchizawa, Hokuto, Yamanashi, Japan
Completion: 2015
Material: Solid Cedar
Evocative topics: Japanese Houses, Infinite planes, Wood, Open House
Photographs: © Hiroyuki Hirai / © Courtesy of Shigeru Ban
Designing a house is far more difficult than making an art museum or an office building. With a house you have one particular client whose lifestyle it has to suit. With an office you are dealing with generalities.
So, when architects get famous they tend to stop doing residential projects. There is no money in them, they are difficult and the responsibility is large.
But the kinds of architects I respect — people like Le Corbusier, Mies Van Der Rohe or Alvar Aalto — continued to make houses their entire lives. It was in their houses that they did their experimentation.
– Shigeru Ban








from archeyes
'House' 카테고리의 다른 글
| *아기자기 컬러풀 하우스 [ Office S&M ] Mo-Tel House (2) | 2021.04.02 |
|---|---|
| *세미-디테치드 하우스 [ FAM Architekten ] Semi-detached House (0) | 2021.04.01 |
| *젠스타일 호텔 [ Be-Fun Design ] MST Hotel (0) | 2021.03.26 |
| *화이트 그리드 하우스 [ Gaurav Roy Choudhury Architects GRCA ] Scaffold House (0) | 2021.03.24 |
| *윈도우시트+테이블+주방의 확장성 The Countertop In This Kitchen Continues On To Become A Desk, TV Stand, And Window Seating (0) | 2021.03.23 |