
foster + partners가 설계한 RCC본사 빌딩은 구리로 된 파사드 입면을 갖고 있습니다. 이 독특한 입면은 두가지 요소를 결합, 디자인한 결과물입니다. 하나는 회사의 새로운 브랜딩을 위한 로고와 구리의 결정구조 형태인 삼각형태를 모티브로 만들게 되었습니다. 구리로 만들어진 외피 또한 회사의 방향성을 적나라하게 보여주는 디자인 요소입니다.
foster + partners presents its newly opened RCC headquarters, the team’s first project in russia. sited in ekaterinburg, the office tower reimagines the conventional cellular office to set new standards in quality, comfort and flexibility. rising 15-stories, the building is marked by its energy efficient enclosure which wraps a collection of innovative modular office units — the project introduces a new and distinctive icon for the fabric of its urban context.
foster + partners wraps its RCC headquarters in russia with a faceted copper facade. this distinctive element celebrates the russian copper company‘s expertise as one of the world’s leading producers of copper. the building’s triangulated language draws inspiration from the crystal lattice structure of copper while the crown of the building integrates RCC’s new logo, a rebranding which has, in turn, been inspired by the architecture. in developing the tower, the design team turned away from the conventional large, communal workspace organization, seeking instead to reinvent the headquarters as a ‘house for staff.’
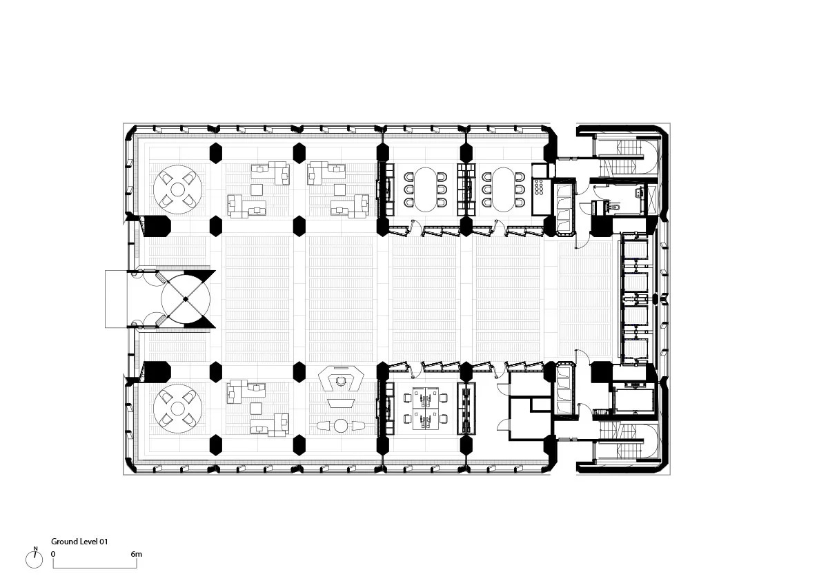
as a house for staff, foster + partners’ RCC headquarters in russia hosts rooms organized at a more intimate, domestic scale. the practice’s workplace consultancy group analyzed the client’s operations and helped to devise the innovative modular system for these rooms. this was then developed with the in-house engineering teams to enable rapid construction and ensure ideal levels of natural daylight for concentrated work. each two-story module comprises a pair of offices, stacked one on top of the other — this is expressed externally through the double-store cladding module.
project title: RCC headquarters
architecture: foster + partners
client: russian copper company
location: ekaterinburg, russia
completion: 2021

























from designboom