
Located in the “Ile de Nantes” a site undergoing industrial transformation, the Alstom Warehouses requalification project marks a new step towards the objective of urban rehabilitation. It goes beyond – it is about city-making, city-making together on the old Alstom warehouses site so that a new dynamic arises at the crossroads of culture, technology, and economy.
In over 20 years, the available 26,000m2 (280,000 sq. ft.) of the existing warehouses will be restructured and converted into a multipurpose Creation district comprising: the Nantes Saint-Nazaire Higher School of Fine Arts (ENSBAN), the Nantes University, an office property complex for creative startups and a business accelerator, artists’ workshops, a creative Third-Place project, and a catering facility.
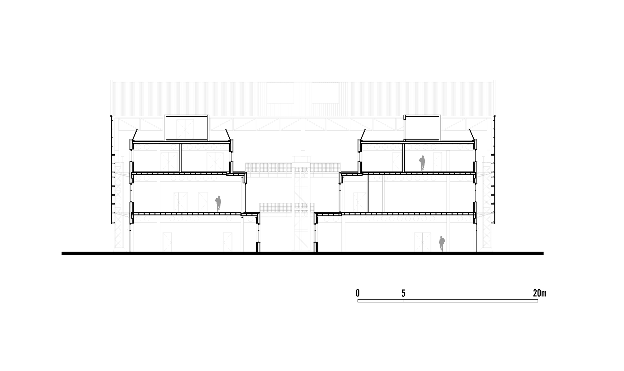
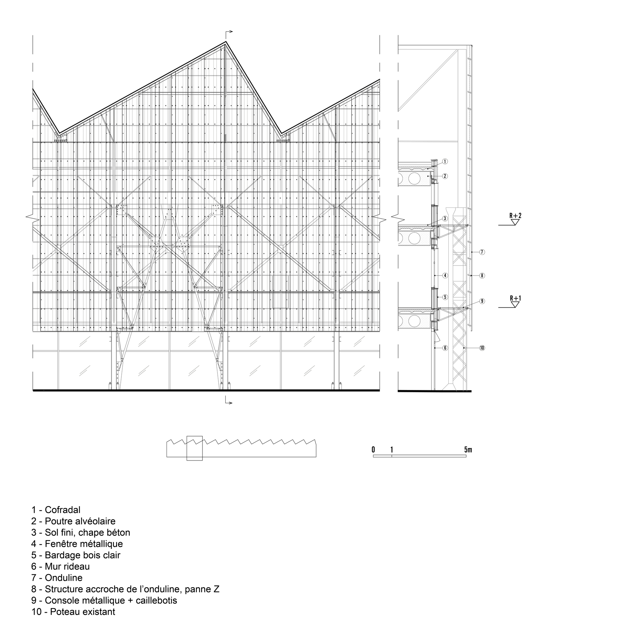
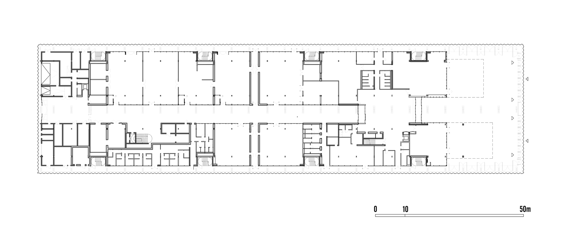
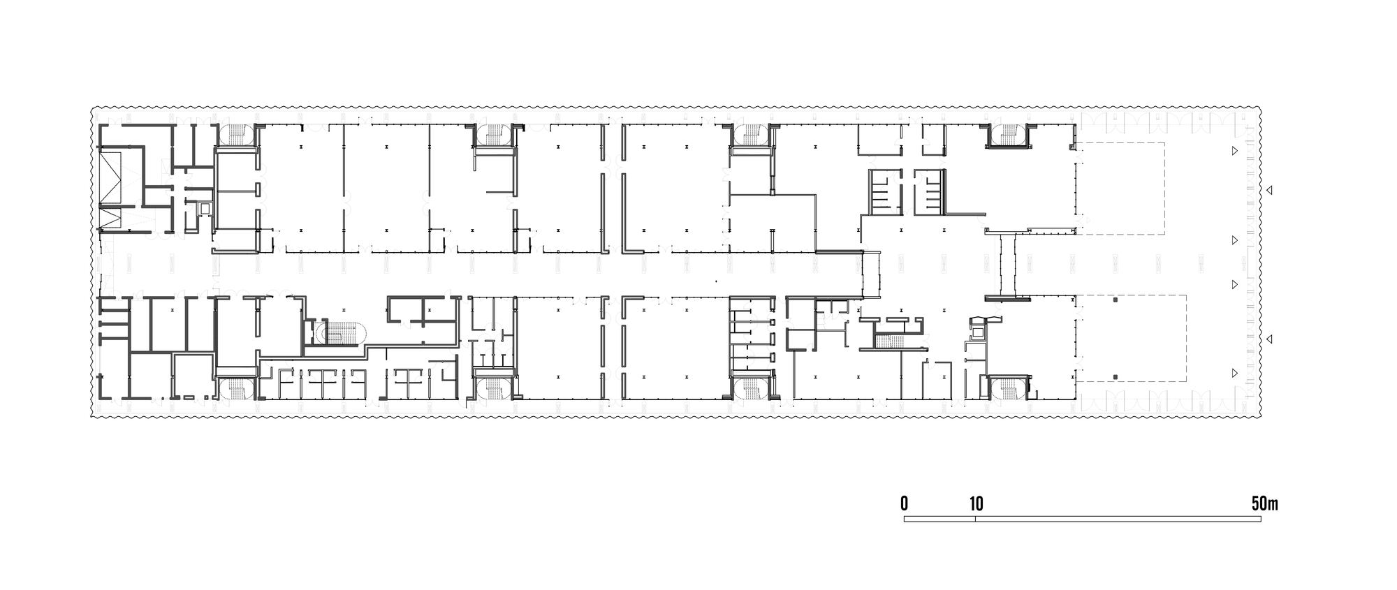
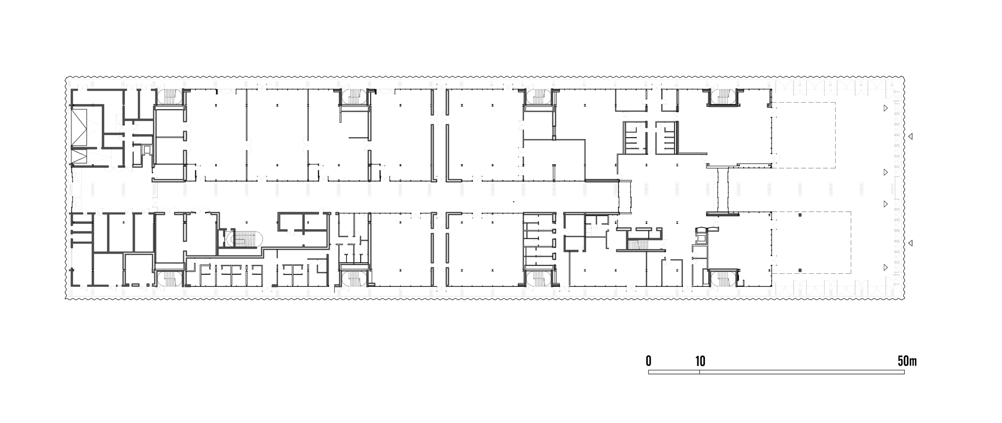
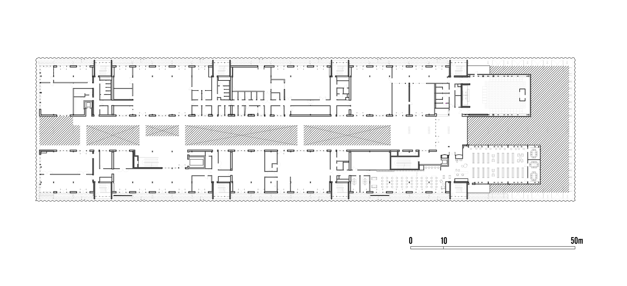
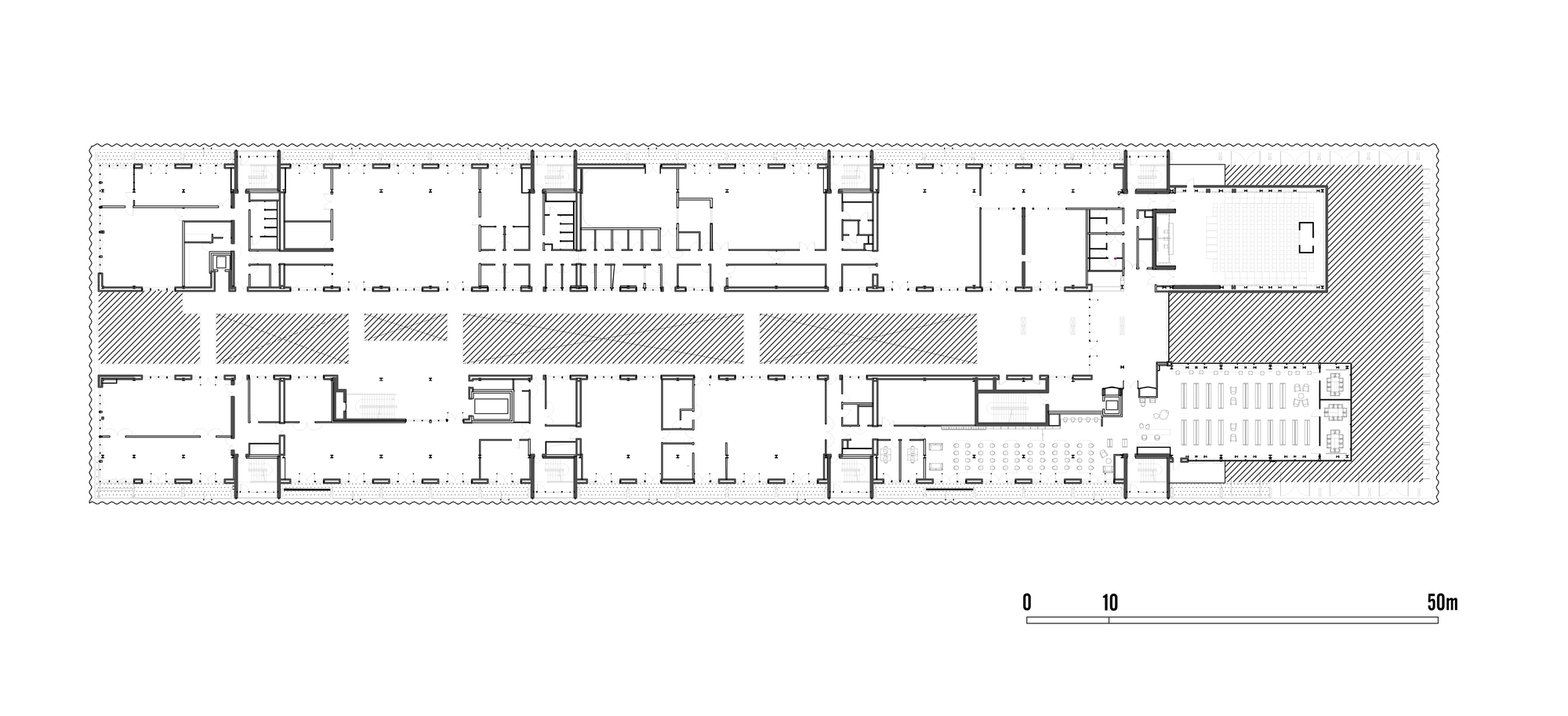
By 2020, this insular city area will bring together over 4,500 students from various backgrounds: art, architecture, design, cinema, digital media, dance, and music. Franklin Azzi Architecture’s mission was twofold: urban planning of the whole old Alstom warehouses area and architectural design of the Higher School of Fine Arts. The Higher School of Fine Arts settles in Warehouses No4 & 5 to accommodate five hundred students in monumental transparent architecture.
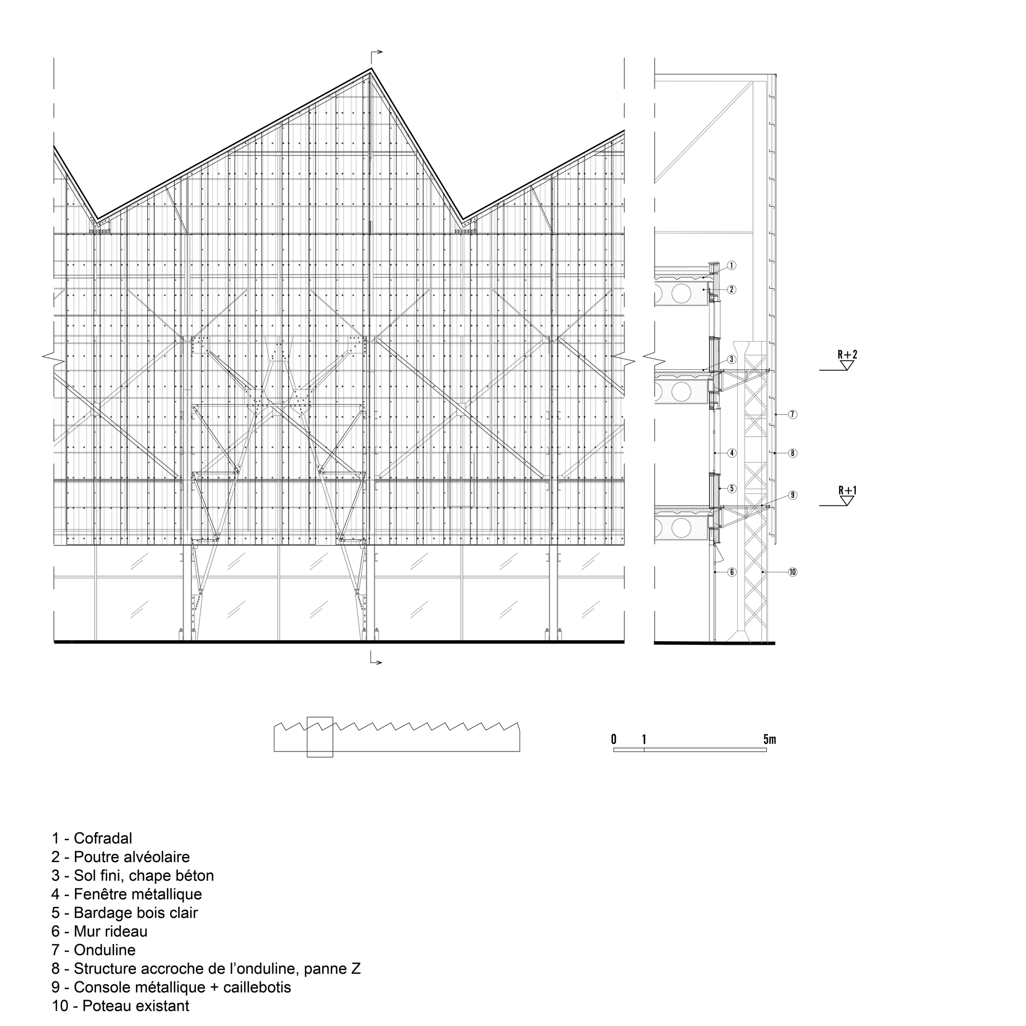
This ambitious rehabilitation and restructuring operation will provide the school with brand new premises, better suited for the production of contemporary art work –materials, digital and print. The 4,000m2 (43,000 sq. ft.) facilities for research and experimentation will be composed of workshops and free-spaces, an Art Library, a public hub for creative publishing and a youth center, a contemporary art gallery, a store, and a solidarity grocery.

















from archdaily