
만드는 방법, 생긴 모양만으로는 여러개의 동그란 버블이 붙어 있는 형상처럼 보일 수도 있지만, 사실은 하나의 원통에서 시작됩니다. 외부와의 접점을 만들기 위한 다양한 요소가 평면 깊숙이 들어오면, 기존 원통의 장력으로 구부러 집니다. 그리고 구불거리는 문어같은 형상으로 나타납니다.
MDO was commissioned to create a landmark at the corner of the central axis of a new development area in Yatai City, a coastal city on the Shandong Peninsula in Jinan, defined by its hilly topography. The Yantai Experience Centre appears as a series of fluted drums wrapped in a glass skirt, setting the rhythm of the visit in terms of light and dynamic relationship with the exterior.
Architects1-8: MDO (More Design Office)
Location: Laishan District, Yantai City, Shandong Province, China
Topics: Glass, Art Center
Area: 1800 m2
Project Year: 2020
Photographs: © Hai Zhu, © Zhi Xia

Yantai is a coastal city on the Shandong Peninsula in Jinan, defined by its hilly topography, incredibly fresh seafood, and winter snow. MDO was commissioned to create a landmark at the corner of the central axis of a new development area, south of the Fengshan Scenic Area. Tall blocks of office and residences typify the surrounding building fabric. MDO imagined the new building as a contrast to the new development’s homogeneity through form, materiality, and relationship with the landscape.
The central heart – The snow-crystal plan
The typical exhibition center is designed as a loop or a one-way path. A courtyard or site model is often placed at the center as a focus; circulation is linear, lacking interconnection between distant spaces. We decided to challenge this norm by creating a public area at its center, a place for discussion and interaction. We wanted to design the space to be more human-centric and welcoming.
The other functions are arranged as peripheral crystal ‘ramifications,’ connected to the central heart. The architecture becomes a unity of positive and negative spaces, like a snow-crystal structure that can be read as a pattern in its presence or absence of matter. The landscape areas, entering the building’s sides, become part of the exhibition spaces’ whole rhythmical dialogue, bringing light to the interior space.
Architectural form
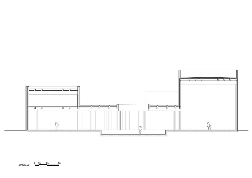
From the exterior, the building appears as a series of fluted drums wrapped in a glass skirt. The drums vary in height depending on the internal function. They are finished with silver aluminum panels, which gently reflect the sky and surrounding landscape. This form sets the rhythm of the visit in terms of light and dynamic relationship with the exterior.
The glass skirt employs 6m tall frameless panels. The facade was rationalized to use a single size and radius of curved glass with a glass fins structure.
Interior
The interior functions have been conceived as a collection. As each peripheral volume is a defined space, so environments are free to evolve and create a series of unique experiences. The central space is sunk to define the lounge area’s transition and enhance the ceiling height. The step creates a column-lined circular gallery, which encourages visual links between the main spaces’ different functions. The ceiling is finished in a hand-painted red plaster that folds up to a central skylight above the central bar.
Spiral design
Within the largest drum volume is the city model, which reflects the urban scale of the development. A bronze square ceiling spirals upwards into the darkness. It is reflected by a mirror to create an internal tower’s illusion, an allusion to the ascension to the unknown, the future.
Stepped amphitheater
In the most open part of the snow-crystal, we created a stepped amphitheater. Space is created for circular meetings, group activities, and children to play; a multifunctional space that can be adapted to different purposes. It addresses the neighborhood through its fully transparent envelope, inviting the local community to join and gather.
The project has received enormous praise from the local government, planning how to use the building in the future. There are plans to be transformed into a community facility for Fenghan Park or as a community exhibition or gallery space. They believe that “the Little Snow Crystal” will become a focal point for the new community.



























from archeyes
'Office' 카테고리의 다른 글
| *헤드쿼터 디자인 [ MAENA Design Conecta ] ABF Place Headquarters (0) | 2021.09.08 |
|---|---|
| *화력발전소 리뉴얼: herzog & de meuron breaks ground on san franscisco power station (0) | 2021.06.01 |
| *키친오피스 랜드스케이핑 [ Paulo Merlini arquitetos ] E-goi & Clavel´s Kitchen Offices (0) | 2021.05.17 |
| *중정형 오피스 [ sol89 ] office within a block (0) | 2021.03.31 |
| *오피스 랜드스케이핑 [ Auerbach Halevy Architects ] KLA Offices (0) | 2021.02.03 |