
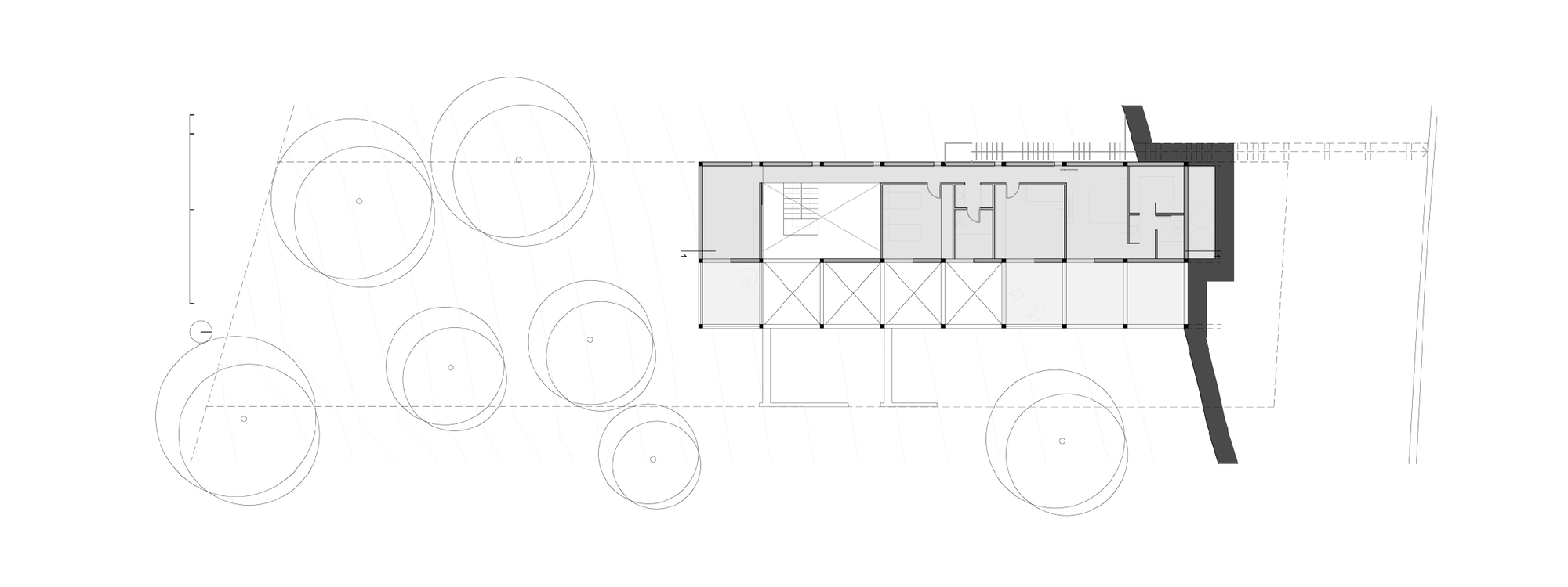
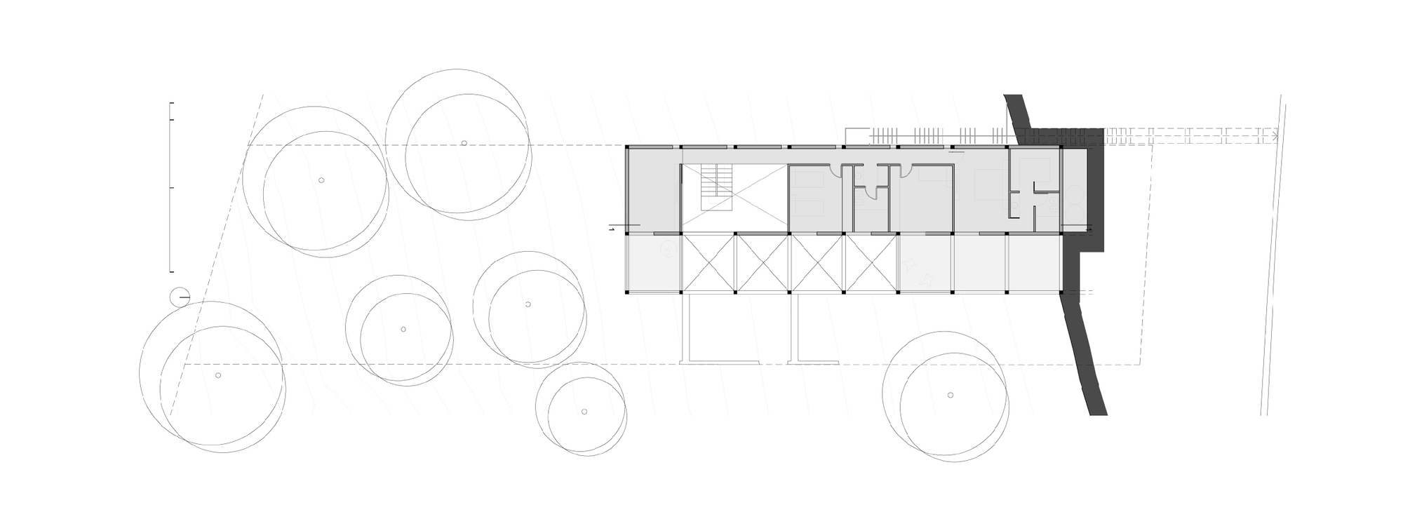
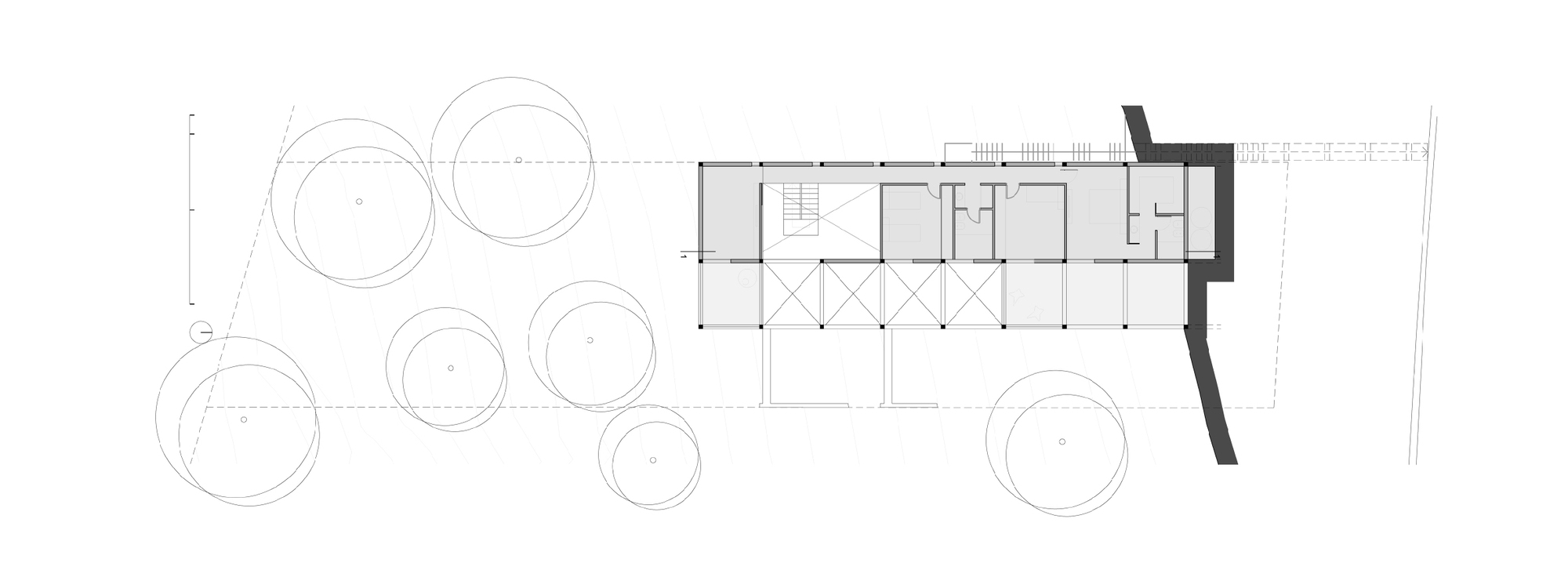
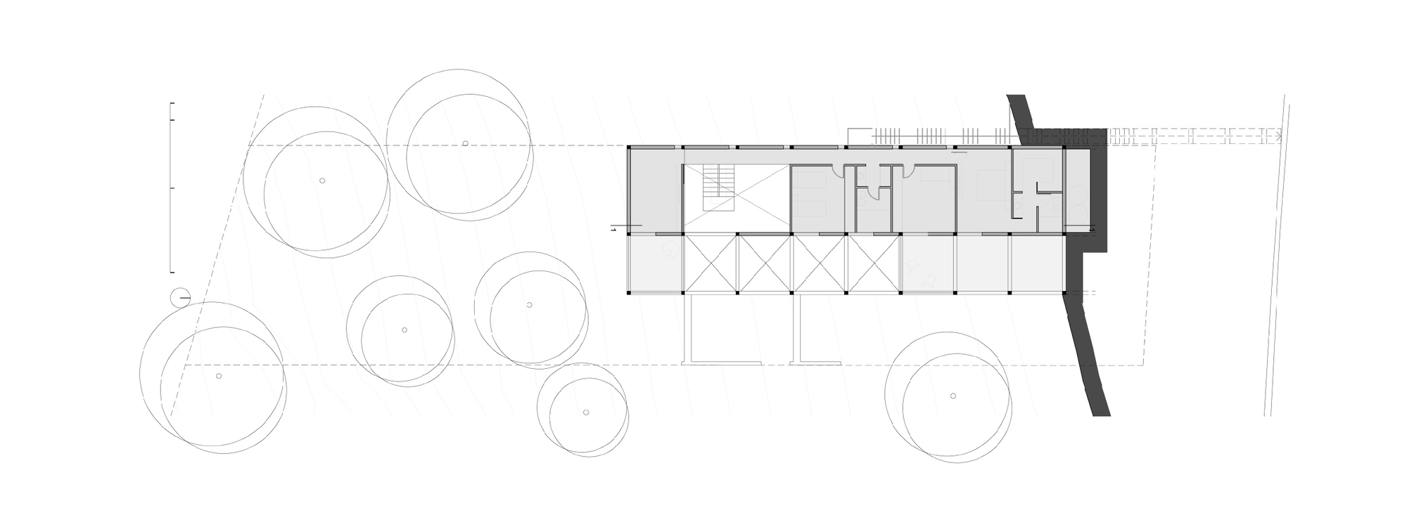
경사지에 있는 전망 좋은 장소에 건축은 어떤 방향으로 해야 할까요?
첫번째는 지형지물에 순응하는 건축을 합니다. 비탈면을 따라 건축물의 방향을 위치시킵니다. 두번째는 외부 자연환경과 최대한 호흡하기 위한 장치를 계획합니다. 건축물의 방향에 직교하는 (비탈면에 직교하는) 각 공간마다 연결 지점을 갖는 데크를 반영합니다. 그리고 이 데크를 구조화하는 콘크리트 구조물 (그리드)를 완성합니다.
How can we place a house on a steep hillside? This was the main challenge with the VG house project, where its functionality and its placement and construction were conditioned by the slope.
We had to find the best way to place a building on a 45 degrees slope, facing south, and in a long and narrow lot. The logical solution consisted of terracing the house’s different levels, but this wasn’t the right decision for a slope facing south. To take advantage of the views towards the city, the good orientation, and to free the visuals from the street, we decided to place the structure perpendicularly to the slope, as a dock that emerges from the highest level of the site and grows downwards in several levels.
The hillside on which the house is placed, it's fully covered with native vegetation. This was a landscape highlight that we wanted to preserve, for that reason, the relations between the building and the ground should be resolved most naturally, avoiding big terrain movements and letting the structure lay in the natural terrain surrounded by vegetation.
The functionality of the house and the inside-outside relations, were as well affected by the hillside placement. To avoid the feeling of disconnection between the inner spaces and the natural terrain, several terraces were placed on the different levels of the house, all of them connecting directly with the natural terrain, allowing multiple expansions and different outdoor uses.


















from archdaily