
Healy Partners Architects-The Padel Club
건축물의 주요한 축은 지역의 역사적인 문화유산과 나란히 합니다.
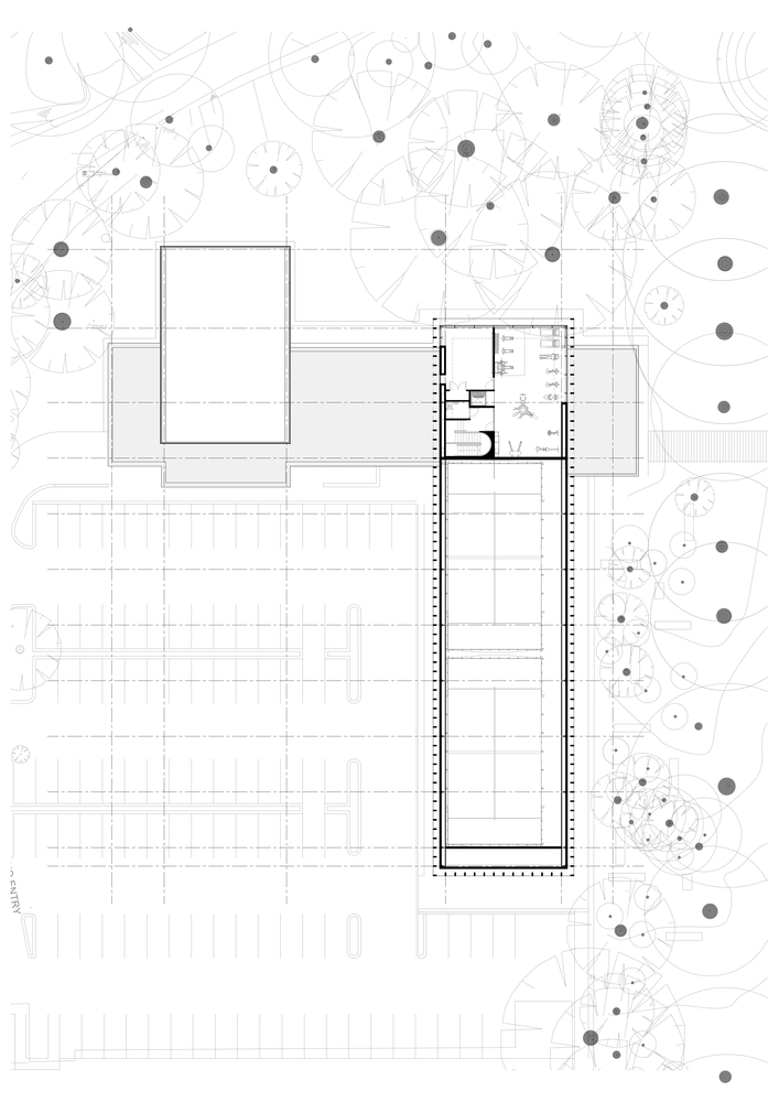
내부 프로그램은 메인 리셉션, 골프 시뮬레이션 공간, 패들 테니스 코드 2개, 체육관 및 요가/ 필라테스 스튜디오로 구성됩니다.
그리고 건물의 방향은 자연채광을 유도하기 위해, 동서방향으로 향해 있습니다.
이를 통해, 패들코드에는 숲속 나무를 통해 필터링 된 낮은 아침햇살이 들어와, 내부조도를 일정하게 유지시켜 줍니다.
The existing site axes, prevailing winds, annual solar paths, protected structures, vistas, and landscape have determined the building's location, orientation, size, form, and materiality.
We are of the strong opinion that nature should have a life of its own and that we as architects should strive to bring nature and people together. The hotel guest using this facility experiences a sense of the existing woodlands while exercising at the base or in the canopy of the mature trees. The building incorporates large areas of glazing that create a synergy between the inside and outside allowing one to look through the glass framing the nature setting.
Materials such as wood, glass, and limestone were carefully chosen to ensure that the building and site context would be seamlessly integrated. The design approach was to nestle the building into a mature woodland setting.
The pavilion-like building sits on a low-lying plinth that unifies the building with the surrounding topography while giving a sense that the structure is floating above the protected landscape. The plinth occupies the basement level and is semi-submerged to take advantage of a natural fall of more than 2500mm across the existing site. This level difference is used to accommodate the services required for the operation of the building and the pool.
The proposed building mass is divided into three volumes. The form alone was not the aim of the design but instead, the form followed the function of the internal spaces.
The main volume addresses Beechwood Avenue and is parallel to the existing axis of the historic estate. This volume accommodates the main reception, a golf simulation space, two padel tennis courts, a gym, and a yoga/pilates studio. The volume is orientated East/West to avail of solar gain. The padel courts open to the east at a low level bringing the filtered morning light through the trees of Beechwood Avenue.






























from archdaily
'Culture' 카테고리의 다른 글
| *싼야 팜 랩 [ CLOU architects ] Sanya Farm Lab (0) | 2021.07.29 |
|---|---|
| *패시브 테라 센터 [ One University One Village Team ] Terra Centre (0) | 2021.07.16 |
| *파운데이션 뮤지엄 [ SPEECH ] Tchoban Foundation_Museum for Architectural Drawing (0) | 2021.07.09 |
| *사막위의 캠퍼스 [ Kéré Architecture ] Startup Lions Campus (0) | 2021.07.02 |
| *캠퍼스 타워 [ Gehry Partners ] LUMA Arles (0) | 2021.07.01 |