
Cutler Anderson Architects-Newberg Residence
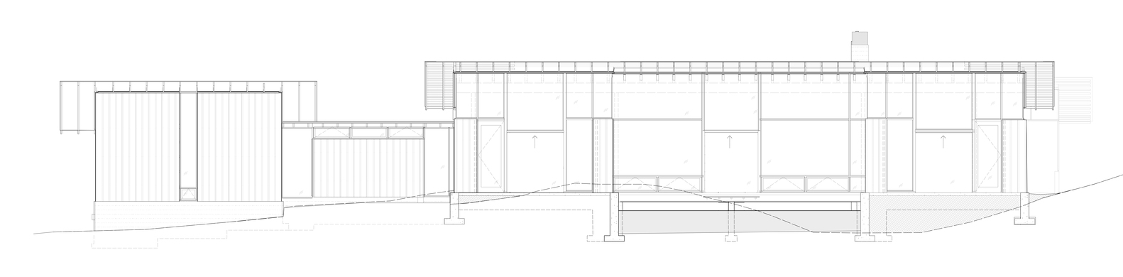
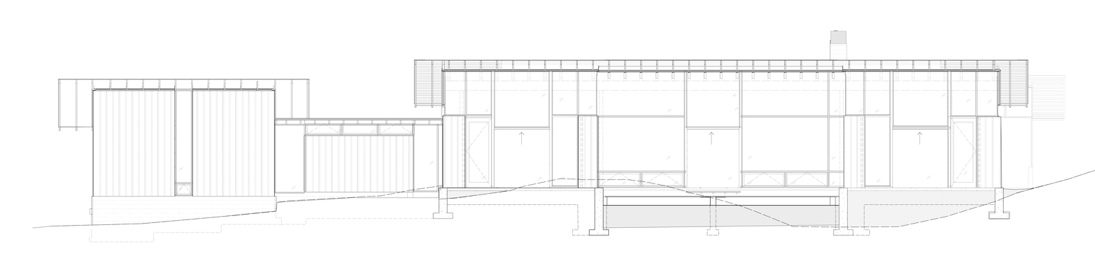
스틸 프레임 구조와 우드 루프로 이루어진 단순한 형태 속에 주방, 거실, 식당 그리고 마스터 침실이 배치됩니다. 여기에 실내 머드룸 ‘링크’는 집과 차고를 연결합니다. 이곳을 방문하는 손님에게 집과 야외공간을 함께 즐길 수 있도록 지붕 덮인 야외 산책로 또한 제공됩니다.















This single-family 1,650 square foot residence and 550 sf guest house was designed to broaden the owners’ already strong emotional connection to the living world. The owners and architect Jim Cutler of Cutler Anderson Architects chose the site of an overgrown, man-made pond in an area of the owners’ 88 acre vineyard that was not conducive to cultivation.
The design attempts to make the pond and residence a single entity in which the owners can enjoy and connect with the wild creatures that come to the water on both regular and varied schedules. To this end, the building of Douglas Fir and Cor-ten steel was placed as a bridge across the north end of the pond. The pond itself was enlarged and loosely ordered to integrate with the structure of the residence.
The site plan was choreographed so that visitors park their vehicles 150 feet away. They then walk through the forest to a bridge crossing a small section of the pond, and on to the main entry. The broad vista of the pond offers a compressive release upon opening the front door. It is the hope that this experience will be memorable to the visitor.
Designed as a simple steel frame carrying a wooden roof structure, the primary box houses a kitchen, living/dining room and master bedroom. An indoor mudroom “link” connects the home to the garage. To enable guests to experience the place, the guest house is connected by an outdoor covered walkway.
Integral to the design of the residence, south-facing glazing (Cardinal LoE 272) maximizes light and warmth in the Pacific Northwest. The home also uses radiant heating in the floors. The wood and steel construction materials were locally-sourced; and native vegetation fosters wildlife.
from archidaily