
![]() |
![]() |
![]() |
![]() |
Iván Bravo Arquitectos-Orqe House
이반 브라보 아키텍트
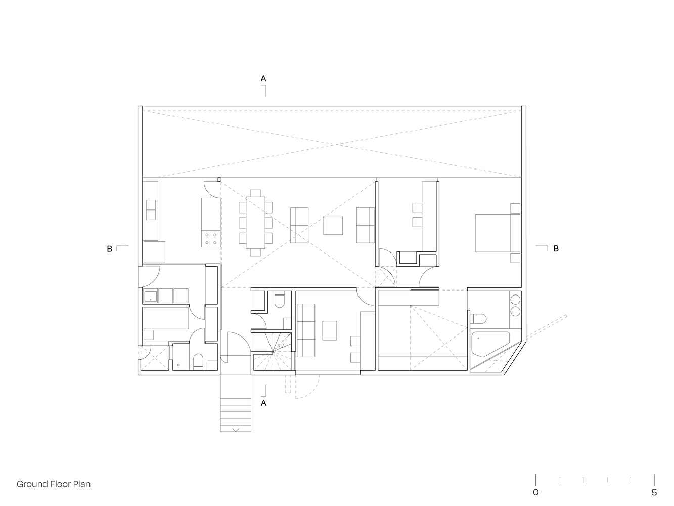
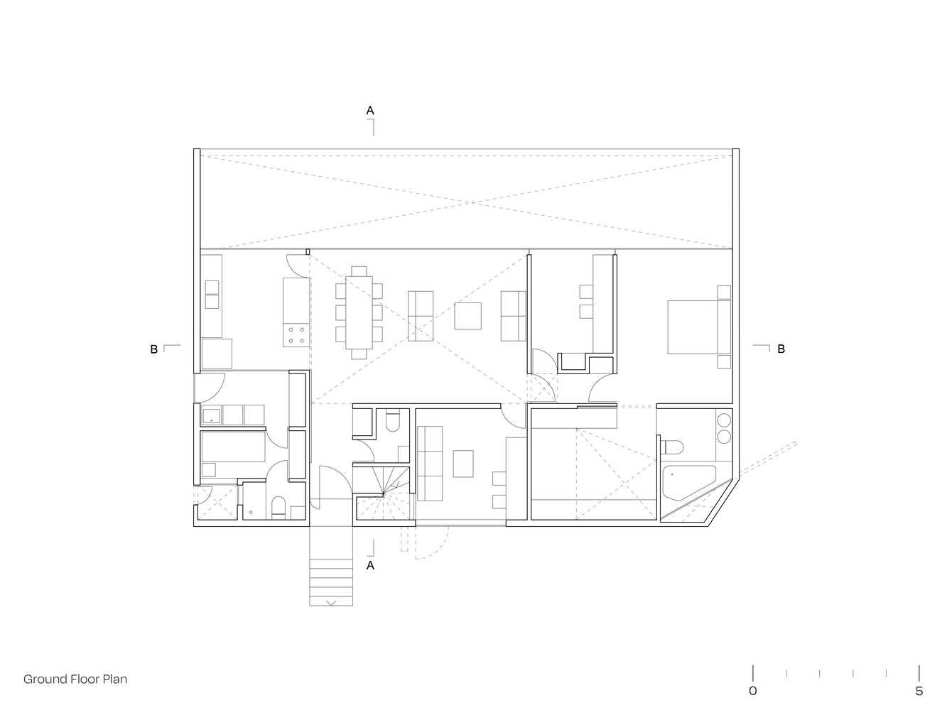
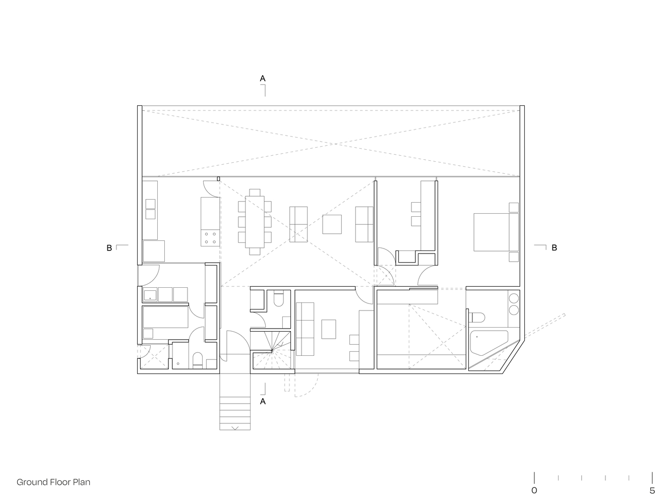
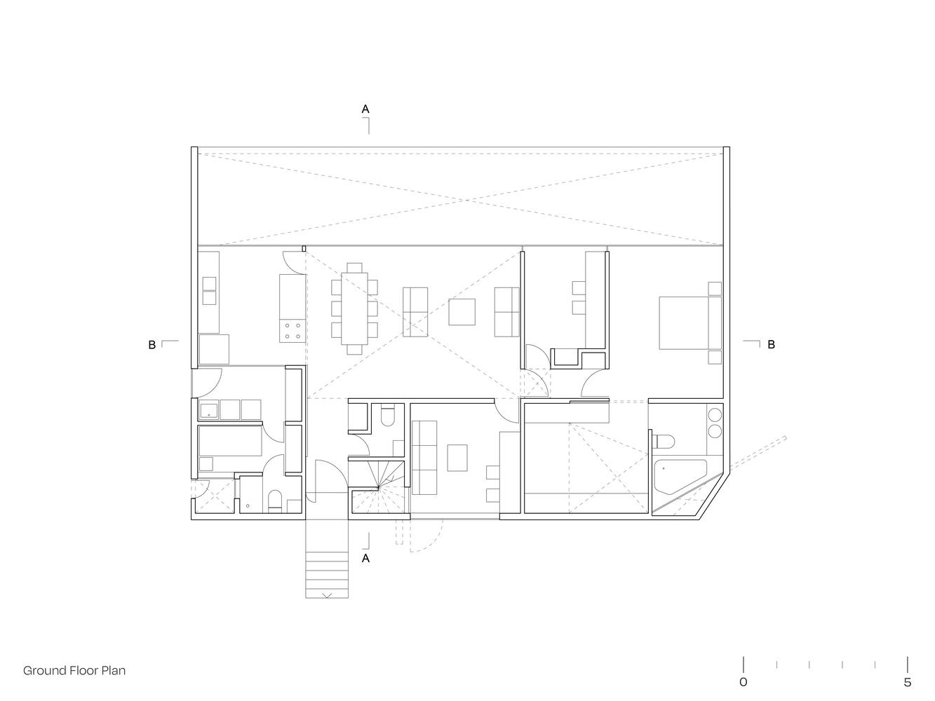
Located in a residential neighborhood in the northern part of Santiago, the Orqe House is the result of an exhaustive exercise of purification of the traditional canons of residential architecture. A continuous skin that brings together the formal attributes of the abstraction of a traditional roof, envelops an interior that appears familiar.
Each piece, each element, each relationship is where it is expected to be, and when it comes to inhabiting, the house disappears, yielding its protagonism to its dwellers.
On uneven terrain, the envelope is buried towards the street and opens towards the north, consolidating a common ground that allows diluting the limits between the interior of the house and the outdoor terrace in front of which all the common spaces are located. This envelope, which makes up the entire house, is stripped of all material pretensions and is shown in its most primitive form: built entirely of raw wood and resting on a pure concrete floor.












산티아고 북부에 위치한 주택의 디자인 특징은 로컬건축의 전통양식을 재해석한 미니멀 양식입니다. 전통적인 지붕형식을 독특한 형태로 추상화한 작업은 지붕과 벽의 경계를 허물며, 연속된 공간을 확보합니다. 외부(거리)로 부터 이격되기 위한 경사면(지붕) 덕분에 북쪽으로 오픈공간 확보하여 내부 공용공간과 테라스가 함께 호흡하도록 설계합니다.



