
![]() |
![]() |
![]() |
Kiki Archi uses red brick to revamp Anna Garden House near Beijing
건축 스튜디오의 리모델링 작업은 기존 공간을 존중하는 재료의 선택과 내외부가 밀착되는 건축환경을 만드는데 있다. 붉은색 벽돌은 불필요한 요소를 걷어낸, 공간의 본질만 남은 메시브한 하우스의 형태를 마감한다.

















Japanese studio Kiki Archi has redesigned an existing home in Changping District, China, with pared back volumes clad in red brick and a landscaped garden.
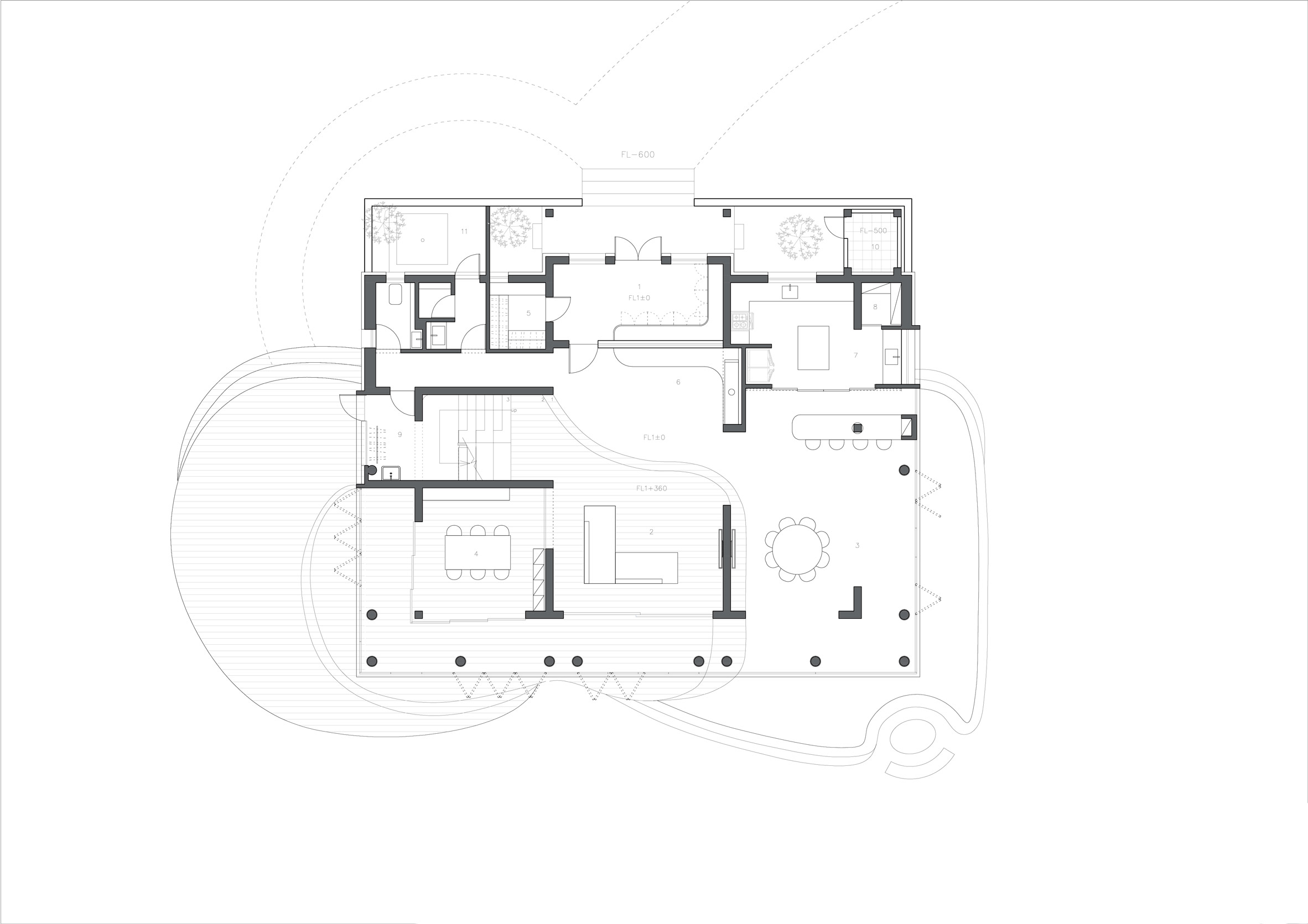
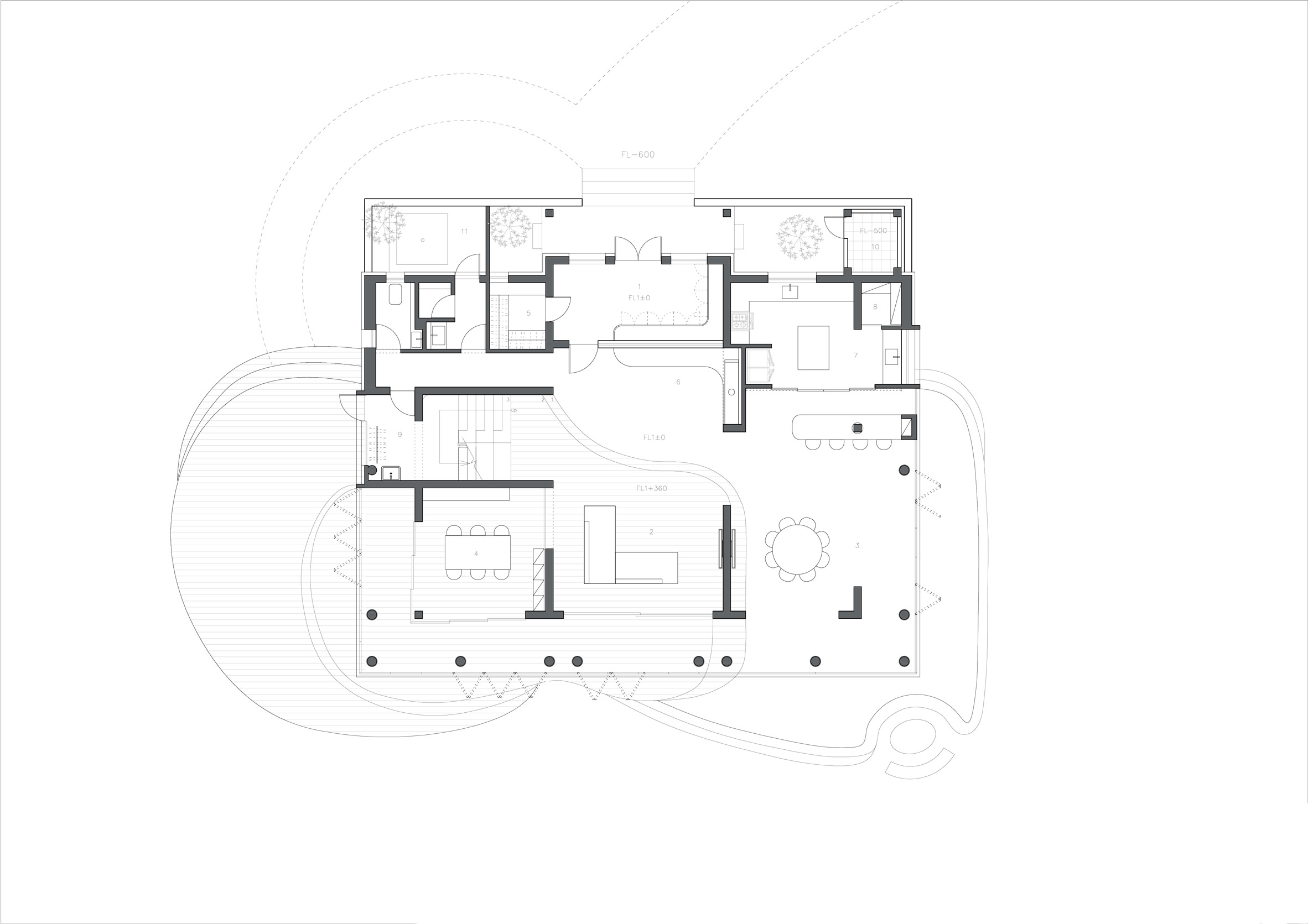
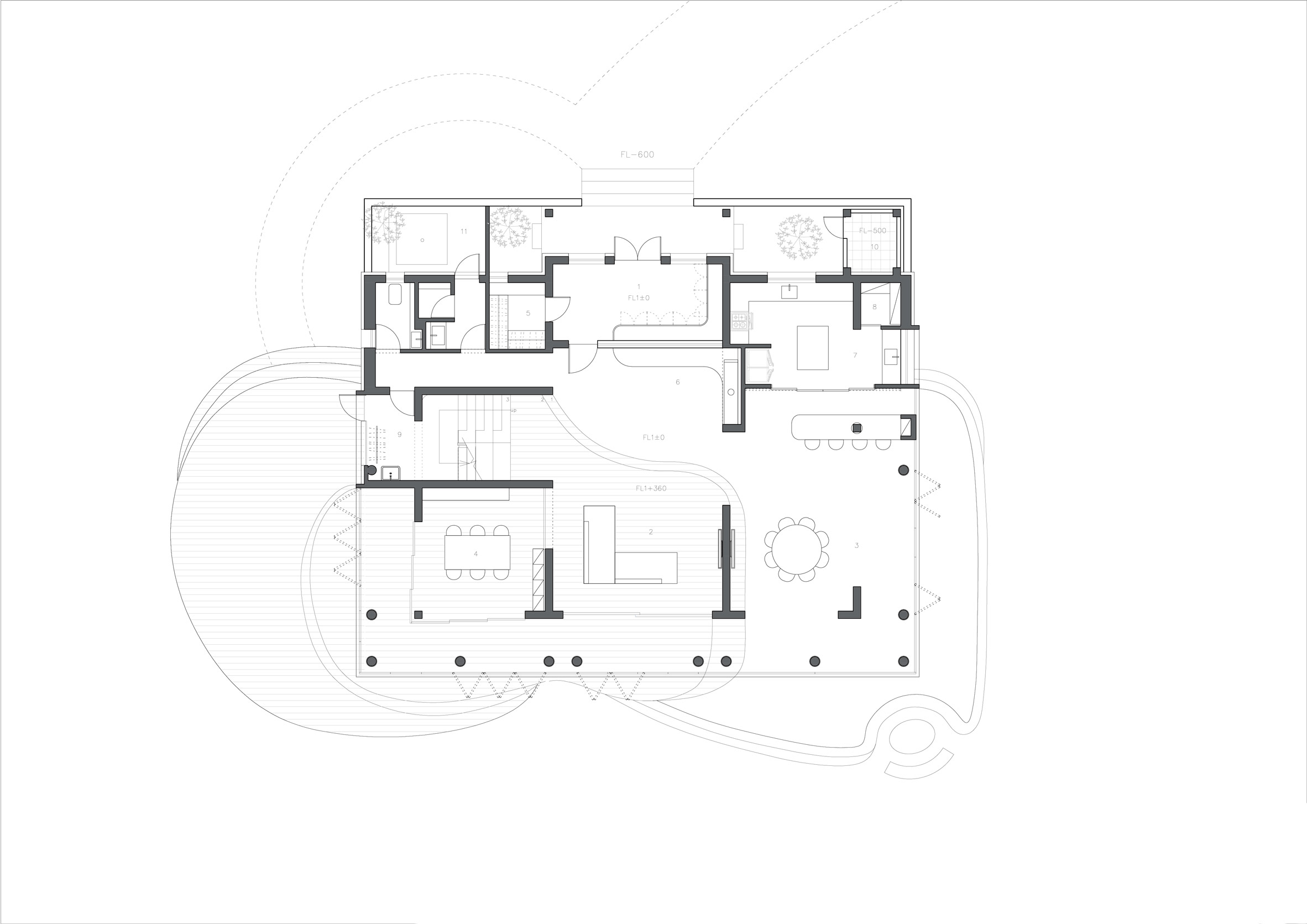
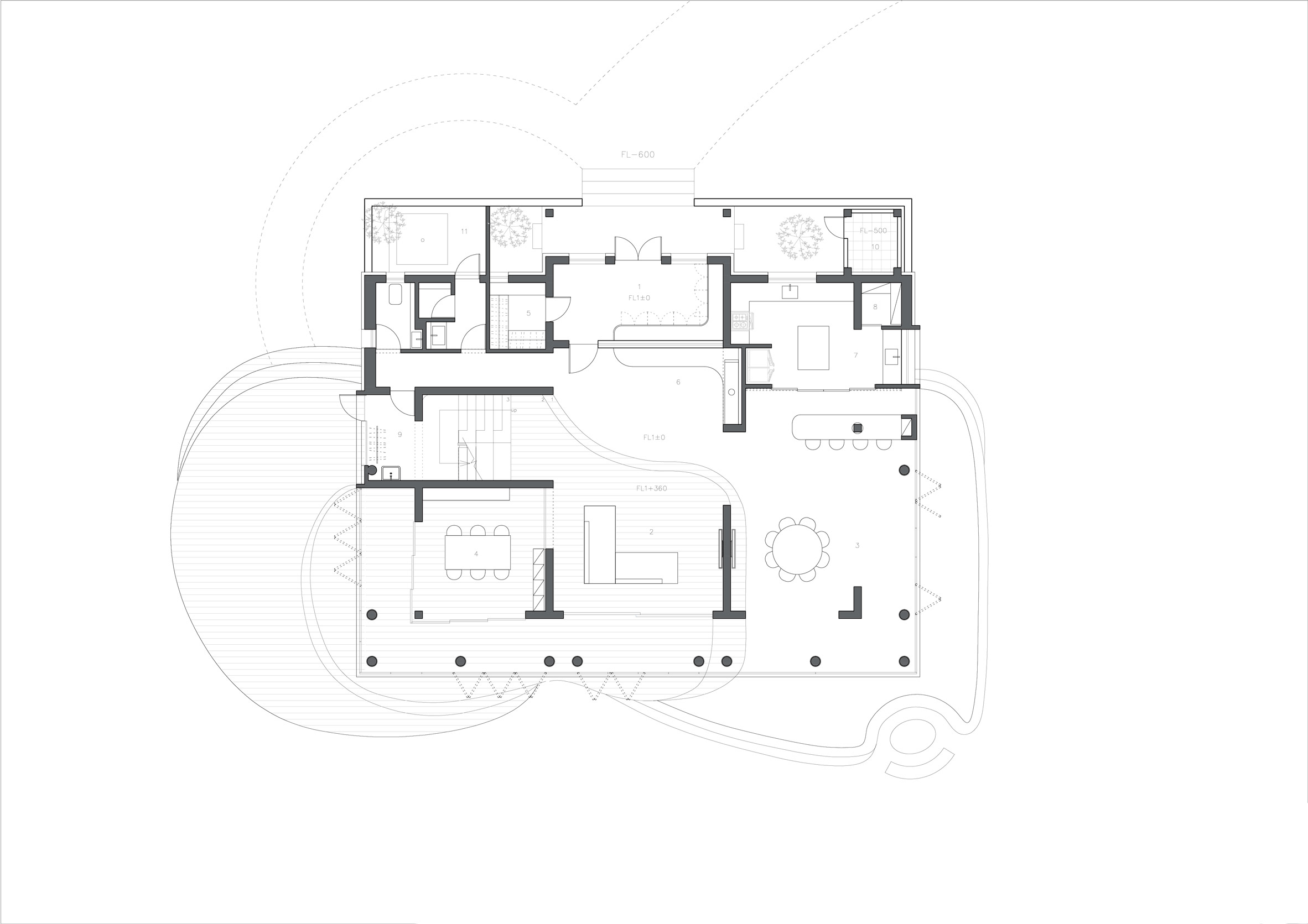
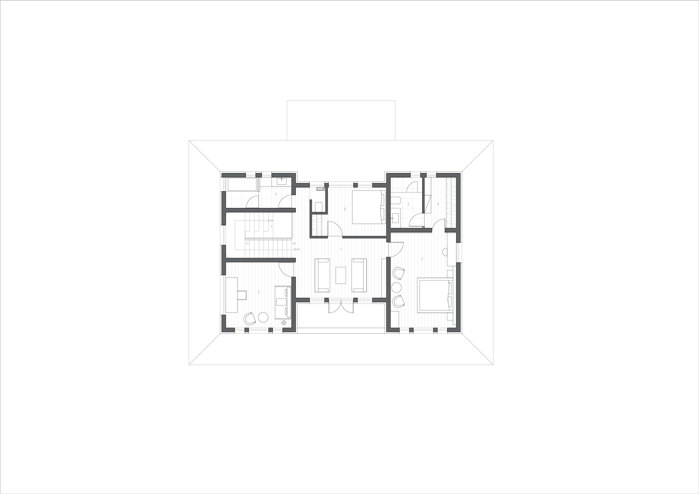
The large site north of Beijing was originally occupied by a 200-square-metre European style home, which has been stripped back to create the simple and geometric form of the Anna Garden House.
"We decided to re establish the relationship between the house and the land, linking the house and the garden at the lower level through graceful landscape design," said Kiki Archi.
"Without fussy eaves, tiles and window edges, the house returns to its original form, showing the appearance of simplicity and honesty."
The H-shaped plan of Anna Garden House features two gabled forms on either side of a ground floor living area. These open to the garden via large areas of glazing and perforated-brick walls that surround the original porch.
The garden covers an eight metre height difference and is traversed by a series of large, curved steps that continue into the home, intended to blur the boundary between inside and out.
"In order to create a relaxed living atmosphere, large areas of glass folding doors enclose the existing verandahs on the ground floor, which brings in plenty of sunlight and allows the residents to enjoy nature," said the studio.
"At the same time, the landscaped elements of the curved staircase in the garden are continued in the interior space," it added.
from dezeen
'House' 카테고리의 다른 글
| *히든 가든하우스 [ TRIAS ] HIDDEN GARDEN HOUSE_AN AUTHENTIC OASIS (0) | 2022.08.18 |
|---|---|
| *자연에 가까워지는 집 [ munarq ] Ca S’Alou (0) | 2022.08.12 |
| *지속가능한 공동주거 [ Najas Arquitectos ] Vivalto Building (0) | 2022.08.10 |
| *풀장집 [ Wallflower Architecture + Design ] The Water-Cooled House (12) | 2022.08.09 |
| *풀장가득한 집 [ MIDE architetti ] House With a Pool (0) | 2022.08.05 |


