
![]() |
![]() |
![]() |
MIDE architetti-House With a Pool
자연을 따라간다. 대지의 형상을 따라간다. 그렇게 긴 건축물이 만들어지고, 형태 또한 기능을 위해 단순한 디자인으로 완성된다. 건물의 한쪽에는 내부공간과 짝을 이루는 외부공간이 위치하고, 풀장이 거기에 함께한다. 넓게 열린 창문을 통해 소통하고 채광을 유지한다.





























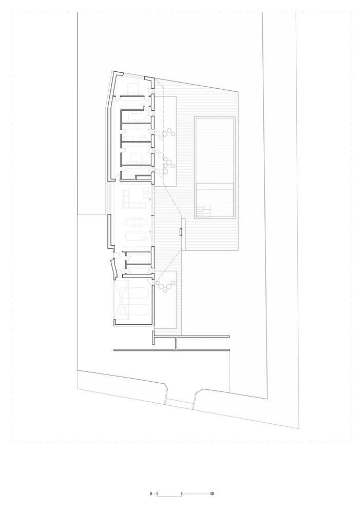
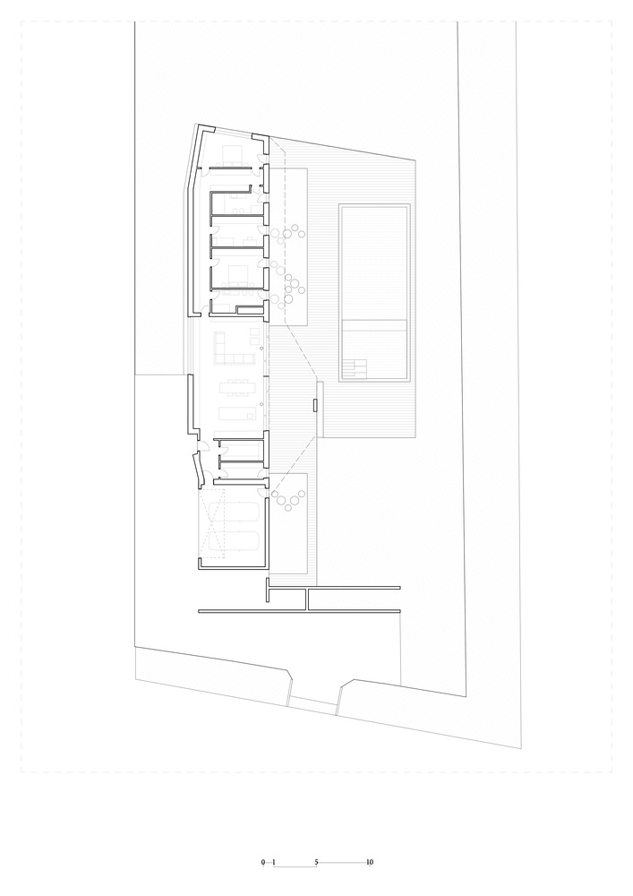
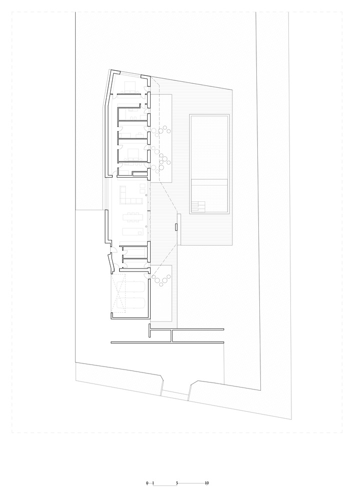
The building is located in Vigodarzere, a small town close to Padua. The design challenge is dictated here by the particular shape of the intervention lot: a long strip of land about 30 meters long that develops on the north-south axis. The house follows the shape of the lot, developing on a single floor with a pitched roof.
In this project, all the construction principles have been studied in order to bring the observer's gaze back to simple and clean lines through concealed, flush, or coplanar elements. The building is strongly characterized by the essential design of the structure.
The extreme simplicity of the plan contributes to significantly improving functionality, minimizing the space destined for corridors and thus making the best use of the surfaces available in favor of the most important rooms in the house.
The high visual permeability and the generous contributions of natural lighting characterize all the interior spaces: the large glass openings provided in the living area allow a relationship of continuity between inside and outside. In order to create a connecting porch between the living area and the swimming pool, the roof undergoes a controlled expansion, following its natural inclination.
from archdaily
'House' 카테고리의 다른 글
| *지속가능한 공동주거 [ Najas Arquitectos ] Vivalto Building (0) | 2022.08.10 |
|---|---|
| *풀장집 [ Wallflower Architecture + Design ] The Water-Cooled House (12) | 2022.08.09 |
| *60대 부부를 위한 가든하우스 [ Obara Ayako Architects ] House in Hirakata (0) | 2022.08.04 |
| *프리캐스트 콘크리트 사각터널로 만든 집 [ nendo ] Culvert Guesthouse (0) | 2022.08.02 |
| *빛을 가득, 박공지붕 [ Airhouse ] House in Yokohama (0) | 2022.07.26 |


