
![]() |
![]() |
![]() |
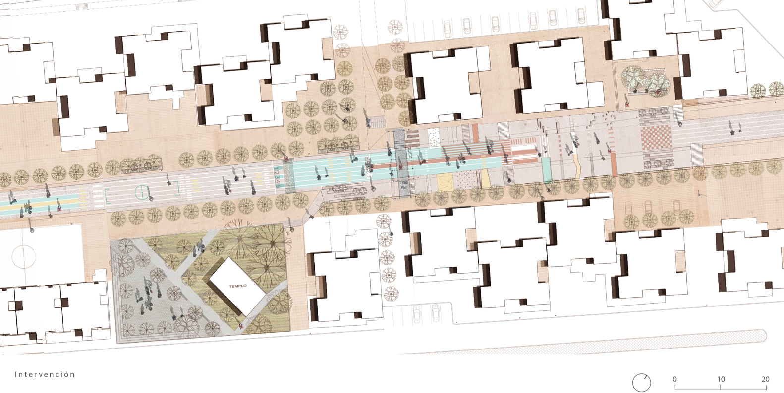
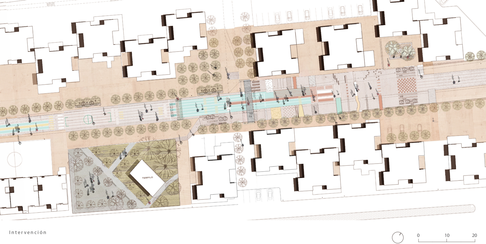
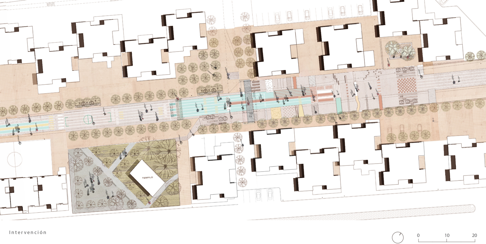
Rozana Montiel | Estudio de Arquitectura + Alin V. Wallach-Parque Fresnillo
방치된 플랙워터 운하를 도시 인프라에서 마을 소셜스페이스로 환원하는 프로젝트. 운하에는 접근이 불가능한 다리가 있었고, 그것을 이용하여 새로운 소통의 창구로 변화를 시도 하였다. 휴식공간, 공연장, 놀이공간과 같이 다양한 공용공간으로 사용한다.















"We recycled a paved blackwater canal and turned it into a leisure plaza inside a housing unit in Fresnillo, Zacatecas. The canal had an inaccessible bridge blocking it. We had the idea of making something more than a bridge, resulting in a universally accessible connection with integrated toys and a terrace below, transforming the space into a meeting place with night lighting. We also rebuilt the canal slopes to function as a rest area, a venue and a play area with stairs and embankments. The bridge, floor and slopes that we designed have a multifunctional program."
Reciclamos um canal pavimentado de águas negras e o transformamos numa praça de lazer dentro de uma unidade habitacional em Fresnillo, Zacatecas.
O canal tinha uma grande barreira: uma ponte inacessível que bloqueava o canal, trabalhamos com a ideia de fazer algo mais que uma ponte, tendo como resultado uma conexão universalmente acessível com brinquedos integrados e uma esplanada abaixo, transformando o espaço num lugar de encontros e com iluminação noturna. Também reconstruímos as ladeiras do canal para que funcionassem como uma área de descanso, um foro e uma área de jogos com escadas e taludes. A ponte, o piso e os declives que desenhamos estão equipados com um programa multifuncional.
O novo espaço melhorou a qualidade de vida no complexo habitacional, mudamos a cor dos edifícios, dando a impressão aos moradores de que se mudaram de lugar, criando a sensação de um novo começo, o que fez com que a violência diminuísse. Reciclar a infraestrutura existente transformou uma cicatriz urbana num horizonte atraente: a paisagem urbana se converteu no programa.
from archdaily
'Landscape' 카테고리의 다른 글
| *와일드 마일드 [ Skidmore, Owings & Merrill + Urban Rivers ] Wild Mile (0) | 2023.03.31 |
|---|---|
| *채석장의 변신 [ DnA ] Quarry No. 8: Book Mountain (0) | 2023.03.30 |
| *원 그린 마일 [ MVRDV ] One Green Mile (0) | 2023.03.22 |
| *퍼블릭스페이스 Emergent Vernacular Architecture (EVA Studio)-Tapis Rouge public space in an informal neighborhood in Haiti (0) | 2023.03.20 |
| *클라우드 11 [ snohetta ] Cloud 11 (0) | 2023.02.28 |


