
![]() |
![]() |
![]() |
Architectus S/S-Rachel de Queiroz Park
Rachel de Keiroz 공원 프로젝트는 도시의 홍수 보호 구역의 일환으로 배수 시스템을 구조적으로 채택한다. 습지 기술은 리아초 카초이리냐의 수질을 개선하고 홍수 감쇠 시스템을 만드는 데 적용된다. 다양한 여가활동을 지원한다. 걷기, 달리기, 야외 체육관, 자전거, 축구, 배구































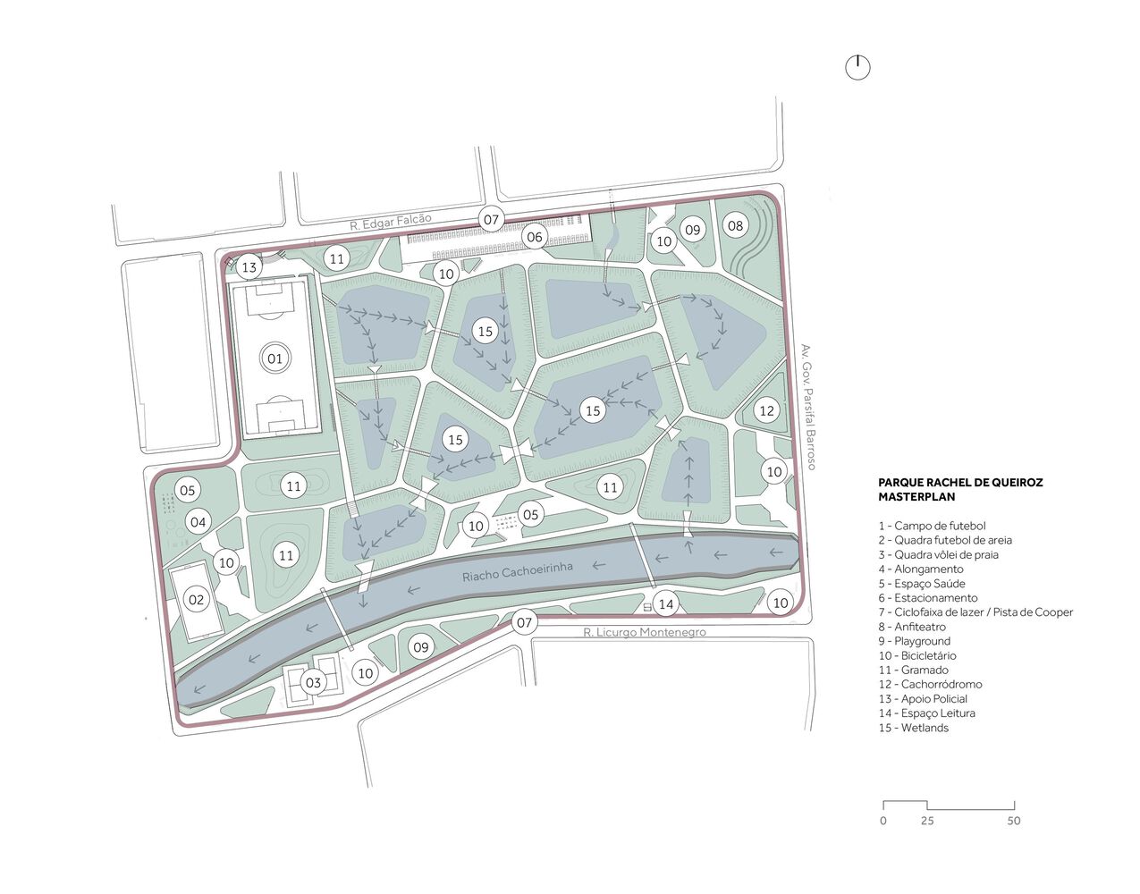
In the early hours of the morning, the movement begins. Regulars in gym clothes choose to start the day by practicing some kind of physical activity. Walking, running, outdoor gym, biking, soccer, and volleyball are just some of the options available. All this takes place on the shores of nine interconnected lagoons, the wetlands. This is just a brief summary of what can be found in the first stage of the Parque Rachel de Queiroz project.
With 10 km in length and about 203 hectares, when completed the park will be the second largest in Fortaleza/CE. Its great extension is the main reason for the division of the area into 19 sections, six of which have already been executed. The project adopted the design concept of a linear park, using the existing road system as a connection between the green areas that cut directly through eight neighborhoods in the west area of the city.
Recently opened, the sixth section of the park was designed to recover a degraded area that for many years was a cause of concern for the local population. The site, the largest project area available for intervention, was previously a vacant lot taken over by irregular garbage dumps and clandestine sewage. This situation contributed to aggravating the pollution of the Riacho Cachoeirinha, a water resource that cuts through the lot and structures the largest area of the park. In addition, it caused frequent flooding due to the overload in the rainwater drainage system, a direct result of the region’s intense densification process and the consequent reduction of permeable areas in its surroundings.
Occupying one of the city’s flooded preservation areas, the Parque Rachel de Queiroz project adopted the drainage system as a structural element. The wetland technique was used to improve the water quality of the Riacho Cachoeirinha, as well as to create a flood dampening system. After intensive hydrological studies, nine interconnected ponds were proposed to perform a natural water filtering process through decanting and phytoremediation. This process is conducted by microorganisms fixed both on the surface of the soil and on the roots of aquatic plants in the ponds.
from archdaily
'Landscape' 카테고리의 다른 글
| *에코파크 [ SIURA Studio ] ebet Eco Park (0) | 2023.08.24 |
|---|---|
| *랜드스케이프 파크 [ Atelier Let's + JR Architects ] Nanhua Glimmer Park (0) | 2023.04.05 |
| *와일드 마일드 [ Skidmore, Owings & Merrill + Urban Rivers ] Wild Mile (0) | 2023.03.31 |
| *채석장의 변신 [ DnA ] Quarry No. 8: Book Mountain (0) | 2023.03.30 |
| *마을을 위한 운하 [ Rozana Montiel | Estudio de Arquitectura + Alin V. Wallach ] Parque Fresnillo (0) | 2023.03.27 |


