
![]() |
![]() |
![]() |
Eileen Gray -E.1027 Villa
모더니스트 마스터피스 빌라
26년에 시작, 29년에 완공된 e.1027은 건축적 사고의 급격한 변화의 시기에 등장했다. 모던건축의 흐름이 한창 진행중이었으며, 과거의 스타일에서 벗어나 기능성과 새로운 소재에 집중하는 시기였다. 뛰어난 가구 디자이너였던 에일리 그레이는 자신의 혁신적인 아이디어를 건축으로 확장하여 E.1027을 설계했다.




























Built between 1926 and 1929, E.1027 emerged during a period of radical change in architectural thinking. The Modern Movement was in full swing, advocating for a break from historical styles and a focus on functionality and new materials. Eileen Gray, an accomplished furniture designer, extended her innovative ideas to architecture with the creation of E.1027.
The name “E.1027” itself is a cipher, representing the intertwined initials of Eileen Gray and Jean Badovici, with numbers corresponding to their positions in the alphabet.
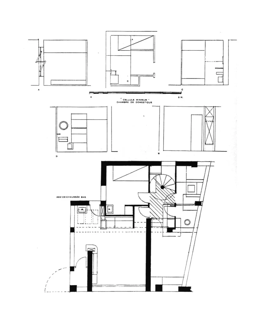
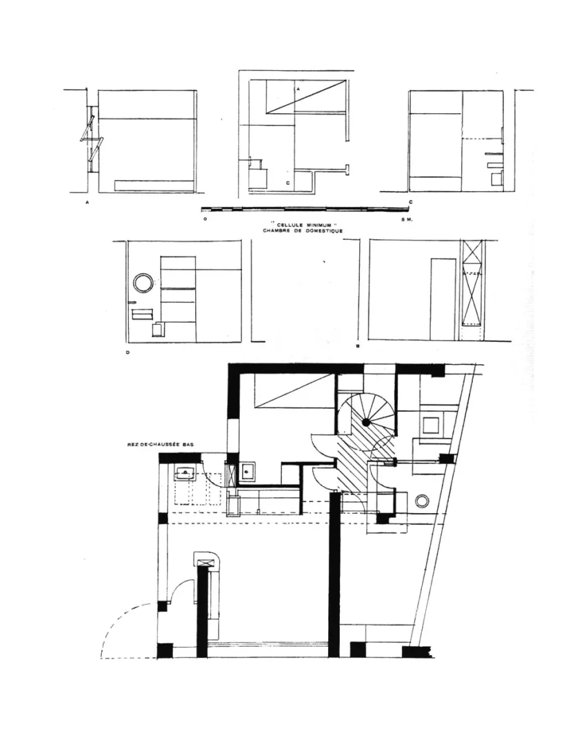
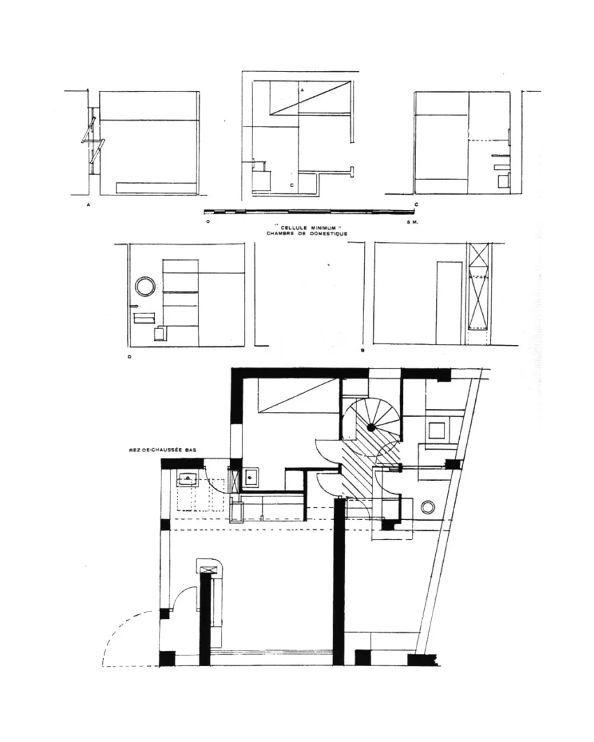
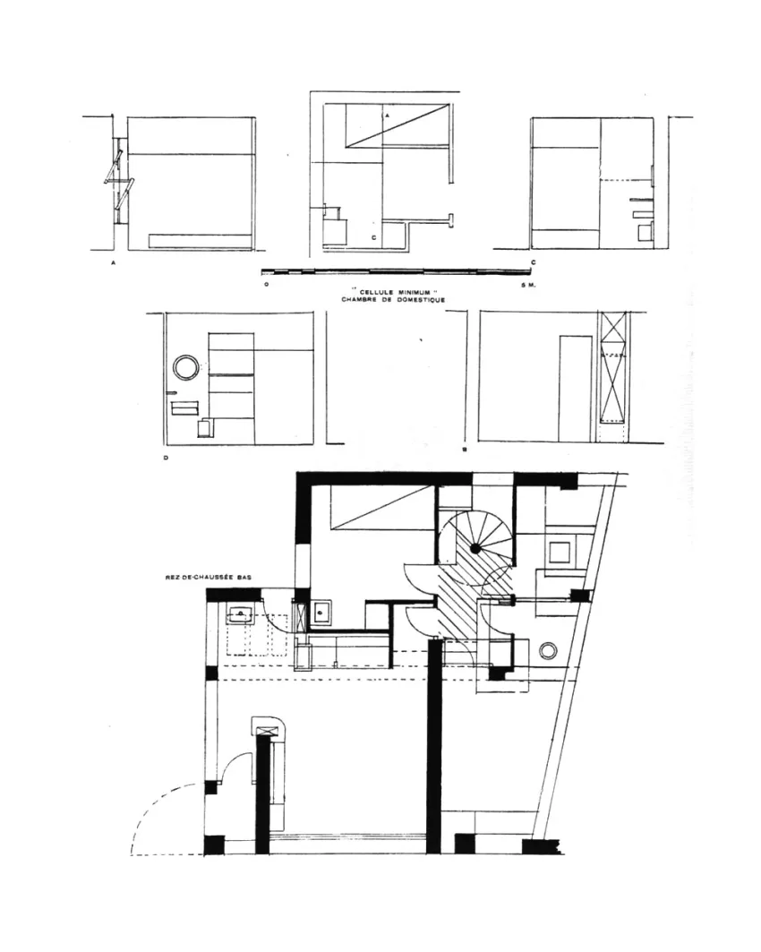
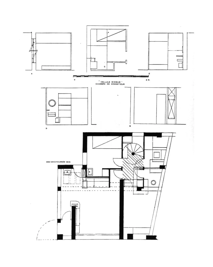
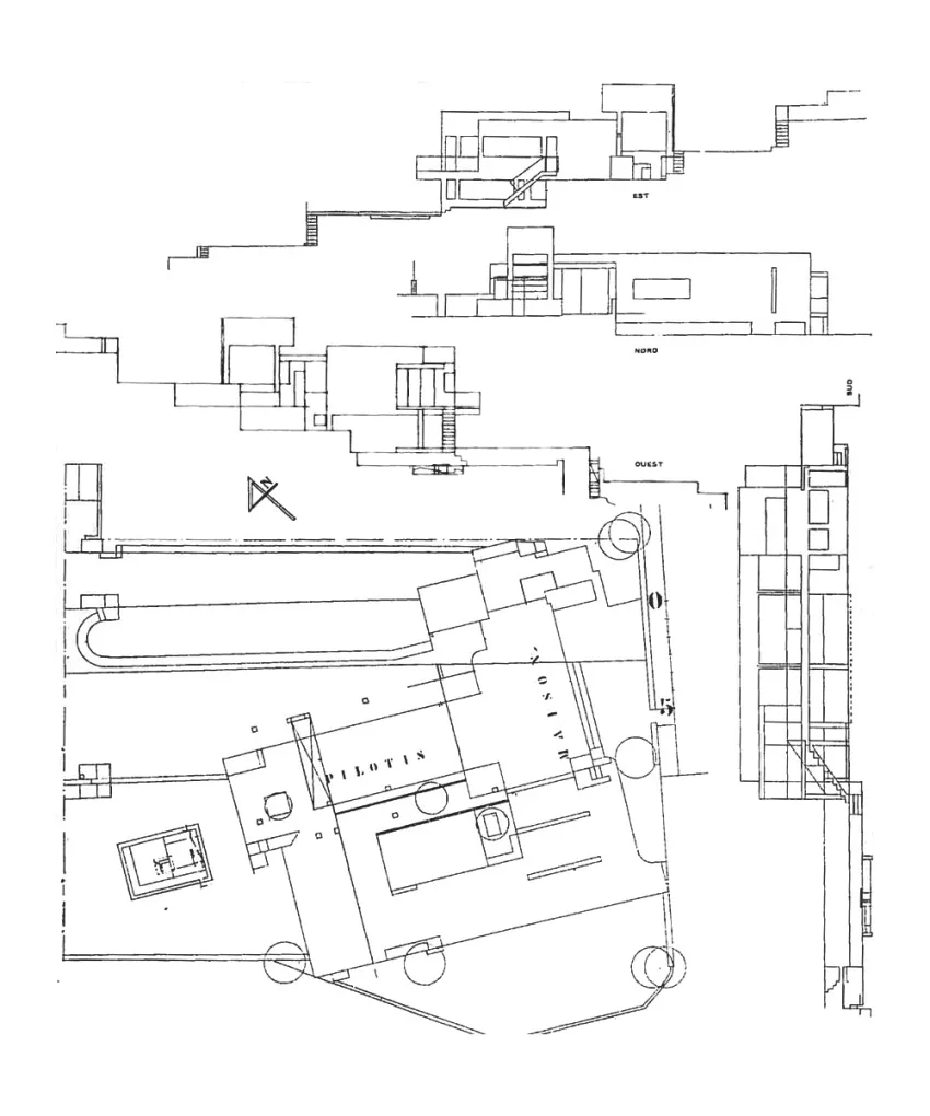
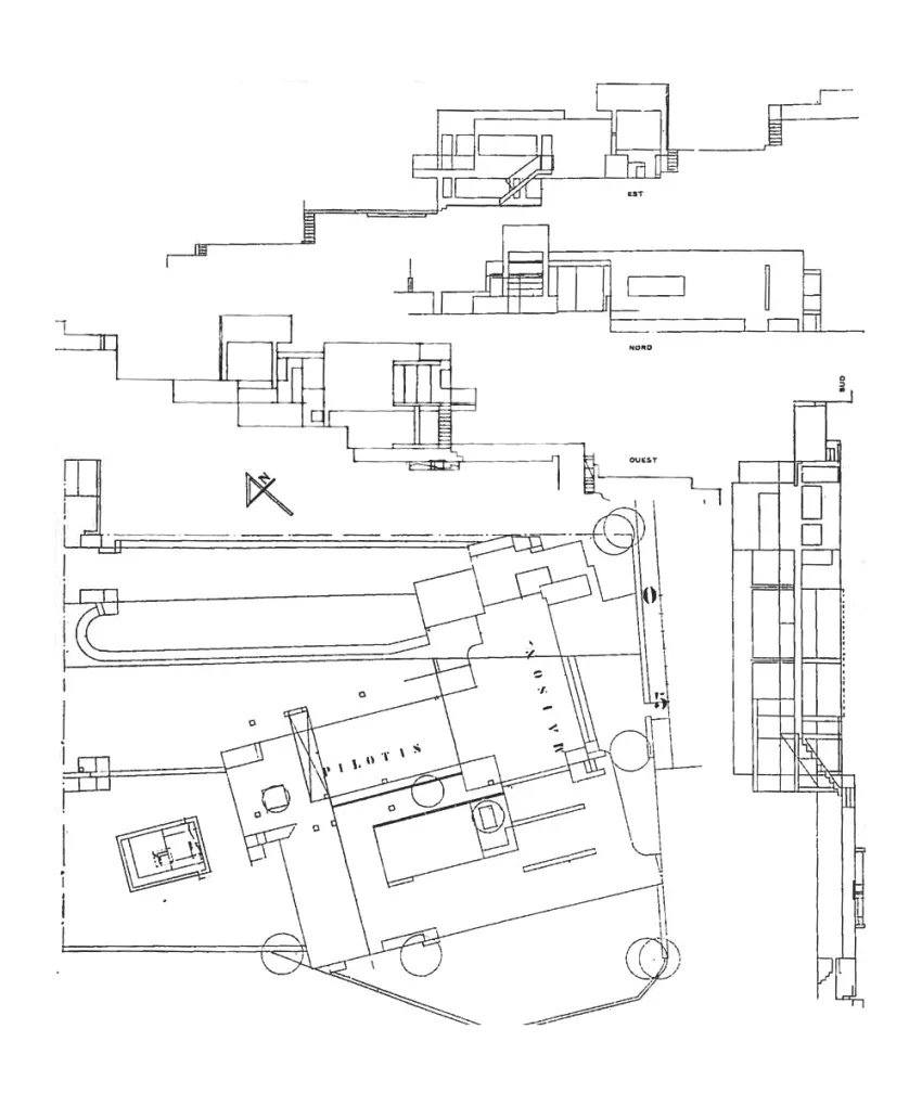
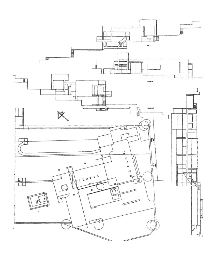
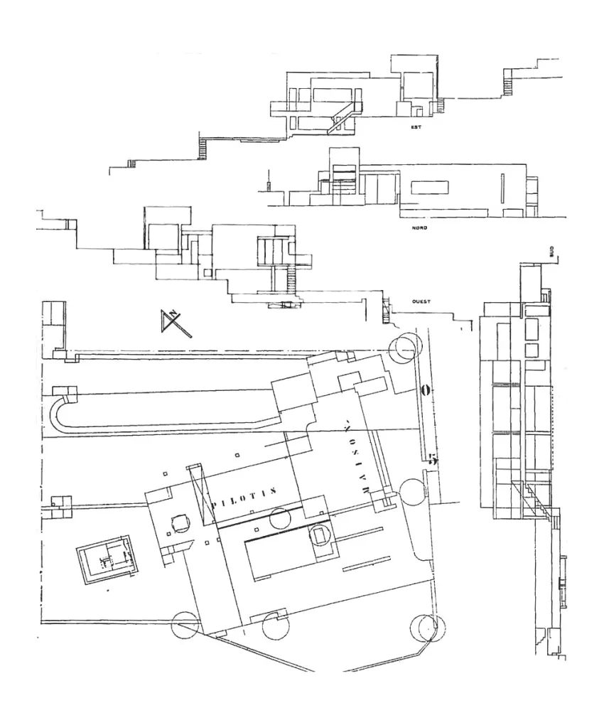
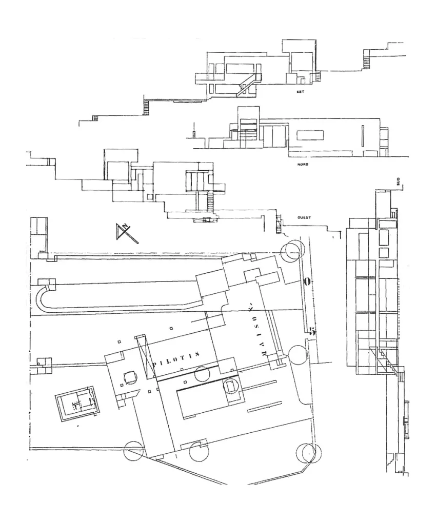
The house stands on stilts, a strategy to cope with the site’s rocky terrain while also allowing for stunning sea views. Its open plan and extensive use of glass provide a connection between interior and exterior spaces, blurring the boundaries between nature and the human-made environment.
The main living areas are organized around a central axis, with private spaces tucked away. Gray’s meticulous attention to detail is seen in the custom designed furniture, innovative use of materials, and clever storage solutions. Every element was carefully considered to create harmony and efficiency.
The house is also rich in symbolism, with maritime themes and specific color choices reflecting both a connection to the Mediterranean Sea and Gray’s personal aesthetics.
The Essence of E.1027: Interior Design, Furniture, and Lasting Influence
E.1027’s interior design was a groundbreaking synthesis of form and function. Gray’s meticulous approach led to spaces that were not only aesthetically pleasing but designed with human interaction in mind. She was a pioneer in understanding how people would use the space, ensuring that each element had a practical purpose.
The layout allowed for free movement and a seamless connection between spaces. Gray’s use of pivoting wall panels and built in furniture made the rooms versatile and adaptable. These innovative features, combined with careful material choices, made E.1027 a living piece of art.
Gray’s talents as a furniture designer were evident in the bespoke pieces created specifically for E.1027. Her E 1027 adjustable table and Bibendum Chair are now iconic designs in their own right. She believed that furniture should be “an extension of human limbs and adapted to human movements.” This philosophy led to creations that were both elegant and ergonomic.
Her use of materials such as tubular steel reflected the industrial age, while her refined sensibilities made these pieces timeless. Gray’s work in E.1027 demonstrated that functional furniture could also be extraordinarily beautiful.
The restoration of E.1027 was a complex process that required detailed research and careful execution. Alterations made by previous owners, including Le Corbusier, had to be undone to restore Gray’s original vision. The restoration shed light on Gray’s innovative techniques and provided a renewed appreciation for her work.
The process was not without controversy, with debates over the extent to which the house should be restored to its original state. However, the restoration has allowed E.1027 to be experienced as Gray intended, and the house is now open to the public.
E.1027 continues to inspire architects and designers around the world. Its principles of functionality, adaptability, and human centered design are as relevant today as they were in the 1920s. Gray’s vision for E.1027 transcended architectural trends, resulting in a design that remains fresh and engaging.
The story of E.1027 and Eileen Gray is one of resilience, creativity, and the timeless appeal of well designed space. It stands as a tribute to the potential of architecture to enhance our lives and challenge our perceptions of what is possible. In E.1027, Eileen Gray’s genius resonates across generations, affirming her place as one of the true visionaries of the architectural world.
from archeyes
'House' 카테고리의 다른 글
| *와이너리 하우스 개조 [ Studio Jil Bentz ] Domaine Claude Bentz (0) | 2023.08.30 |
|---|---|
| *교토 우드 미니멀 하우스 [ RYUE NISHIZAWA ] SHOCHIKUCHO HOUSE IN KYOTO (0) | 2023.08.29 |
| *미니멀리즘 [ Knight Associates ] Lonely Melrose (0) | 2023.08.21 |
| *빈티지 하우스 [ balbek bureau ] Relogged House (0) | 2023.08.17 |
| *제트하우스 [ Light and Air ] Z House (0) | 2023.08.15 |


