
![]() |
![]() |
![]() |
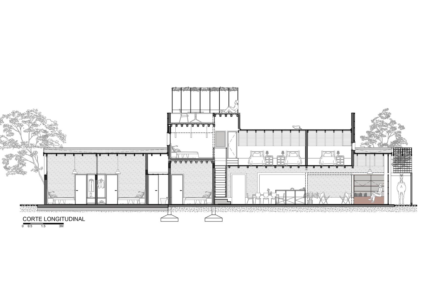
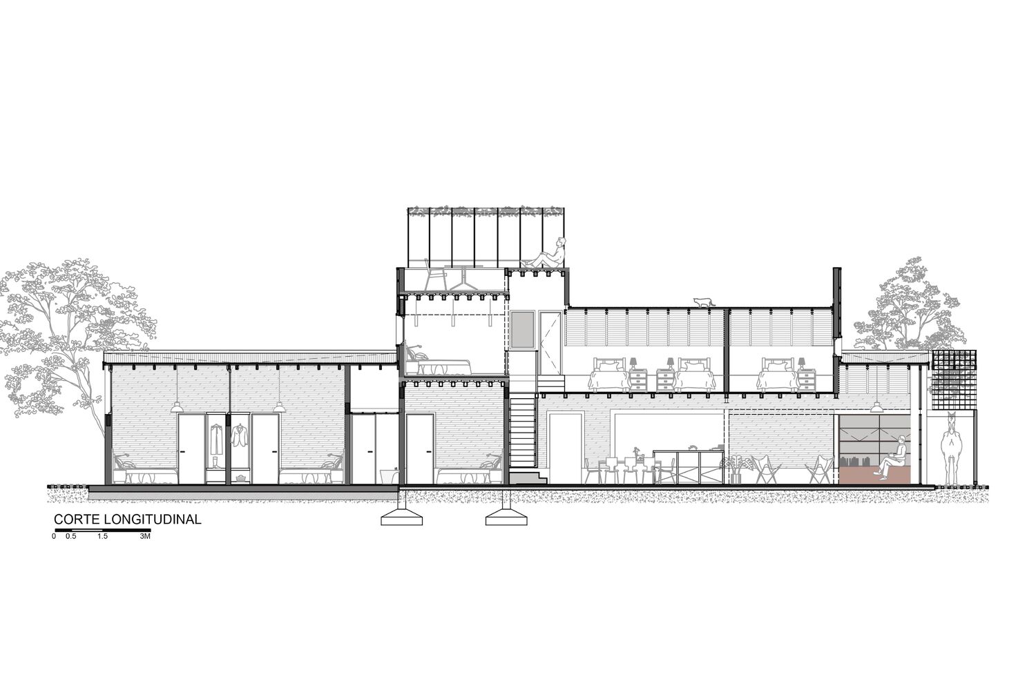
DRM Arquitectura-Country House in Pila
부에노스 아이레스에서 200킬로미터 떨어진 필라시 근처의 작은 시골마을에 자연과 교감하는 주택프로젝트가 준공되었다. 건축주의 다양한 요구조건을 충족시키기 위해 기존 건축물을 새롭게 리노베이션 한다. 새로운 생활패턴, 가족증가, 가족모임, 업무회의, 휴가 등 다양한 요구조건 수용을 위해 진행되었다.

































200 km from the city of Buenos Aires in a rural environment near the city of Pila, the commission for the renovation of a small house in the vastness of the Pampas plain arises.
The field called "El Basson" dedicated to agricultural livestock activities, and above all linked to a recreational space for the family residing in the city, defines its boundaries with the Salado River, Route 41, and other neighboring fields.
The house had to be transformed to respond to new patterns of use, family growth, family gatherings, work meetings, vacations, etc. Likewise, it was pertinent to intervene in all the elements that were part of the field, such as the mill, A tank, lagoon, bonfire, and afforestation, in a general renovation and conditioning plan.
All the spaces had been designed, constructed, and inhabited by relatives who were no longer present. Understanding that all these preexisting elements had a great symbolic charge and were part of the collective memory of the family, the strategy was always to connect to the site while preserving the preexisting elements and using them as a manual of solutions to generate the new architecture. In this way, the repertoire of solutions would always be inspired and connected to the memory and moments lived in that place, "The Family's Field".
from archdaily
'House' 카테고리의 다른 글
| *본 내츄럴 [ Bernardo Chavez Peón ] Los Durmientes (0) | 2023.11.08 |
|---|---|
| *텐트 루프라인 [ Kettőpera Stúdió ] A15 Villa (0) | 2023.11.07 |
| *코르텐강 오두막 Omar Gandhi lifts Corten cube for cabin in Nova Scotia (0) | 2023.11.03 |
| *최소한의 집 [ Equipo de Arquitectura ] Small House in San Ber (0) | 2023.10.30 |
| *동굴동굴 [ Olgooco ] The Inside Home (0) | 2023.10.27 |


