
![]() |
![]() |
![]() |
I/O architects-DOT Sofia
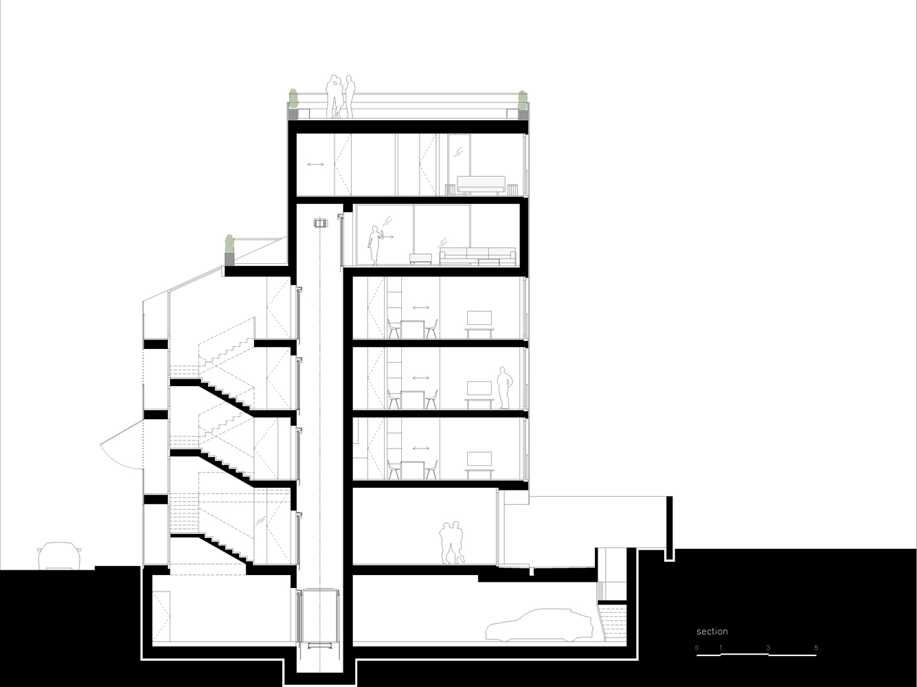
소피아의 분주한 시장거리에 위치한 건물은 두개의 볼륨으로 이루어져 있다. 각자 다른 방향에서 얼굴과 스케일 그리고 전망을 구성한다.
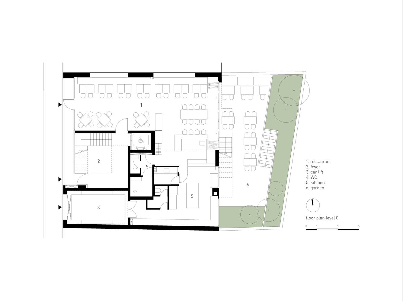
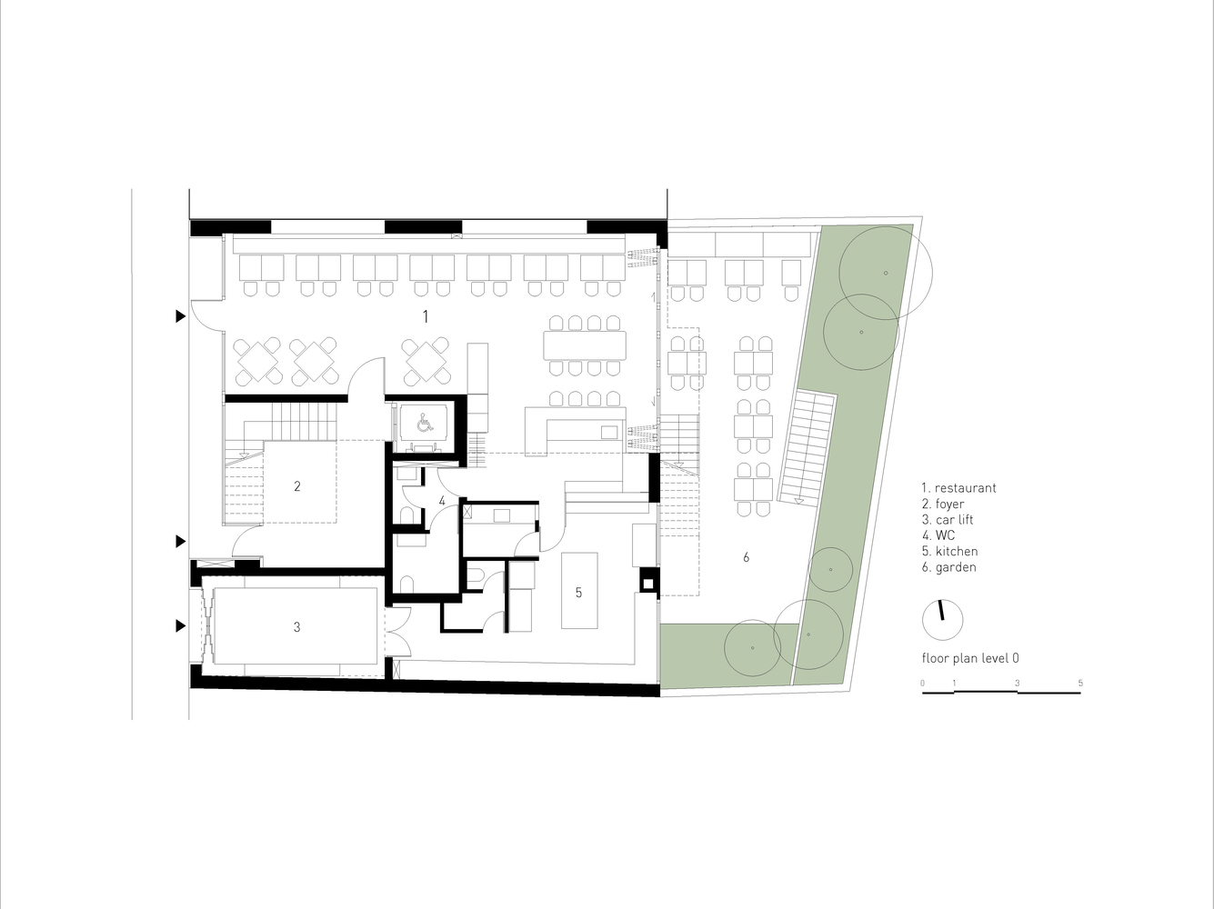
비어진 도시공간 구조 속에 문화공간을 삽입한다. 현대미술과 이벤트공간 그리고 시그니처 레스토랑을 통해 이곳에 활력을 불어 넣는다.
내후성강판이 적용된 외관은 시장생활의 역동적인 모습을 오래시간동안 담는 바탕의 이미지로 제안되었다.



























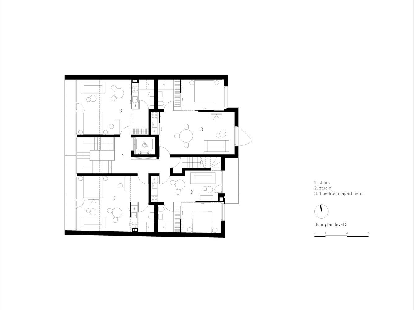
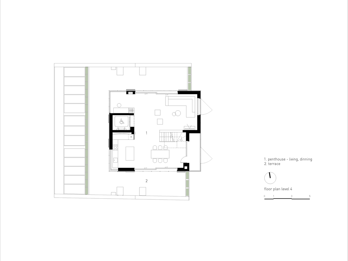
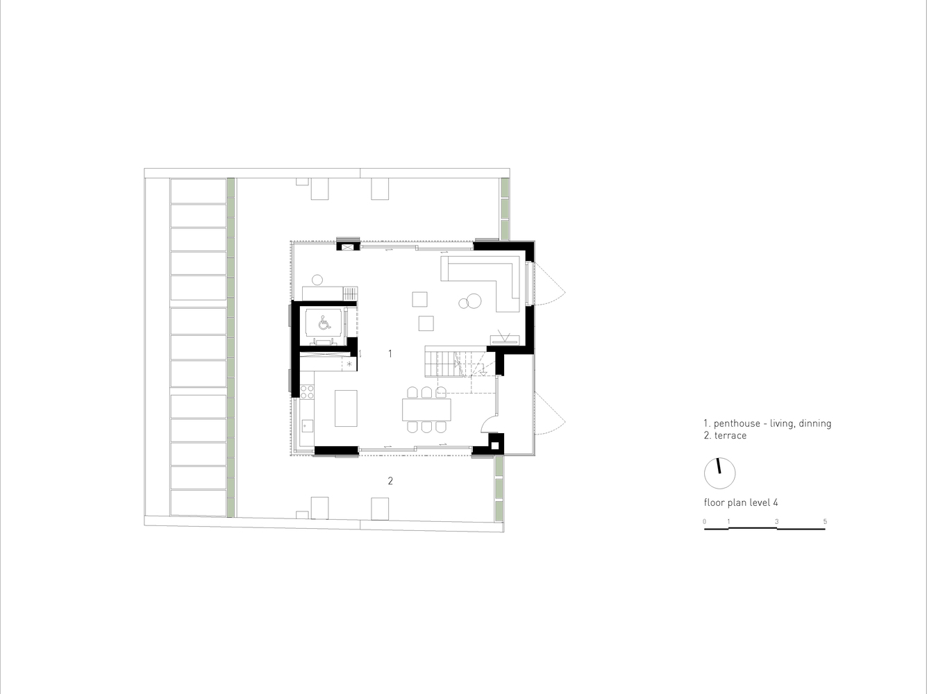
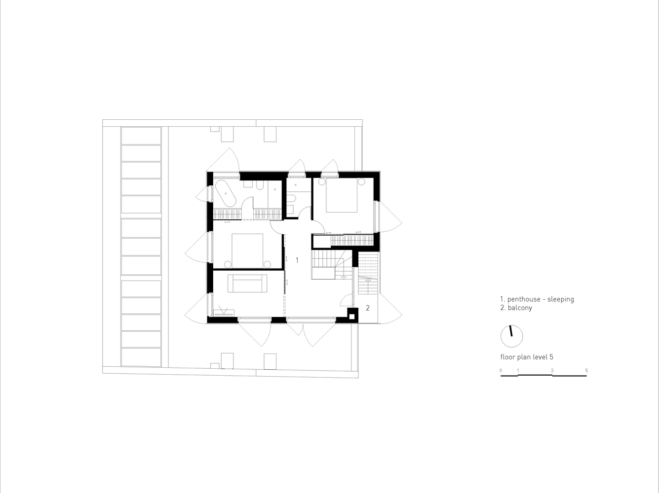
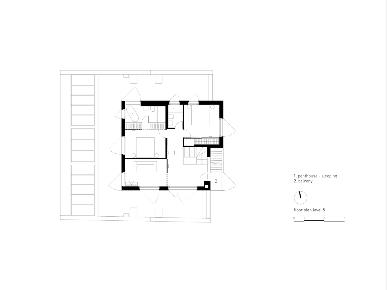
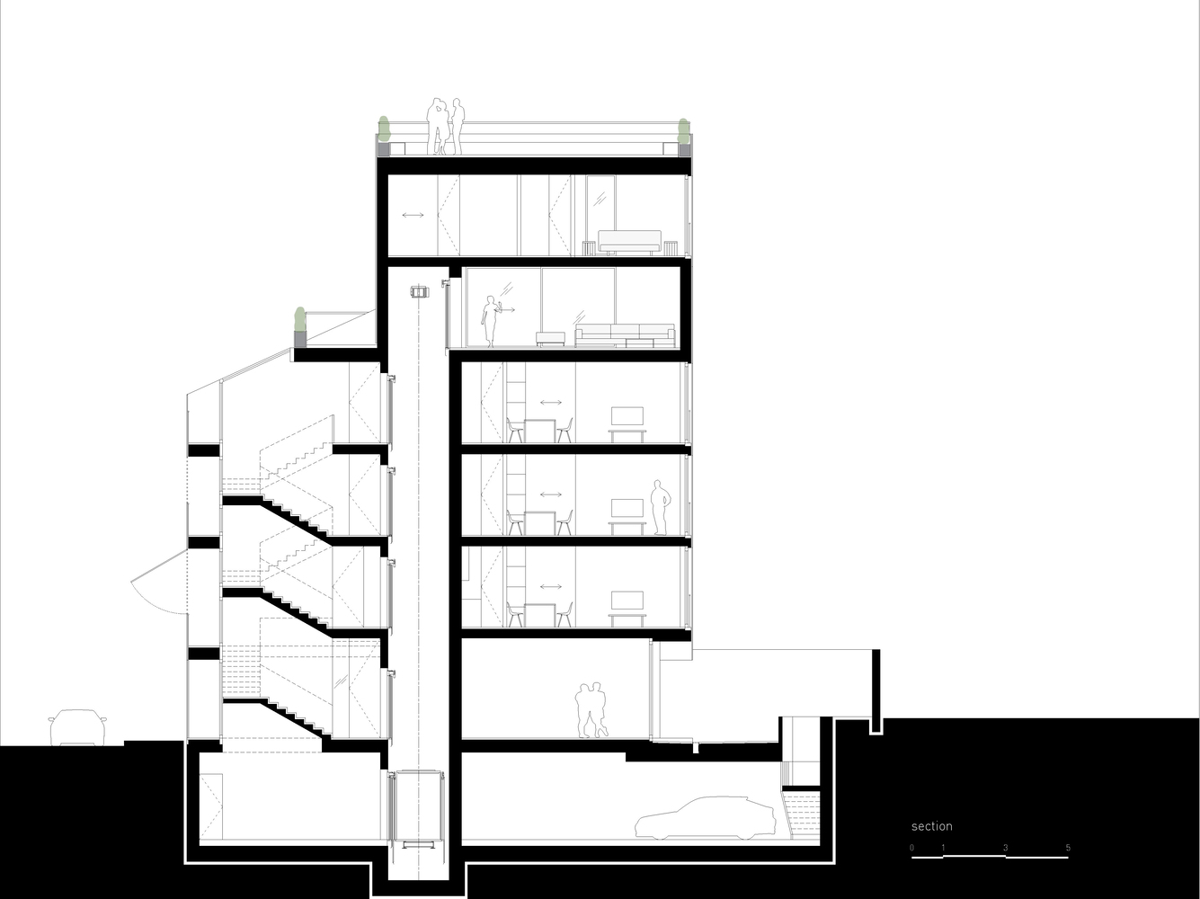
Embedded in the urban complexity of the biggest street market in Sofia the simple two volume structure of the DOT Sofia building manifests unexpectedly different faces and scales from the possible viewpoints.
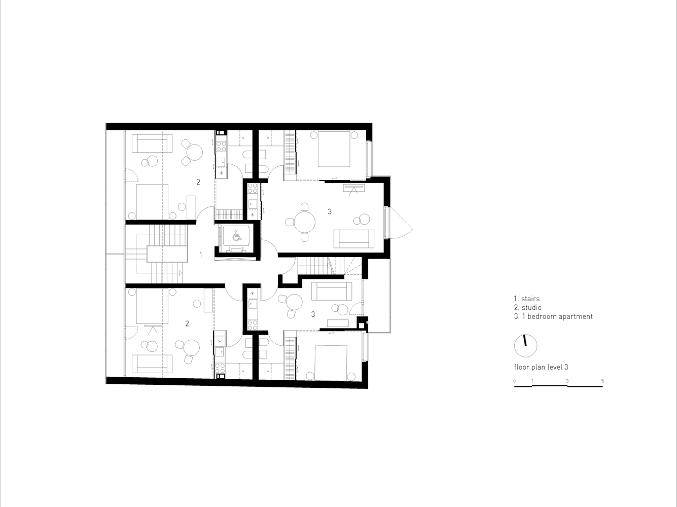
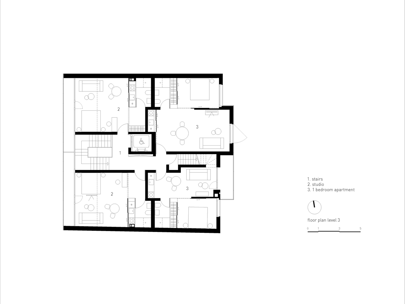
The hybrid program of intertwined contemporary art and events space; signature restaurants and designed urban living are injected into the rather neglected historic heart of the city with the clear ambition to redirect its inevitable transformation.
The rusted steel facade preserves the characteristic aged materiality of the area while the dynamics of the oversized shutters follow the rhythm of the market life.
from archdaily
'Culture' 카테고리의 다른 글
| *아트갤러리 [ Various Associates ] Jinghope · Life Aesthetics Community (0) | 2023.12.11 |
|---|---|
| *메모리홀 [ Atelier Deshaus ] Taoyiqiu Memorial (0) | 2023.11.30 |
| *아치콘크리트 [ CCA Centro de Colaboración Arquitectónica ] Community Center (0) | 2023.11.24 |
| *커먼 스페이스 [ NEME Studio Architects ] Common Space (Renovation of Qing Dynasty Paw (0) | 2023.11.10 |
| *타블루 비지터 센터 [ Bovenbouw ] Tabloo Visitor Center (0) | 2023.11.02 |


