
![]() |
![]() |
![]() |
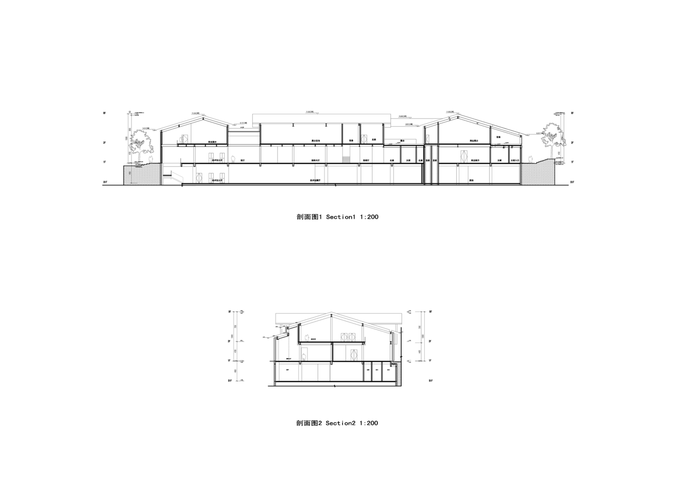
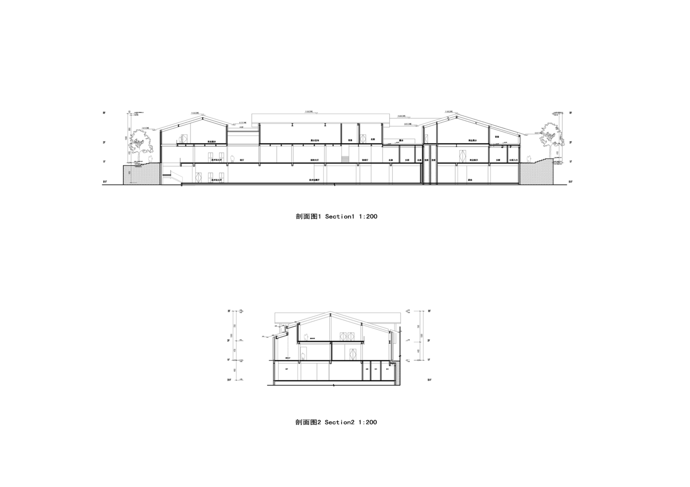
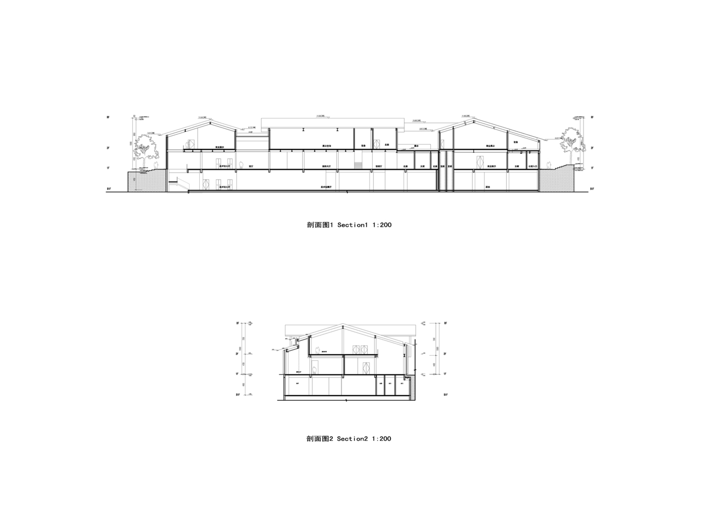
DDB Architects-Anrenfang Heritage Museum and Anren Station
겸손한 역사적 검토 - 세계문화유산에 등재된 작은 기러기 탑, 스자쿠 거리, 장안시 8번가, 시안 박물관은 이 프로젝트의 대상 지역에서 가장 중요한 역사적 맥락과 공간적 규모를 구성합니다. 이러한 복잡한 도시 배경을 고려할 때 겸손은 역사에 대한 우리의 존중을 가장 잘 반영합니다. 유적지의 구조와 도시 기능에 따라 프로젝트는 작은 기러기 탑의 주변 특징과 조화를 이루어야 합니다. 따라서 우리는 작은 기러기 탑과 시안 박물관의 원래 특징을 보존하고 새로운 박물관과 관광 서비스 센터를 보조적인 역할로 옮기는 데 중점을 둔 설계 전략을 수립했습니다. 이 경우 세 건물은 서로 마주보고 이 지역의 역사적, 문화적 맥락에 대응하게 됩니다.
장안 도시 건설의 배경이 된 아이디어에 대한 이해와 분석을 통해 당나라 시대의 주택 개념은 도시, 광장, 안뜰의 순서로 변형되었습니다. 건축 공간의 구성은 유적의 위치를 암시하고, 사각형 벽의 위치를 표시하기 위해 조경 디자인도 추가되었습니다. 모든 형태는 12미터 높이 제한 내에서 질서정연하게 기복이 있는 낮은 프로파일로 도시에서 미묘하게 숨겨지는 방식으로 전체 공간에 통합되어 있습니다. translate by Deepl
































Xi'an, a renowned historical city of thirteen dynasties, boasts rich cultural resources. The Small Wild Goose Pagoda (Jianfu Temple Pagoda), which was built in Anrenfang of Chang'an City in the early Tang Dynasty, is now located within Xi'an Museum. Due to its special geographical location and history of humanity, it has been designated as the historical and cultural area of the Small Wild Goose Pagoda, bearing witness to the city’s long development. In December 2018, Xi'an launched the project called "Comprehensive Renovation of Small Wild Goose Pagoda Historical and Cultural Area", which aims to establish a museum and tourist service center in the Anrenfang heritage site, covering an area of approximately 12,600 square meters. In the overall planning of historic preservation, the design starts from how to deal with the relationship between architecture, historical sites, and the city, to better integrate architecture with urban life, and to recreate the historical features.
A Humble Historical Review - The Small Wild Goose Pagoda (included in the World Cultural Heritage List), Suzaku Avenue and the Eighth Cross Street in Chang’an City and the Xi'an Museum together constitute the most important historical context and spatial volume in the target area of this project. Given such a complex urban background, humility best reflects our respect for history. Based on the fabric and the urban functions of the heritage site, the project needs to coordinate itself with the surrounding features of the Small Wild Goose Pagoda. Therefore, we established a design strategy that centers on preserving the original features of the Small Wild Goose Pagoda and Xi'an Museum and moving the new museum and tourist service center to a supplementary role. In that case, the three buildings will face each other and respond to the historical and cultural context of this area.
Through the understanding and analysis of the idea behind the construction of Chang'an city, the concept of houses in the Tang Dynasty has been transformed into a sequence of city, square, and courtyard. The organization of the architectural space hinted at the location of the ruins, and the landscape design was also added to display where the square walls are located. The shapes are all low-profile, with orderly undulations within the 12 meter height limit, and are integrated into the overall area in a way that subtly hides them from the city.
from archdaily


