
![]() |
![]() |
![]() |
Pierre Koenig-The Stahl House
로스앤젤레스가 한눈에 내려다보이는 할리우드 언덕에 자리한 스탈 하우스는 사례 연구 주택 #22로도 알려져 있으며, 미드 센추리 현대 건축의 모범입니다. 피에르 코닉이 설계하고 1960년에 완공된 이 주택은 건축의 걸작이자 로스앤젤레스의 특정 시대를 상징하는 건물로, 낙관주의와 주거 디자인에 대한 새로운 접근 방식이 특징입니다.translate by Deeple















Perched on the Hollywood Hills with a commanding view of Los Angeles, the Stahl House, also known as Case Study House #22, is a paragon of midcentury modern architecture. Designed by Pierre Koenig and completed in 1960, this residence is an architectural masterpiece and a symbol of a particular era in Los Angeles, characterized by a burgeoning optimism and a new approach to residential design.
A Vision of Glass and Steel
The journey of the Stahl House began in 1954 when Buck Stahl purchased a lot that was considered unbuildable. His vision was clear a home that embraced its surroundings with vast expanses of glass to capture the sprawling cityscape. In 1957, Koenig, known for his proficiency with industrial materials, was commissioned to realize this vision. The result was a structure of steel and glass that was both minimalistic and expressive.
Design and Layout
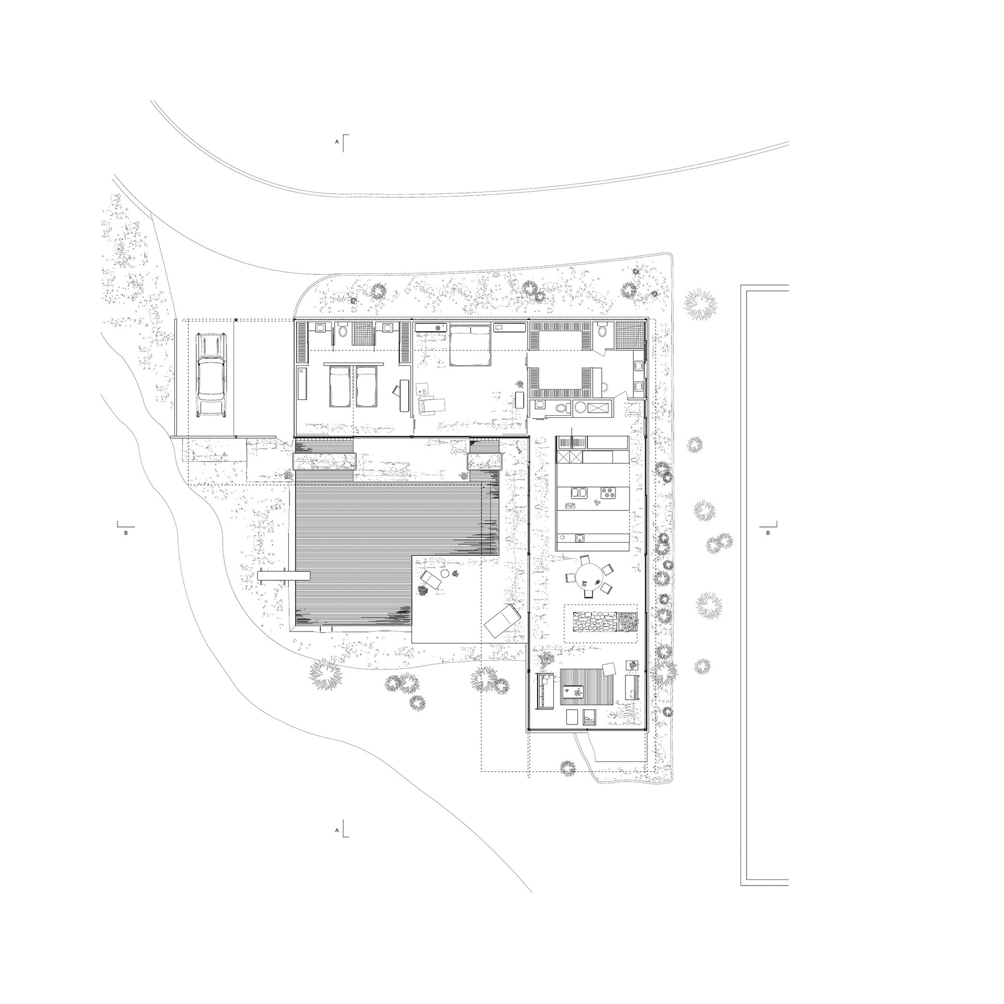
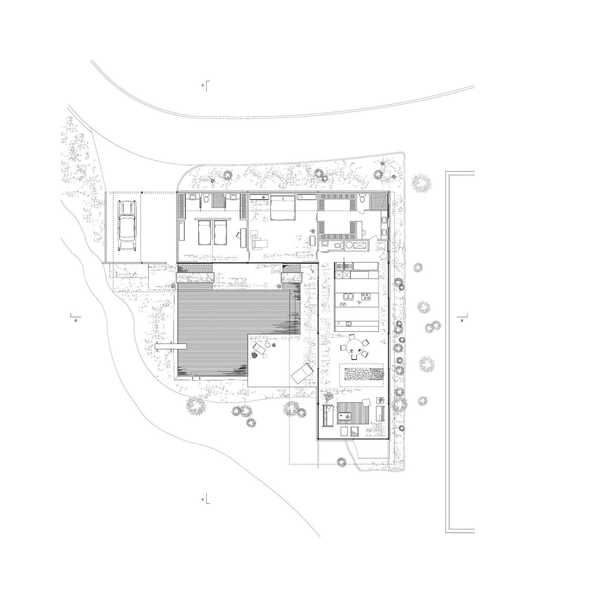
Koenig’s design was a masterclass in the use of industrial materials in residential architecture. The house is distinguished by its “L” shaped plan, separating public and private spaces through a simple yet effective layout. Large, 20-foot-wide panes of glass form the majority of the walls facing the view, offering unobstructed panoramas of Los Angeles.
The design also cleverly incorporates the landscape into the living experience. The swimming pool, positioned between the wings of the house, not only serves as a physical buffer separating the living spaces but also as a visual corridor to the city beyond.
Iconic Status and Architectural Significance
Julius Shulman’s photography cemented the Stahl House’s iconic status. In a series of images that have become synonymous with midcentury modern architecture, Shulman captured the essence of the house. These photographs highlight the house’s integration with its surroundings and open, transparent design.
The Stahl House was included in the Case Study House program, which aimed to reimagine residential architecture post-World War II. Case Study House #22 became an influential model showcasing the possibilities of modernist aesthetics in suburban settings.
Cultural Impact and Legacy
Over the years, the Stahl House has transcended its role as a private residence to become a cultural landmark. It has been featured in numerous films, commercials, and fashion shoots, each time underscoring its timeless appeal and architectural significance.
Despite its fame, the house remains a familyowned property, preserved as the Stahls left it. The family offers tours, allowing architecture enthusiasts to experience the space and its spectacular views firsthand.
Architects1: Pierre Koenig
Location: 1636 Woods Drive, Los Angeles, California, United States
Topics: Mid-Century Modern Houses
Area: 210 m2 | 2,300 ft2
Project Year: 1959-1960
Photographs: Various, See Caption Details





from archdaily
'House' 카테고리의 다른 글
| *클로블리 비치 하우스 [ studioplusthree ] Clovelly Beach House (0) | 2024.05.14 |
|---|---|
| *바르셀로나 공동주택 [ Nook Architects ] B67 Building in Barcelona’s 22@ District (0) | 2024.05.08 |
| *상가주택 [ Jun Igarashi Architects ] House in Hokkaido (0) | 2024.05.03 |
| *망글라 하우스 [ Más que Arquitectura Estudio ] Manglar House (0) | 2024.04.26 |
| *스플릿레벨 가든 [ A Threshold ] In Between Gardens Residence (0) | 2024.04.25 |


