
![]() |
![]() |
![]() |
dunkelschwarz-Schafbergbahn Station
샤프베르크반은 1893년에 운행되기 시작했으며 오스트리아에서 가장 가파른 증기 궤도 철도입니다. 이 노선은 계곡의 생 볼프강에서 샤프베르크 정상까지 이어집니다. 계곡 역은 몇 년이 지나면서 더 이상 관광 사업의 현대적 요구 사항을 충족할 수 없게 되었습니다. 2019년에는 54개 업체가 참여한 가운데 EU 차원의 공개 경쟁 절차가 진행되었습니다. 그 결과 2023년 4월에 프로젝트가 완료되었습니다.
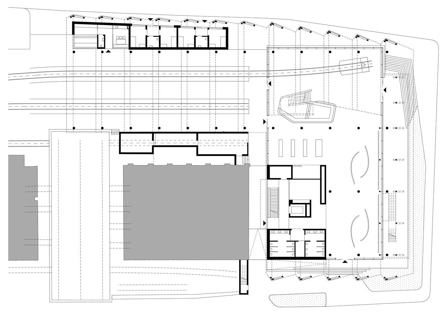
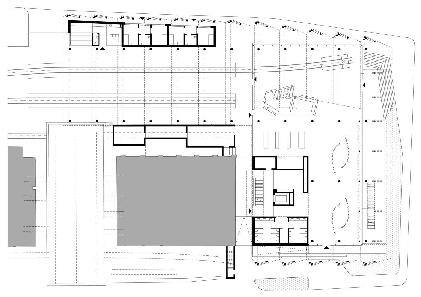
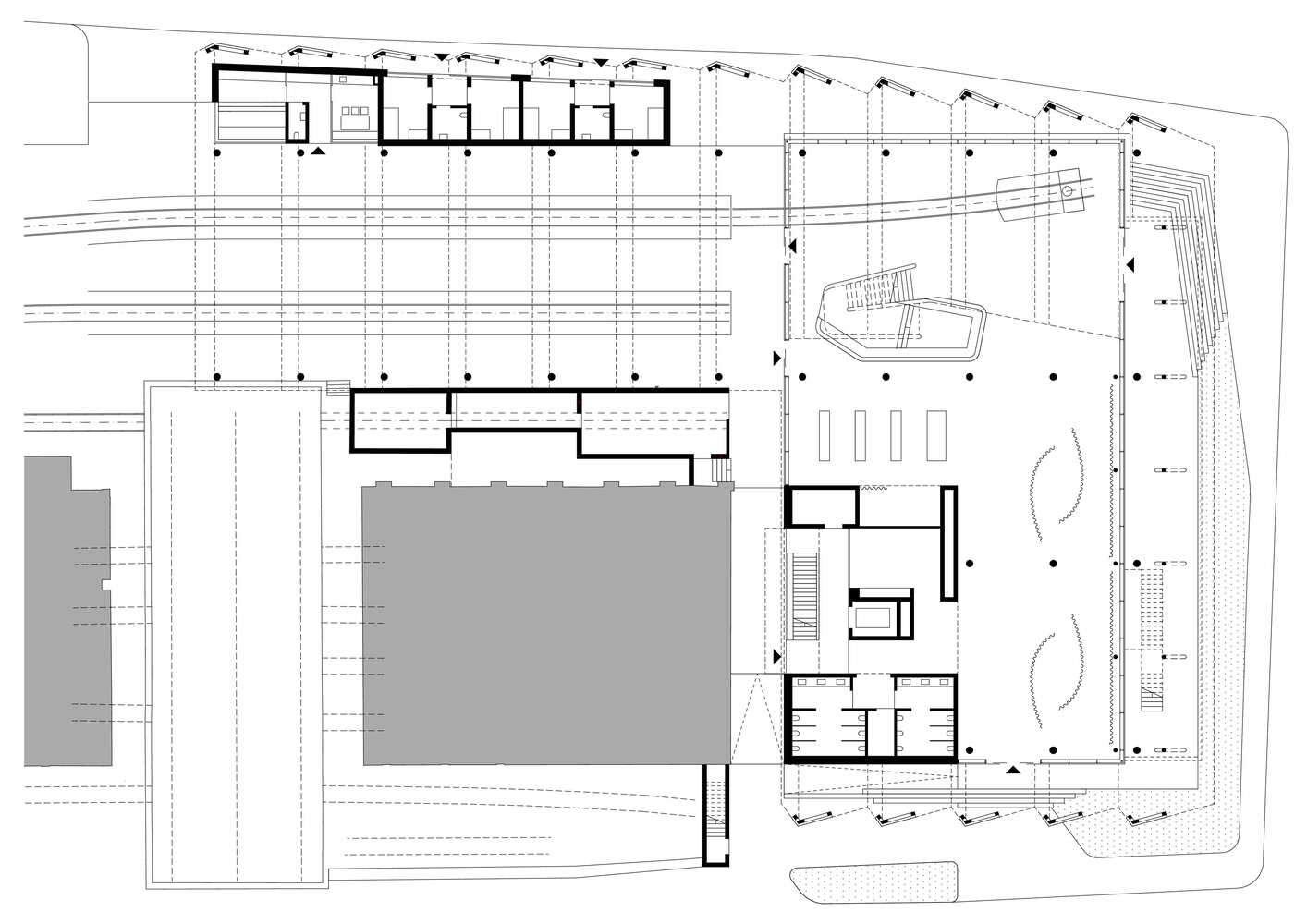
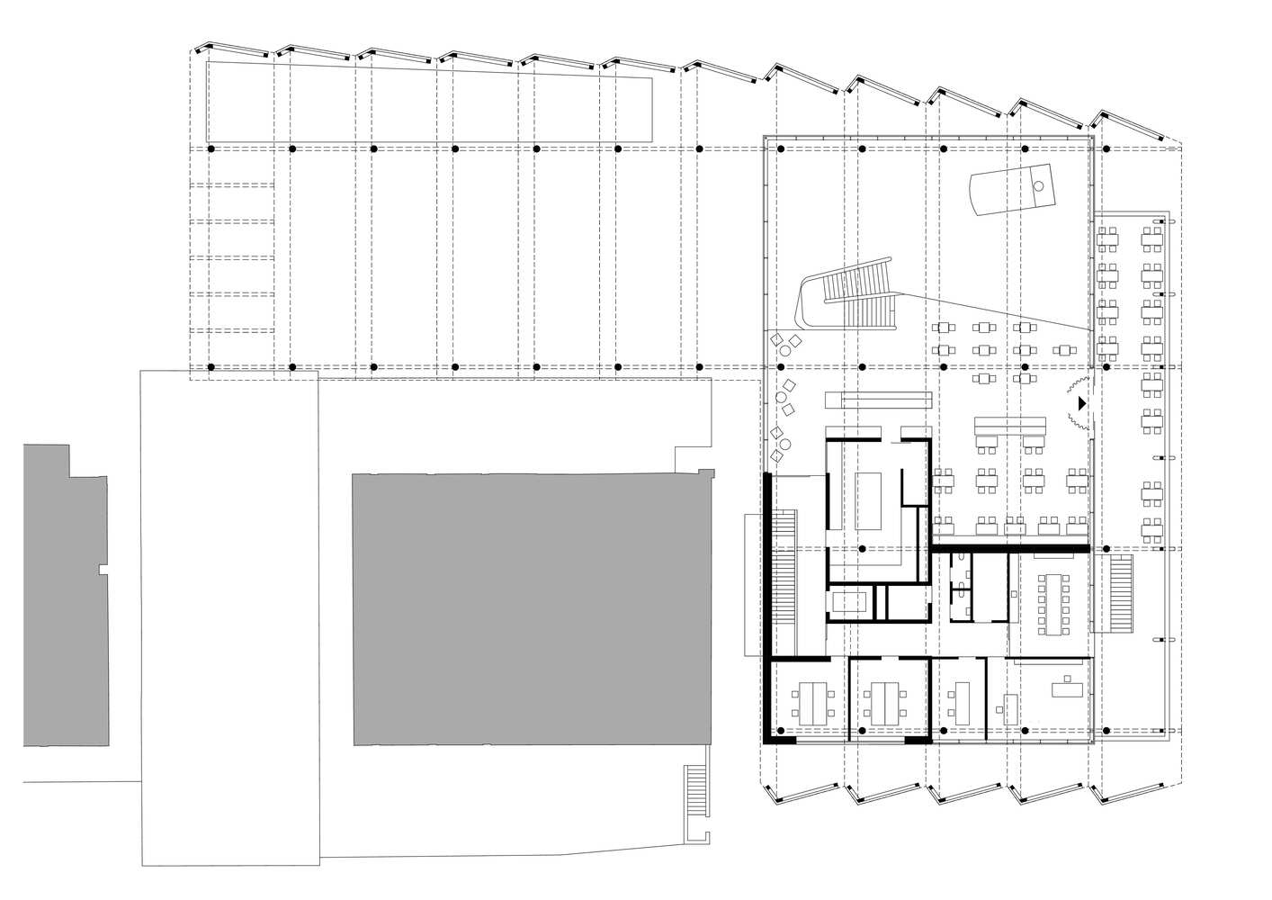
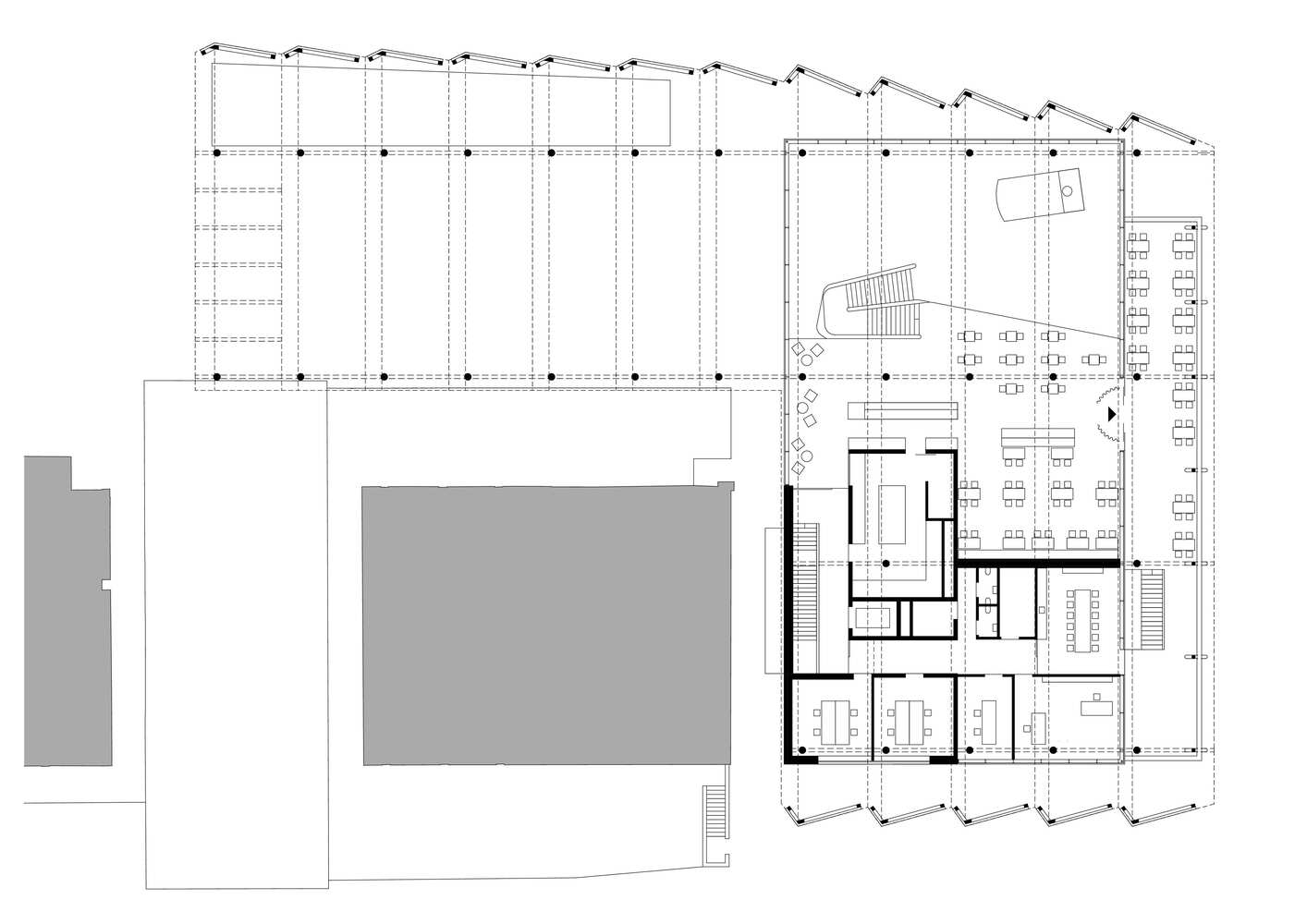
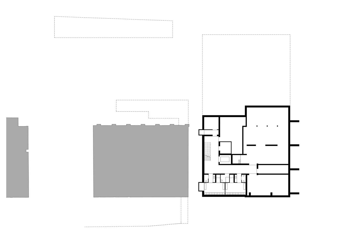
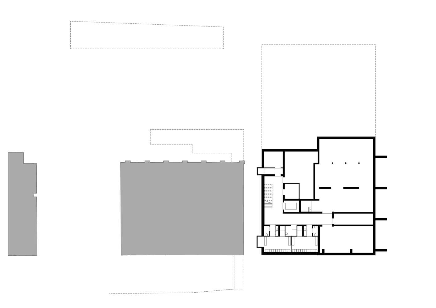
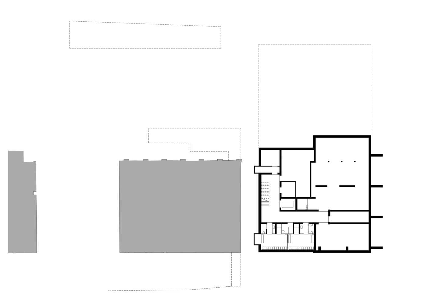
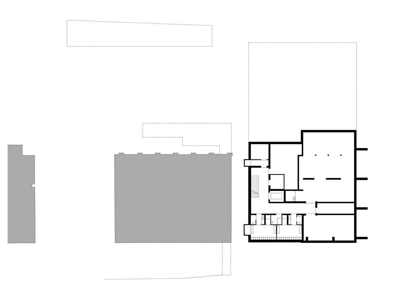
톱니바퀴 철도의 계곡 역은 볼프강 호수 바로 위의 샤프베르크 기슭에 위치해 있습니다. 2층짜리 본관과 단층짜리 별채로 구성되어 있습니다. 기존 작업장 건물과 함께 역 주변을 안뜰처럼 둘러싸고 있습니다. 창고 지붕이 두 개의 새 건물 위로 뻗어 있어 플랫폼 캐노피를 만들고 역의 큰 형태를 공간적으로 연결합니다. translate by DeepL


















The Schafbergbahn was put into operation in 1893 and is the steepest steam rack railway in Austria. The route leads from St. Wolfgang in the valley to the summit of the Schafberg. The valley station was getting on in years and could no longer meet the contemporary requirements of a tourist business. In 2019 an EU wide open competition procedure was carried out with 54 participants. The resulting project was completed in April 2023.
The valley station of the cogwheel railway is located at the foot of the Schafberg directly on Lake Wolfgang. It consists of a two-story main building and a single story outbuilding. Together with the existing buildings of the workshops, they enclose the station area in a courtyard-like manner. A shed roof stretches over the two new buildings, which also creates the platform canopy and spatially connects the large form of the station.
The folding of the roof also folds vertically as a second façade level and continues the design motif of the folding structure in the views. The resulting smallness in appearance distorts the scale of the building and creates a dialogue with the small-scale development of the surrounding area.
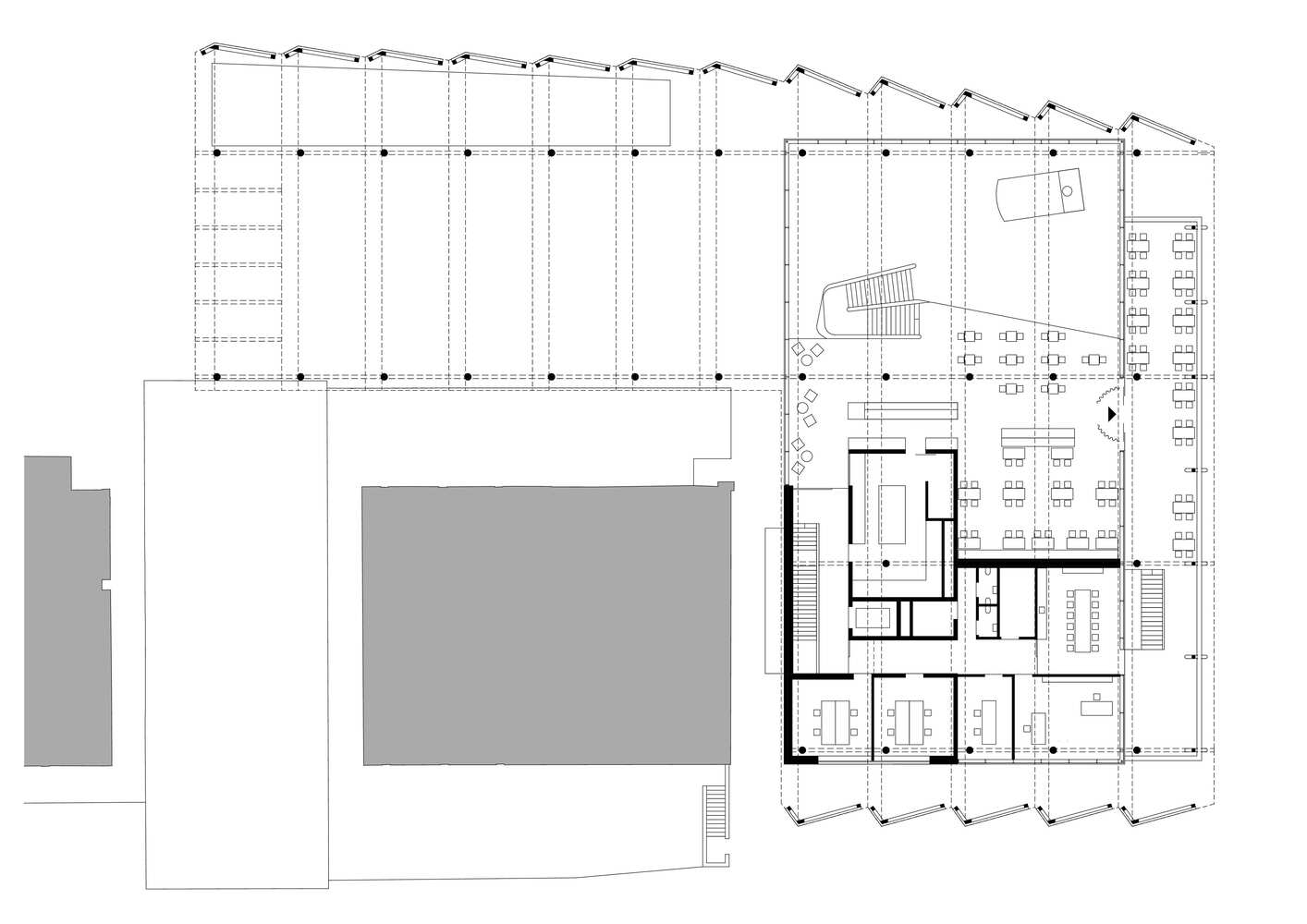
In the main building, the various public functional areas such as the entrance hall with ticketing, exhibition, shop, restaurant, and event area were arranged in an open hall. This was strongly opened to the surroundings by circumferential glazing in the facades and in the shed roof, thus creating a reference to the lake and the mountains.
The materials wood and steel play a central role. The overlapping of the station typology with the requirements for the building from tourist use spans a wide and exciting thematic arc. "Industrial" materials and a technical design language anchor the building atmospherically in the station typology, while wood creates a quality of stay for visitors.
from archdaily


