
![]() |
![]() |
![]() |
23 Degrees Design Shift-Babylon Bar and Kitchen
1. 위치와 환경
이 바는 인도의 하이데라바드에 있는 주빌리 힐스라는 번화한 지역에 있으며, 남쪽과 동쪽은 주택가가 있고 북쪽과 서쪽은 도로로 둘러싸여 있다. 이 땅은 남서쪽에서 북동쪽으로 6피트 정도 기울어져 있으며, 특히 남쪽과 동쪽의 땅은 20피트 높이의 지지벽으로 인해 높아져 있다.
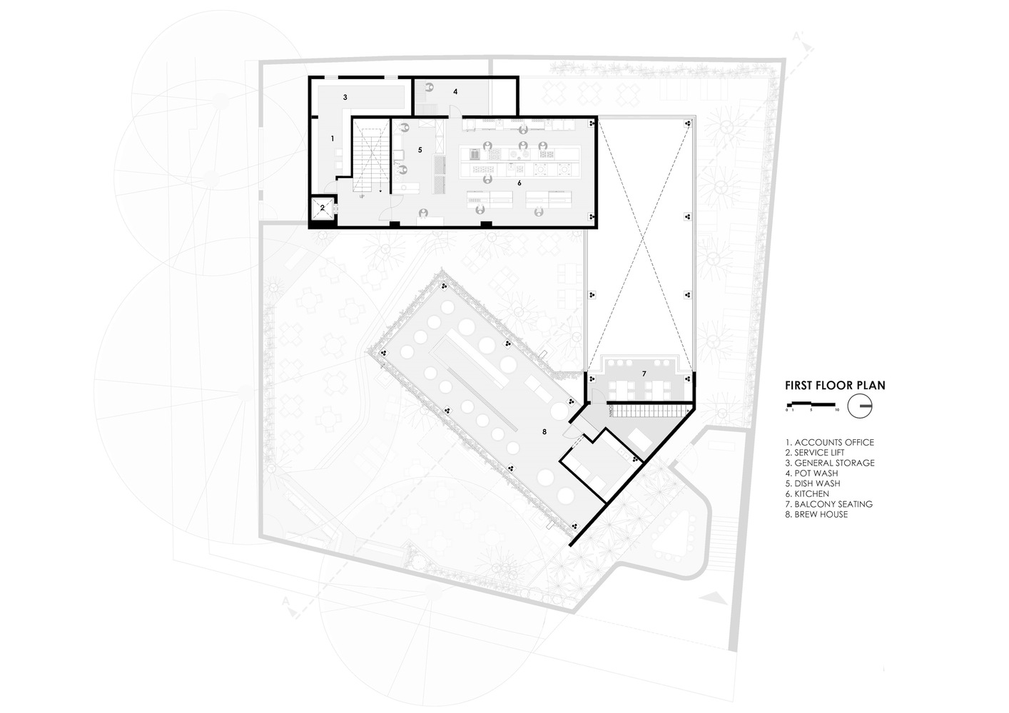
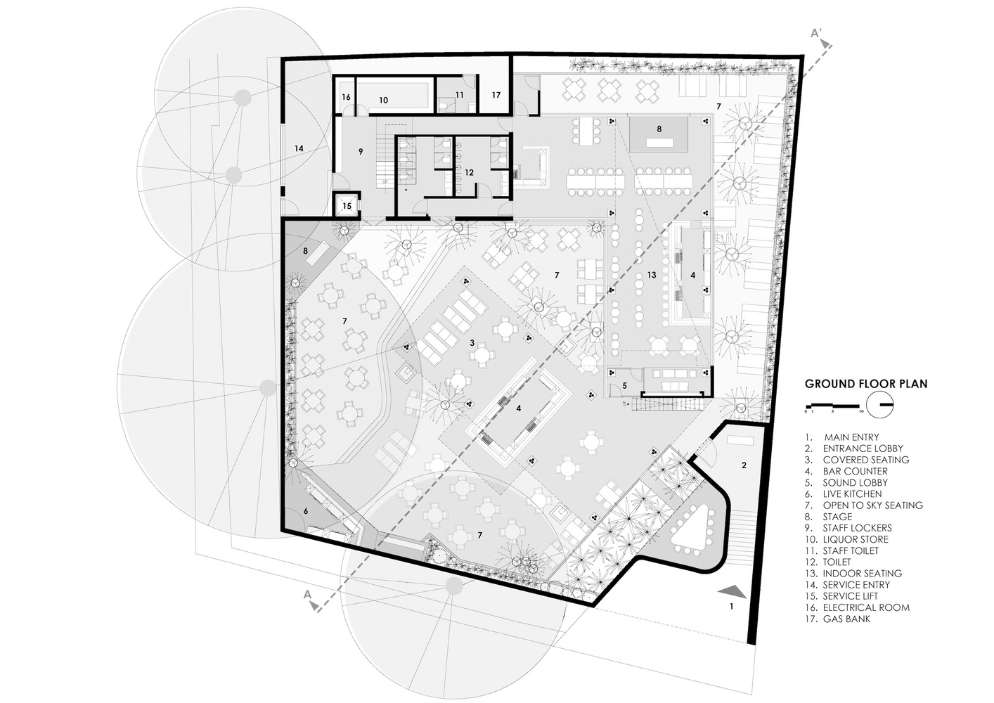
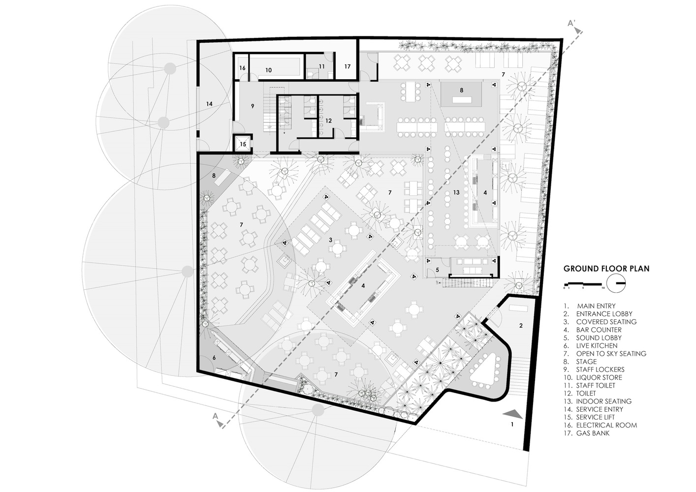
2. 공간 배치
이 바의 설계는 서비스 구역, 실내 구역, 반개방 구역, 그리고 양조장 구역으로 나뉘어 있다. 서비스 구역은 남쪽에 위치해 주변 주택가로부터 소음을 막아주며, 실내 구역은 동쪽에 있어 몰입감 있는 경험을 제공한다. 반개방 구역은 나무 그늘을 이용해 편안한 좌석 공간을 만들었고, 양조장 구역은 중앙 안뜰에 위치해 양조장이 중심이 되도록 설계했다.
3. 건축적 특징
건축은 1층 전체에 유리를 사용해 모든 구역이 서로 잘 보이도록 했으며, 양조장은 도로에서 보이도록 높여 양조 탱크의 시각적 효과를 극대화했다. 실내 바는 이중 높이로 설계되어 양조장의 슬래브와 연결되며, 1층에는 공중에 떠 있는 콘크리트 계단이 있어 방문객들에게 놀라움과 호기심을 불러일으킨다. 또한 실내 바의 규모를 균형 있게 만들어주는 역동적인 조각품도 설치했다.
4. 서비스 블록 구성
서비스 블록은 3층 구조로, 1층에는 화장실, 2층에는 주방, 3층에는 베이커리와 행정 구역이 있다. 이 구조는 금속 기둥과 철근 콘크리트 구조를 사용해 튼튼하게 만들었다.
5. 양조장과 실내 바의 구조
양조장 슬래브는 양조 탱크를 잘 지지할 수 있도록 세밀하게 설계되었고, 원형 기둥은 시각적으로 가벼운 느낌을 준다. 바닥과 벽의 유기적인 곡선 디자인은 시각적 통일성을 유지하면서 지배적인 기하학적 형태를 완화한다. 양조장과 실내 바의 경계를 허물어 두 구역을 하나로 보이게 했고, 슬래브는 기둥 사이에서 떠 있는 듯한 느낌을 준다. 주변의 녹지를 더해 아름다움을 더했으며, 출입구 구조는 케이블을 이용해 구조적으로 분리된 느낌을 주었다.
6. 소재와 마감
디자인은 러스틱한 재료를 사용해 공간에 개성을 더했으며, Dholpur 사암을 사용한 외벽은 강도와 통일성을 주었다. 마감 콘크리트는 바닥과 벽에 사용되어 자연미를 강조했고, DGU 프레임은 실내 바를 둘러싸 독특한 시각적 정체성을 부여했다.
7.그래서 이곳은
Babylon Bar and Kitchen은 하이데라바드의 번화한 지역에 위치하며, 주거지와 도로에 둘러싸인 공간에 독창적이고 기능적인 설계를 적용했다. 23 Degrees Design Shift는 서비스 구역, 실내 구역, 반개방 구역, 양조장 구역으로 공간을 나누어 각 구역의 특성을 살렸다. 유리와 콘크리트를 활용한 구조적 디자인, 녹지와 자연 재료의 조화로 이 바는 현대적이면서도 편안한 분위기를 제공한다.
translate by ChatGPT




















The bar project resides in the bustling neighborhood of Jubilee Hills, Hyderabad, amidst a dense urban setting. Surrounded by residential plots on the South and East sides and approach roads on the North and West sides, the site gently slopes from the southwest to the northeast, descending by 6 feet. Notably, the Southern and Eastern plots are elevated by 20 feet with the aid of retaining walls.
Spatial planning lies at the core of this project’s design, divided into four distinct zones: Services, Indoor, Semi open, and Brewery. The service block occupies the Southern quadrant, strategically placed to act as an acoustic buffer from the neighboring residential plots. Meanwhile, the indoor zone finds its home in the Eastern quadrant, ensuring an immersive and uninterrupted experience. The semi-open zone is thoughtfully designed around the existing trees, harnessing their shade to create serene seating areas. This layout also leads to the creation of a captivating courtyard where the brewery takes center stage.
The architecture seamlessly integrates glass across the ground floor, facilitating visual connections across all zones. The brewery, deliberately elevated, offers visibility to the brew tanks from the approach road, enhancing the site's allure. The indoor bar, designed as a double height volume, harmoniously connects with the brewery's slab. A notable feature awaits visitors on the first floor, where access to the mezzanine in the indoor bar is granted through the floating concrete staircase near the brew tanks, adding an element of surprise and curiosity. To balance the scale of the indoor bar, a dynamic kinetic sculpture graces the area, infusing movement and visual interest. The service block spans three levels, housing toilets on the ground floor, a kitchen on the first floor, and a bakery and administration area on the second floor. The composite structure combines metal columns and R.C.C. beams and slabs, ensuring structural integrity.
The brewery slab is meticulously coffered to support the brew tanks effectively. Circular columns, segmented into smaller circular columns, create an illusion of weightlessness, seeking visual lightness. Organic curves in flooring patterns and wall designs offer respite from dominant geometric shapes while establishing visual coherence. The removal of walls between the brewery and indoor bar areas blurs the boundary between columns, making them appear as a single entity, with slabs seemingly floating within them. Perimeter beams incorporate integrated R.C.C. gutters doubling as planters for vibrant creepers, introducing greenery to the surroundings. The entrance structure, in the form of a suspended composite slab, appears visually seamless and detached from any structural element, thanks to the clever use of cables.
The design embraces a rustic material palette that adds character to the space. Dholpur sandstone clads the compound wall, providing strength and unifying the site. Finished concrete showcases the natural beauty of the slabs. Washed concrete with black and red stone chips dominates the flooring, creating a monolithic presence. The indoor bar is enclosed by DGU frames with a Corten metal finish, lending it a distinct visual identity.
from archdaily


