
![]() |
![]() |
![]() |
성수동의 새로운 아이콘: W-Mission 본사
W-Mission 본사는 건축가와 W-Mission 간의 깊은 대화와 이해를 바탕으로 설계되고 건축되었습니다. 이 과정에서 건축가는 W-Mission이 사업을 시작한 장소와 개인적인 경험을 디자인에 반영하여 물결치는 파사드를 통해 영적 여정을 표현했습니다. 이러한 접근 방식은 단순한 건축물 이상의, 하나의 이야기를 담은 작품을 탄생시켰습니다.
W-Mission은 한국의 주요 섬유 제조업체로, 최근 서울 성수동에 새로운 본사를 개소했습니다. 이 지역은 전통적인 붉은 벽돌 신발 제조 공장 건물로 유명하며, 예술, 문화, 디자인의 중심지로 변모했습니다. W-Mission 본사는 이 변화를 상징하며, 역사적 요소와 현대 건축의 융합을 보여줍니다.
-설계 철학과 영감
W-Mission 본사의 설계는 W-Mission의 가치관을 나타내는 세 가지 핵심 개념인 신성함, 안식처, 공동체에 기초하고 있습니다. 건물의 형태는 W-Mission이 사업을 시작한 장소의 바다의 파도와 섬유의 특성인 가벼움, 직조 패턴, 물결 모양, 둘러싸임 등을 반영합니다. 이러한 요소들은 건물의 물결치는 파사드와 내부 공간에 반영되어 영성과 공동체감을 불러일으킵니다.
-주요 건축 특징
반전된 고딕 파사드: 전통적인 고딕의 높은 아치형 파사드를 내부에서 외부 도시 거리로 반전시켰습니다.
벽돌 커튼 월: 벽돌을 콘크리트 벽에 부착하여 물결 효과를 창출하는 커튼 월 시스템을 특징으로 합니다.
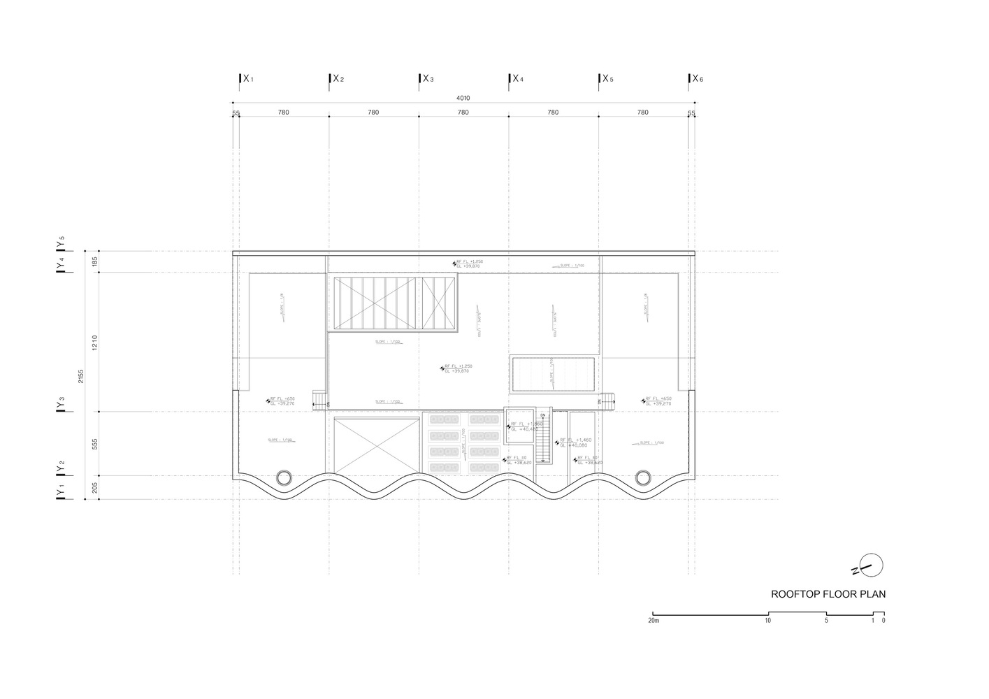
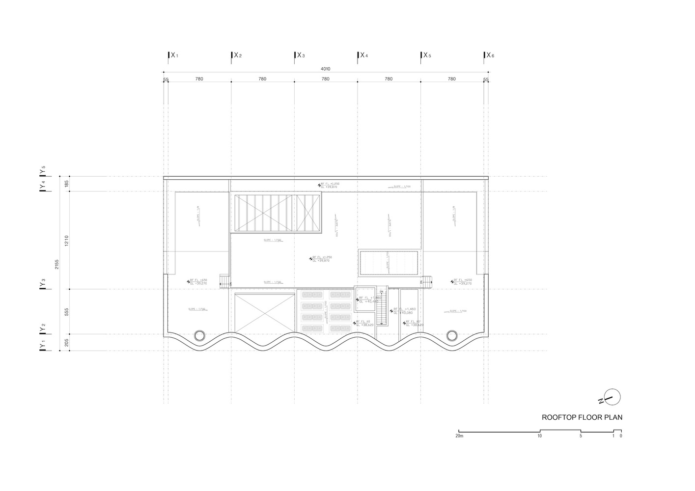
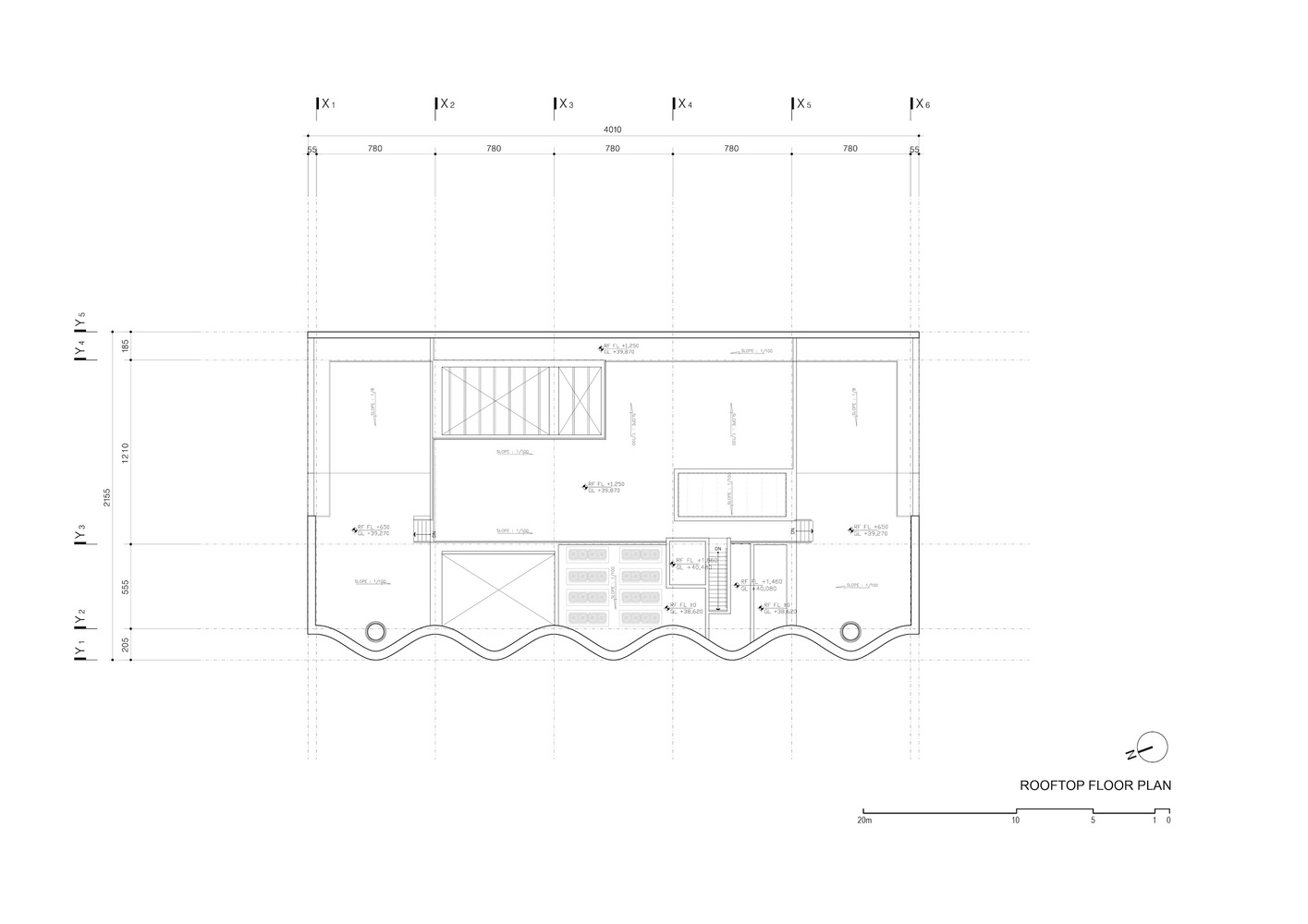
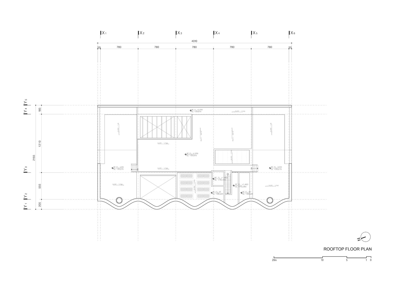
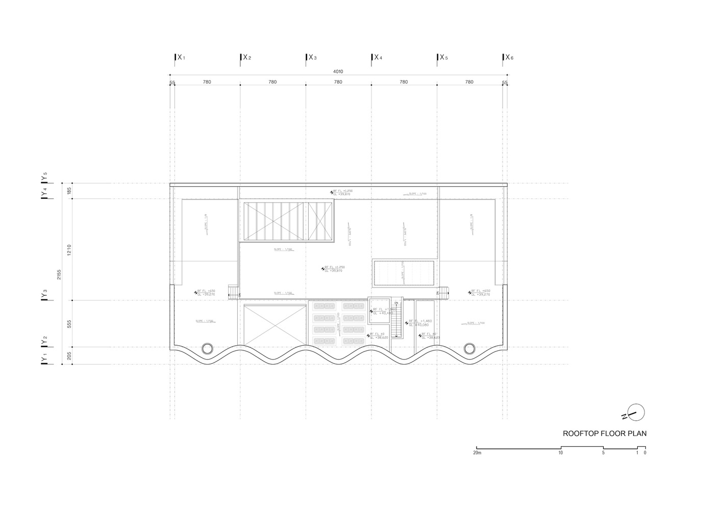
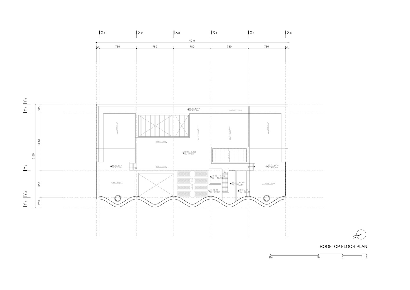
디지털 계산 도구: 간단한 알고리즘을 사용하여 물결 효과를 구현했으며, 물결의 진폭은 3층에서 시작하여 지붕선에서 170cm에 이릅니다.
-구조 및 프로그램
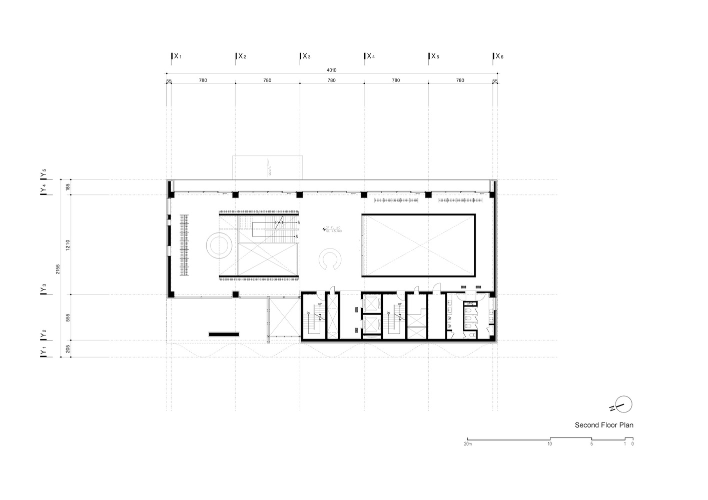
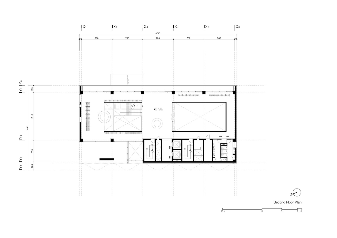
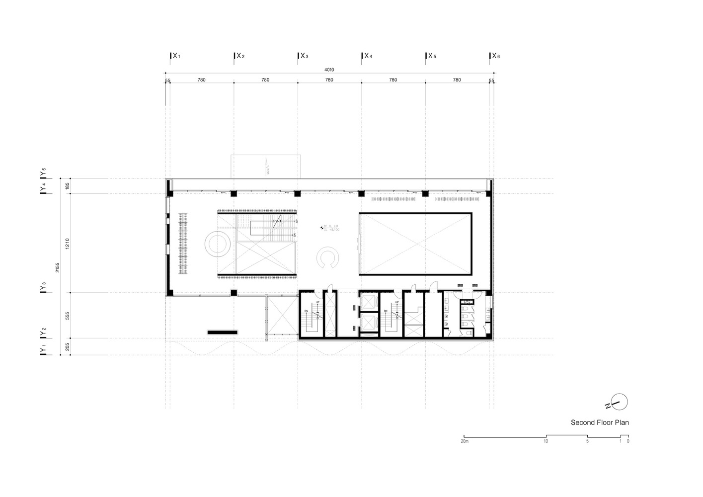
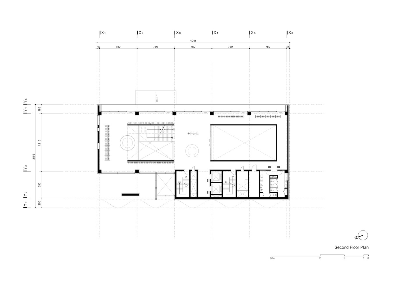
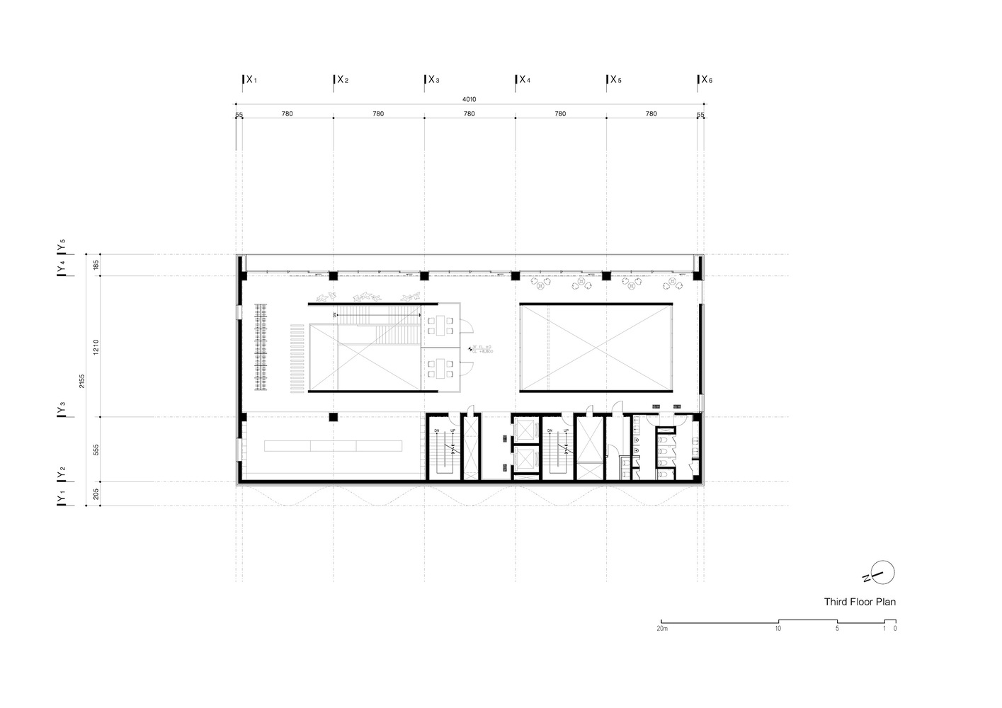
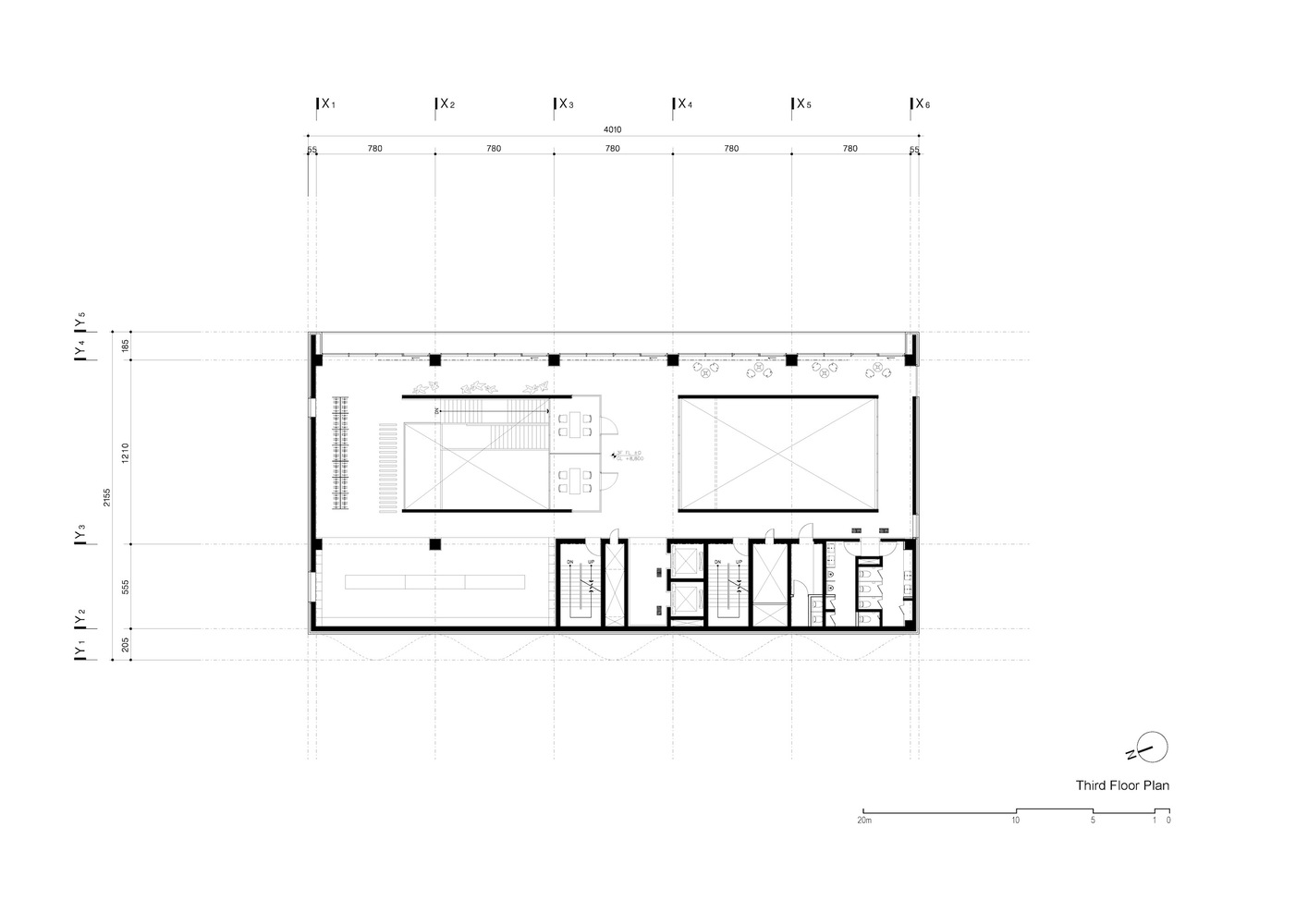
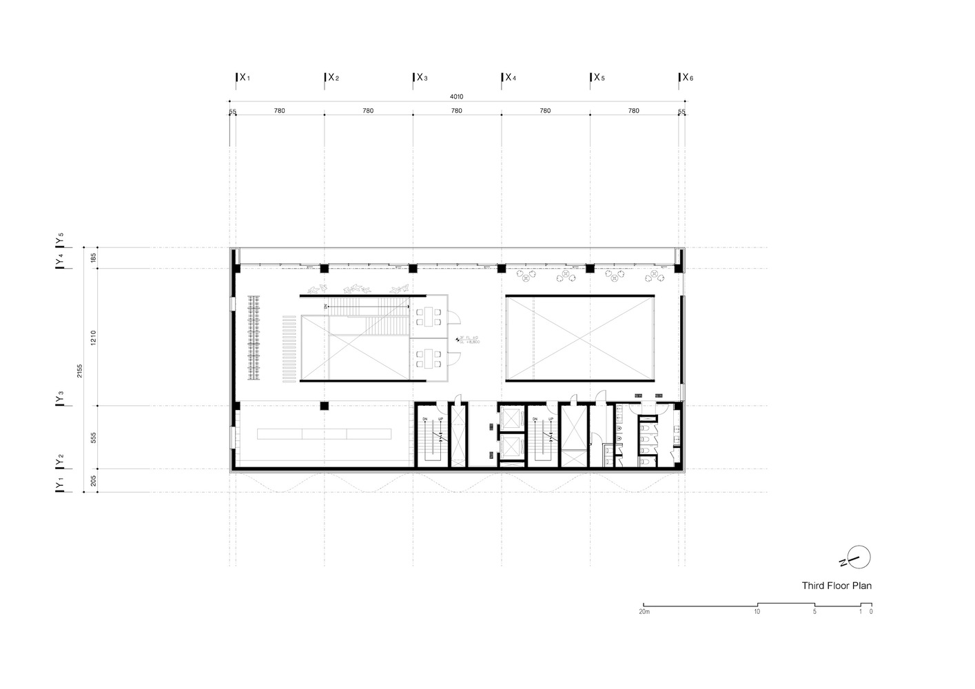
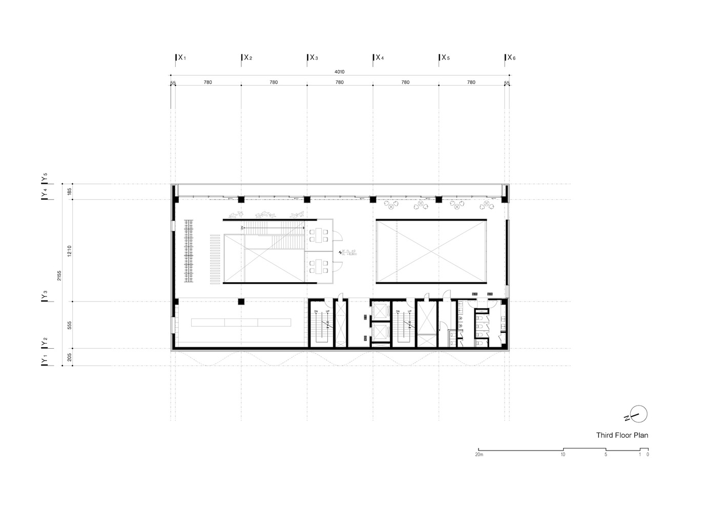
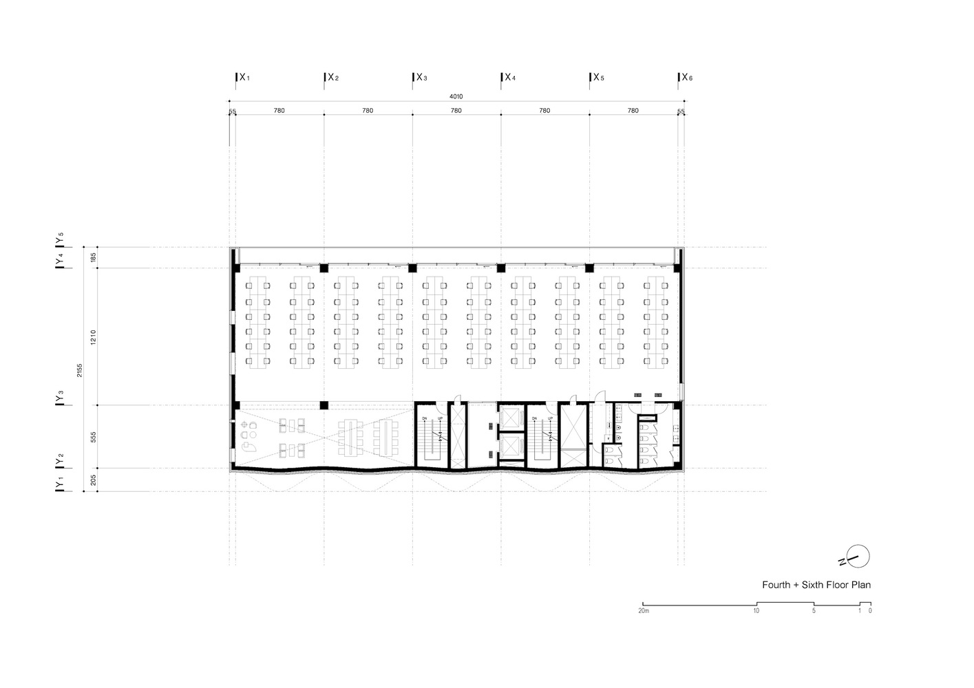
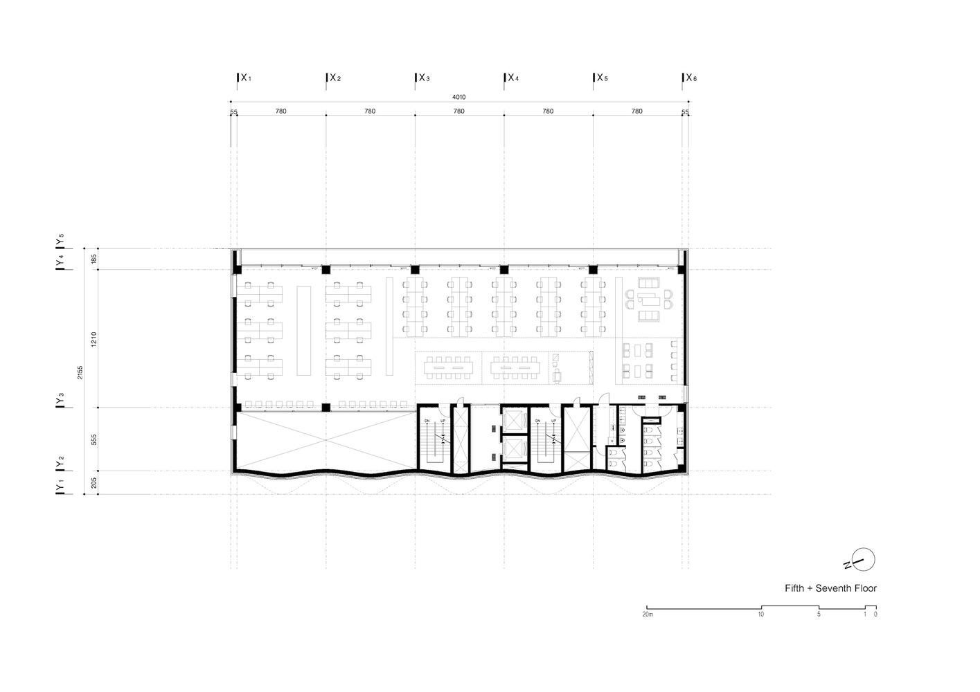
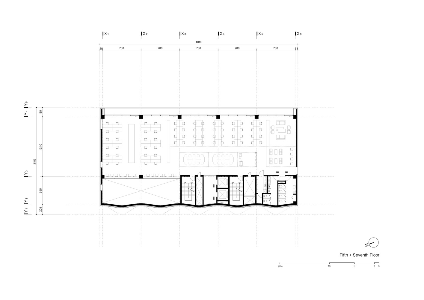
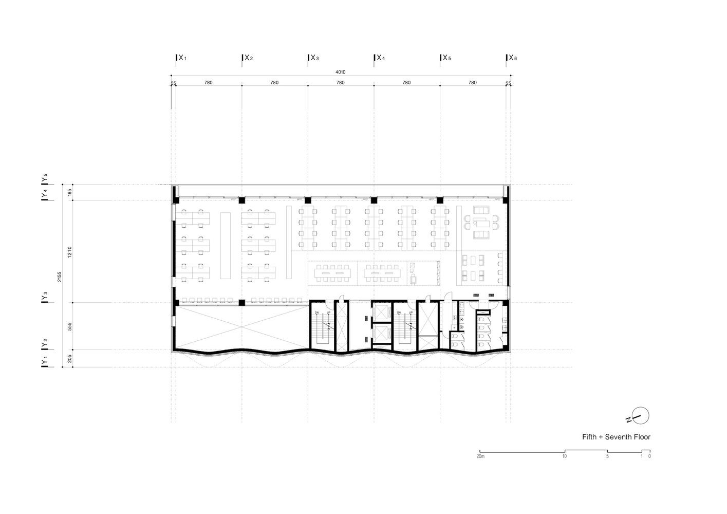
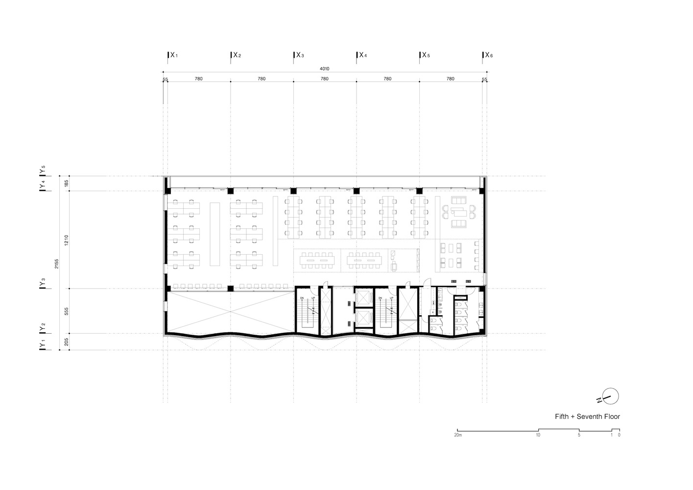
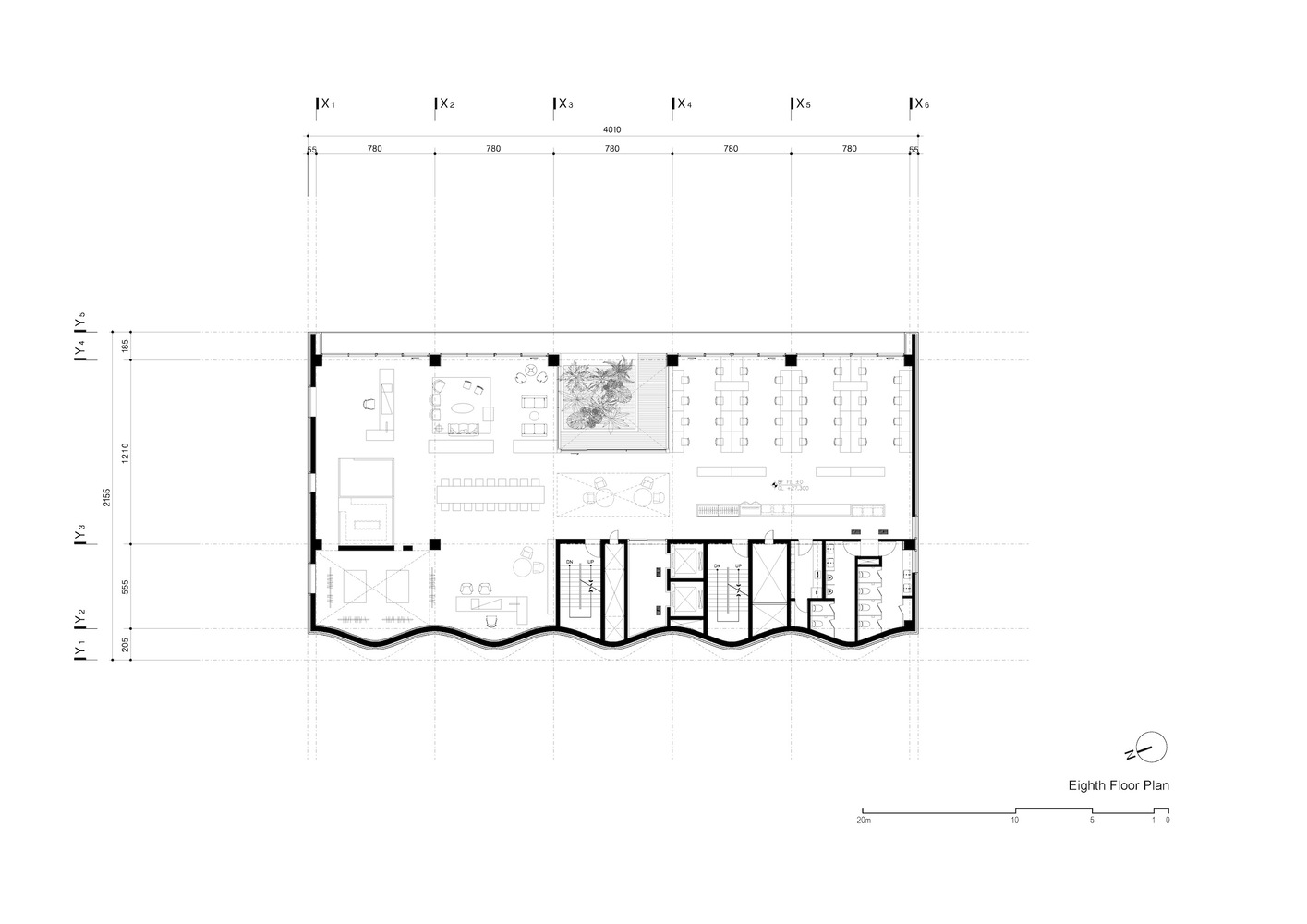
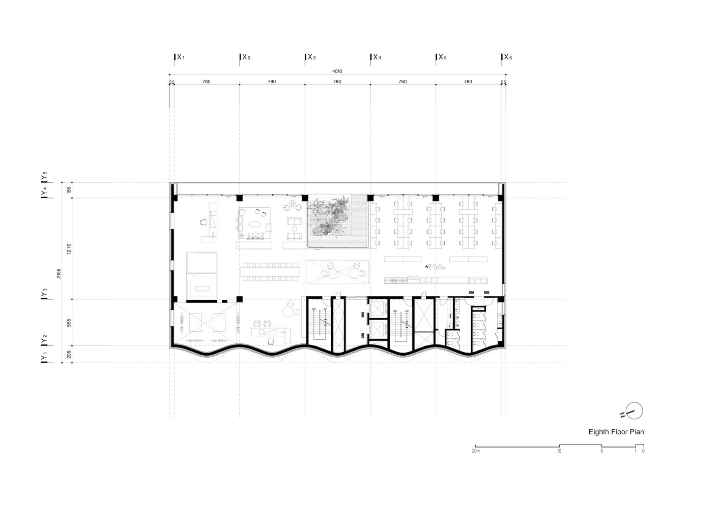
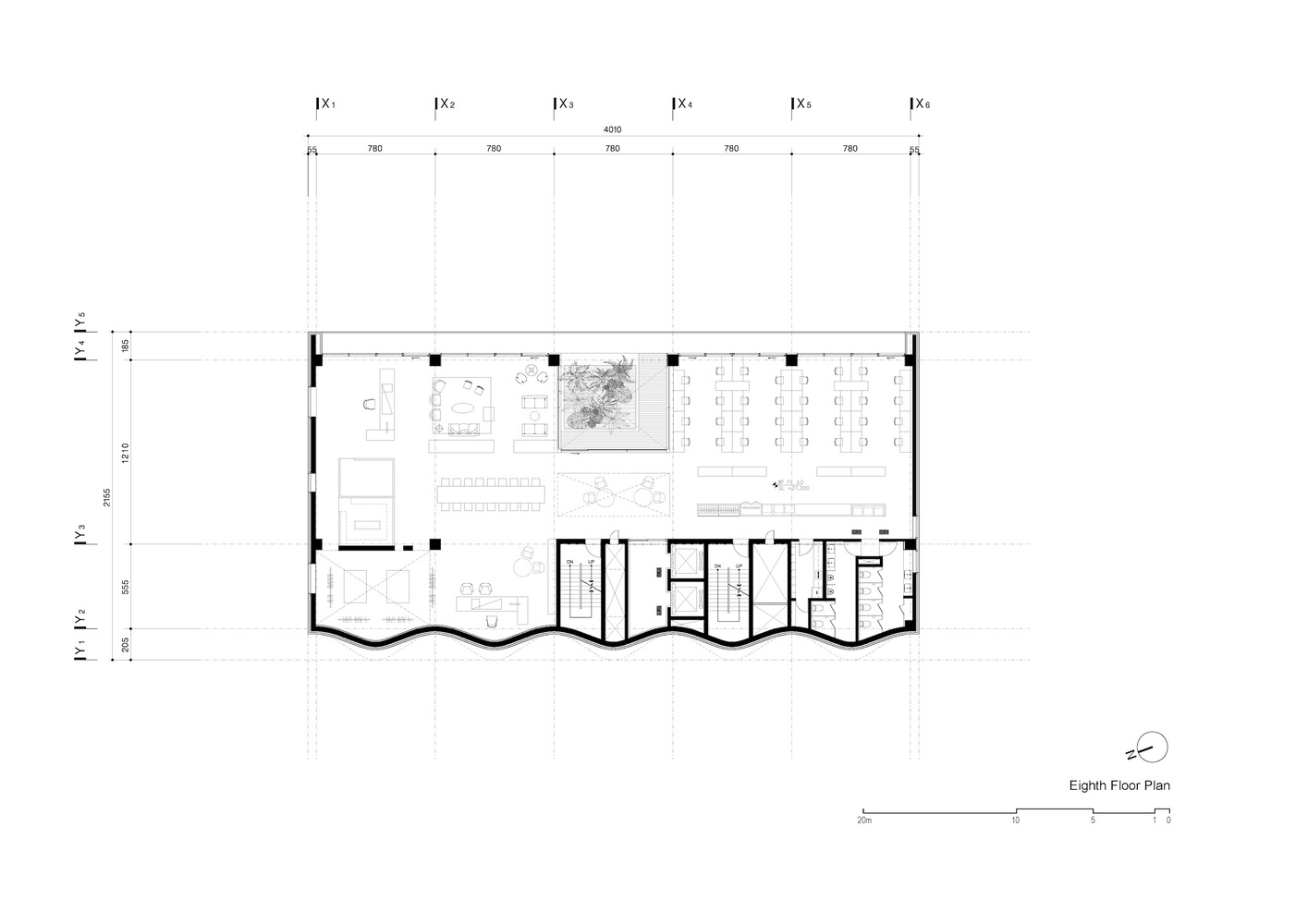
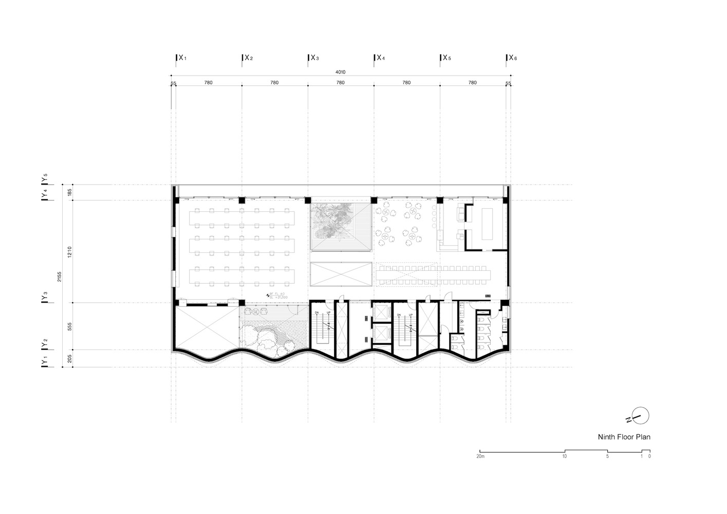
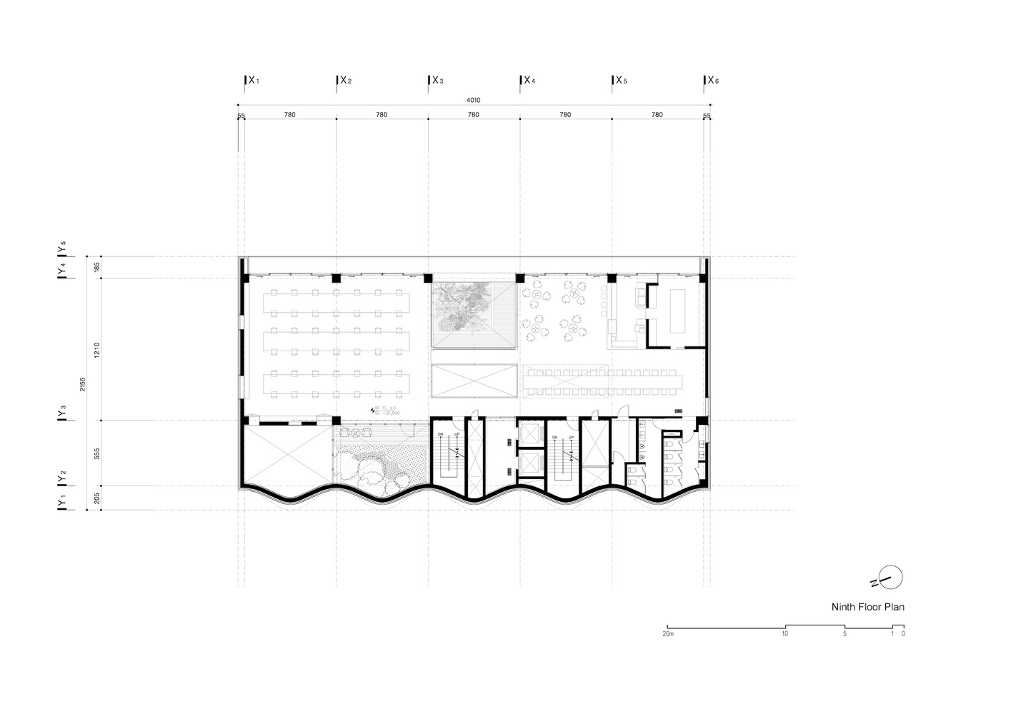
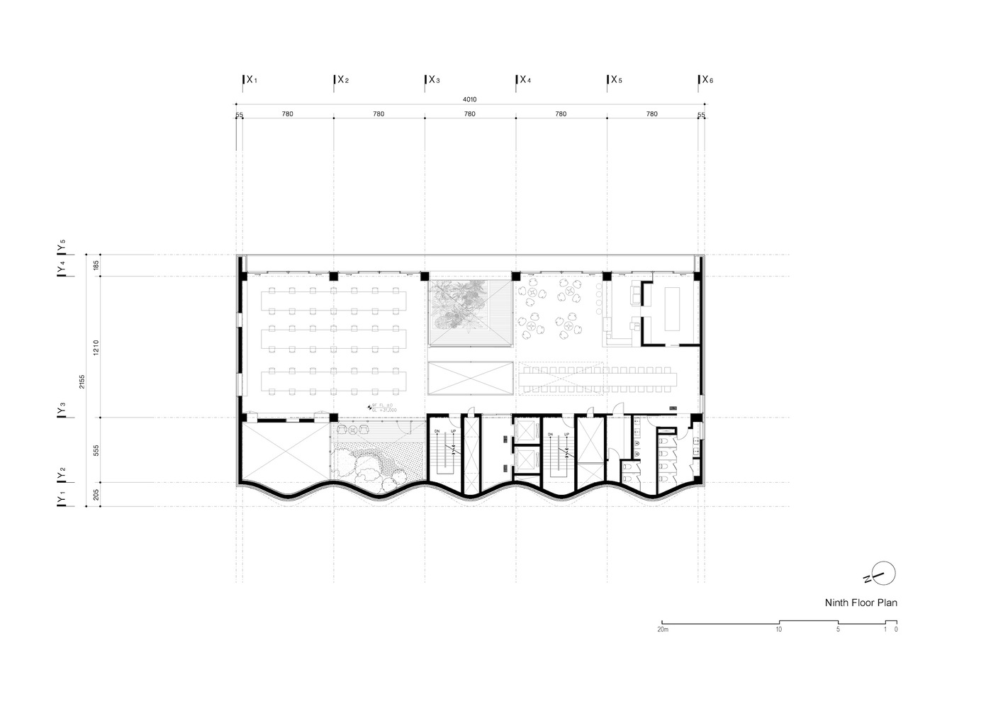
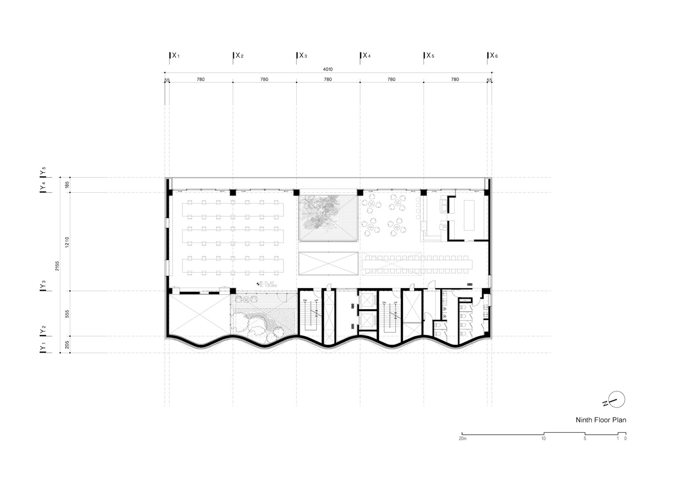
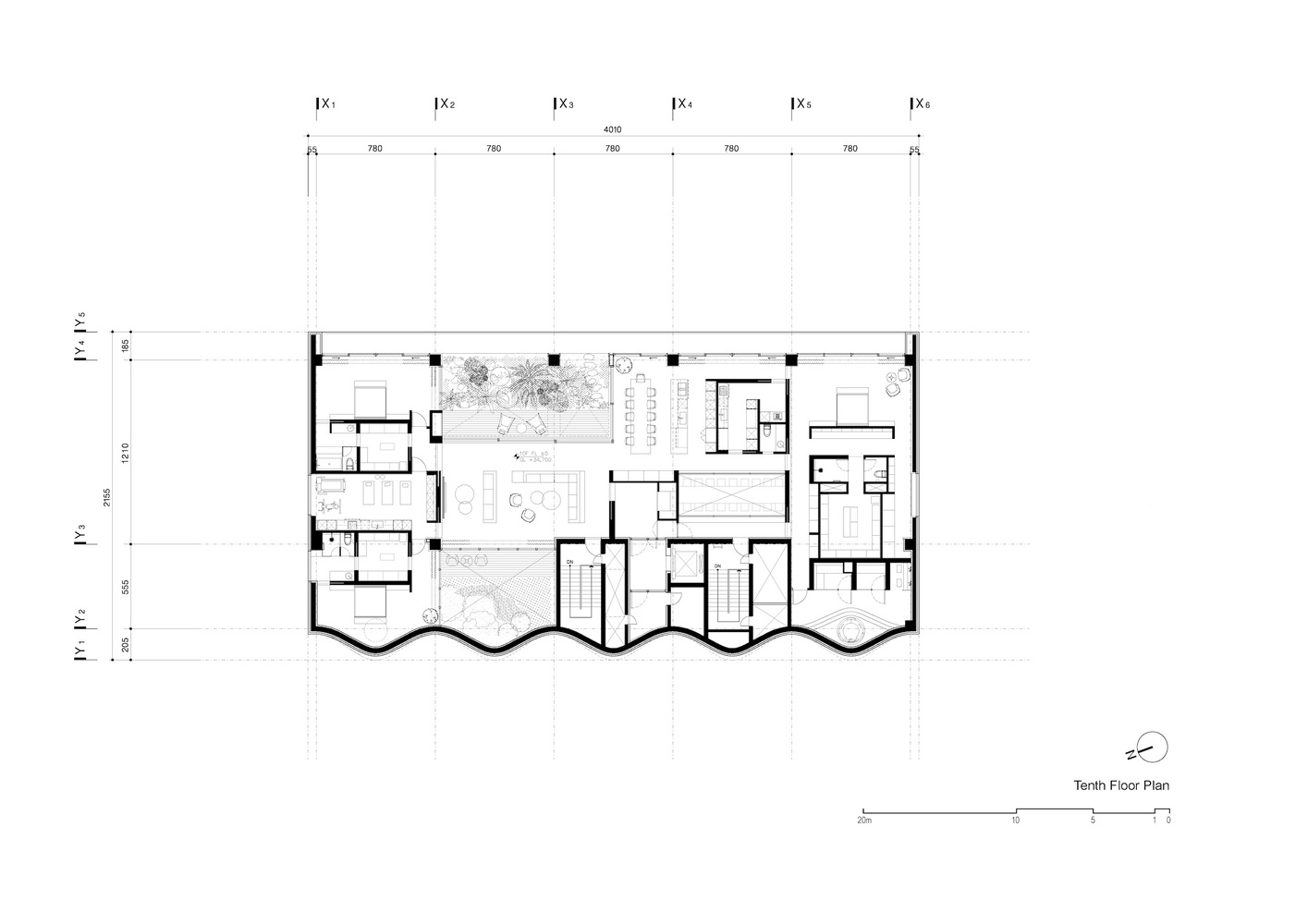
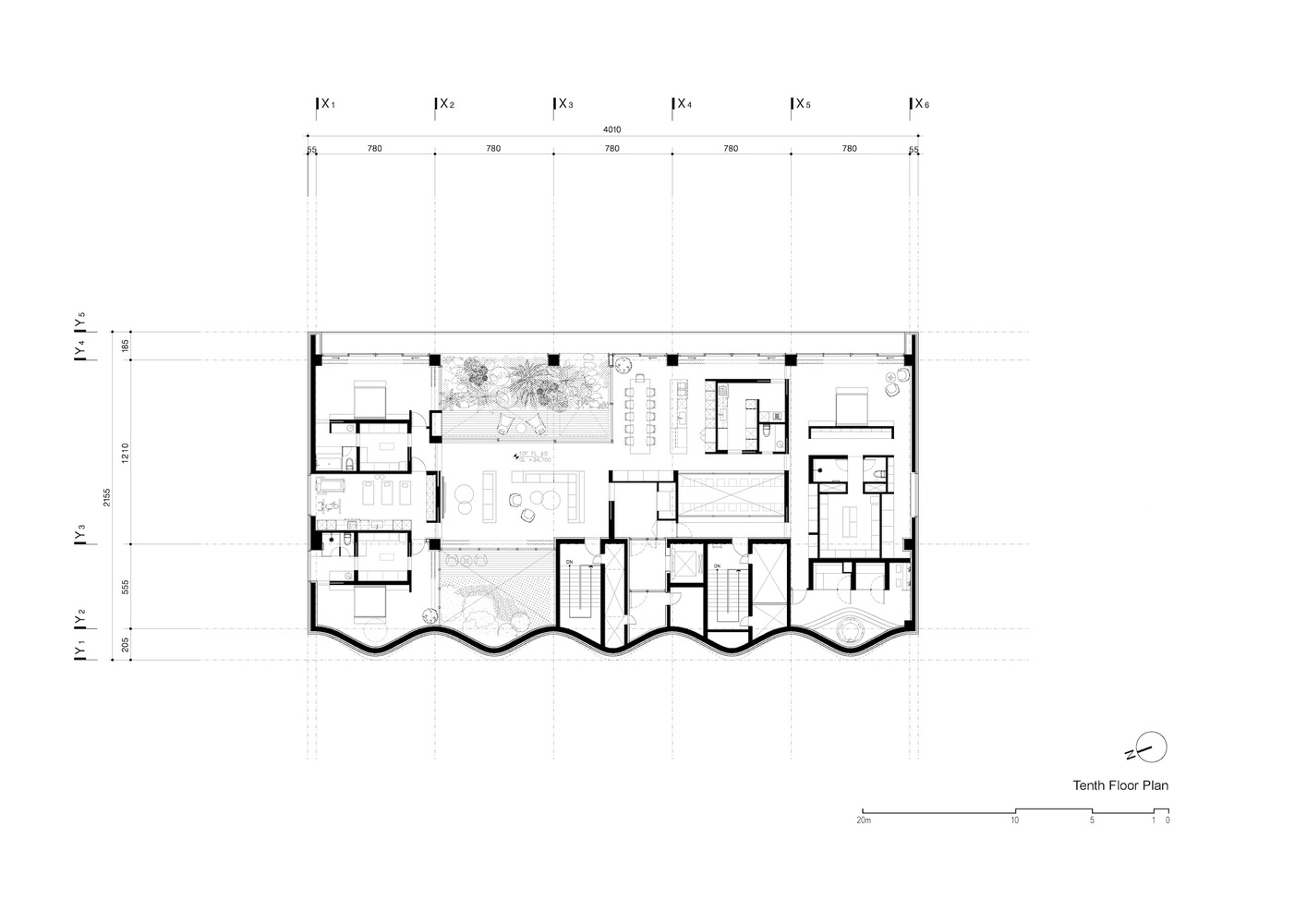
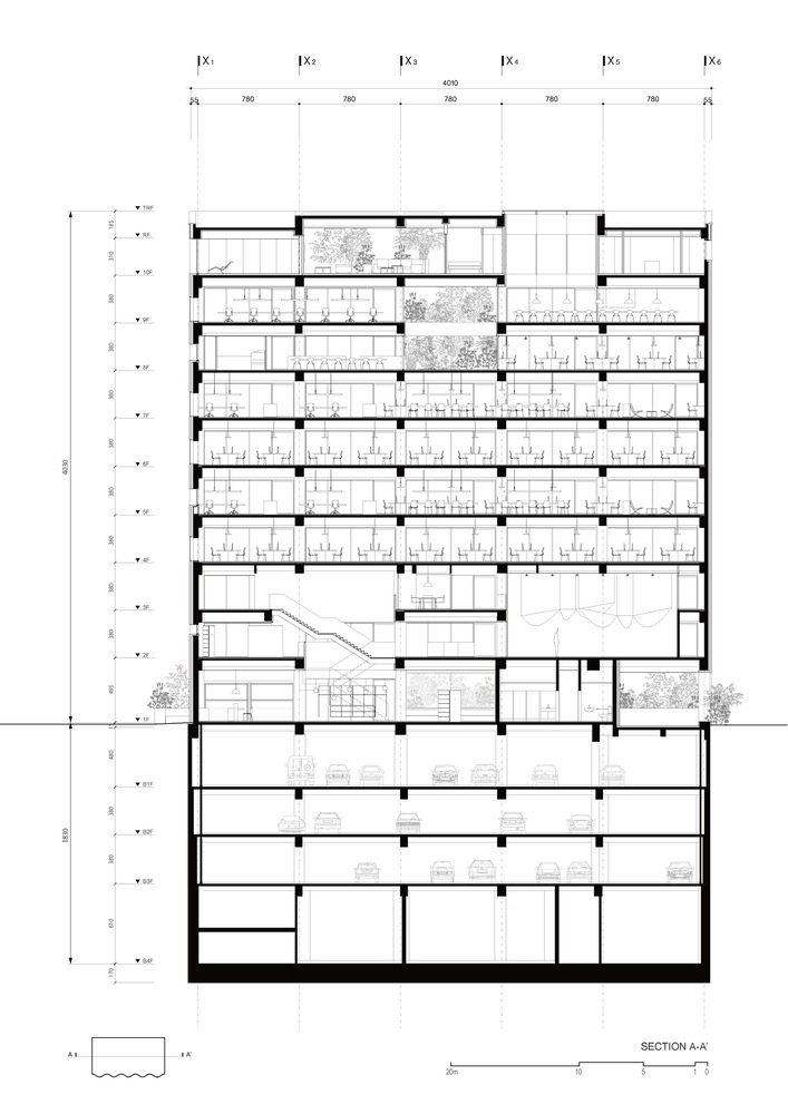
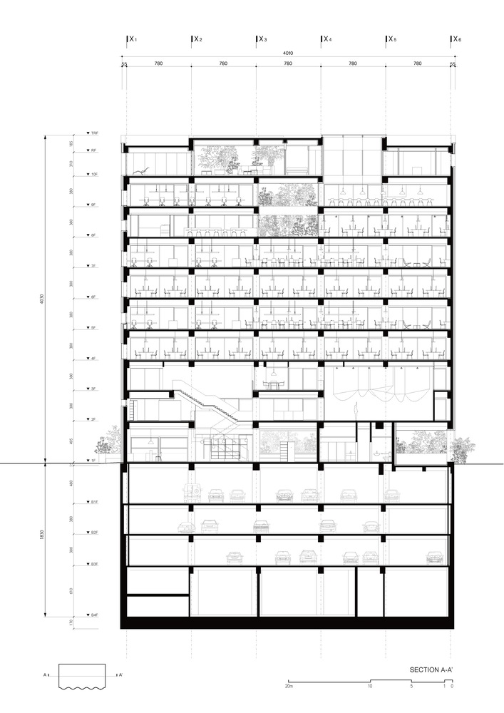
건물은 세 개의 층으로 나뉘어 각각의 기능을 수행하며 공동체감을 강화합니다.
커뮤니티 존
WM 카페와 정원: 대중을 위한 환영 공간입니다.
WMission 아카데미, 워크숍 및 전시 공간**: 창의성과 학습을 촉진하는 공간입니다.
3층 높이의 아트리움**: 건물의 공공 프로그램을 구성하는 역동적이고 매력적인 환경을 제공합니다.
오픈 오피스 블록
공개 업무 공간: 커뮤니티 존 위에 위치한 4층 규모의 협업 공간입니다.
본사 존
오피스 프로그램 및 워크숍 공간: 회사의 운영을 지원하는 공간입니다.
모임 공간: 자연광을 도입하여 영성과 명상을 위한 환경을 조성하는 이층 구조의 공간입니다.
반야외 정원
각 층은 반야외 이층 높이의 정원을 포함하여, 수직적인 이웃을 형성하며 넓은 야외 공간과 내부 파티오가 상호 연결됩니다.
-파사드 및 도시 맥락
건물의 물결치는 파사드는 성수동 지역의 도시 전망을 위한 배경 역할을 합니다. 건물의 설계는 주변 환경과 통합되어 각 파사드에서 독특한 경험을 제공합니다.
단단한 파사드: 서비스 프로그램과 수직 순환을 수용합니다.
야외 정원 및 테라스: 동쪽 파사드에 위치하여 한강과 성수동 지역을 조망할 수 있습니다.
무작위 개구부: 북쪽 파사드는 공간의 프로그램적 요구에 따라 세 가지 유형으로 분류된 개구부로 구성되어 있습니다.
서울 성수동의 랜드마크로 자리 잡은 W-Mission 본사의 건축적 비전
서울 성수동에 위치한 W-Mission 본사는 전통과 현대의 조화를 이루는 건축물입니다. W-Mission의 가치관 및 공동체 지향적 가치를 반영하면서도, 지역의 도시 구조를 향상시키는 랜드마크 역할을 합니다. 이 건물은 전통적인 재료와 현대적인 설계 원칙의 혁신적인 사용을 통해 지역에서 새로운 건축적 기준을 세웠습니다.
W-Mission의 핵심 가치를 이해하고 구현함으로써, W-Mission 본사는 기능적 목적을 충족시킬 뿐만 아니라 건축적 및 문화적 중요성을 지닌 랜드마크로 자리 잡았습니다. 이 건물은 단순한 본사를 넘어, 사람들의 삶에 긍정적인 영향을 미치는 공간으로 자리 잡고 있으며, 앞으로도 많은 사람들에게 영감을 줄 것입니다.
translate by ChatGPT



































W-Mission is one of the highest quality textile manufacturers in South Korea. Their new headquarters are located in Seongsu-dong, Seoul, and are known for their shoe manufacturing factory buildings, which were built with traditional red brick. This reborn district has become a vibrant urban landmark for art, culture, and design in the Korean capital.
The commission of this design departs from three main existential concepts that best represent the spiritual character of the client: sacredness, sanctuary, and community. The inspiration for it reflects on the ocean waves of the birthplace of our client and the material properties of textiles, such as lightness, weaving patterns, undulation and enclosure, and disclosure. The architectural features heighten the feeling of spirituality, the main one being the reversal of a traditional Gothic high-arched facade from the interior (of a cathedral) to the exterior urban street.
The reproduction of drapery in stone sculpture, as researched during the design process of the Administrative Building for the Textilverband, has always represented a captivating paradox. In this case, the traditional brick masonry system offered great capacity to depict and adapt to the desired curve. Brick construction has a long historical tradition in Seoul. The adopted solution, in this case, is a literal ‘curtain wall’ system using bricks attached to a concrete wall cast “in situ,” which serves as a guide for constructing the curve. With the help of a digital computational tool, we could devise a rather simple algorithm for creating the intended wave effect rising up to the sky. With 520 courses of brick height, every 24 courses, a new brick is added to achieve the desired curve growth. The wave amplitude ranges from 0 on the third floor, where it starts, to 170cm at the roof line.
The building consists of 3 stratified programmatic layers:
*The community zone with street frontage that consists of the WM Café and garden, the WMission academy, workshop, and exhibition spaces. A three-floor height atrium articulates the public program of the building.
*An open office block of four floors is located above the public package. - W Mission’s headquarters as top zone on the last three floors. Integrated by office program, workshop and gathering spaces. Within this private area of the building, double height interconnected spaces inspired by the typology of the basilica nave introduce natural light that evokes an environment for spirituality and meditation.
*All 3 zones offer semi outdoor double height courtyards. Put together; the building creates a kind of vertical neighborhood with generous outdoor pockets and internal patios that are shifted but interconnected, all reaching out to the outdoor space and the sky and reinforcing the feeling of community.
The waving façade acts as a backcloth for the urban perspectives of the streets that lead into Seongsu dong District from the west across the Seoul Forest Park. This characteristic solid façade houses the service program and the vertical circulations. In contrast, the outdoor gardens and terraces on the east façade offer a wide open view towards the Han River and Seongsu-dong District. The north façade is composed of apparently random openings categorized by three different types that respond to the programmatic requirements of the space.
from archdaily


