"건축가는 아무것도 발명하지 않는다. 단지 현실을 변형할 뿐이다." – 알바로 시자(Álvaro Siza)

![]() |
![]() |
![]() |
도시 속 생태계: BSH20A ‘Stories’로 본 지속 가능한 건축의 미래 Olaf Gipser Architects-BSH20A ‘Stories’
1. 소개
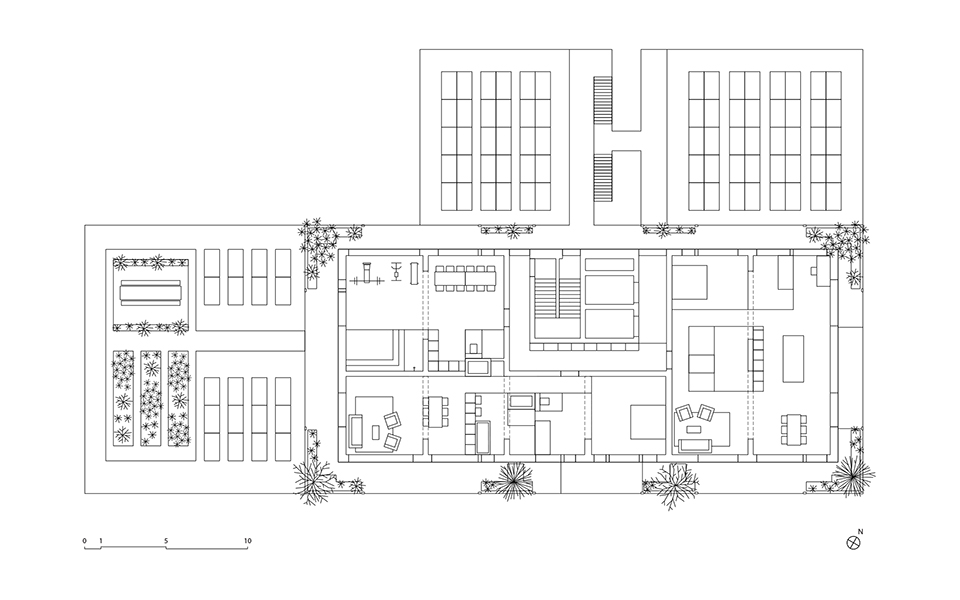
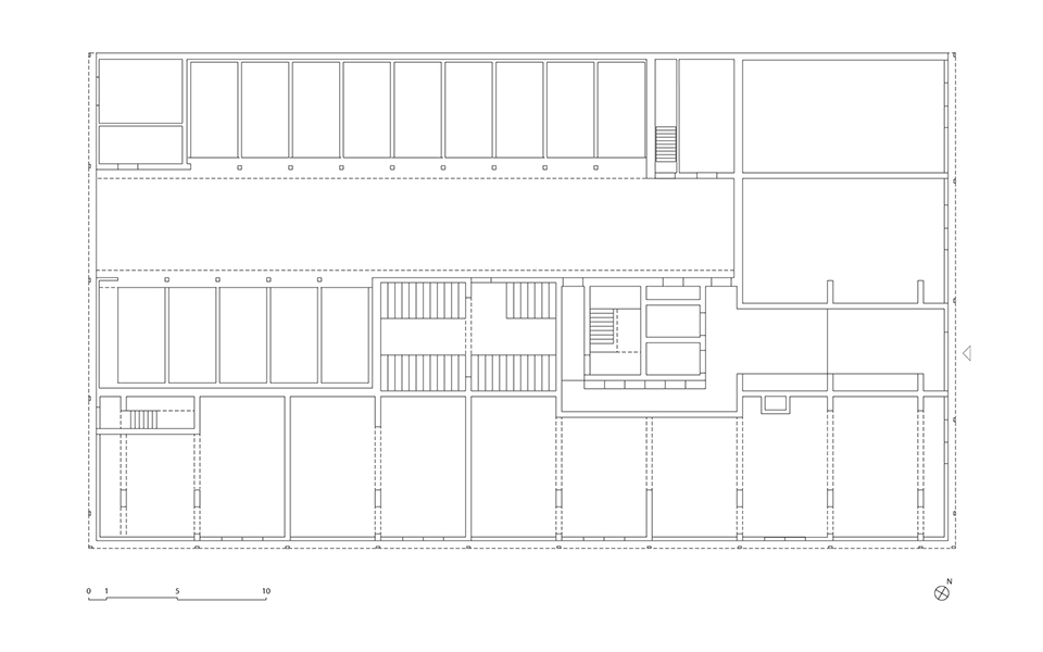
Olaf Gipser Architects의 **BSH20A ‘Stories’**는 암스테르담의 포스트 산업 지역에서 지속 가능한 도시 생활과 자연과의 공존을 목표로 설계된 주거 프로젝트다. 이 건물은 **CLT(교차 집성 목재)**를 주요 자재로 사용하며, 미래의 변화에 맞춰 재구성 가능한 구조를 적용했다. 자연과 함께하는 혁신적인 설계를 통해 총 35개의 주거 및 상업 공간을 포함하며, 자연과 인간의 상호작용을 촉진한다.
**BSH20A ‘Stories’**는 2022년 Dezeen Awards 주거 프로젝트 부문에 후보로 올랐으며, Dutch Design Awards에서도 혁신적인 주거 디자인으로 평가받았다. 이 프로젝트는 도시 밀집 지역에서 자연 통합과 지속 가능한 생활을 구현한 점이 주목받고 있다. 또한, 주민들이 민주적인 결정 과정을 통해 설계에 참여한 커뮤니티 중심 프로젝트로, 건물의 공동체적 가치도 크게 인정받았다.
2. 주요 내용 분석
BSH20A는 자연과 인간의 공존을 기반으로 한 건축물이다. 특히, 각 유닛에 배치된 발코니와 이중 높이 식생 유닛이 눈에 띈다. 발코니에는 나무와 식물이 심어져 있으며, 이는 프라이버시 스크린 역할을 하면서 동시에 건물의 생물 다양성을 증가시키는 중요한 요소다. 이 식생 유닛은 단순한 미적 요소를 넘어 거주자의 프라이버시 보호와 미기후 조성에 기여하며, 자연스러운 경관을 제공한다. 예를 들어, 식생 유닛은 여름철에는 그늘을 제공하고 겨울철에는 바람을 막아 온도 조절에 기여한다.
**CLT(교차 집성 목재)**는 탄소 배출을 줄이고, 내구성과 방음, 화재 저항성을 제공한다는 장점이 있다. 강철 프레임과 결합한 이 자재는 건물의 구조적 안정감을 제공하며, 외관의 통일성을 유지한다. 내부의 천장과 바닥에는 CLT가 그대로 노출되어 있어 자연스러운 질감을 제공하며, 이는 공간에 따뜻함을 더하고 있다. 더불어, 건물 외부에는 겨울 정원이 설치되어 있으며, 이를 통해 거주자는 사계절 내내 자연을 가까이서 경험할 수 있다.
이 프로젝트는 거주자의 공동체 생활을 촉진하기 위해 커뮤니티 카페와 옥상 도시 농업 공간을 포함하고 있다. 이러한 공용 공간은 거주자 간의 교류를 활성화하며, 도시 생활 속에서 자연과의 상호작용을 더욱 강화하는 역할을 한다.
3. 비교 분석
BSH20A는 지속 가능성과 자연 통합을 목표로 하는 현대 건축 트렌드를 완벽히 반영한 프로젝트다. 57개의 이중 높이 식생 유닛은 단순히 외관을 꾸미는 요소가 아니라, 프라이버시 보호와 미기후 조성을 위한 설계적 장치로 기능한다. 이 유닛들은 도시 생태계를 복원하고, 거주자들에게 편안한 자연 환경을 제공한다. 식물과 나무들은 자연스러운 그늘과 환기를 제공하며, 발코니에서의 휴식과 더불어 자연을 즐기는 공간을 조성한다.
최근의 현대 건축물에서 CLT와 같은 친환경 자재의 사용은 필수적이다. CLT는 화재에 대한 저항성과 내구성을 갖추고 있으며, 지속 가능한 도시 생활을 실현할 수 있도록 돕는다. 또한, 이 프로젝트는 미래의 변화와 주거자의 다양한 요구에 유연하게 대응할 수 있는 개방형 설계를 적용해, 내부 벽체가 자유롭게 변경 가능하며, 상업 공간으로도 재구성할 수 있다. 이는 거주자의 필요에 따라 유연하게 대응할 수 있도록 설계된 특징 중 하나다.
4. 결론
Olaf Gipser Architects의 **BSH20A ‘Stories’**는 지속 가능한 자재와 혁신적인 설계를 통해 도시 생활에서 자연과의 공존을 실현한 대표적인 사례다. CLT 구조를 통해 친환경적이고 유연한 건축을 실현했으며, 발코니와 옥상 정원은 도시 속 자연과의 상호작용을 강화했다. 이 프로젝트는 앞으로의 도시 건축이 나아가야 할 방향을 제시하며, 거주자들이 자연과 함께 살아가는 공간을 제공한다.
Write by ChatGPT & 5osa




























BSH20A ‘Stories’ addresses the challenge of high density, communal, sustainable, and healthy urban living. As a housing cooperative project, it combines human and non-human habitat, is built largely from renewable, bio-based resources, and deploys ‘open building’ principles to ensure accommodation of future needs.
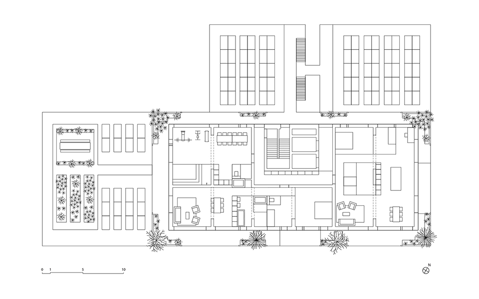
The building is a mixed-use residential tower in post industrial Amsterdam Buiksloterham with 35 housing and commercial units and an on-ground parking garage. Located in a former industrial harbor area, it occupies an exposed lot marking the intersection of a main street and a former industrial harbor basin. Stories is the result of close collaboration between its future residents, architect, contractor, and advisors.
The plinth of 11 m height consists of a conventional prefab concrete structure and forms the basis for a 45 m high tower made from CLT (cross laminated timber) plate construction. The mass timber construction determines the bay width of 4,80 m, leading to a floorplan spanning over 6 bays. Large openings allow for spatial connection across the bays, facilitating flexible partition from one to six individual units per floor. The walls are clad with fire-resistant and soundproofing plasterboard. The floors are equally made of CLT-plate, exposed as timber ceilings on the floors below, and combined with a foam concrete mass layer for acoustic insulation.
In its current configuration, Stories contains 29 apartments ranging from 43 185 m2 size, many combined with working spaces facilitating living/ working combinations, forming ten different apartment types and consisting of single and double-height units. Ceiling height is 2,87 m respectively 6,12 m.
Yet Stories does not only provide private space but addresses collective urban living. An enveloping steel structure contains extensive outdoor spaces in the form of private balconies and winter gardens which are simultaneously architectural shading elements, a communal roof for urban farming that is connected to a shared, multifunctional indoor space, and 57 double height vegetation units. The larger ones of these are niches for trees, bushes, grasses, and related animal life. They act as privacy screens between individual units, operate as infrastructure providing a healthy environment and microclimate, enrich the local urban biodiversity, and add seasonal, soft and sensual expression to the building. Stories provides habitat for an expanded collective of humans and non-humans.
from olafgipser


