"좋은 건물은 좋은 사람들에게서 나오며, 모든 문제는 좋은 디자인으로 해결된다." – 스티븐 가디너

건물도 선글라스가 필요해요! Tamouz Architecture & Construction Group-Sarv Office Building
Sarv Office Building은 현대 건축의 중요한 요소인 에너지 효율성과 지속 가능한 재료를 결합한 혁신적인 건축물입니다. 이중 레이어 파사드를 통해 외부 환경과 유기적으로 연결되면서도, 내부 공간에서는 프라이버시와 개방성을 동시에 제공합니다. 이 건물은 자연광을 실내로 부드럽게 들여오면서도 강한 햇빛을 차단하여 쾌적한 실내 환경을 유지하는 동시에, 도시와의 조화를 이룹니다. 지속 가능한 재료를 사용한 이 건축물은 자연과 함께 숨 쉬는 공간으로, 에너지 효율성을 극대화하며 도시 속에서 독립적인 장소를 제공합니다.
Sarv Office Building의 이중 레이어 파사드는 나무와 금속을 사용해 외부와의 시각적 연결을 유지하면서도 자연광을 부드럽게 실내로 들여오는 역할을 합니다. 또한, 파사드는 강한 햇빛을 차단해 실내 온도를 적절히 유지하는 동시에 자연 환기를 통해 쾌적한 실내 환경을 제공합니다. 이러한 디자인 요소는 도시 환경과 조화를 이루며 건물이 외부로부터 독립된 공간을 제공하면서도 자연과의 상호작용을 강조하는 건축 철학을 반영합니다.
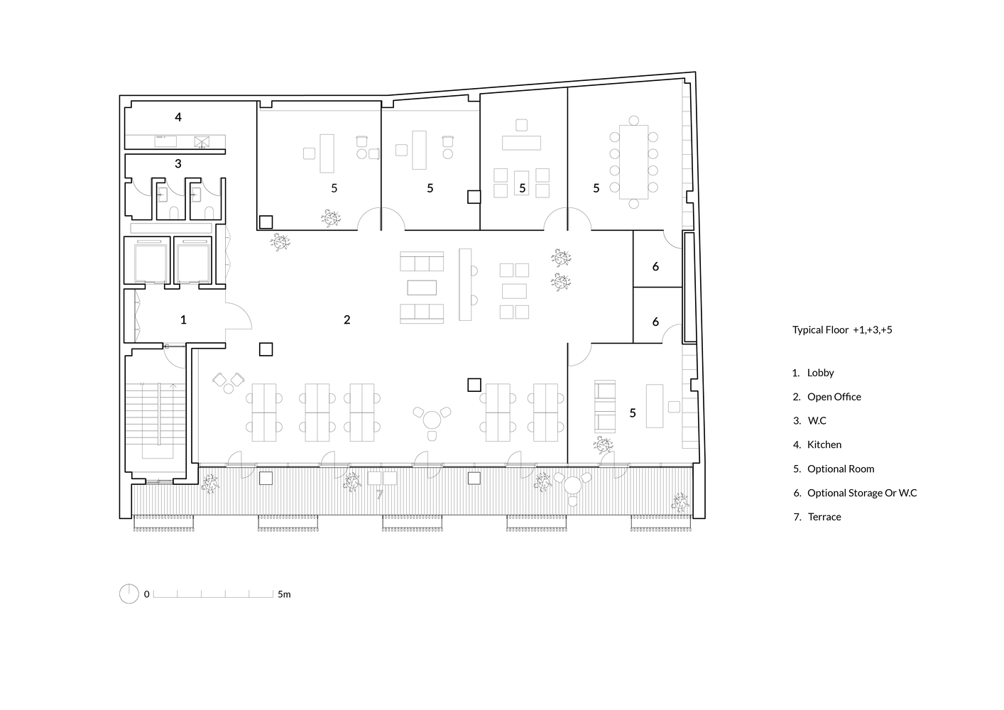
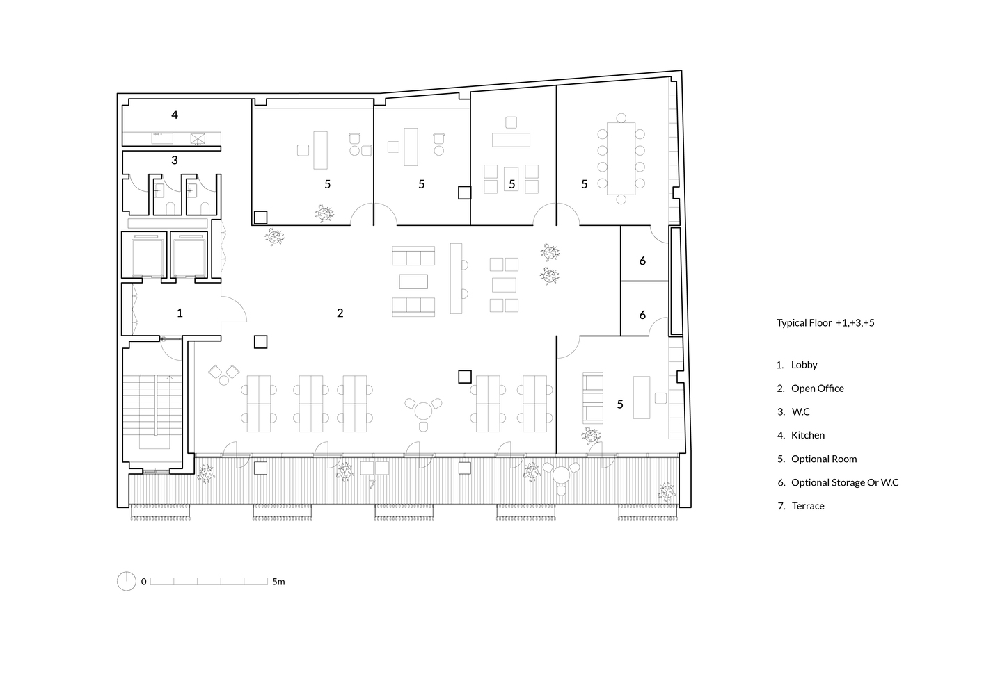
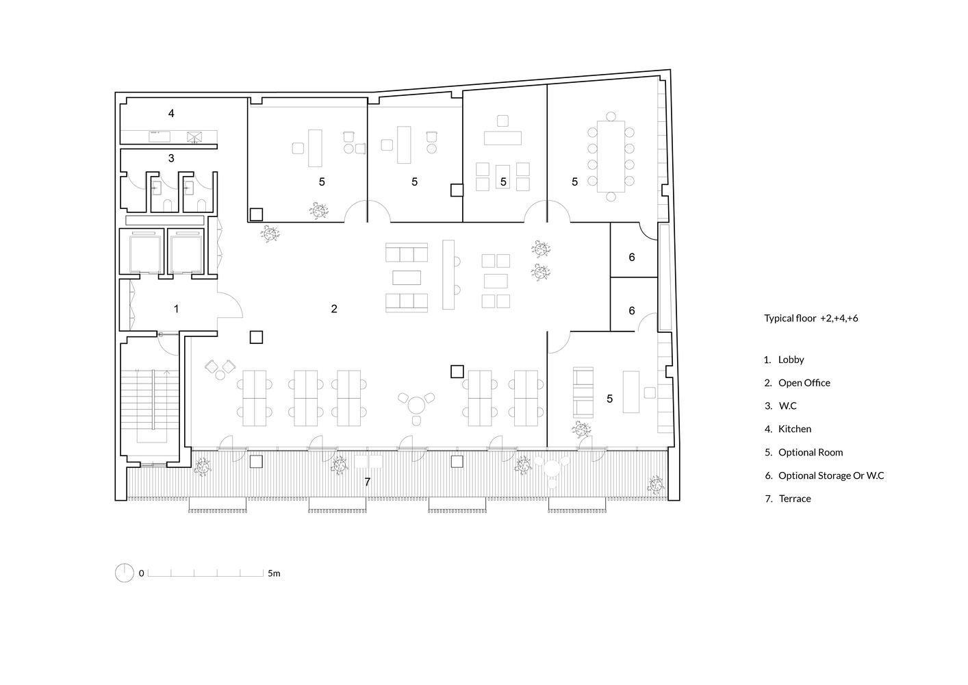
건물의 내부와 외부 공간은 유기적으로 연결되어 있으며, 각 층마다 있는 테라스는 사용자들이 외부 환경을 느낄 수 있는 공간을 제공합니다. 이 테라스는 나무 격자를 통해 시각적 차단과 개방감을 동시에 제공하여, 외부 경관을 즐기면서도 프라이버시를 보호합니다. 지속 가능한 재료를 사용한 건물의 외관은 도시 속에서 자연을 느낄 수 있는 공간으로 설계되었으며, 도시 환경과 자연의 조화를 이루고자 하는 건축가의 의도가 뚜렷하게 드러납니다.
Sarv Office Building은 밀집된 도시 환경 속에서도 자연을 포함한 설계로 미래 지속 가능한 건축의 방향성을 제시합니다. 이 건축물은 도시와 자연을 연결하는 새로운 형태의 공간을 창출함으로써, 현대 건축의 중요한 트렌드를 반영하고 있으며, 지속 가능한 건축의 미래를 선도하는 사례로 남을 것입니다.
Write by ChatGPT & 5osa

















Disorder/Order – Scattered/Arranged – Unorganized/Organized – Not seeing/Seeing – Unseen/Seen – Shade/Light – Closed/Open –Shell/Space. These opposing concepts were central to the design challenges faced by the Sarv administrative building project. Initially referred to the design team in June 2017 for façade approval, the building posed unique architectural problems. It was a partially constructed structure with 100% plot coverage, limiting the potential for natural light and ventilation to just one side—the southern façade. This constraint heavily influenced the design team's approach, as they sought to balance functional requirements with aesthetic and spatial considerations.
Given the building's initial form, it became clear that the façade needed more depth. A simple, flat surface would not suffice. Instead, the façade had to evolve from a mere protective "shell" into an intermediate space that not only framed the building but actively engaged with its surroundings. The southern side presented a complex challenge: it needed to be semi-open, allowing natural light to penetrate deep into the interior while shielding the space from harsh, direct sunlight. Moreover, it had to strike a balance between openness and privacy transparent enough to connect the building with the outside world, yet closed enough to provide a sense of enclosure and security. This duality was key: a space that could "see" the outside but remain "unseen" from within, creating a dynamic interaction between the interior and exterior.
To achieve this, the boundary between the building and the city was defined by two distinct layers. The first, closer to the interior, consisted of large, transparent windows that allowed natural light to flood the space, enhancing visibility and openness. The second, external layer was semi transparent, composed of wooden railings and steel planters, forming a permeable screen. This outer layer acted as a filter, regulating light and airflow while providing a sense of privacy for the occupants. The space between these two layers became an active zone—partially open, serving both functional and aesthetic purposes, and softening the transition between the building and its urban environment.
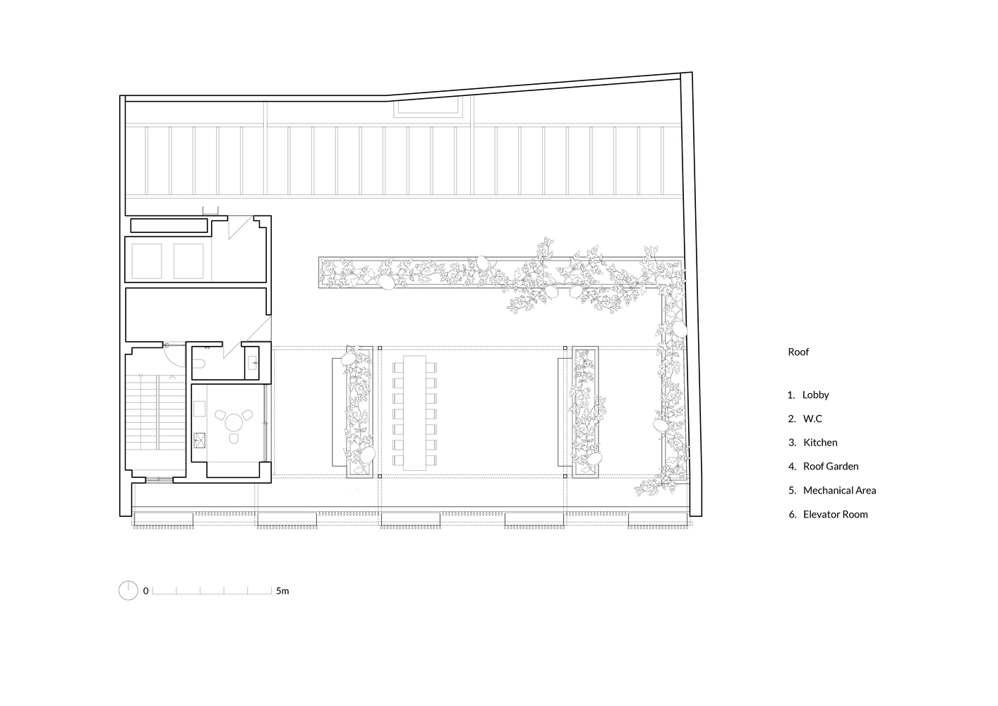
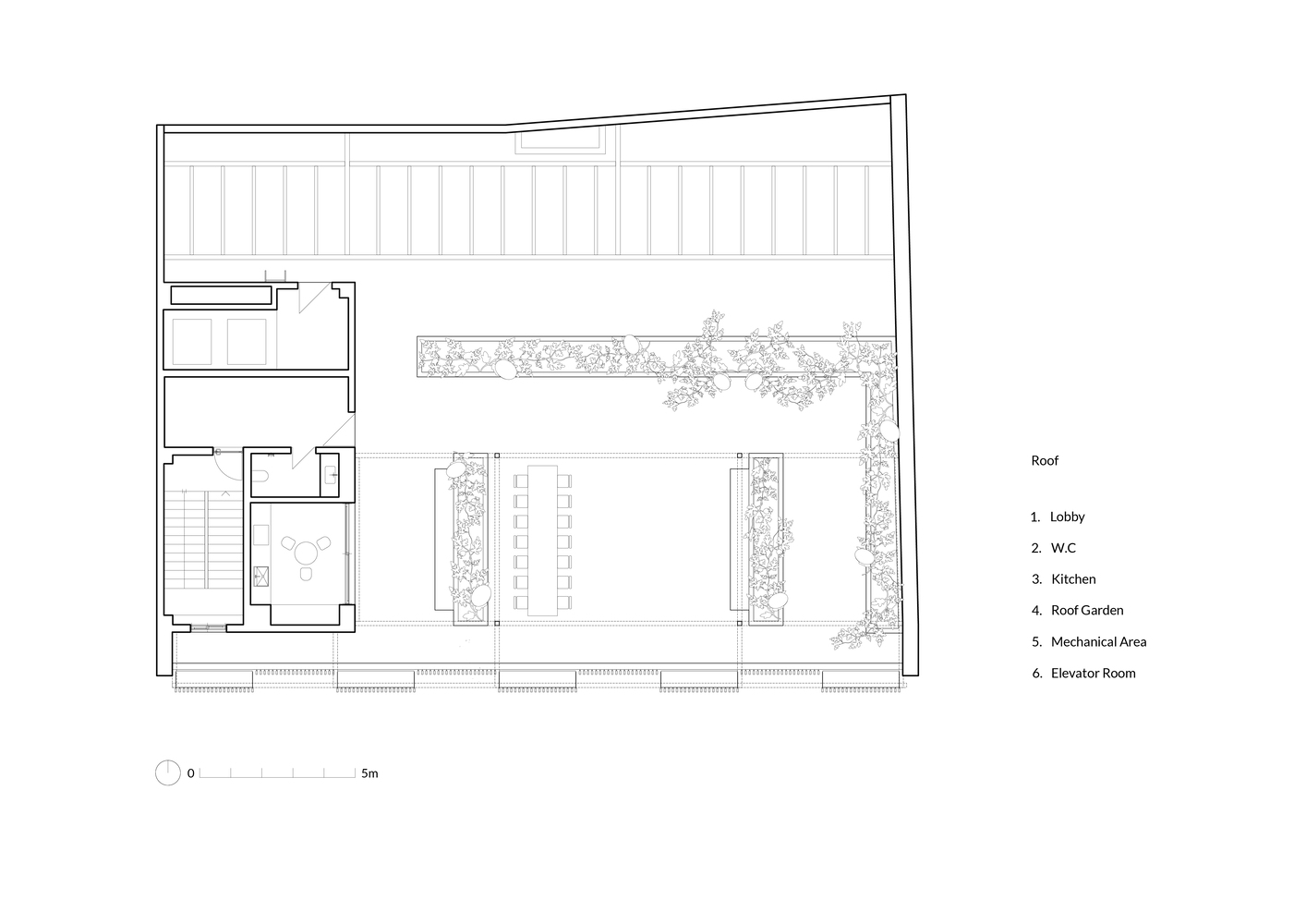
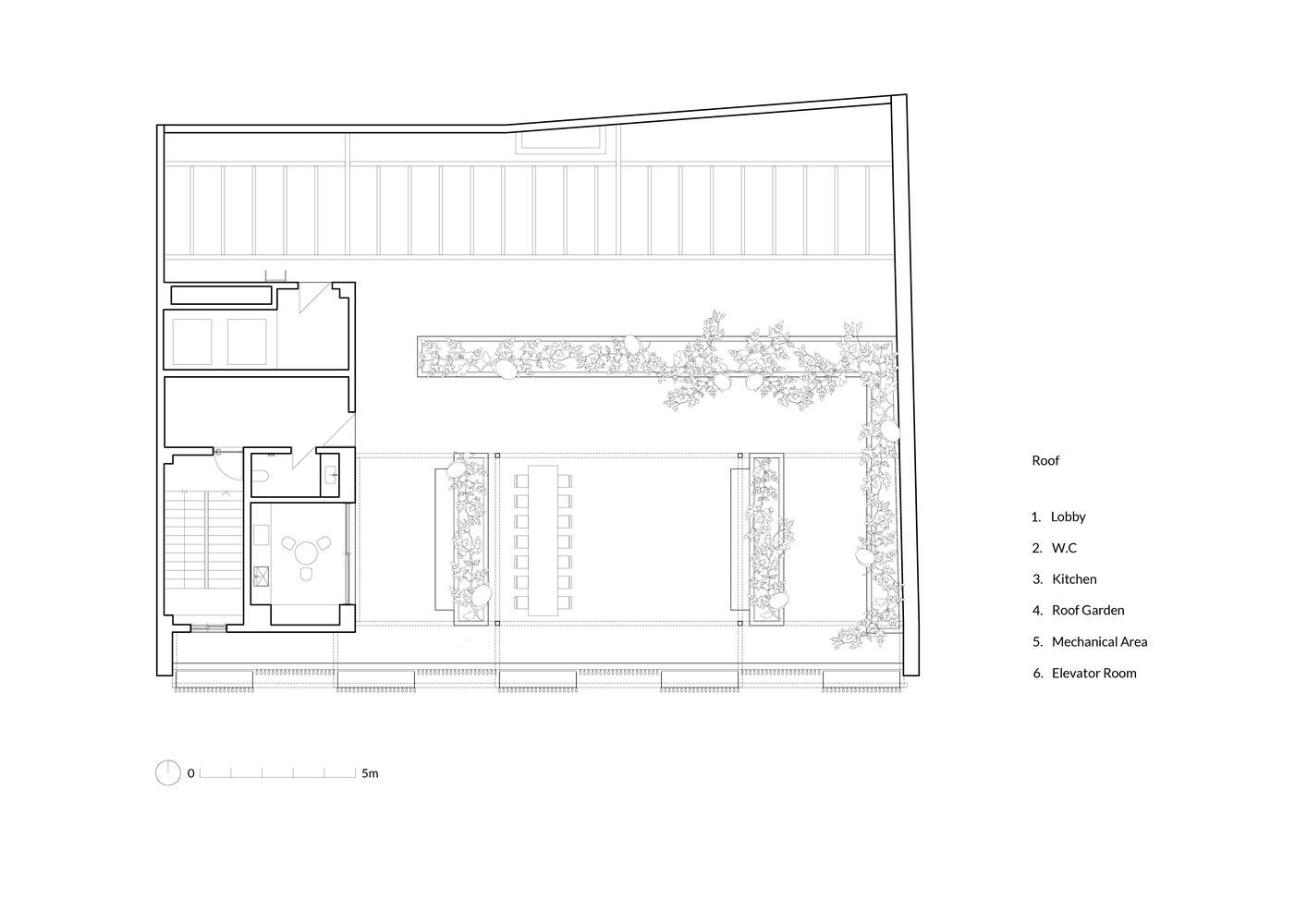
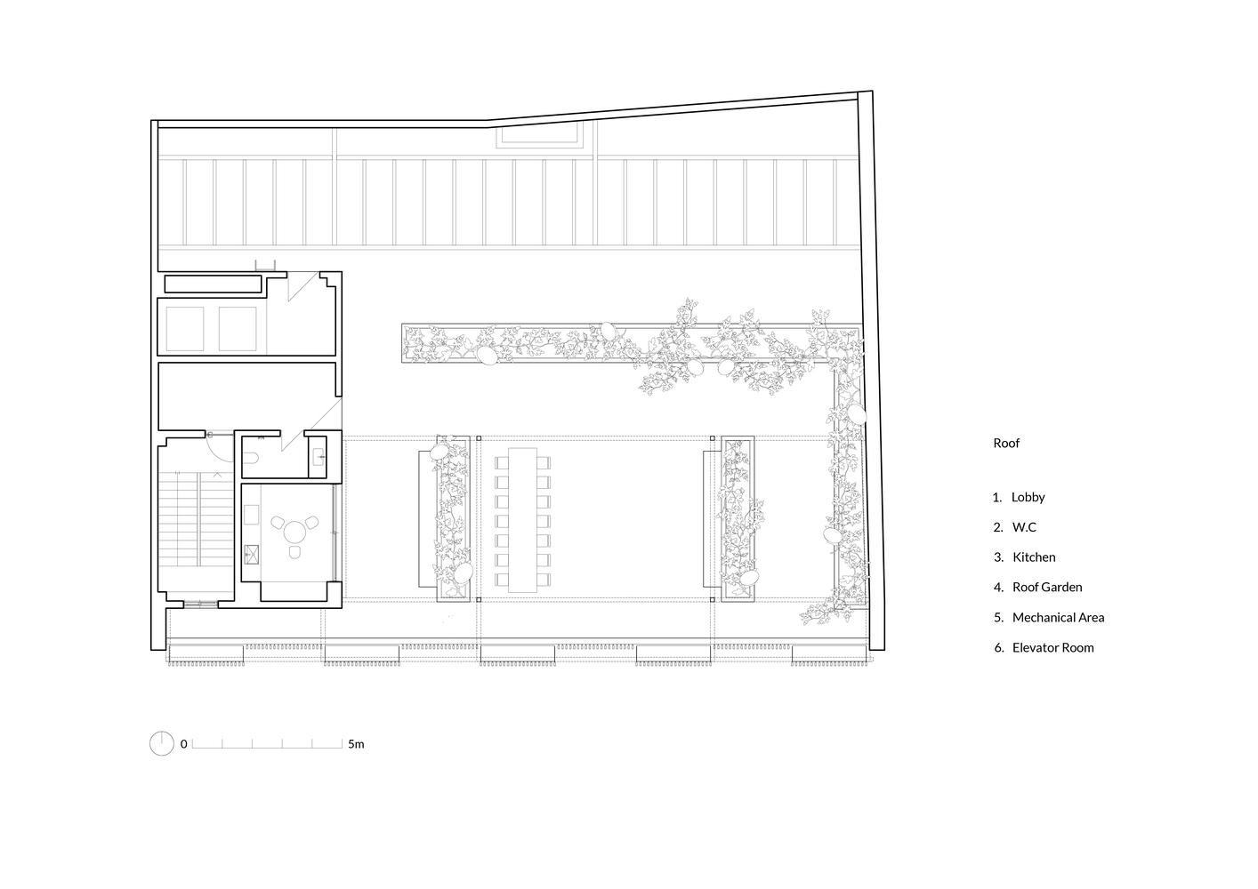
This design language was extended to the rooftop, continuing the concept of layered transparency and semi transparency. The rooftop was not merely a functional space but an integral part of the building's interaction with the city, offering views, light, and air while maintaining a degree of seclusion.
The careful organization of the façade and rooftop extended into the building's interior design. The arrangement of service zones, common areas, and mechanical and electrical systems followed the same principles of layering, openness, and controlled interaction with the environment. Each element was deliberately integrated to create a cohesive whole—an architectural response that balanced contrasts and reconciled opposing forces within a unified design.
from archdaily