"우리는 건축을 통해 우리의 이상을 표현한다." – 알랭 드 보통

![]() |
![]() |
![]() |
캔틸레버의 미학, 데이터 과학 센터에서 보스턴 하늘을 가르다. KPMB Architects- Boston University Center for Computing & Data Sciences
Boston University Center for Computing & Data Sciences는 KPMB Architects가 설계한 건물로, 지속 가능성과 학문적 교류를 촉진하는 혁신적 공간입니다. 본 글에서는 이 건물이 도시 경관과 조화를 이루는 랜드마크로서의 역할과, 환경적 지속 가능성과 인간 중심의 디자인이 결합된 독창적 접근 방식을 탐구합니다.
프로젝트 개요
프로젝트명: Boston University Center for Computing & Data Sciences
설계자: KPMB Architects
위치: 미국 보스턴, 찰스 강변
Boston University의 데이터 과학 센터는 도시와의 연결성을 중시하여 설계된 지속 가능한 19층 건축물입니다. 보스턴에서 가장 친환경적이며, 화석 연료 없이 운영되는 첫 대형 학술 건물로 평가받고 있습니다.
설계 컨셉
이 건물의 주요 설계 목표는 지속 가능성과 협업 공간의 극대화입니다. 캔틸레버 방식으로 쌓아 올려진 외관은 미학적 요소를 넘어서 도시 경관과 조화를 이루며, 지속 가능성을 상징합니다. 캔틸레버 구조는 한쪽 끝이 고정되고 다른 쪽이 떠 있는 형태로, 건물의 각 층이 상하로 연결되며 역동적 이미지를 형성합니다. 또한, 대각선 루버와 톱니형 파사드는 햇빛을 효율적으로 차단하여 여름에는 건물이 시원하게, 겨울에는 따뜻하게 유지되도록 돕습니다.
설계 구현과 지속 가능성
Boston University Center for Computing & Data Sciences는 100% 화석 연료에 의존하지 않고 운영되며, 지열 시스템을 통해 에너지 절감 효과를 극대화했습니다. 지열 시스템은 지하의 열을 이용해 건물의 난방과 냉방을 담당하며, 도시 환경에서 에너지를 효율적으로 사용할 수 있도록 최적화되었습니다. 건물 외관의 금속 루버는 빛을 반사하여 세련된 이미지를 형성하고, 삼중 유리 커튼 월은 보스턴 도심과 강변의 풍경을 실내로 끌어들여 자연과의 연결을 강조합니다.
주요 설계 요소
지속 가능성: Boston University Center는 글로벌 친환경 건축 트렌드와의 비교에서 독특한 지속 가능성 전략을 보여줍니다. 예를 들어, 지열 시스템과 고성능 차양 시스템은 에너지 절감 효과를 높이며, 이러한 기술은 친환경적 도시 설계의 새로운 기준을 제시합니다.
기술 혁신: 삼중 유리 커튼 월은 강력한 단열 성능을 제공하여 실내 온도를 조절하고, 에너지 절감을 지원합니다. 이는 건물의 에너지 효율성을 높이는 데 큰 역할을 하며, 외부의 환경적 요소를 실내로 자연스럽게 유입시켜 공간의 쾌적함을 유지합니다.
내부 및 외부 디자인
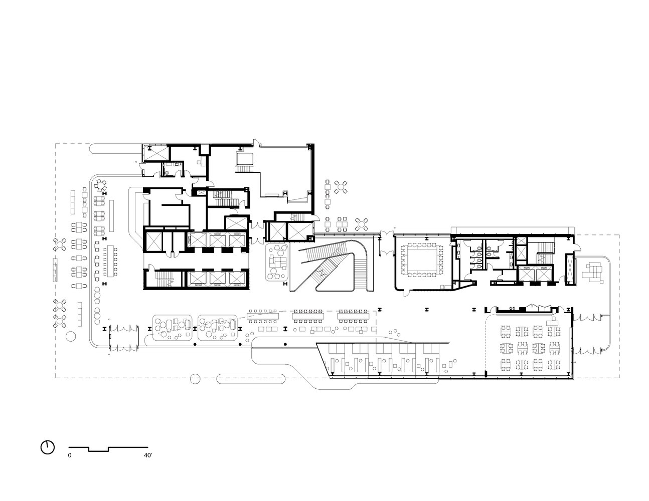
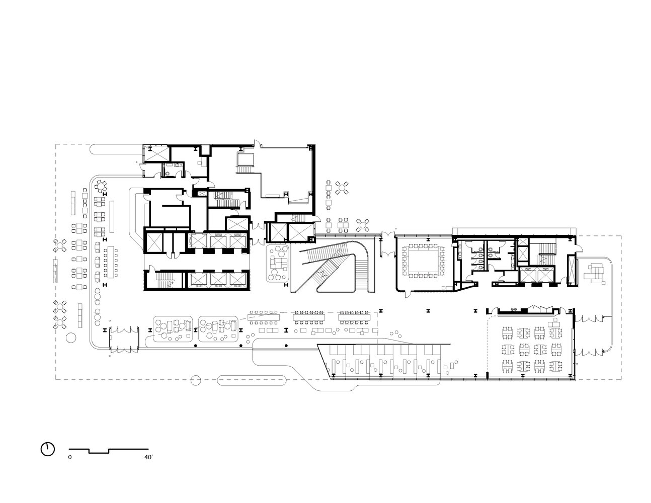
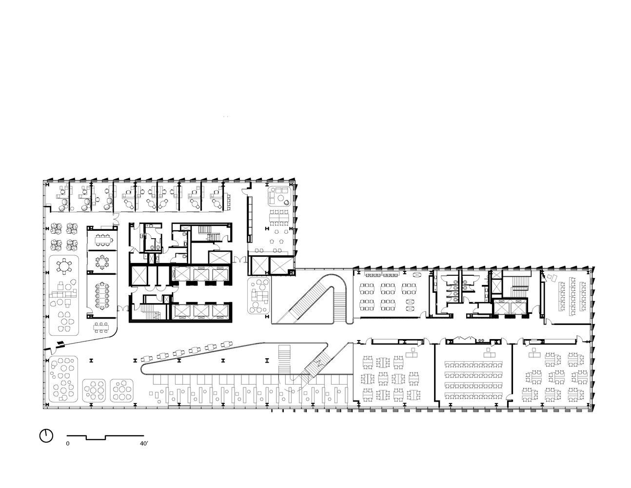
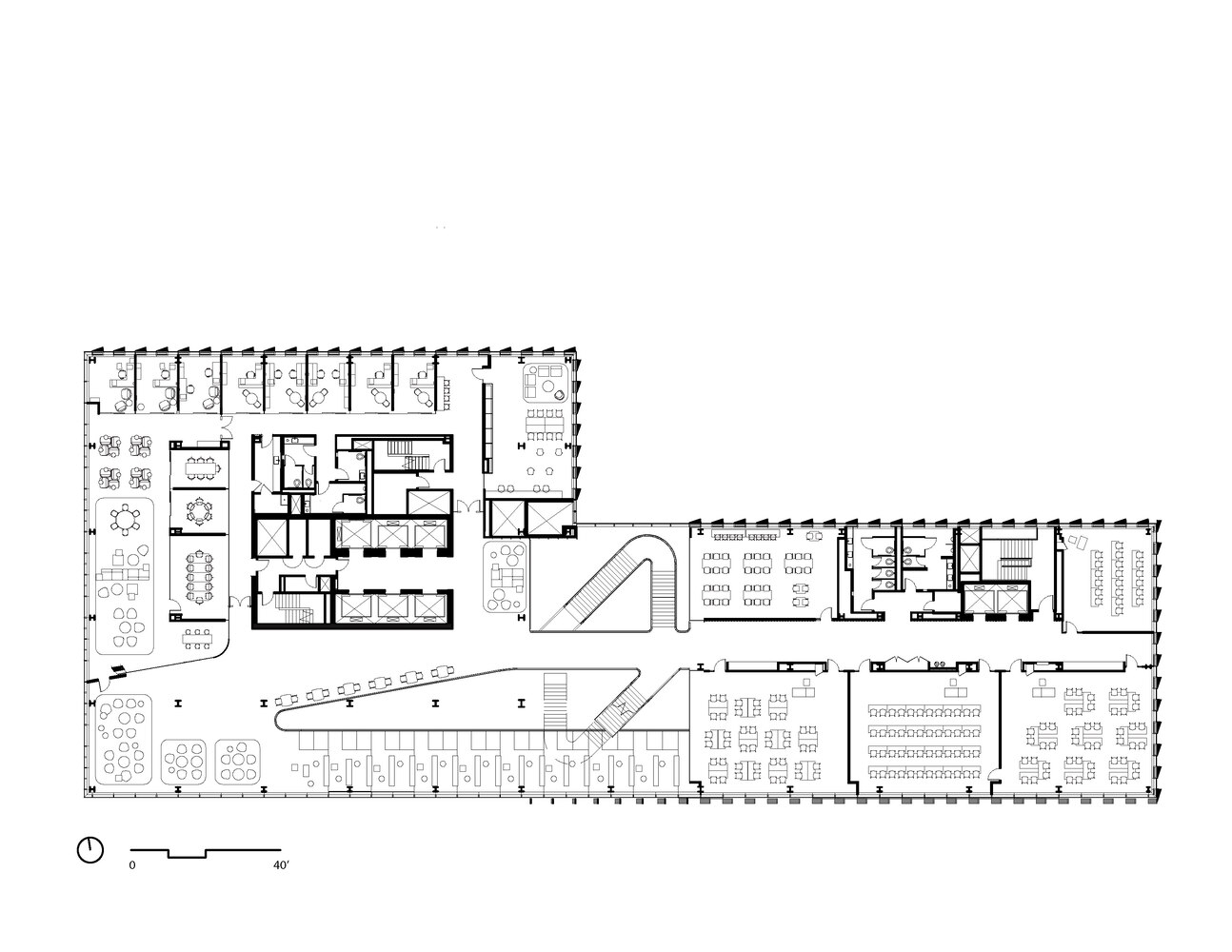
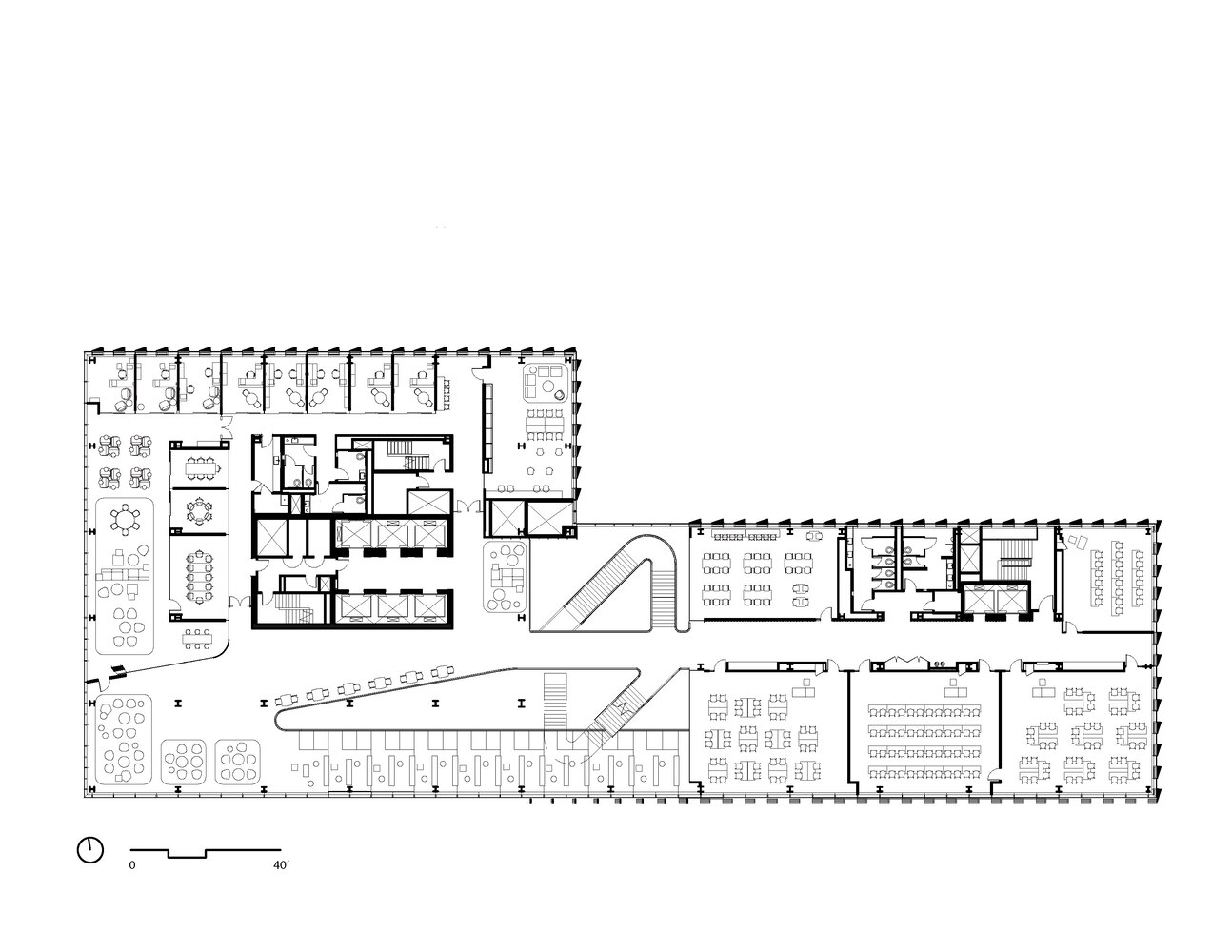
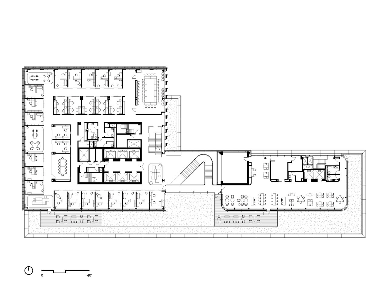
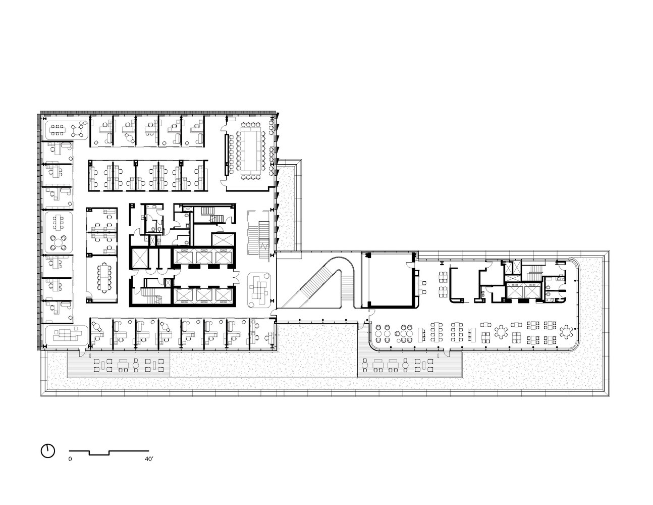
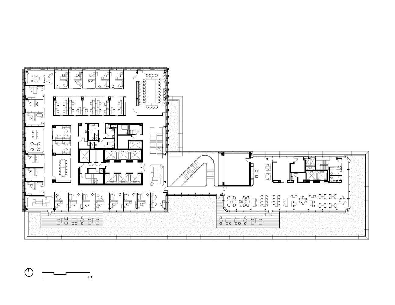
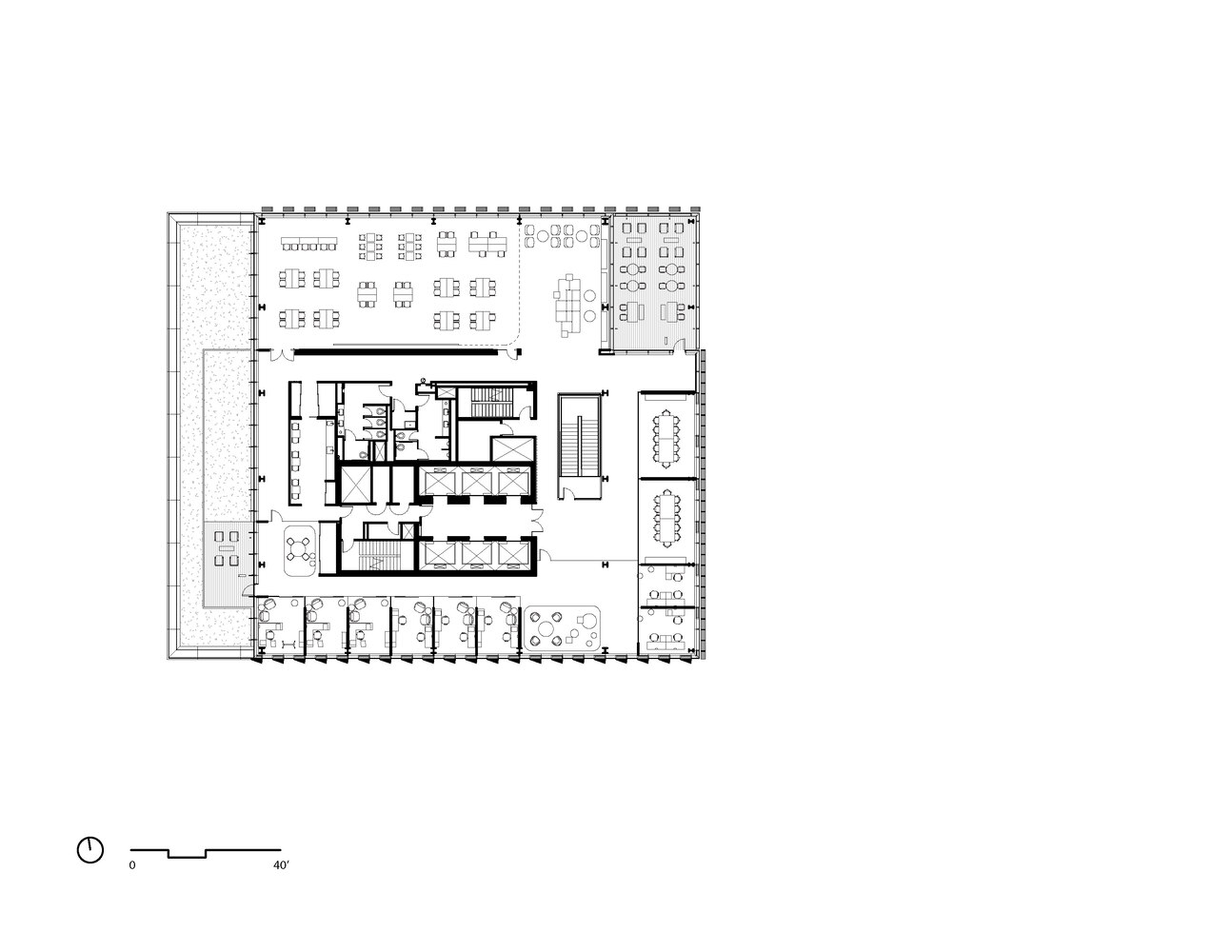
내부 디자인: 중앙 아트리움과 상호 연결된 계단은 학문적 교류를 촉진하는 중심 요소로 작용합니다. 아트리움의 넓은 창은 자연 채광을 통해 밝고 열린 공간을 제공하며, 계단은 층간 이동의 통로 역할을 넘어 교류와 협업을 위한 공간으로 설계되었습니다. 각 층에 설치된 화이트보드 벽은 학생과 교수들이 아이디어를 시각화하고 공유하는 데 용이하게 합니다.
외부 디자인: 외관은 도시와 강변의 경관을 반영하도록 설계되었습니다. 반사 유리와 갈색 루버가 어우러져 시간대에 따라 외관의 색채가 변화하며, 유리 커튼 월은 내부에서 보스턴 도심과 강변의 자연을 감상할 수 있는 열린 시야를 제공합니다. 이 설계는 사용자에게 자연과 학문을 연결하는 영감을 제공합니다.
글로벌 건축 트렌드와 비교 분석
Boston University Center는 최근 지속 가능성을 중시하는 글로벌 건축 트렌드와 조화를 이루면서도, 고유한 디자인 전략을 통해 차별화된 가치를 부여합니다. 다른 친환경 건축물과 비교했을 때, Boston University Center는 고유의 지열 시스템과 차양 시스템을 통해 독창적 설계를 구현하여, 지속 가능성을 향한 건축적 방향성을 선도합니다.
인사이트와 전문가 의견
이 건물은 학술 건축물의 미래를 제시하며, 친환경 설계의 새로운 기준을 제시합니다. 특히 전문가들은 본 건물을 교육 기관에 적합한 지속 가능한 모델로 평가하며, 향후 이러한 설계 방식이 더 많은 교육 기관과 공공 건축물에 영향을 미칠 것으로 기대하고 있습니다.
사용자 경험
이 센터는 층별 학과 배치를 통해 자연스럽게 학문적 교류와 협력을 유도합니다. 학생과 교수들은 쾌적한 환경에서 학문적 영감을 얻고, 자연과 연결된 학습 경험을 누리며 공간의 가치를 직접 체험하고 있습니다. 계단을 중심으로 한 설계는 교류의 기회를 극대화하며, 사용자들에게 공간과 상호작용을 통해 새로운 아이디어를 창출하는 환경을 제공합니다.
3. 결론
Boston University Center for Computing & Data Sciences는 지속 가능성과 혁신적 디자인을 결합하여 현대 건축의 새로운 기준을 제시합니다. 이 건물은 단순한 학술 공간을 넘어, 지속 가능한 건축의 중요성과 가치를 널리 전달하며 미래 학술 건축물에 중요한 참고 사례로 자리매김할 것입니다.
Write by ChatGPT & 5osa






















The Center for Computing & Data Sciences at Boston University is a landmark for the university. It transforms the skyline, meets laudable sustainability goals, and prioritizes human centered design, maximizing collaboration and interconnectivity. The project brings together the mathematics, statistics, and computer science departments, building community among the 3000 students, faculty, and staff. Realized as a vertical campus.
Towering boldly over the banks of the Charles River at 19 stories, and spanning 345,000 square feet, the Center is the largest, sustainable, operational fossil fuel free building in Boston. Recognized by its cantilevered volumes that feature both reddish-brown-colored diagonal louvered (to minimize solar gain and maximize shading) and gleaming mirrored sawtooth facades that rest atop the triple-glazed curtain wall that clads the structure. While contributing to the building’s distinctive linear aesthetic, these design elements also contribute to comfort and sustainability efforts, keeping the building warmer in the winter and cooler in the summer.
The podium juts out to hover over Commonwealth Avenue to complete the streetscape and generate maximum ground-floor animation on the avenue. Highly transparent and porous, it functions as an urban porch for arrival, study, and gathering. The Center is conceptualized to function as ascending academic neighborhood with lower floors devoted to math and statistics, middle floors for computer science, and top floors for interdisciplinary work and public space. A central atrium unites faculty and students in a collaborative spirit and an interconnected staircase emerges from the area weaving upwards of 138 floors to connect various disciplines, nurture cross-pollination of ideas, and spark serendipitous encounters.
The design sets an ambitious new sustainability precedent for future academic buildings in Boston and beyond. In line with Boston University’s Climate Action Plan, which aims to reduce the institution’s carbon emissions to zero by 2040, the Center is targeted to attain LEED Platinum and is 100% operational fossil-fuel free with a geothermal closed loop system that heats and cools the building through a ground source heat pump system.
The building draws on renewable and alternative energy sources, including groundwater recharge systems and cutting-edge exterior shading systems. Open interior spaces take advantage of the Center’s unique position in the heart of Boston, with expansive river views afforded from three sides of the building. Classrooms and collaboration spaces are illuminated with an abundance of light with floor-to ceiling windows to remind students enveloped in the digital realm to remain inspired by the natural world and remember the link between technology and humanity. Whiteboard walls throughout the core stimulate collaborative ideation while putting processes on display.
The state-of-the art building includes 12 classrooms, two computer labs, a cafe on the ground floor, numerous collaboration spaces, and a plaza with a covered bike shelter. The stacked campus culminates in an event space and a three-story-high open-air pavilion. Green roofs and terraces are located throughout the Center to connect students, faculty, and staff to the natural environment, and offer views of the city. These open spaces allow for increased connection and collaboration among the various departments that now call the Center home.
FROM ARCHDAILY


