"건축은 단순히 공간을 만드는 것이 아니라, 그 안에 이야기를 담는 일이다." – 알바 알토

바다와 벽돌이 어우러진 독창적 공간 One Plus Partnership-Haikou GAOXINGLI Insun Cinema
Haikou Gaoxingli Insun Cinema는 중국 하이난섬의 해변가에 위치한 영화관으로, 해변과 바다의 이미지가 유리나 파란색이 아닌 벽돌이라는 소재를 통해 색다르게 표현되었습니다. 이 영화관은 하이난섬의 모래와 파도를 벽돌로 상징화하여, 지역적 정체성과 독창적인 건축적 해석을 담아낸 공간입니다.
프로젝트 개요:
프로젝트명: Haikou Gaoxingli Insun Cinema
설계자: One Plus Partnership
위치: 중국 하이난섬 하이커우
설계 의도: 바다와 모래의 자연적 요소를 벽돌이라는 독특한 소재로 재해석하여, 하이난섬의 지역성을 건축적으로 풀어내고자 했습니다.
설계 컨셉의 구현:
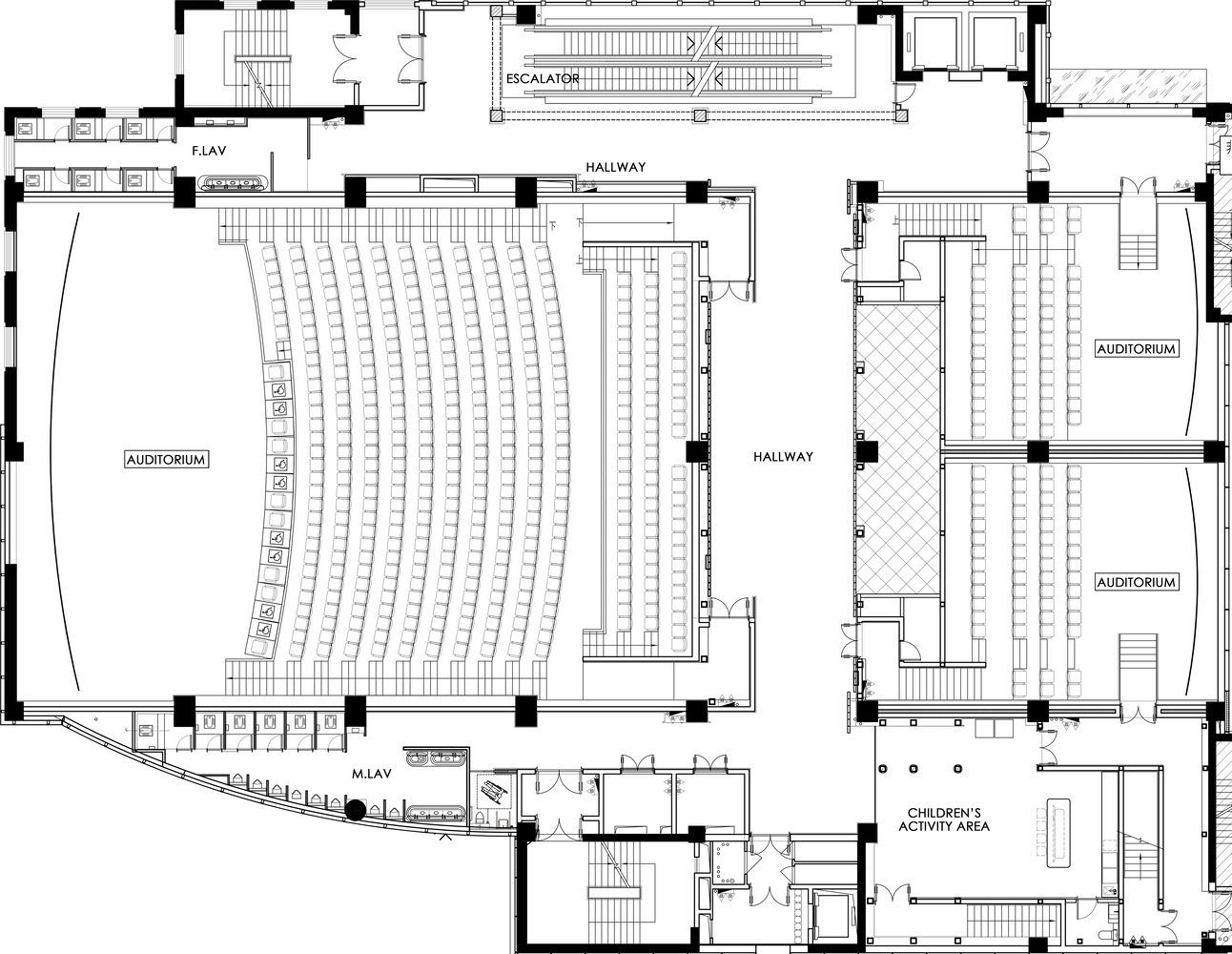
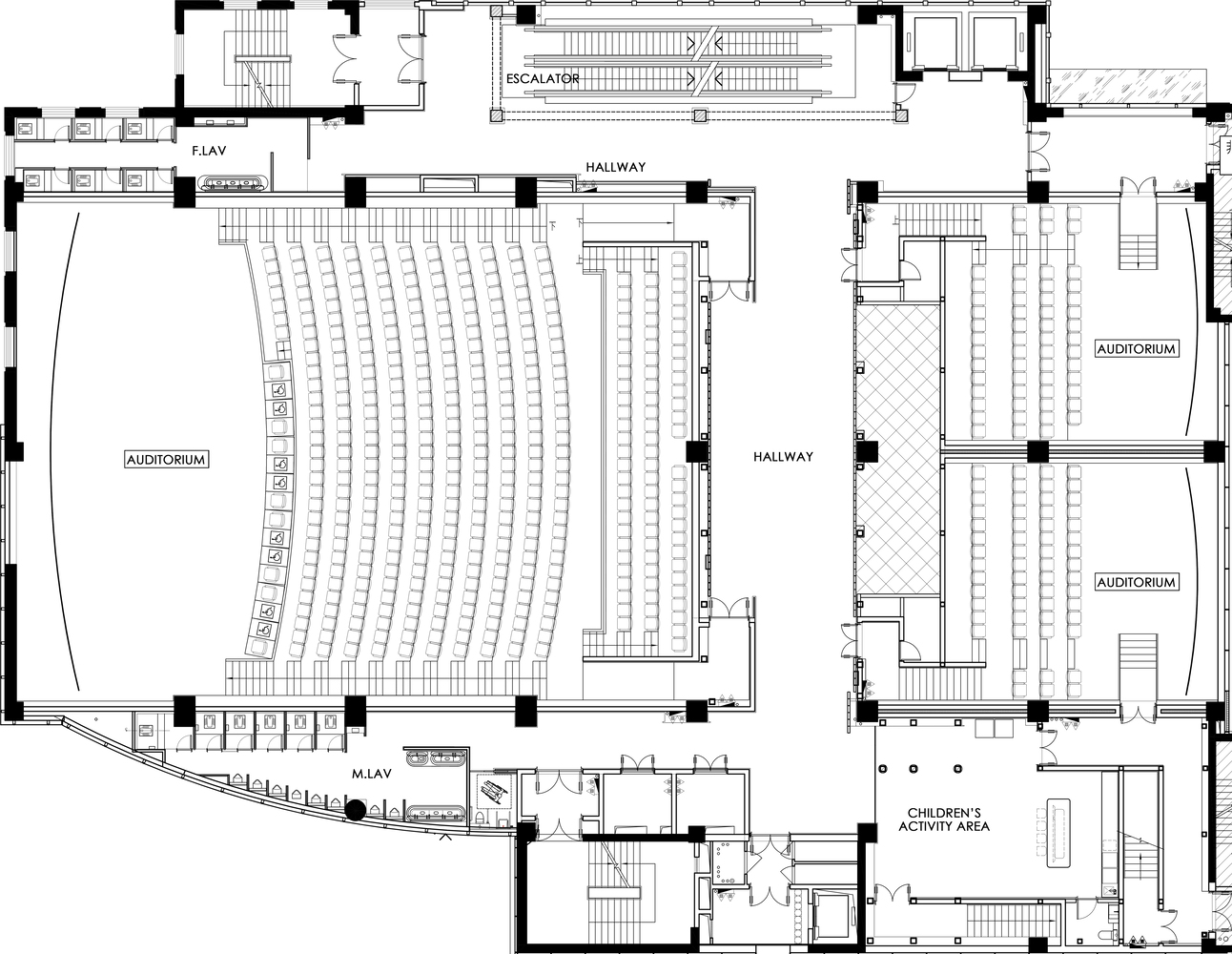
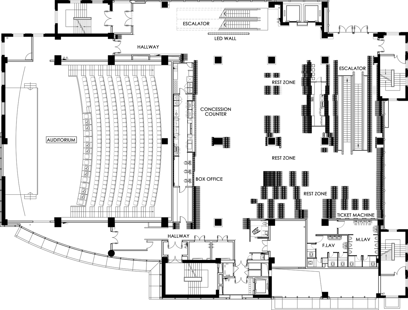
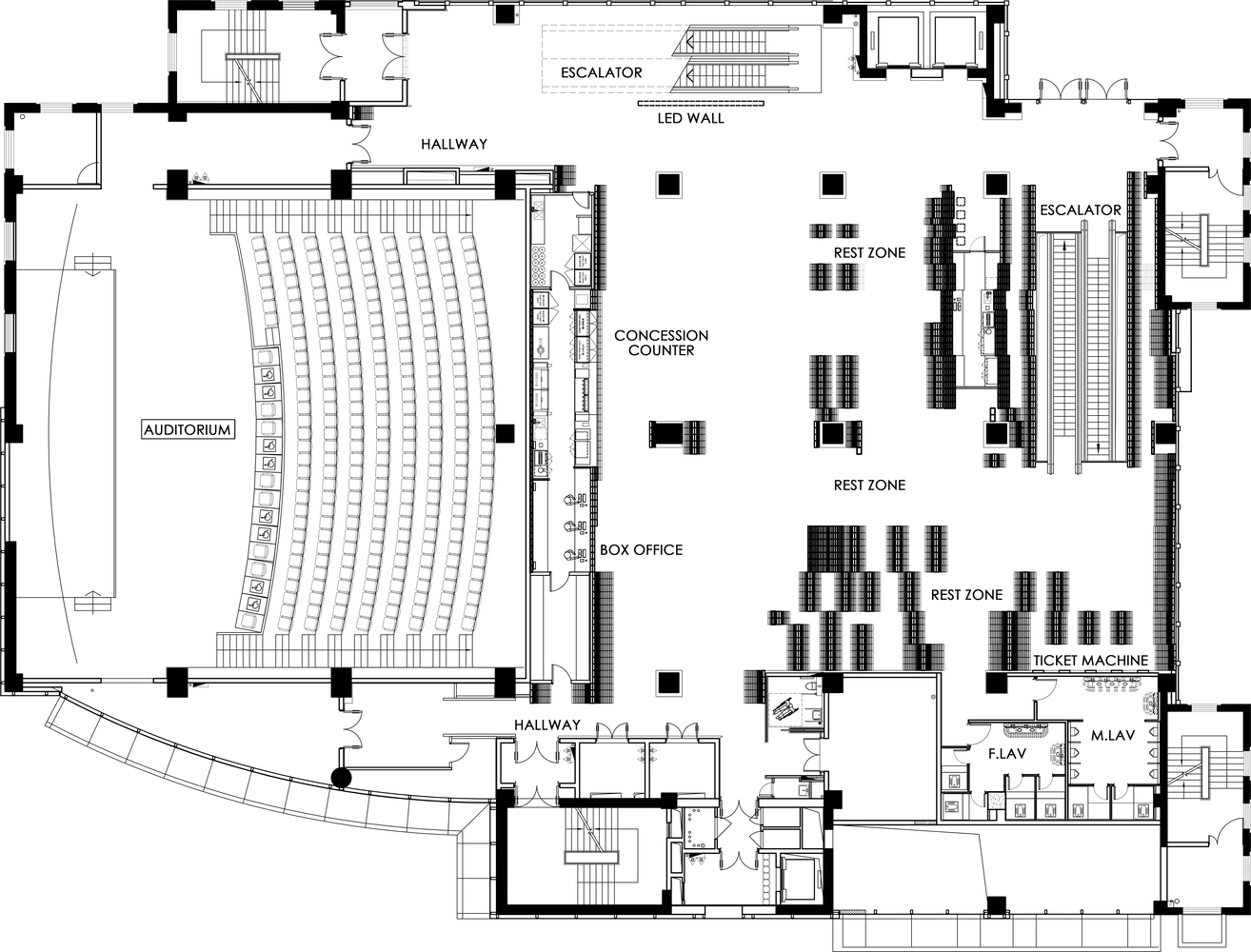
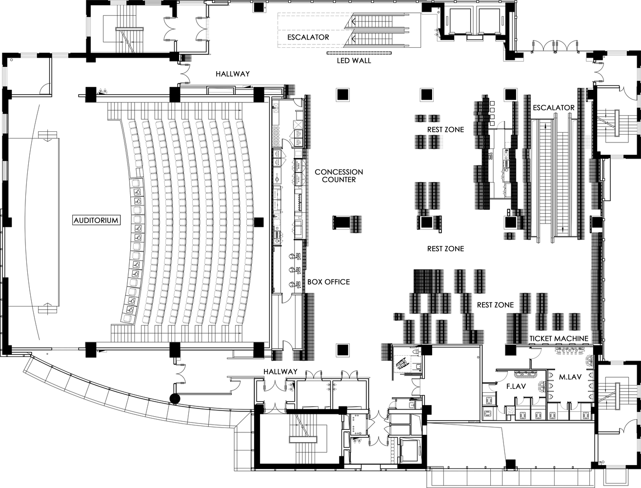
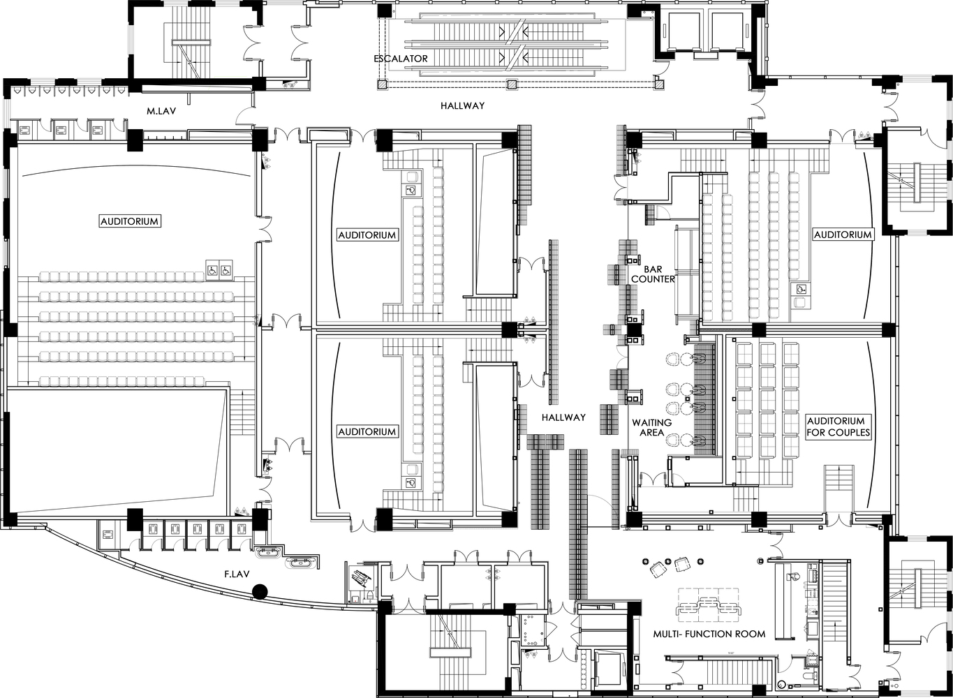
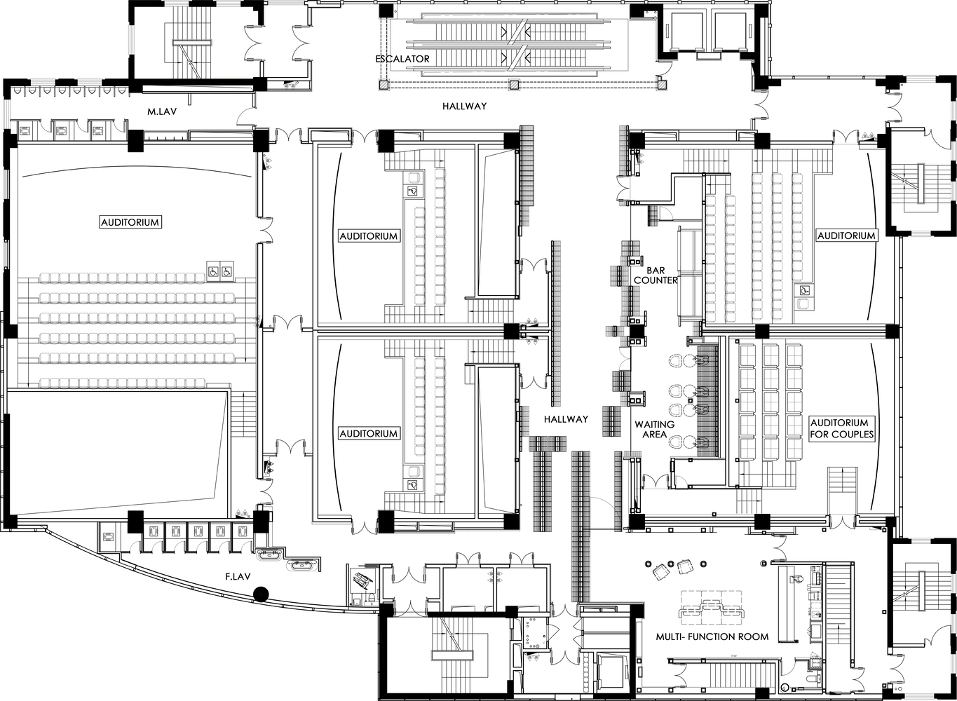
구성 및 배치: 영화관의 주요 구성 요소는 파도의 유동성을 연상시키도록 곡선형 벽돌로 배치되었습니다. 천장과 벽이 자연스럽게 이어지며 공간의 경계가 흐려져, 개방적이면서도 연결된 느낌을 제공합니다. 비대칭적 곡선 구조는 유려한 흐름을 형성하며, 각 공간의 시각적 경계를 넘어서는 넓은 시야를 제공합니다. 영화관 내부로 풍부한 자연광이 유입되도록 설계되어 시간에 따라 변화하는 분위기를 만들어냅니다. 이 자연광은 벽돌의 색감을 변화시키며 다채로운 분위기를 연출합니다.
소재 및 질감: 벽돌은 해변 모래의 질감을 재현하며 공간에 따뜻함과 친근함을 부여합니다. 벽돌의 거친 질감과 따뜻한 색조는 공간을 편안하면서도 견고하게 느끼게 하여, 관객들에게 안정감과 친숙함을 제공합니다. 벽돌이라는 소재는 하이난섬의 해변 모래를 상징함과 동시에 지속 가능한 건축 소재로서의 장점을 지니고 있습니다.
빛과 색채: 간접 조명과 자연광이 조화롭게 배치되어 벽돌의 온화한 색감을 돋보이게 합니다. 조명은 벽돌 표면의 질감을 더욱 부각시켜, 시간에 따라 변화하는 색조와 빛의 조화가 공간에 깊이감을 더해줍니다. 은은한 색조는 시각적 일관성을 유지하며 관객들이 스크린에 자연스럽게 집중할 수 있게 도와줍니다.
주요 설계 요소:
맥락과 의미: 하이난섬의 자연적 맥락을 반영하여 바다와 모래의 조화를 통해 지역적 정체성을 드러냅니다. 이 건축물은 지역 문화와 자연의 요소를 현대적 시각으로 재해석하여, 방문자들에게 친숙하고 동시에 신선한 감각을 제공합니다.
기능과 사용성: 공기 배출구와 간접 조명은 사용자의 경험을 방해하지 않도록 숨겨져 있으며, 영화 관람 외에도 다양한 사회적 활동이 가능하도록 설계된 이 공간은 커뮤니티 허브로서의 역할을 수행합니다. 이로 인해 영화관은 단순한 관람 공간을 넘어 지역 사회와 연결된 다목적 공간으로 기능합니다.
기술적 세부 사항: 벽돌을 이용한 곡선형 구조물은 고도의 기술적 숙련도를 요구하는 시공 방식으로, 이를 통해 시공 과정에서의 도전과제를 극복하고 구조적 안정성과 미적 요소 모두를 충족시켰습니다.
내부 및 외부 디자인:
내부의 곡선형 벽돌 패턴은 바다의 유동적인 흐름을 시각적으로 표현하며, 천장과 벽의 곡선 디테일이 바다의 파도를 연상시킵니다. 이 파도 모양의 디자인은 공간에 동적인 에너지를 부여하고, 관객들에게 시각적 흥미를 유발합니다.
글로벌 건축 트렌드와 비교 분석: 글로벌 트렌드에서 해안가 건축물은 주로 파란색과 유리 소재를 활용하여 바다를 표현하는 경향이 있습니다. 그러나 Haikou Gaoxingli Insun Cinema는 전통적인 색상 사용을 피하고, 벽돌이라는 원초적 재료를 통해 바다를 상징하는 독특한 접근 방식을 택했습니다.
인사이트: 이 프로젝트는 해안 건축물 디자인에 새로운 가능성을 제시하며, 자연 소재를 활용한 친환경적 트렌드를 반영하고 있습니다. 벽돌을 통해 하이난섬의 바다와 모래의 이미지를 재해석한 점에서 독창적인 시도를 보여줍니다.
사용자 경험: 벽돌의 질감과 온화한 색조가 공간에 부드러움과 견고함을 동시에 부여하여, 관객들에게 감각적 경험을 제공합니다. 벽돌의 질감, 자연광, 은은한 색조의 조합은 영화 관람의 몰입도를 높이며 사용자에게 안락함과 따뜻한 분위기를 제공합니다.
결론
Haikou Gaoxingli Insun Cinema는 전통적인 바다 색상을 배제하고 벽돌을 활용하여 해양의 이미지를 독창적으로 표현한 영화관입니다. 벽돌을 통한 해양 이미지의 재해석은 해안 건축 디자인의 다양성을 넓히며, 자연을 재료로 활용한 건축의 중요성을 강조합니다. 앞으로 해안가 건축물에서 환경 친화적이고 견고한 재료 사용이 더욱 주목받을 것으로 예상됩니다. Haikou Gaoxingli Insun Cinema와 같은 창의적인 시도는 해양과 건축의 조화를 새롭게 제시할 것입니다.
Write by ChatGPT & 5osa













Haikou is an island in China, it's situated on the north coast of Hainan Island, and the South China Sea is around the island. We wanted to create something related to the ocean because Haikou is surrounded by the ocean, but we wanted to create something unique and we didn't want to use the color blue like the ocean, so we decided to use the brick material for the theme of our design. Because bricks are made of sand which lay on the beach. Looking at this, you can perfectly build a story in your mind. This is timeless, just as bricks can be used to create beautiful and durable spaces that can't be worn down and improved as they blow out their birthday cake.
In this cinema, there is the sun that shines in. There aren't many cinemas with windows that allow the sun to shine in. We precisely placed bricks to look like waves, these waves were layered in such a way that you can see them all from any angle. All the skillfully positioned lights that hide themselves in the nook, and the air vent that you can only notice if you look up. If you looked at it from a certain angle the pieces of brick were placed so no piece would be the same length. Moving on you could see tables and chairs arranged with the tips of waves and curved ends flaring out like a bell. While the bricks walked up to make walls, painted with shades of topaz. If you observe the bricks in great detail, they are rough on the surface, but the atmosphere is softer than you imagine. The essence of the lobby can be captured in the darkest dark or in broad daylight. The bricks are carefully rearranged like the books of the midnight library. I walk around as I notice the small waves on the floor, they are painted gray on the sides which I can see from a mile away. Lights echoing onto them prevent those from tripping, all of this isn't just for the aesthetic, it's done to prevent damage to guests and visitors. If you look around you can see the waves that turn into countertops and booths, with all curves swooping in different directions.
Around the corner, pipes that raced around the ceiling, blocks of color made with velvety fabric that you could taste. The colors matched the atmosphere as anyone could smell happiness as if it was a thought. Rings of light floated around the pillars like the Iron Ring of Prometheus. On the floor, you can see a bubbly mascot looking up right at me, with actions of him floating, dancing, and skipping over the floor. Skipping over is a copper blended chair as that hugs anyone around with autumn air. We didn't miss our goal; the colors resemble kids with pastels that paint around chairs and pillars that keep the areas together like a cage.
In the first auditorium, you could see the blinding colors swooping around the walls like a paintbrush maneuvering through the walls. The colors and texture could be sensed from any room around. The dimensional fabric was cut in such a way that it looked like a fresh piece of wood, they were overlapped with colors that connected to the lobby outside. The warmth of the chairs is arranged in the chosen pattern that looks like a florist's atelier with a faint scent of lavender and peonies. We wanted to make waves with colors that aren't original, with ingredients that aren't simple.
In the second auditorium, the edges are made with panels in colors that mimic tiger lilies and rough bricks. Illuminations like margin lines that went from up to bottom. Standing at the top of the auditorium the silhouettes of the curves that rose high enough to avoid those from getting hurt, again this isn't just for the aesthetic, but from an angle, you can see the slight resemblance of the South China Sea that wraps around the island like a warm blanket. Hearing the warmth like euphoria.
from archdaily