“건축은 시간과 공간의 대화다. 이 대화를 통해 우리는 삶의 새로운 가능성을 발견한다.” – Daniel Libeskind

![]() |
![]() |
![]() |
지루할 틈 없는 도서관? 컬러 글라스와 빛의 춤이 있는 Far Rockaway Library Snøhetta-Far Rockaway Library
뉴욕 퀸즈의 Far Rockaway Library는 건축사무소 스노헤타(Snøhetta)와 브루클린 출신 현대 예술가 호세 팔라(José Parlá)의 협업으로 탄생한, 지역사회의 회복과 연대의 상징입니다. 허리케인 샌디 이후 Far Rockaway는 재난의 여파로 큰 어려움을 겪었고, 기존 도서관은 구호 센터로서 중요한 역할을 했습니다. 새로 지어진 이 도서관은 그러한 역사를 이어받아 주민들이 모이고 지식을 공유하는 커뮤니티의 중심지로 자리 잡고자 합니다. 팔라의 예술적 감각과 Snøhetta의 설계 언어가 결합하여, 이 도서관은 단순한 학습 공간을 넘어 지역의 문화와 역사를 반영하는 상징적인 건축물로 거듭났습니다.
프로젝트 개요
프로젝트명: Far Rockaway Library
설계자: Snøhetta와 José Parlá
위치: 뉴욕 퀸즈, Mott Avenue와 Central Avenue의 교차로
설계 컨셉
이 도서관의 디자인은 지역의 다문화적 특성과 사회적 회복력을 담아내고자 했습니다. 팔라의 예술적 스크립트로 장식된 오렌지 그라데이션 컬러 글라스는 뉴욕의 다양성과 활력을 시각적으로 표현하며, 지역 주민들에게 시각적인 즐거움을 선사합니다. 시간에 따라 변하는 글라스의 색상은 롱아일랜드 해안의 일출을 연상시키며, 공간 전체에 따뜻한 분위기를 더합니다. 이 도서관은 단순한 지식 저장소를 넘어, 지역 사회의 연결과 회복을 돕는 허브로 설계되었습니다.
설계 컨셉의 구현
외부 디자인: 외관의 컬러 글라스는 투명성과 반투명성을 조화롭게 사용하여 건물 내부로 빛을 유입시키고, 방문자들에게 도시의 활력을 전합니다. 이 색상 변화는 시간에 따라 다른 분위기를 조성하여, 도서관을 역동적인 시각적 요소로 만듭니다.
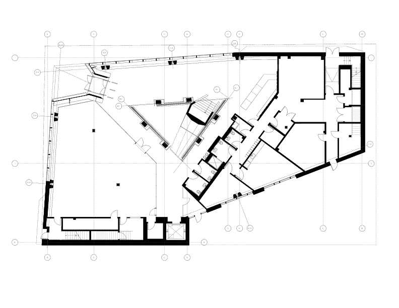
내부 디자인: 도서관 내부는 역피라미드형 아트리움을 중심으로 구성되어 있습니다. 이 구조는 자연광이 지하층까지 투과시켜, 밝고 개방적인 공간을 연출합니다. 디크로익 글라스 난간은 각도에 따라 색이 변하며, 칼레이도스코프와 같은 생동감을 공간에 부여합니다. 이러한 시각적 효과는 방문자에게 다양한 감각적 경험을 제공합니다.
주요 설계 요소
구성 및 배치: 아트리움을 중심으로 공간이 계층적으로 구성되어 있어, 상층부의 독서 공간과 지하층의 서고 및 직원 공간이 자연스럽게 구분됩니다. 아트리움은 방문자들이 쉽게 이동하고 방향을 찾을 수 있도록 유도하며, 건물의 순환 동선을 최적화합니다.
소재 및 질감: 외부의 컬러 글라스와 내부의 노출 콘크리트 및 투명 유리는 현대적인 질감을 강조하며, 도시 환경과 조화를 이루도록 설계되었습니다. 이러한 재료들은 건축물이 가진 사회적 역할과 미적 가치를 동시에 충족시키며, 방문자에게 따뜻하고 세련된 인상을 줍니다.
기술적 세부 사항: 이 도서관은 LEED 골드 인증을 목표로, 일광 센서와 자동화 관리 시스템을 통해 에너지 효율성을 극대화하고 있습니다. 또한, 태양열 차단을 위한 블루 루프 시스템을 도입하여 친환경적 설계를 구현했습니다. 친환경적인 기술과 혁신적인 설계가 결합되어, 지속 가능한 공공 건축물로서의 역할을 다하고 있습니다.
글로벌 건축 트렌드와 비교 분석
Far Rockaway Library는 현대 공공 건축의 중요한 트렌드인 사회적 연계성과 환경적 지속성을 구현하고 있습니다. 이는 세계적으로 주목받고 있는 커뮤니티 중심의 공공 건축 트렌드와 일맥상통하며, 바쁜 도시 속에서도 고요하고 평화로운 휴식 공간을 제공하는 디자인이 돋보입니다. 이 도서관은 지역 재개발의 일환으로 다양한 교육 프로그램과 커뮤니티 이벤트를 통해 지역 주민들의 참여를 이끌어내고, 경제적 기회를 확대하는 데 기여하고 있습니다.
결론
요약 Far Rockaway Library는 지역 사회의 요구와 문화적 특성을 반영하여 주민들에게 안전하고 따뜻한 공간을 제공합니다. 이 도서관은 단순히 지식을 쌓는 장소를 넘어, 지역사회의 회복력과 연대의 상징으로 자리 잡고 있으며, 다문화적 정체성을 존중하는 공간으로서 그 가치를 발휘하고 있습니다.
Write by ChatGPT & 5osa


















The Far Rockaway Library in Queens is designed as a collaboration between Snøhetta and Brooklyn based contemporary artist José Parlá to reflect Far Rockaway's diversity and dynamism. Serving as a community gathering place and resource for knowledge, the library symbolizes resilience. In 2012, Hurricane Sandy nearly destroyed the surrounding Rockaway community. In the aftermath of the storm, the existing 1968 library building provided disaster relief to residents. It was a lifeline, becoming a meeting point, a food and supply distribution center, and more. The library empowered collective action, and in turn, became a symbol of hope. The design to replace the original library aims to amplify its role in the community even further, serving as a hub for learning and exchange.
Writers commit thoughts and ideas into action, translating knowledge to bring people together. From its open massing to its facade, the Library was a collaboration with Parlá to translate Far Rockaway's rich cityscape and collective energy. Both Parlá's work and the name of the library are born from New York City's writing culture, an artistic movement young artists created art on the walls and subway trains of the city during the sixties and early seventies when many people felt current forms of writing were not so beautiful. Located at the prominent intersection of Mott and Central Avenues, the library's façade features custom panels designed by Parlá that visually reflect the city's vibrant cultural history. In turn, it draws on the many languages that are spoken in Far Rockaway and movement along the street. Clad in fritted, colored glass, with a color gradient reflective of the sunrise off Long Island's coast, the design balances transparency and translucency as it interprets the experience of the city. As a key investment in Far Rockaway, the library was designed as a welcoming center for the neighborhood and its residents. The entry is announced with a tall transparent glass opening at the corner. The interior is organized around an inverted pyramidal atrium, which allows the penetration of natural light to the ground floor as well as a view of the sky from within the building. Combined, they provide the entry and circulation sequence through the building and orient the visitor within.
The idea for the library's simple form provides a calm contrast to the visual noise of surrounding retail outlets. At the same time, it reinterprets the traditional New York City public library typology as a repository for books, integrating the building with diverse collaboration and social spaces, including a teen room and private meeting centers. Doubling the area of library spaces, the design creates a renewed visual identity for one of the borough's most ethnically diverse communities. Programming includes after school study hours, story reading, and community events, as well as a new public garden. It also has offices, along with a book sorting area, a staff lounge, and lockers. The second floor includes both adult and children's reading areas, a meeting room, and a Small Business Center.
from archdaily


