“자연을 존중하는 건축만이 그 자연의 일부가 될 수 있다.” -프랭크 로이드 라이트

![]() |
![]() |
![]() |
밀림을 리노베이션하는 건축 TAOA -Resea · Chic Space
TAOA가 설계한 "Resea · Chic Space"는 북중국 해안가의 밀림 속에 위치한 기존 건축물을 현대적이고 자연 친화적인 휴양 공간으로 재탄생시킨 프로젝트입니다. 이 건물은 자연과의 연결성을 극대화하여 방문자가 자연을 밀접하게 경험할 수 있도록 설계되었습니다. 기존 건축물의 폐쇄적 구조는 주변 자연 풍경을 차단하고 내부 공간 활용을 제한했기에, 설계팀은 이를 해결하기 위해 개방적이고 유기적인 공간 디자인을 목표로 삼았습니다. 이 프로젝트는 기존 구조의 강점을 살리면서도 자연을 실내 공간으로 끌어들여 사용자가 자연과 하나가 되는 공간 경험을 제공하고자 합니다.
프로젝트 개요
설계자: TAOA
위치: 북중국 해안 아카시아 숲 인근
주요 테마: 자연과의 통합 및 공간의 개방성 강화
설계 컨셉과 구현
이 프로젝트는 자연을 실내로 끌어들이고 공간을 개방적으로 만들어 사람과 자연이 공존하는 휴식 공간을 창출하는 데 중점을 두었습니다. 각 설계 요소는 건물과 자연의 연결성을 높이고, 사용자가 공간에서 편안함과 자유를 느낄 수 있도록 구성되었습니다.
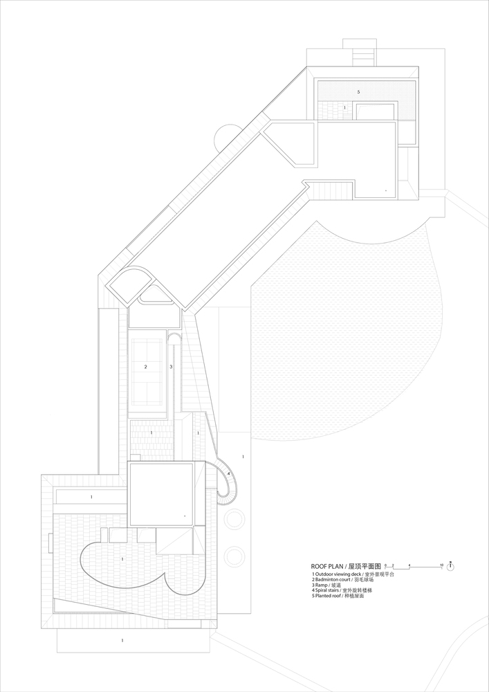
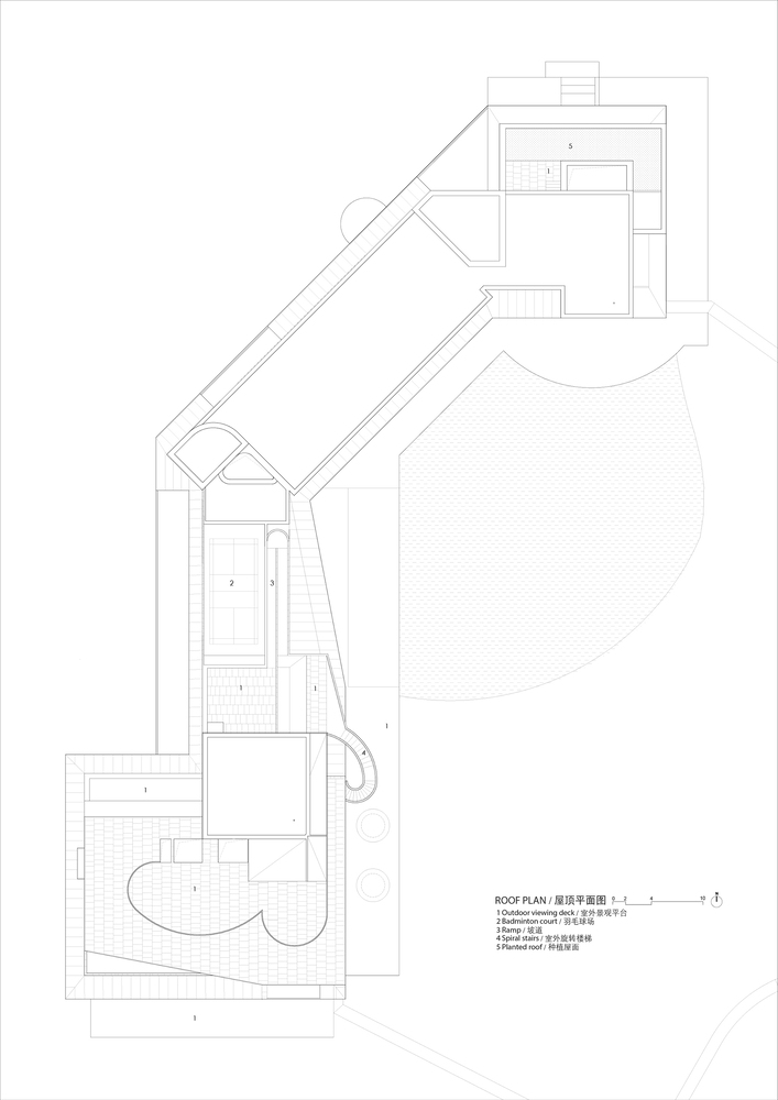
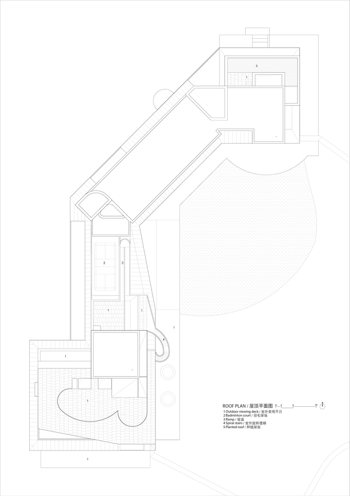
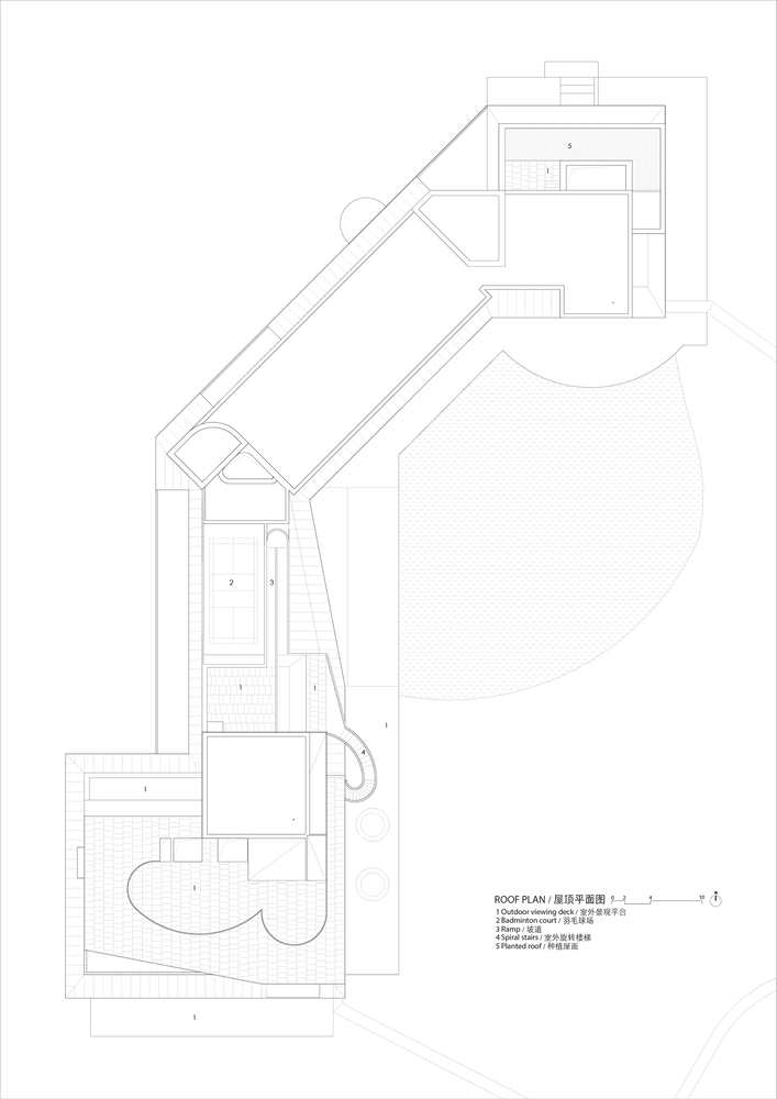
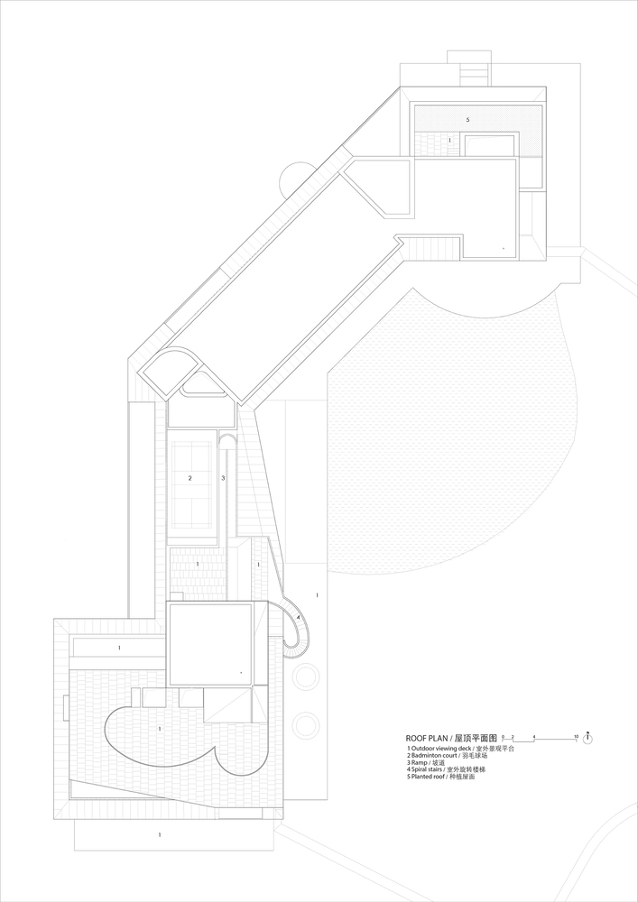
1층 외관 개방성 확보
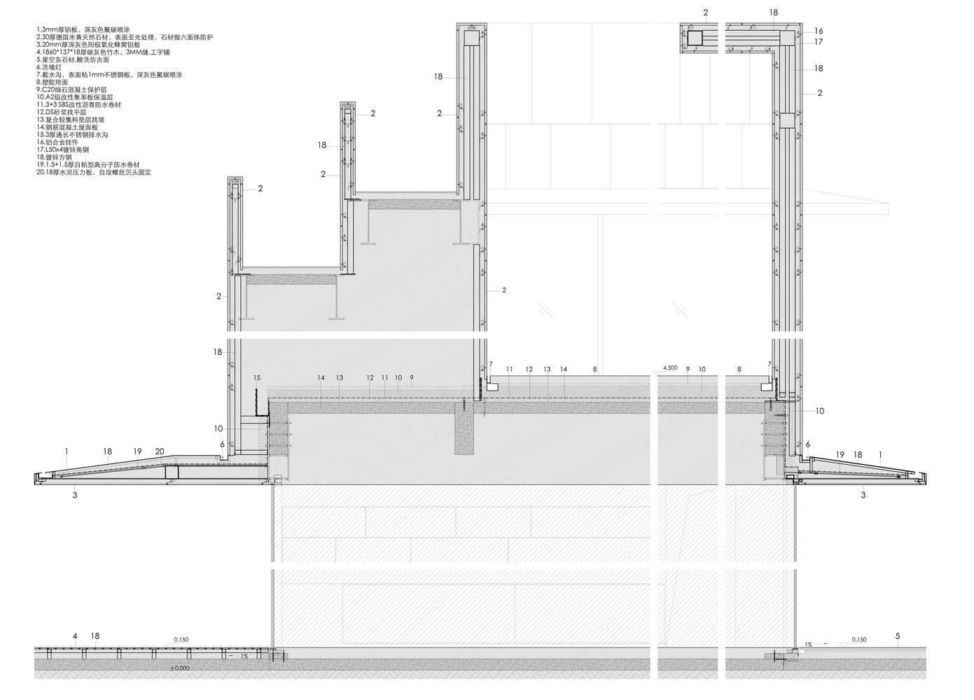
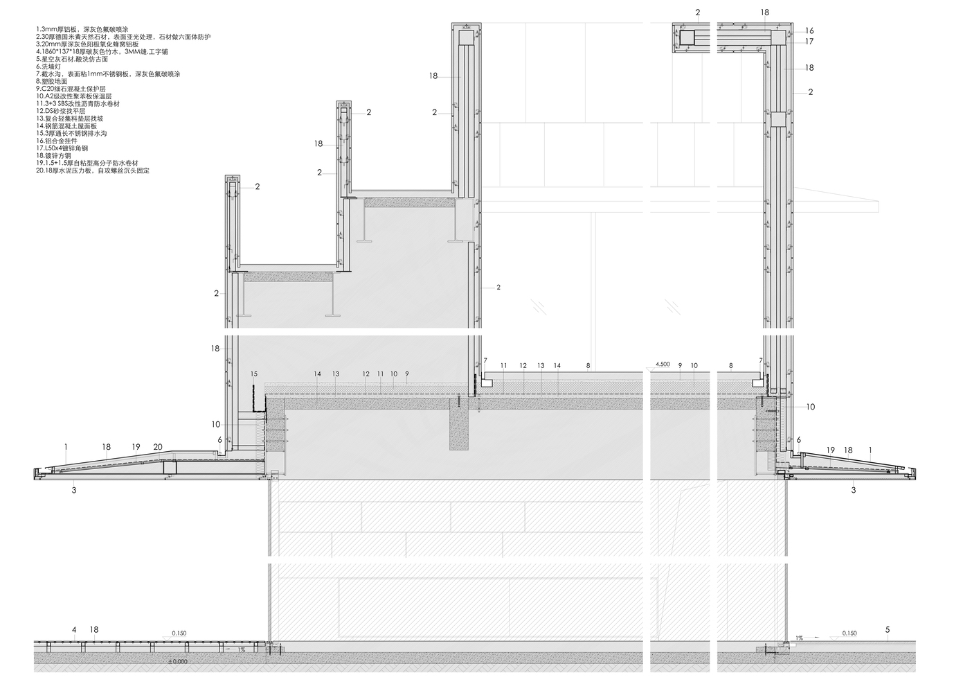
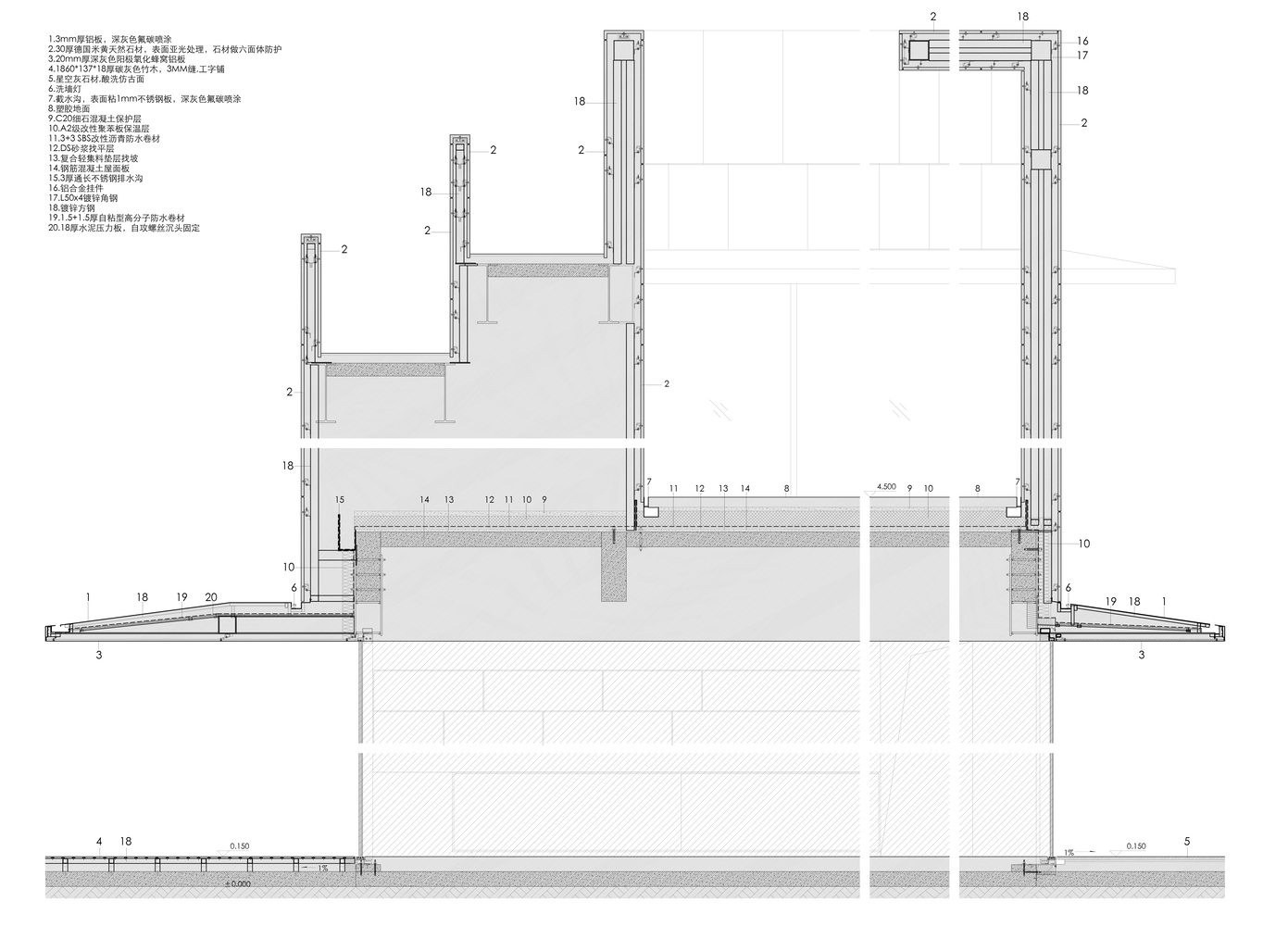
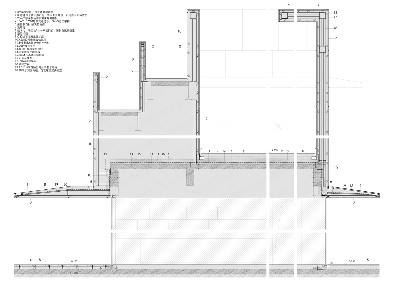
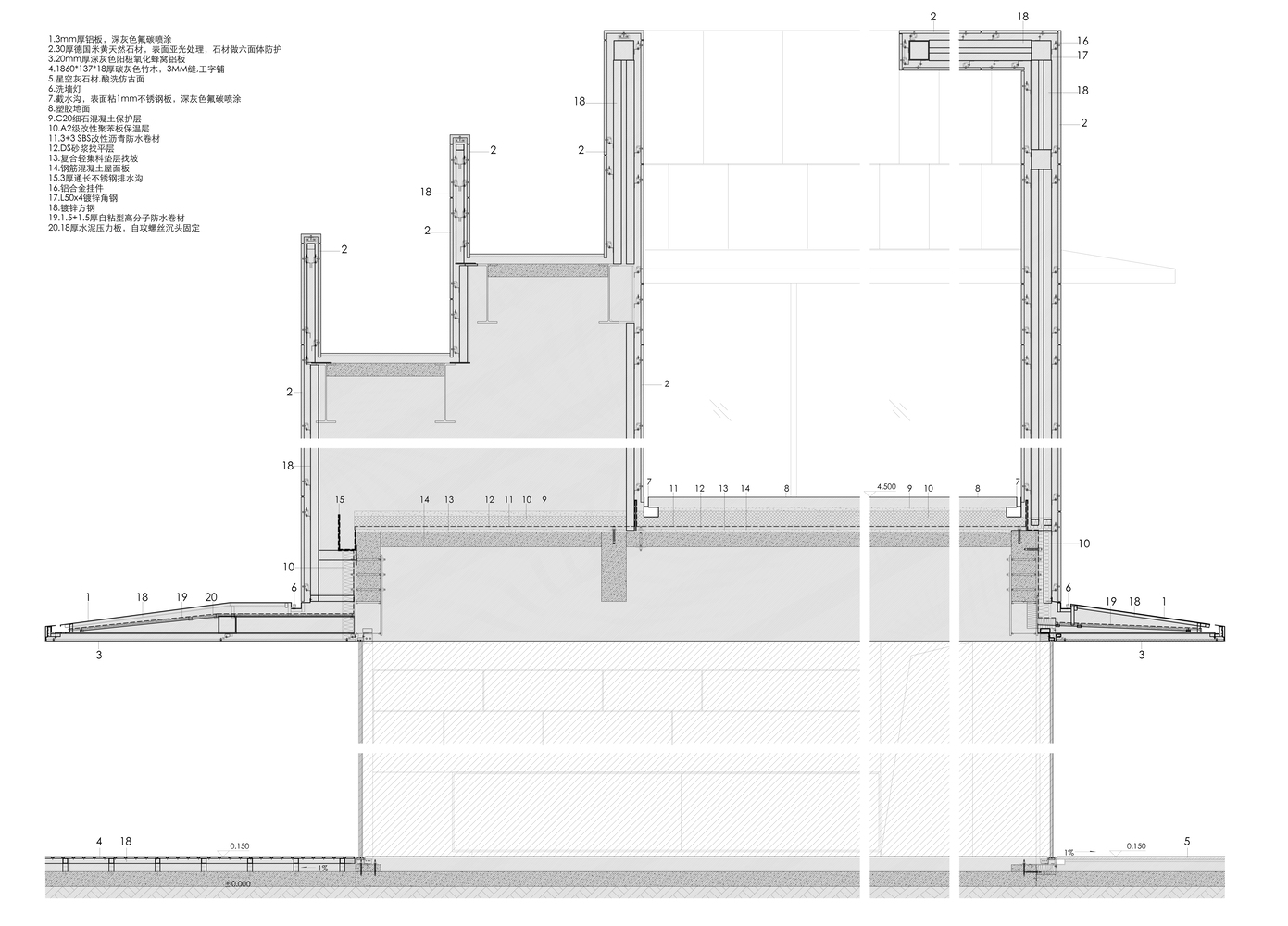
기존 콘크리트 프레임을 기반으로 1층 외벽을 제거하고, 천장 높이를 통일한 뒤 유리 파사드를 설치해 개방감을 극대화했습니다. 상부의 견고한 석재 벽과 하부의 투명한 유리가 대비를 이루어 시각적 흥미를 유도하며, 캔틸레버 구조를 통해 외벽이 돌출되어 주변 자연을 프레임처럼 감싸는 역할을 합니다. 이러한 설계는 열 절연 효과를 강화하고 구조적 안정성을 유지하여 지속 가능한 건축을 구현하였습니다.
중정의 활용
내부 공간을 일부 축소하여 중정을 조성하고, 자연 채광과 환기 효과를 극대화했습니다. 중정은 계절과 시간에 따라 변하는 자연 풍경을 실내로 끌어들여 방문자가 다양한 자연의 변화를 경험할 수 있도록 합니다. 이 공간은 건물 내부와 외부가 자연스럽게 연결되는 역할을 하며, 휴양지로서의 독특한 매력을 더해줍니다.
경계의 유연화
새로운 중정 벽과 외부 벽체를 추가하여 건물의 경계를 모호하게 만들고 외부 자연을 내부로 끌어들였습니다. 야외 계단과 램프는 상층부와 지상을 직접 연결하여 자연과의 물리적 경계를 허물고, 방문자가 공간을 이동하며 다양한 시각적 경험을 할 수 있게 합니다. 이를 통해 건물은 자연과의 연결성을 극대화하고, 사용자에게 연속적이고 몰입적인 공간 경험을 제공합니다.
주요 설계 요소
자연재료 사용: 외부 마감재로 따뜻한 색조의 석재를 사용하여 북중국의 겨울에도 따뜻한 분위기를 조성했습니다. 석재와 유리의 질감 대비가 공간에 역동성을 부여하며, 석재의 거친 질감은 자연의 강인함을 반영합니다.
내부 및 외부 디자인: 실내 공간은 커다란 유리창을 통해 탁 트인 숲 속 전망을 제공합니다. 외부 공간은 자연스럽게 이어져 있어 휴양지의 매력을 더하며, 공간 배치는 사용자의 이동 흐름을 고려하여 설계되었습니다. 이로 인해 방문자는 계절에 따라 변화하는 외부 경관을 다양한 시각에서 감상할 수 있습니다.
기술적 혁신: 기존 콘크리트 구조를 활용하면서도 캔틸레버 설계를 통해 외벽이 돌출되어 주변 자연을 프레임처럼 감싸는 느낌을 줍니다. 열 절연과 구조적 안정성을 위한 기술적 디테일이 추가되어 친환경적이면서도 내구성을 갖춘 설계가 완성되었습니다.
빛과 색채
이 프로젝트는 자연광과 인공 조명이 조화롭게 사용되어 주간과 야간에 따라 공간의 분위기가 변화합니다. 낮에는 유리 파사드를 통해 자연광이 실내로 유입되고, 저녁에는 실내 조명이 따뜻함과 깊이감을 더해 공간을 더욱 생동감 있게 만듭니다. 이러한 조명 효과를 통해 방문자는 시간대에 따라 달라지는 공간의 매력을 체험할 수 있습니다.
환경 친화적 접근
최근의 친환경 건축 트렌드를 반영하여 기존 자재를 최대한 재사용함으로써 환경에 미치는 영향을 최소화했습니다. 이 프로젝트는 기존 구조와 자재를 보존하여 건축물의 지속 가능성을 높이는 동시에, 지역의 자연 환경과 조화를 이루는 디자인을 실현했습니다. 이러한 접근 방식은 주변 환경과의 상호작용을 강조하며, 프로젝트의 친환경적 지속 가능성을 더욱 강화합니다.
결론
"Resea · Chic Space"는 기존 구조의 강점을 살리면서 자연과의 연결성을 극대화한 리노베이션 프로젝트입니다. 개방적이고 유연한 공간 구성은 사용자에게 새로운 경험을 선사하며, 건축물의 내구성과 자연 속 평온함을 동시에 느낄 수 있습니다. 이 프로젝트는 자연과의 조화를 중요시하는 설계 방식이 공간 경험을 풍부하게 하고, 환경 지속 가능성을 지향하는 건축의 미래 방향성을 제시합니다. 앞으로 환경 친화적 리노베이션이 더욱 중요한 주제로 부각될 것이며, 자연과의 조화를 이루는 디자인은 많은 관심을 받을 것입니다.
Write by ChatGPT & 5osa

















































This project involves the renovation of an old building into a vacation destination. The original building, featuring a concrete frame, is nestled within a dense coastal forest in northern China, surrounded by a serene and secluded natural landscape. Just a few hundred meters beyond the forest lies the vast sea. Originally, the building stretched 100 meters along the edge of an acacia forest, with beautiful waterscapes on both the south and east sides. However, its interior design included a single sided corridor, resulting in long and somewhat redundant hallway spaces. The facade was overly closed off, fragmented by narrow Tuscan-style vertical strip windows that obscured the scenic rolling landscape around it, ultimately isolating the building from its natural surroundings.
The renovation aimed to break down the isolated and enclosed facade, fostering a close relationship between interior spaces and the picturesque surrounding environment. By reorganizing the interior layout, the design introduces a refreshed vacation lifestyle that brings nature indoors as much as possible. To enhance spatial flexibility, the existing column grid was treated as an orderly framework. Within this grid, structural columns are either concealed within partition walls or deliberately exposed, creating a new balance of openness and structural coherence. To strengthen the building's connection with the surroundings, three main strategies were employed in the renovation. First, based on the existing concrete frame structure, the design team removed the first floor's outer infill walls, unified the interior ceiling height, and extended the ceiling outward to create a cantilevered canopy. The canopy establishes a horizontal line across the entire building, contrasting the solid stone walls above with the airy, transparent lower section. Above this line, a solid stone facade emphasizes the structure's volume, while the space below opens to the landscape with enhanced transparency. The transparent glazing facade beneath the protruding eaves becomes an abstracted landscape belt, which captures the surrounding environment. Viewed from under the extended overhanging eaves, the distant, scattered natural landscape takes on an ordered abstraction, forming a cohesive view of the surrounding wilderness.
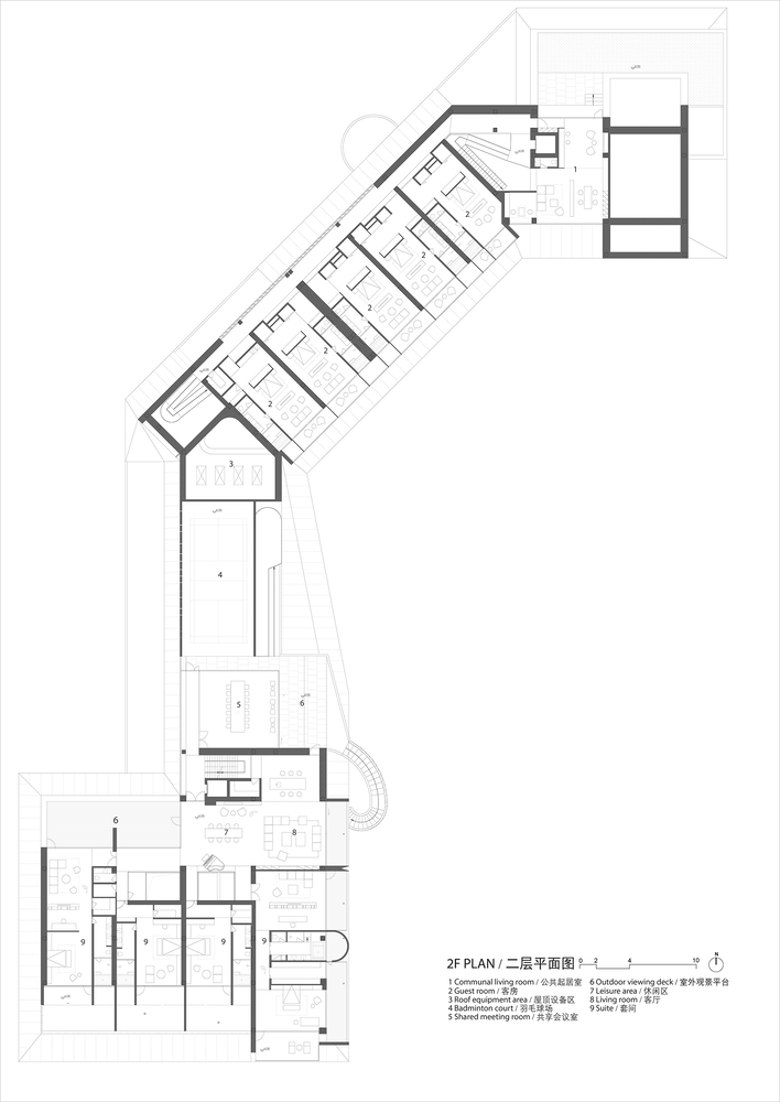
The second strategy involved creating an inner courtyard by selectively reducing interior floor area, to enhance engagement with nature. Lastly, the third strategy introduced new courtyard walls, linking previously scattered sections of the building and wrapping external nature into the interior. In this way, the building's boundary is deliberately blurred, allowing for a seamless integration with the surroundings. The upper portion of the building follows the original layout, divided into two distinct areas: a communal area, and a more private guestroom area, with an open air badminton court positioned in between. The rooftop adds significant value, offering diverse vantage points and spatial experiences. A striking outdoor staircase and ramp in the middle section serve not only for fire evacuation but also connect the upper floors directly to the ground, allowing for varying views as one moves up and down, encouraging immersion in nature. The exterior is finished with beige stone, conveying warmth during cold northern winters and aligning with the owner's vision. The solid walls also resonate with the region's character.
By retaining the building's original contours, the design team transformed it into a stone sculpture that exudes tranquility and strength amidst the wild forest. The design process was a balance between idealistic vision and practical constraints, avoiding simplistic determinism or superficial formalism. Through nature's intervention, the design team sought to liberate the building from its previous rigid functionalism. Renovating this old building signifies a transformation of an outdated environment. By preserving and reorganizing its internal structure, the design team enhanced its inherent logic. This layering of new logic fosters a rich and distinct architectural character, opening the building to nature while retaining the solidity and strength characteristic of northern architecture. Ultimately, the building harmonizes with its regional context, blending into the natural landscape and becoming one with it.
from archdaily


