"형태는 언제나 기능을 따른다." – 루이스 설리번

![]() |
![]() |
![]() |
커뮤니티와 지속 가능성의 조화: Heroes Residence Island의 설계 비밀 Arons & Gelauff architecten-Heroes Residence Island
Amsterdam의 Zeeburgereiland에 자리 잡은 Heroes Residence Island는 도시와 자연을 하나로 연결하는 독창적인 주거 프로젝트입니다. Arons & Gelauff architecten의 설계 철학은 지속 가능성과 미학, 그리고 커뮤니티 중심 디자인의 조화를 이끌어내는 데 중점을 두었습니다. 계단식 테라스를 통해 물가의 자연 경관과 활기 넘치는 스포츠 공간을 연결하며, 지역 주민들에게 새로운 생활 방식을 제시합니다.
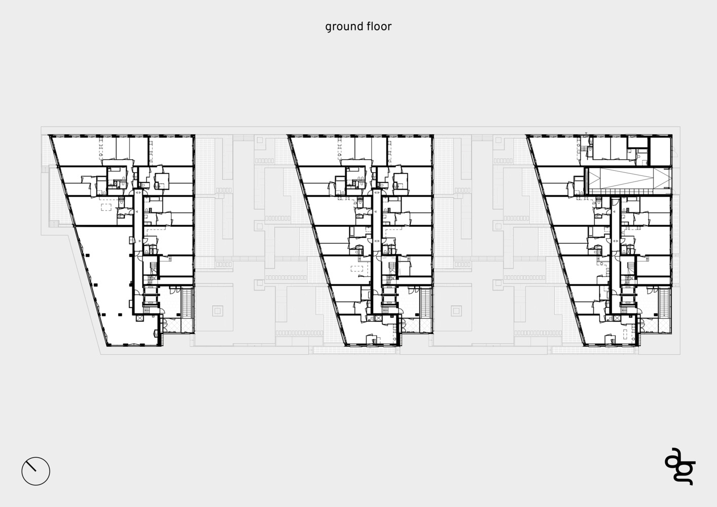
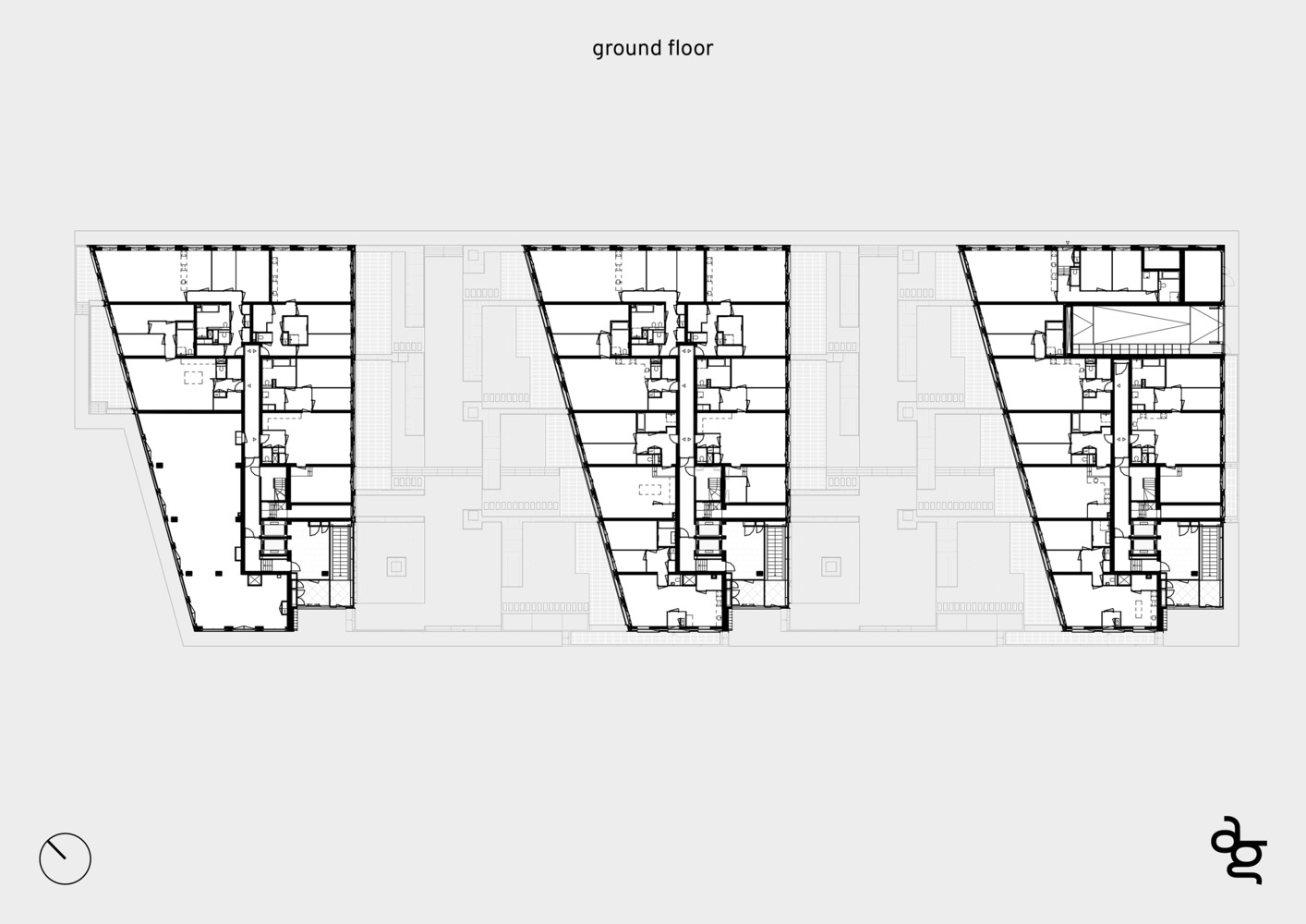
1. 프로젝트 개요 및 철학
Heroes Residence Island는 Amsterdam의 활기찬 도시적 맥락과 자연 경관을 하나로 융합한 설계로, 세 개의 독립된 타워가 각기 다른 높이로 배치되어 주변 환경과 시각적 흐름을 형성합니다. 이 프로젝트는 **"형태는 언제나 기능을 따른다"**는 설계 철학을 충실히 따르며, 기능성과 미적 감각의 완벽한 균형을 보여줍니다.
2. 구성 및 배치
구조적 구성: 타워는 계단식 구조를 통해 물가와 스포츠 공간을 시각적으로 연결하며, 자연스러운 흐름을 강조합니다.
공간 활용: 공용 공간은 주민 간의 상호작용을 촉진하며, 조경과 커뮤니티 공간은 환경적 지속 가능성을 고려한 설계로 완성되었습니다.
3. 소재와 질감
외벽은 연한 색조의 벽돌로 마감되어 안정감과 따뜻함을 제공합니다.
창틀은 구리, 청동, 아연으로 제작되어 빛에 따라 다양한 표정을 연출하며, 현대적 감각을 더합니다.
내부는 목재와 석재를 활용하여 자연 친화적이며, 외부의 금속성과 균형을 이루는 따뜻한 분위기를 조성합니다.
4. 빛과 색채
계단식 테라스를 통해 자연광이 건물 전 층에 고르게 퍼지며, 남쪽 파사드는 저녁 햇빛을 극대화하도록 설계되었습니다.
야간 조명은 자연광과 인공조명이 조화를 이루며, 건물 외관의 아름다움을 극대화합니다.
5. 사용자 경험
거주자 피드백: 주민들은 발코니와 테라스에서 스포츠 공간과 물가의 고요함을 선택적으로 즐길 수 있다고 평가합니다.
스마트 기술 통합: 조명, 온도, 보안 시스템이 스마트 홈 기술로 통합되어 거주자들의 편리한 생활을 지원합니다.
커뮤니티 중심 설계: 옥상 정원과 공용 라운지는 주민 간의 소통과 커뮤니티 형성을 촉진합니다.
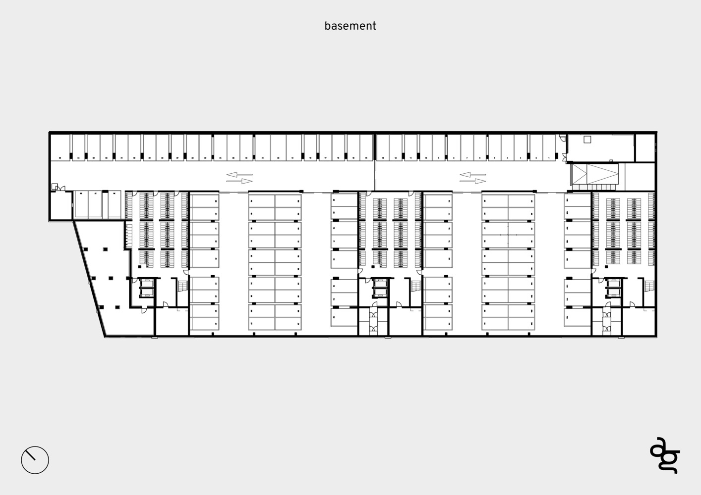
6. 기술적 세부 사항
BIM 기술을 활용하여 설계와 시공 간의 정합성을 높이고, 지속 가능성을 위한 혁신적 공법과 재료를 적용했습니다.
조경식 화분과 연결된 물 배출 시스템은 빗물을 재활용하여 환경친화적 설계를 실현합니다.
7. 글로벌 트렌드와 비교
Heroes Residence Island는 지속 가능성, 커뮤니티 중심 설계, 현대적 미학을 통해 글로벌 건축 트렌드를 반영하면서도, 지역적 맥락을 독창적으로 재해석한 사례입니다. 유사한 사례인 싱가포르 파크로얄 호텔과 비교했을 때, 지역 역사와 문화를 현대적으로 반영한 점이 돋보입니다.
결론
Heroes Residence Island는 자연과 도시, 커뮤니티와 지속 가능성을 조화롭게 연결한 혁신적 건축 프로젝트입니다. 이 프로젝트는 형태와 기능의 조화, 커뮤니티 중심 디자인, 그리고 지속 가능성 실현이라는 현대 건축의 핵심 가치를 충실히 반영하고 있습니다. Heroes Residence Island는 단순한 건축물이 아닌, 도시와 자연의 새로운 상호작용을 제시하며, 건축이 가진 가능성을 확장하는 데 기여합니다.
Write by ChatGPT & 5osa




























The team of Arons en Gelauff architecten enriched the rigid block structure on Amsterdam's newly developed island, Zeeburgereiland, with three vibrant, standalone towers. Each tower is shaped by a series of stepped, expansive terraces, and topped off with generous penthouses. Heroes was designed with a strong focus on its surrounding views.
On one side, it benefits from the lively Urban Sports Zone, a haven for skaters and stunt riders that has put Zeeburgereiland on the map. This dynamic environment strongly contrasts with the serene, natural waterfront of the island on the other side. Here, we wanted to make the most of the views over the IJ Lake and the pastoral Waterland. How? With three towers that gradually increase in height towards the waterfront. From the resulting stepped terraces a wide panorama over the water unfolds. The south facades of the towers front the lively atmosphere of the sports park at the centre of the island.
Additionally, we designed the façades facing west to be angled with an optimal orientation towards the afternoon and evening sun. Along the attractive intermediate spaces, we positioned generous balconies that offer their residents a choice of views between the sporting action and the northern horizon. Water -Each terrace features glass balustrades and special planters for additional greenery. The spacious balconies are not connected to the sewage system. Instead, they have an overflow spout that buffers water on-site. BIM - A key aspect in the construction of this project was the development of BIM, in close collaboration with the developer and the contractor. This ensured a seamless alignment of design and execution, making for a pleasant and efficient collaboration.
Gold, silver, and bronze -The façades are clad with light coloured brick, within which aluminium window frames are adorned with a strip of copper, bronze, or zinc, giving each building its unique colour accent. The subsequent reference to the gold, silver, and bronze affiliated with our sporting heroes was a fortunate coincidence.
from archdaily


