"현대 건축은 끊임없이 도전하고 변화해야 한다. 그 도전이 없으면 건축은 그저 돌덩이에 불과하다."렘 쿨하스

![]() |
![]() |
![]() |
유리와 금속 사이에 녹아든 달콤함 DRM Arquitectura uses prefabricated structure for Buenos Aires ice cream shop
부에노스아이레스의 번화한 도로 한가운데, La Veneciana Canning 아이스크림 드라이브 스루는 현대 건축의 혁신과 예술성이 결합된 대표적인 사례로 자리 잡고 있습니다. DRM Arquitectura는 이 프로젝트를 통해 상업 건축물의 기능성과 미적 완성도를 동시에 구현하였으며, 도시와 자연, 사용자와 공간을 연결하는 새로운 건축 언어를 제시했습니다. 이 건축물은 단순한 상업 공간을 넘어 방문자에게 감각적 즐거움과 기능적 편의를 제공하며 도심 속 랜드마크로서의 가치를 드러냅니다.
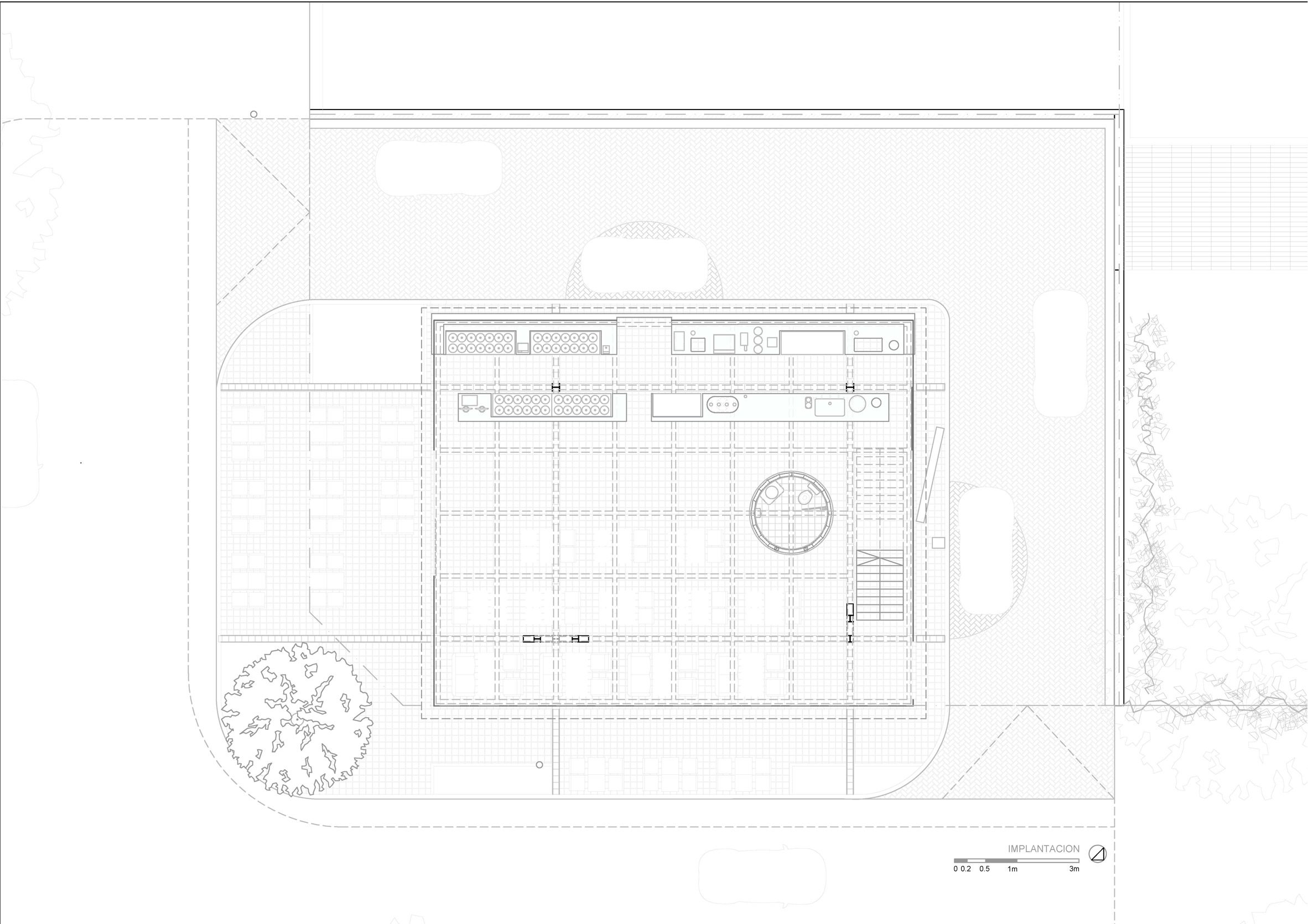
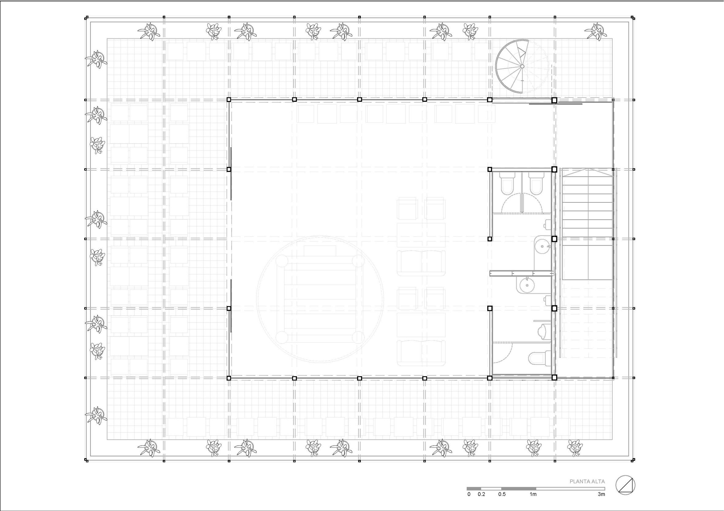
구성 및 배치
공간의 흐름과 배치
이 건축물은 개방성과 동선의 효율성을 핵심으로 설계되었습니다.
지상층: 지상층은 투명한 유리벽과 개방형 구조를 통해 주변 경관과 자연스럽게 연결되며, 중앙에 배치된 아이스크림 진열대가 시각적 중심축 역할을 합니다. 고객은 이 중심을 따라 자연스럽게 이동하며 매장을 경험하게 됩니다.
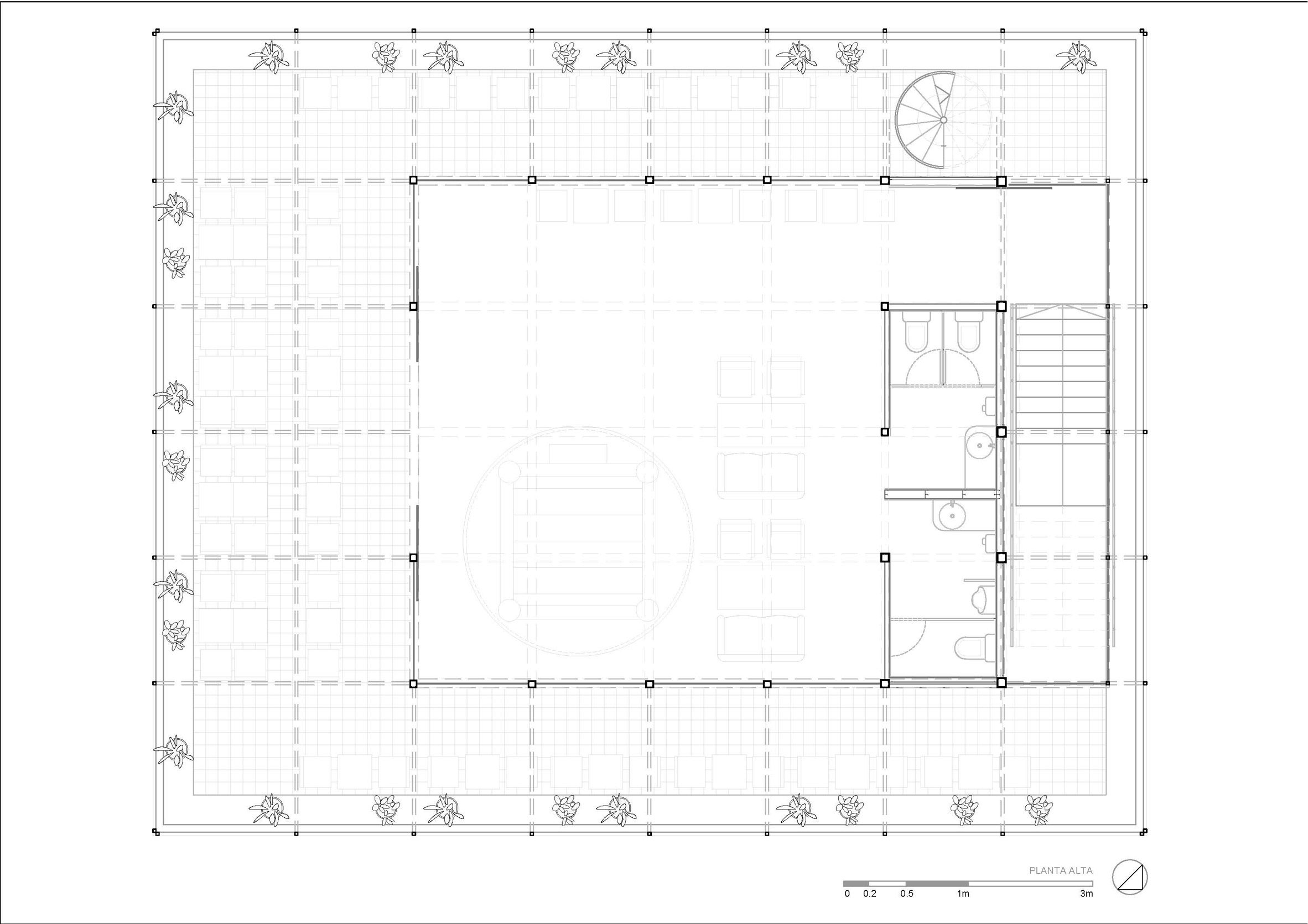
상층부: 반투명 차양막이 덮인 테라스는 인근 La Esperanza Golf Club의 푸른 풍경과 시각적으로 연결되며, 가족 단위 고객에게 편안한 휴식 공간을 제공합니다. 이곳에 마련된 어린이 놀이 공간은 방문객의 체류 시간을 늘리는 요소로 작용합니다.
공간의 설계 의도
유명 건축 비평가들은 지상층의 개방형 구조와 상층부의 테라스를 통해 **"경계를 허물고 자연과 조화된 건축물"**이라고 평가했습니다. 공간의 분할과 흐름은 방문자의 이동을 유도하면서도 시각적 답답함을 최소화하였습니다.
소재와 질감
이 건축물은 금속, 유리, 목재를 주요 소재로 사용하여 공간에 조화로움을 더했습니다.
유리 패널: 개방감을 극대화하고 실내외 경계를 허물어 주변 환경과의 연결성을 높였습니다.
금속 프레임: 구조적 안정성과 함께 현대적인 미학을 강조합니다.
목재 마감: 목재의 따뜻한 질감은 차가운 금속과 대비되며, 방문객에게 심리적 안정감을 제공합니다.
건축 비평가 고종석은 이를 두고 **"차가움과 따뜻함이 어우러진 감각적 경험의 조화"**라고 평가했습니다.
빛과 색채
빛의 사용은 이 건축물에서 중요한 요소로 작용합니다.
자연광 활용: 천장의 원형 개구부와 반투명 차양막을 통해 유입되는 자연광은 시간에 따라 공간의 분위기를 변화시키며, 실내에 생동감을 불어넣습니다.
인공 조명: 저녁에는 은은한 인공 조명이 사용되어 부드럽고 쾌적한 환경을 조성합니다.
색채 배합: 파스텔톤의 미색과 무채색의 조합은 아이스크림 가게의 밝고 경쾌한 이미지를 강화하면서도 세련된 분위기를 유지합니다.
기술적 혁신과 구조
이 건축물은 모듈화된 프리패브 공법을 활용하여 건축 기간을 단축하고 비용 효율성을 극대화했습니다.
V자형 역구조 기둥: 기둥은 하중을 효율적으로 분산시키면서도 시각적으로 가벼운 인상을 주어 구조적 혁신을 보여줍니다.
금속 프레임: 금속 구조는 내구성과 안정성을 제공하면서도 디자인 요소로 활용되며, 건축물의 현대적 아름다움을 돋보이게 합니다.
설계자는 이 기술적 접근이 지속 가능성과 실용성을 모두 충족시키는 현대 건축의 혁신 사례라고 설명했습니다.
기능과 사용성
이 건축물은 사용자 경험을 극대화하는 데 초점을 맞추었습니다.
드라이브 스루 시스템: 빠르고 효율적인 서비스를 제공하여 바쁜 현대인의 생활 패턴에 부합합니다.
상층부 테라스: 고객들은 테라스에서 골프장 풍경을 감상하며 여유로운 시간을 보낼 수 있습니다. 특히 어린이 놀이 공간은 가족 단위 방문객에게 추가적인 즐거움을 제공합니다.
직관적 동선: 개방형 설계와 시각적 중심축이 방문객의 자연스러운 이동을 유도해 불편함을 최소화합니다.
심미적 요소와 사용자 경험
이 건축물은 디자인의 미학적 요소와 사용자 경험을 모두 충족시킵니다.
조형성과 비례감: 곡선형 천장과 V자형 기둥의 조화는 동적이면서도 균형 잡힌 아름다움을 선사합니다.
감각적 경험: 금속과 목재, 자연광과 그림자가 어우러진 공간은 방문자에게 시각적, 심리적 안정감을 제공합니다.
건축 비평가들은 이를 두고 "디자인의 완성도와 기능적 실용성이 이상적으로 결합된 작품"이라고 극찬했습니다.
결론
La Veneciana Canning 아이스크림 드라이브 스루는 DRM Arquitectura의 혁신적 설계와 기술적 접근이 결합된 현대 건축물입니다. 이 건축물은 기능성과 심미성을 모두 아우르며, 도시와 자연, 사용자와 공간이 어우러지는 새로운 경험을 창출합니다.
Write by ChatGPT & 5osa

















Local studio DRM Arquitectura has designed a space-framed drive-through ice cream parlour lifted on inverted V-shaped columns in Buenos Aires, Argentina.
The Veneciana Canning Ice Cream Drive Thru is situated on a busy roadside plot near National Route No. 58 that challenged the DRM Arquitectura team to create a calm atmosphere without disconnecting from the fast access road.
Following the studio's three-part design concept – product, person, place – the 300 square metre (3,230 square foot) parlour was a "quick-build roadside stop" that serves as an "announcement sign" for travellers in the bustling area.
The building is raised on two inverted V shaped white columns and two simple columns to make it more visible, free up the ground floor, and create a semi-covered terrace with a view of the La Esperanza Golf Club.
"The metal structure is undoubtedly the protagonist of the space; making architecture from the structure is what we are passionate about," the team said.
Set back from the perimeter of the building, the prefabricated columns create a large plan and absorb all of the horizontal load from the upper level, serving as the only link to the second story.
The furniture and staircase "hang" from the space frame while the bar and floating circular restroom "folds" up from the floor.
"The ground floor proposes the dissolution of the building's limits both as a commercial strategy, aiming not to create barriers of entry and as a strategy to anchor to an environment with attributes valuable to the landscape, which can be incorporated as part of the building’s architecture," the team said.
Meanwhile, the upper floor is wrapped in a perimeter terrace shaded by a series of pergolas that control light and open dining space to the sounds and sights of the city. The interior of the upper floor houses an isolated children's play area.
A service tower – with mechanical equipment stacked on top of the staircase – adds a vertical counterpoint to the horizontal building that is nearly square in plan.
from dezeen


