
![]() |
![]() |
![]() |
Tetsuo Yamaji Architects-Ginza Wooden Box - Ginza Takagi Building



















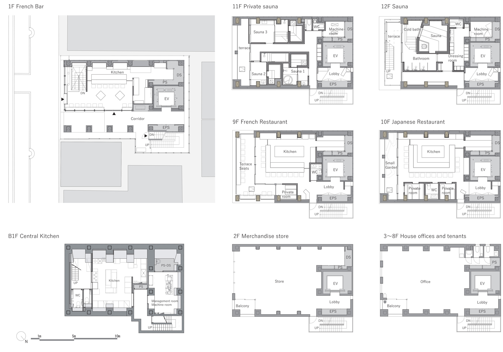
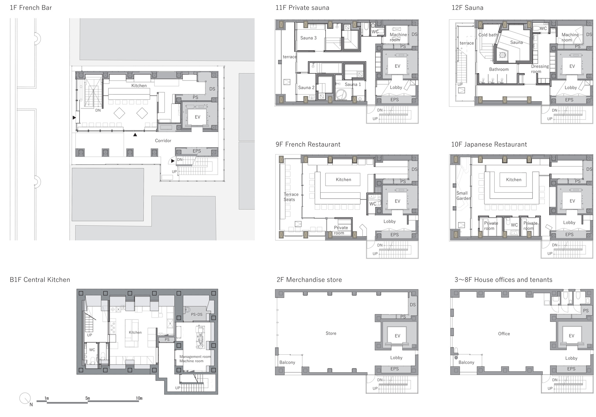
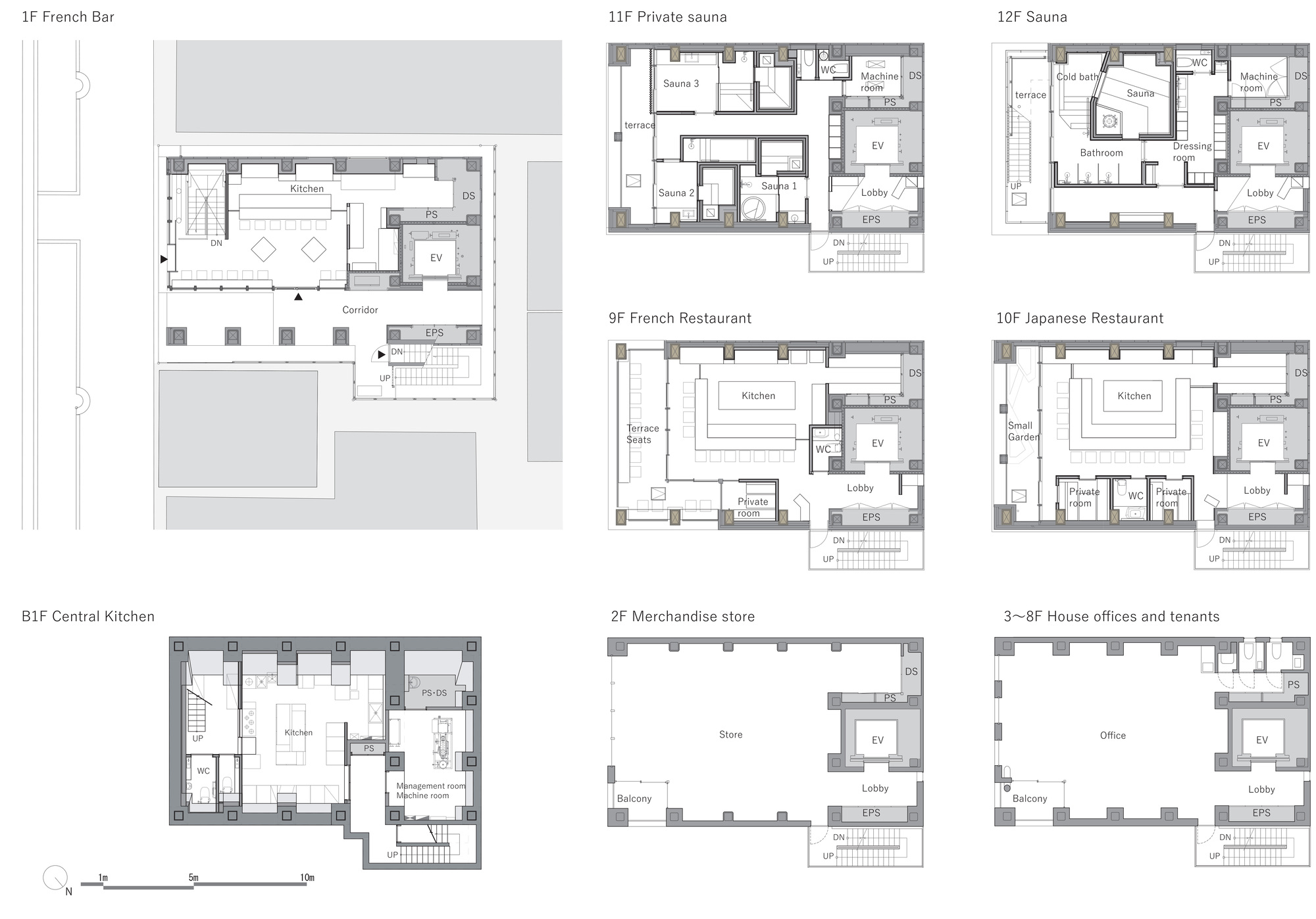
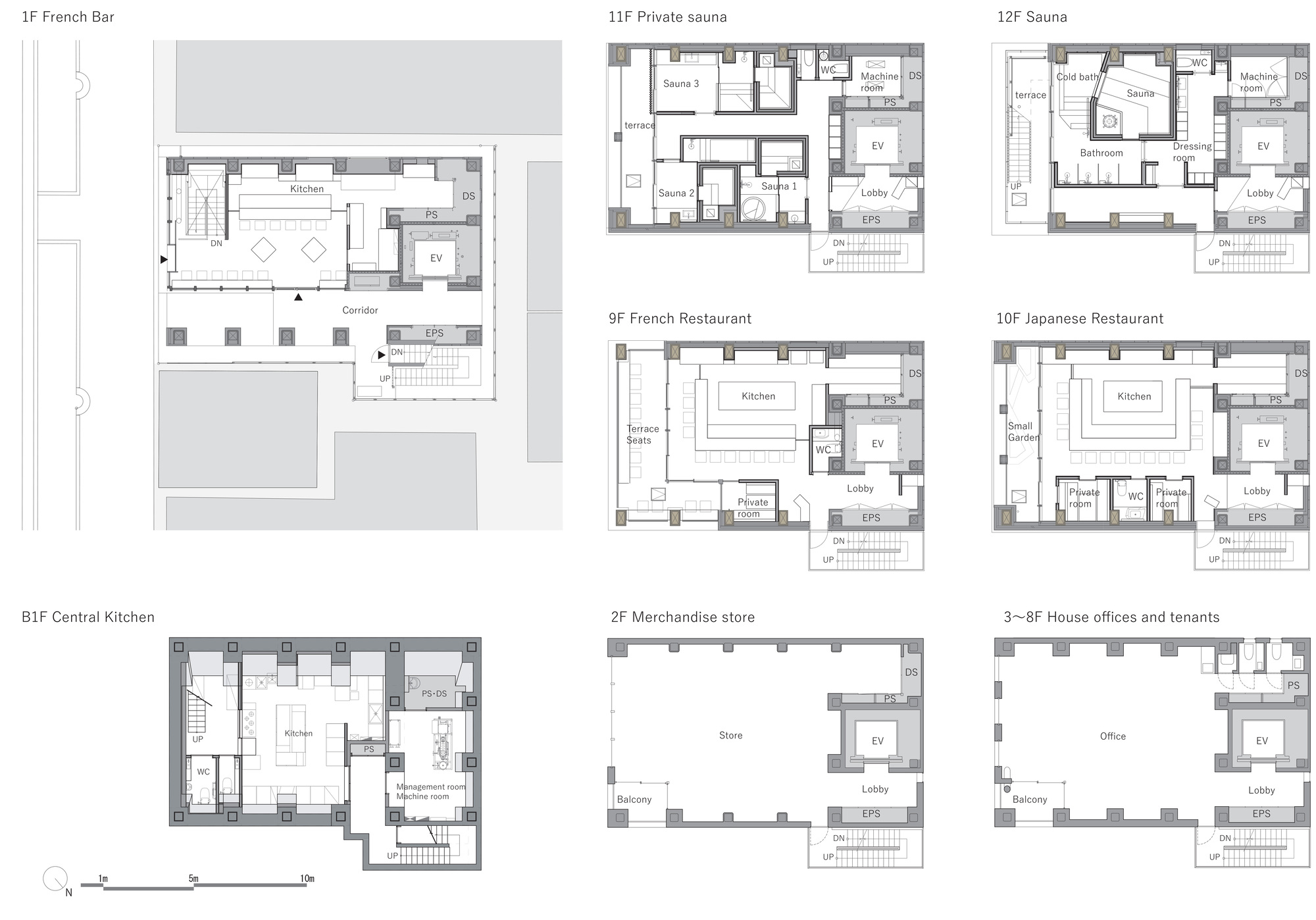
The Tallest Wooden Skyscraper in Japan – We designed a 12 story commercial complex on Ginza Sotobori Dori Street in Tokyo. The top four floors are wood-framed, giving the steel-framed structure the appearance of a wooden box atop an office building. The lower and upper floors are commercial, while the middle floors house offices and tenants. The basement is reinforced concrete, the first eight floors are steel-framed, and the upper four floors are wooden. Cedarwood from Tama, Tokyo, was used for the exterior and interior finishes.
Completed in 2023 and inaugurated in May 2024, the Ginza Takagi Building became Japan's tallest wooden skyscraper at 56 meters, surpassing the 55-meter pagoda of Toji Temple after 380 years. While Japan has a history of wooden high-rise structures, their modern use has been minimal, making this project a significant step forward. Japan is entering an era of high rise urban wood construction. The Ginza Takagi Building is a precursor to upcoming projects, including Mitsui Fudosan's Nihonbashi office building (84m, 2026) and Tokio Marine Group's headquarters (100m, 2028). This milestone marks the rise of wood in Japan's urban landscape.
Multidimensional use of the Edo period's traditional alleys, and rationality of using a partial wooden structure. The Ginza district retains the Edo period layout of alleys and townhouses. This project replaces the Ariga Shashinkan building, once home to the "Candle" restaurant frequented by literary figures such as Yusanari Kawabata and Yukio Mishima. The choice of a wooden structure had been on our minds from the very beginning of the project to reconstruct this historic building. With the recent momentum for wooden structures and the use of domestic timber thanks to the Sustainable Development Goals (SDGs), we figured that if we could realize a wooden building in the world-famous Ginza district, we could make a pioneering statement in the Japanese cityscape.
Initially, a fully wooden building was considered but was impractical due to fireproofing, structural, and cost challenges. The solution was a mixed structure with wooden upper floors, providing one hour fireproof capacity while maximizing efficiency. The design also incorporates traditional Ginza alley-like elements with open spaces on the upper floors.
Fire-Resistant Wooden Structure Design –The four layers of the wood structure section consist of a continuous rigid, wooden-frame structure facing the street. The columns and beams are made of COOL WOOD by Shelter. The structure consists of two reinforced gypsum boards (21 millimeters thick) as cladding material on the surface of the load-bearing members, and 20 mm thick wood as surface finish material. The structure is certified as one-hour fireproof.
The important part of the construction of a wooden fireproof building is the joints of the wooden fireproof structure. In principle, wooden fire resistant members with a flame retardant layer should be installed in such a way that the cladding material is continuous. Therefore, drift-pin joints with insert-type steel plates were used. This mixed wood structure can be designed without using the approved construction method issued by general contractors.
The fact that a mid to high rise mixed wooden structure does not require a structural evaluation is considered to be a major advantage. It can also be adapted to the many small and medium-sized multi-tenant buildings that make up the urban landscape of Japanese cities. Construction generalization is one of the themes of this project, and we hope that it will serve as a good example for many building professionals to actively adopt mixed wood constructions for mid-rise and high-rise buildings.
Woodenizing the Urban Landscape –The Ginza Takagi Building demonstrates how "conventional wooden buildings" can transform urban areas. Using regional materials, it bridges traditional and modern design while supporting sustainability and revitalizing local forestry.
Japan's forests remain underutilized, with only 0.53% of their volume used annually. Urban wood construction is essential to achieving carbon neutrality by 2050. This project used 110m³ of local timber, storing 65 tons of CO₂ and reducing emissions from processing and transport. As a pioneering structure, the Ginza Takagi Building not only redefines Japan's urban skyline but also lays the groundwork for future innovations in sustainable architecture, linking the city and the forest.
from archdaily


