"건축은 시간을 담는 그릇이다. 과거의 기억을 현재로 불러와 미래의 이야기를 써내려간다." - 안도 다다오 (Tadao Ando)

![]() |
![]() |
![]() |
센티드 커피: 시간을 품은 전통가옥의 재탄생 No10-Architects-Scented Coffee No10-Architects가 그려낸 40년 전통과 현대의 조화
프로젝트 개요
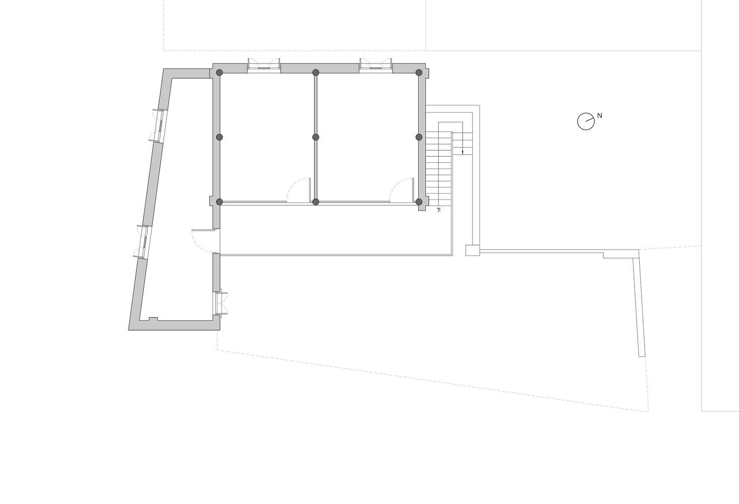
세계적인 커피 생산지 바오산에서 번성하는 커피 문화와 함께 정성스러운 부티크 카페들이 하나둘 자리를 잡고 있다. 이 지역에 깊은 뿌리를 두고 오랫동안 사랑받아온 로컬 브랜드 센티드 커피가 세 번째 매장의 터전으로 선택한 곳은 40년 된 전통가옥이다.
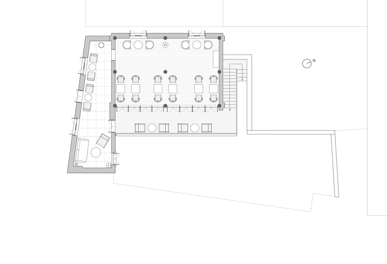
300제곱미터 남짓한 이 건물은 중국 남서부 지역 현대 건축의 전형적 특징을 보여준다. 2층 목조 골조 구조에 동쪽 면은 시원하게 열려 있고, 나머지 삼면은 견고한 벽돌벽이 수평과 수직 하중을 모두 떠받친다. 본 건물 남쪽으로는 사다리꼴 벽돌 콘크리트 보조 구조물이 나란히 서 있다.
절제된 복원: 본질을 드러내는 과정
도심 한복판에 자리한 이 매장은 겸손하고 절제된 존재감을 드러내도록 설계되었다. 과도한 개입 대신 세심한 큐레이션을 통해 건물 본래의 아름다움을 되살리는 것이 설계 철학의 핵심이다.
첫 현장 답사에서 오래된 가옥의 내부는 석고보드와 라텍스 페인트로 완전히 가려져 있었다. 설계팀이 가장 먼저 한 일은 이러한 불필요한 장식 레이어를 벗겨내어 목재 지붕 트러스와 적벽돌 벽을 본래 모습 그대로 드러내는 것이었다.
이 복원 작업을 통해 본 건물의 원래 기와, 목재, 벽돌이 위에서 아래로, 안에서 밖으로 자연스러운 본질을 되찾았다. 나머지 외벽은 깔끔한 흰색으로 칠해 조용한 배경 역할을 하도록 하여, 복원된 부분들이 자연스럽게 이 장소의 주인공으로 떠오르도록 했다. 마지막으로 세련된 금속 요소들을 미묘하게 더해 역사적 매력을 보존하면서도 새로운 활력을 불어넣었다.
도시 속 고요한 섬: 중정의 재해석
오래된 가옥의 복원이 도시적 차원에서 이루어지는 동안, 카페의 분위기는 방문객의 경험을 직접적으로 좌우한다. 원래 부지가 도로면보다 1.4미터 높았음에도 불구하고, 동쪽을 바라보는 건물과 마당은 동쪽 도로의 활발한 교통량과 보행자 흐름으로 인해 여전히 도시의 번잡함에 노출되어 있었다.
다행히 건물 앞에 서 있는 20미터 높이의 큰 나무들이 자연스러운 보호막 역할을 해주었다. 방문객들이 쾌적한 시간을 보낼 수 있도록 건물과 마당의 고요함을 더욱 강화할 필요가 있었다.
부지 동쪽 경계를 따라 길고 낮은 담장을 새로 쌓아 안마당을 외부의 직접적인 시선으로부터 차단했다. 이 담장은 북쪽과 서쪽 벽면, 그리고 본 건물과 함께 층층이 쌓인 공간적 관계를 만들어낸다. 안마당 중앙에는 수경시설과 향기로운 금목서 나무를 배치하여 건물, 마당, 나무들 사이의 관계를 조화롭게 엮어내면서 전체 공간의 고요하고 평온한 분위기를 강조했다. 이는 마치 전통 한옥의 중정처럼 내부와 외부, 자연과 건축이 하나로 어우러지는 공간을 만들어낸다.
순환하는 바에서 펼쳐지는 커피 이야기
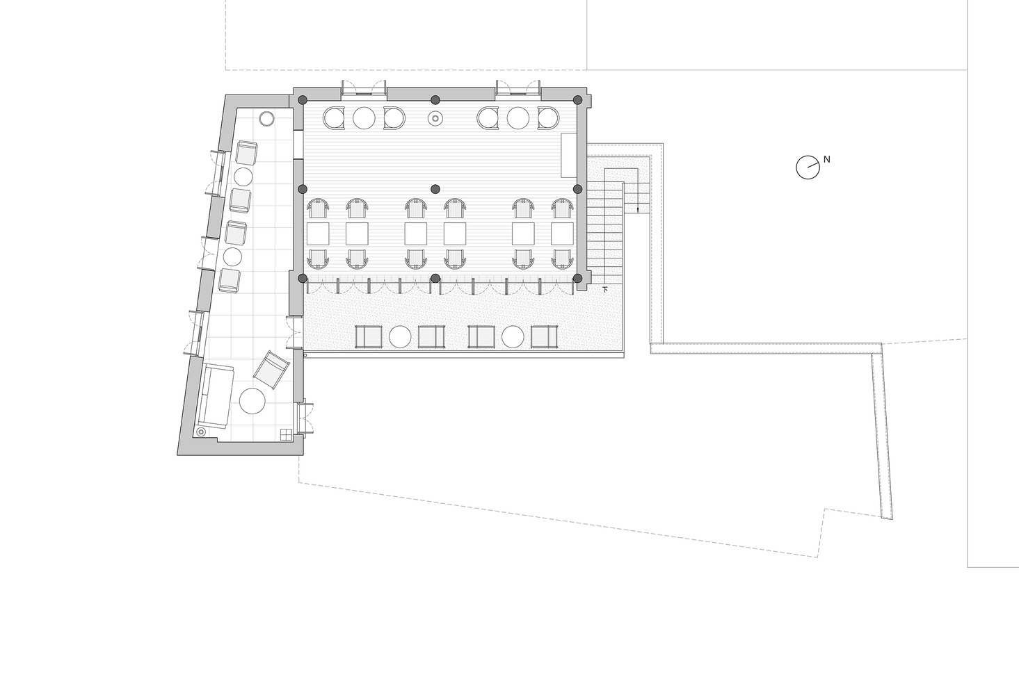
커피 제조 공간은 1층에 마련된 '순환형' 바를 중심으로 전략적으로 배치되었다. 일반적인 에스프레소 기반 음료를 만들기 위한 커피 머신이 바의 중심에 자리하며, 이곳을 중심으로 모든 활동이 자연스럽게 흘러간다.
동쪽 구간은 손님을 맞이하고 주문을 받는 공간으로 기능하며, 북쪽과 남쪽에는 각각 특색 있는 좌석 공간이 마련되어 있다. 북쪽 좌석 공간을 마주하는 바에서는 정성스러운 핸드드립 커피를, 남쪽 좌석 공간을 마주하는 바에서는 창의적인 수제 음료를 선보인다.
두 좌석 공간 모두 적당히 높게 설계되어 손님들이 바리스타와 편안하게 눈높이를 맞춰 소통할 수 있다. 이러한 배치는 단순한 주문과 서빙을 넘어 커피에 대한 이야기와 경험을 나누는 친밀한 공간을 만들어낸다.
고요한 물의 표면에 비친 벽돌과 목재의 따뜻한 색감은 공간의 온기를 배가시키고, 전통 구조물의 견고한 아름다움과 현대적 세련미가 완벽한 균형을 이룬다.
Write by Claude & Jean Browwn



























Baoshan, a prominent global coffee producing region, has witnessed a surge in boutique cafes amid its thriving industry. Scented Coffee, a longstanding local brand with deep roots in the area, has selected a 40-year-old heritage residence as the location for its third outlet. Covering an area of less than 300 square meters, the residence is a classic example of contemporary southwest Chinese architecture. It features a two-story wooden frame structure, with an open eastern facade, while the other three sides rely on brick walls for shear resistance and vertical load bearing. Adjacent to the south side of the main building is a trapezoidal brick concrete auxiliary structure.
Nestled in the heart of the urban core, the store is designed to exude a modest and understated presence, with careful curation and thoughtful intervention forming the core of the design philosophy. Upon initial site inspection, the interior of the old residence was completely concealed by gypsum boards and latex paint. The first priority was to remove these excessive decorative layers, revealing the wooden roof trusses and red brick walls in their authentic form. This restoration allowed the original tiles, wood, and bricks of the main building to reclaim their natural essence, from top to bottom and from inside out. The remaining exterior walls were then painted white to serve as a backdrop, allowing the restored sections to naturally emerge as the focal point of the site. Finally, subtle metal elements were incorporated into the renovated residence, preserving its historical charm while infusing it with a renewed vitality.
While the restoration of the old residence is managed from an urban perspective, the ambiance of the cafe directly shapes the customer experience. Despite the original site being 1.4 meters above street level, the east facing building and courtyard are still exposed to urban hustle due to heavy traffic and pedestrian flow on the eastern road. Fortunately, several 20-meter-tall trees stand in front of the building, providing a natural sanctuary. It was essential to enhance the tranquility of the building and courtyard to ensure a pleasant visit.
A long, low wall was constructed along the eastern boundary of the site, screening the inner courtyard from direct external views and creating a layered relationship with the north and west walls, as well as the main building. A central water feature and an osmanthus tree were installed in the inner courtyard, harmonizing the relationships between the building, courtyard, and trees, while emphasizing the serene atmosphere of the entire space.
The coffee preparation area is strategically arranged within a "loop" shaped bar on the ground floor. A coffee machine is positioned at the center of the bar for crafting regular espresso-based beverages. The eastern section functions as the greeting and ordering area, with seating areas on the north and south sides. The bar facing the north seating area is dedicated to pour-over coffee preparation, while the bar facing the south seating area specializes in artisanal drinks. Both seating areas are elevated, enabling customers to engage with baristas at eye level, fostering a comfortable and interactive experience.
From archdaily


