"건축은 자연과 인간 사이의 중재자가 되어야 한다. 우리는 자연을 정복하는 것이 아니라, 자연과 대화하는 법을 배워야 한다." - 안도 다다오(Tadao Ando)

![]() |
![]() |
![]() |
자연과 건축의 시적 만남: 바리 건축의 코코 마켓 Vari Architects-KOKO Market by CPI
철학이 공간이 되는 순간
CPI 아일랜드 재개발 1단계에서 바리 건축은 일본 철학자 와시다 기요카즈의 "평균 온도"와 "미묘한 풍경"이라는 개념을 건축 언어로 번역해냈다. 이는 단순한 공간 창조를 넘어 고요함과 자연이 스며든 시적 도시 공간의 구현이었다. 2단계 프로젝트는 이러한 철학적 탐구를 더욱 심화시키며, 건축과 자연이 더욱 밀접하고 겸손하게 조화를 이루는 새로운 관계를 모색한다.
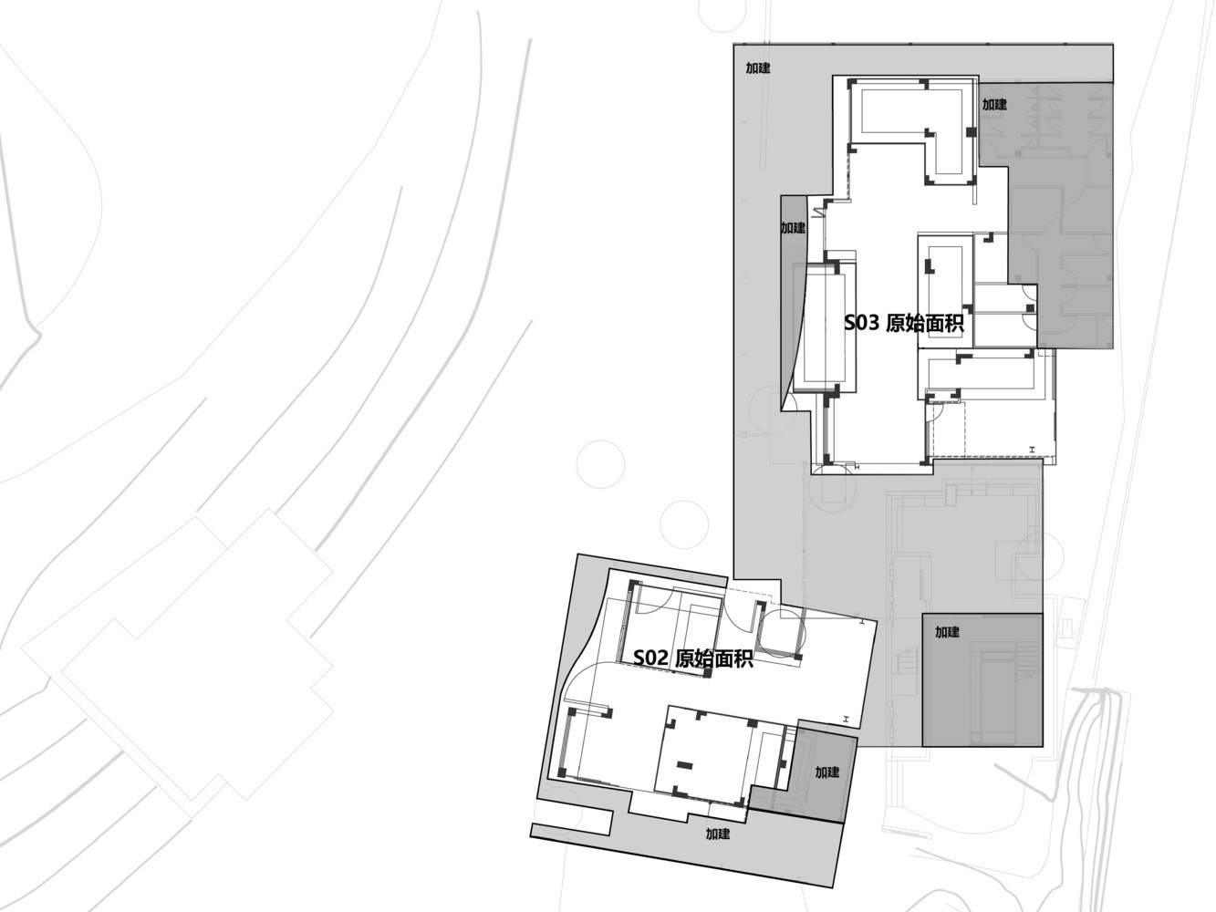
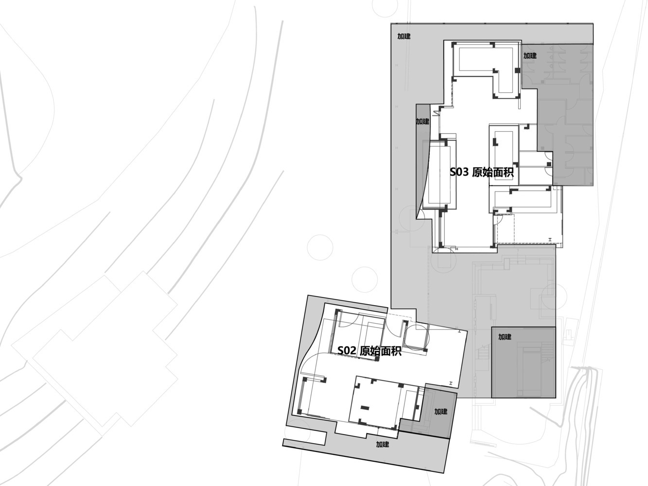
1단계 남동쪽에 자리한 2단계 프로젝트는 두 개의 독립적인 쇼하우스를 개조한 것이다. 한때 잊혀졌던 이 건물들은 세심한 설계를 통해 새 생명을 얻었으며, 자연과 분위기가 얽힌 응집력 있는 마켓을 형성한다. 설계자들은 지배적이기보다는 개입하는 자세를 취하며, 공간 확장과 "미시지형" 통합 전략을 이어갔다.
남동쪽 모서리에 새로 추가된 작은 단위는 기존 건물들과 함께 단차를 이루며 안쪽으로 감싸는 "마켓 공간"을 만들어낸다. 이는 기능적 요구를 충족하면서도 풍부한 공간 경험을 제공하는 배치로, 상업 공간이 단순한 소비의 장이 아닌 경험과 소통의 무대가 될 수 있음을 보여준다.
자연의 연장: 지속되는 생명력의 건축
"자연의 연속성"을 중심으로 한 설계는 다량의 목재와 재활용 소재를 적극 활용한다. 철골 구조와 따뜻한 목재 질감의 대비는 산업과 자연이 교차하는 독특한 미학을 창조한다. 이는 단순히 자연을 모방하는 접근이 아니다. 생태와 자연의 "미시환경"에서 출발하는 이 겸손한 설계 철학은 "자연을 본받는다"는 동양적 사유를 현대 건축 언어로 깊이 있게 표현한다.
목재의 따스함과 철골의 시원함이 만나는 지점에서 새로운 공간 경험이 탄생한다. 재활용 소재의 사용은 단순한 환경적 고려를 넘어, 시간의 흔적과 기억을 공간에 축적시키는 건축적 전략이기도 하다. 이렇게 구성된 공간은 완성된 작품이 아닌, 시간과 함께 성장하고 변화하는 살아있는 유기체로 기능한다.
흐르는 공간: 생명체처럼 성장하는 건축
공간의 유동성은 이 프로젝트의 핵심 가치다. 정교한 확장과 증축을 통해 자연 생태계처럼 성장하고 확장되는 연속적이고 장벽 없는 공간 경험을 창조했다. 마켓홀에 들어서는 순간, 내부의 선큰 가든이 외부 환경과 유기적으로 상호작용하며 방문자들을 맞이한다.
이 공간은 사람들이 자연과 인공이 혼재된 환경에서 머물며 소통하도록 자연스럽게 유도한다. 경계가 모호해지는 이곳에서 쇼핑은 단순한 구매 행위를 넘어 공간과의 교감, 타인과의 만남으로 확장된다. 흐르는 공간은 또한 "삶의 서사"를 담기에 적합하며, 다양한 상업적 점유와 운영 요구를 유연하게 수용한다.
공간과 공간 사이의 전이는 급작스럽지 않다. 마치 자연에서 숲이 초원으로, 초원이 물가로 이어지듯 점진적이고 자연스러운 변화를 통해 각 공간의 고유한 성격을 유지하면서도 전체적인 통일감을 확보한다.
감각적 재료: 시간이 빚어내는 시적 공간
재료와 빛에 대한 섬세한 감각이 이 프로젝트의 백미다. 아치형 지붕의 멤브레인 소재는 햇빛 아래서 나뭇잎처럼 부드러운 빛을 확산시킨다. 이 빛은 하루 종일 변화하며 공간에 다양한 표情을 선사한다. 아침의 은은한 빛, 정오의 강렬함, 저녁의 온화함이 각각 다른 공간 경험을 만들어낸다.
노출 콘크리트의 견고함, 철골 구조 보와 기둥의 산업적 정직함, 반 밀폐된 노후 목재의 따스한 기억, 그리고 기어오르는 녹음의 생동감이 조화를 이룬다. 이 모든 요소들은 시간의 흐름과 계절의 변화와 함께 자연스럽게 진화하며, 건물에 생명력과 감정을 불어넣는다.
특히 멤브레인 지붕은 낮과 밤 사이를 변화하며 시적이고 영적인 공간 경험을 만들어낸다. 낮에는 자연광을 부드럽게 걸러주는 필터 역할을, 밤에는 내부의 빛을 은은하게 외부로 전달하는 등불 역할을 한다. 이러한 이중성은 건축이 단순한 물리적 구조물을 넘어 시간과 빛, 그리고 인간의 감정을 담는 그릇이 될 수 있음을 보여준다.
한국 건축계에 던지는 메시지
바리 건축의 코코 마켓은 한국 건축계에 중요한 시사점을 던진다. 급속한 도시화와 개발 논리에 밀려 종종 간과되는 자연과의 관계, 그리고 공간이 담아야 할 철학적 깊이에 대한 성찰의 기회를 제공한다.
"평균 온도"와 "미묘한 풍경"이라는 동양적 사유를 현대 건축에 적용한 이 프로젝트는, 서구 모더니즘의 기능주의를 넘어서는 새로운 건축적 가능성을 제시한다. 이는 특히 한국 건축이 추구해야 할 방향성과도 맞닿아 있다. 자연과의 조화, 시간성에 대한 고려, 그리고 공간의 감성적 차원에 대한 관심은 전통 한옥에서 현대 건축까지 이어져 온 한국 건축의 정체성과도 깊이 연결된다.
맺으며: 건축이 시가 되는 순간
코코 마켓은 건축이 단순한 기능적 구조물을 넘어 시가 될 수 있음을 보여주는 작품이다. 자연과의 대화, 시간의 흔적, 그리고 인간의 감성이 어우러져 만들어낸 이 공간은 방문자들에게 단순한 쇼핑 경험이 아닌 삶의 깊이를 성찰할 수 있는 순간을 선사한다.
바리 건축이 추구하는 "개입하는 자세"는 오늘날 건축가들이 새겨들어야 할 중요한 태도다. 자연을 정복하거나 지배하려 하지 않고, 겸손하게 자연과 대화하며 그 속に서 인간다운 공간을 만들어내는 것. 이것이야말로 21세기 건축이 추구해야 할 진정한 지속가능성이 아닐까.
Write by Claude & Jean Browwn





























In the project of the CPI Island Redevelopment Phase I, we were inspired by Washida Kiyokazu's philosophical concepts of "Average Temperature" and "Subtle Scenery", creating an urban space of serenity, nature, and poetic perception. In Phase-II, we continue these profound philosophical explorations, while moving further towards a closer and more humble relationship between architecture and nature.
The Phase-II project is located southeast of Phase I and consists of the renovation of two independent showhouses. These two once-forgotten buildings have now been revitalized through meticulous design, forming a cohesive market where nature intertwines with atmosphere.3
Our design adopts an intervening rather than dominant posture, we continued the strategy of spatial expansion and "micro-topography" integration. A newly added small unit at the southeastern corner creates a staggered, inward-wrapping "market space" with the original buildings, resulting in a layout that satisfies functional needs while offering a rich spatial experience.
1.Extended Nature Centering on the concept of "continuity of nature", the design uses a large amount of wood and recycled materials. The contrast between steel structures and warm wooden textures creates an aesthetic where industry and nature intertwine.Starting from the "micro-environment" of ecology and nature, instead of simply mimicking nature, this humble design approach profoundly expresses the philosophy of "imitating nature".
2.Flowing Space Spatial fluidity is another core pursuit of the design. Through precise expansions and additions, we created a continuous, barrier-free spatial experience that grows and extends like a natural ecosystem. Upon entering the market hall, the sunken courtyard inside organically interacts with the external environment, encouraging people to linger and communicate within this blend of nature and the man-made. Flowing spaces are also better suited to carry "life narratives," meeting various commercial occupancy and operational needs.
3.Sensible Materials The sensitivity to materials and light is particularly highlighted in this project. The membrane material of the arched roofs diffuses soft light under the sun like tree leaves, transforming between day and night to create a poetic and spiritual spatial experience. Exposed concrete, steel structure beams and columns, semi-enclosed aged wood, and climbing greenery all naturally evolve over time and through the seasons, infusing the building with life and emotion.
from archdaily


