"건축이란 빛 속에서 연출되는, 올바르고 훌륭하고 기막힌 형태들의 유희이다." - 르 코르뷔지에

![]()  | 
![]()  | 
![]()  | 
 디슈이호 부두 1호: 수변과 하나 되는 경관건축의 혁신  TM Studio-Pier One Dishui Lake
새로운 도시를 위한 새로운 수변공간 
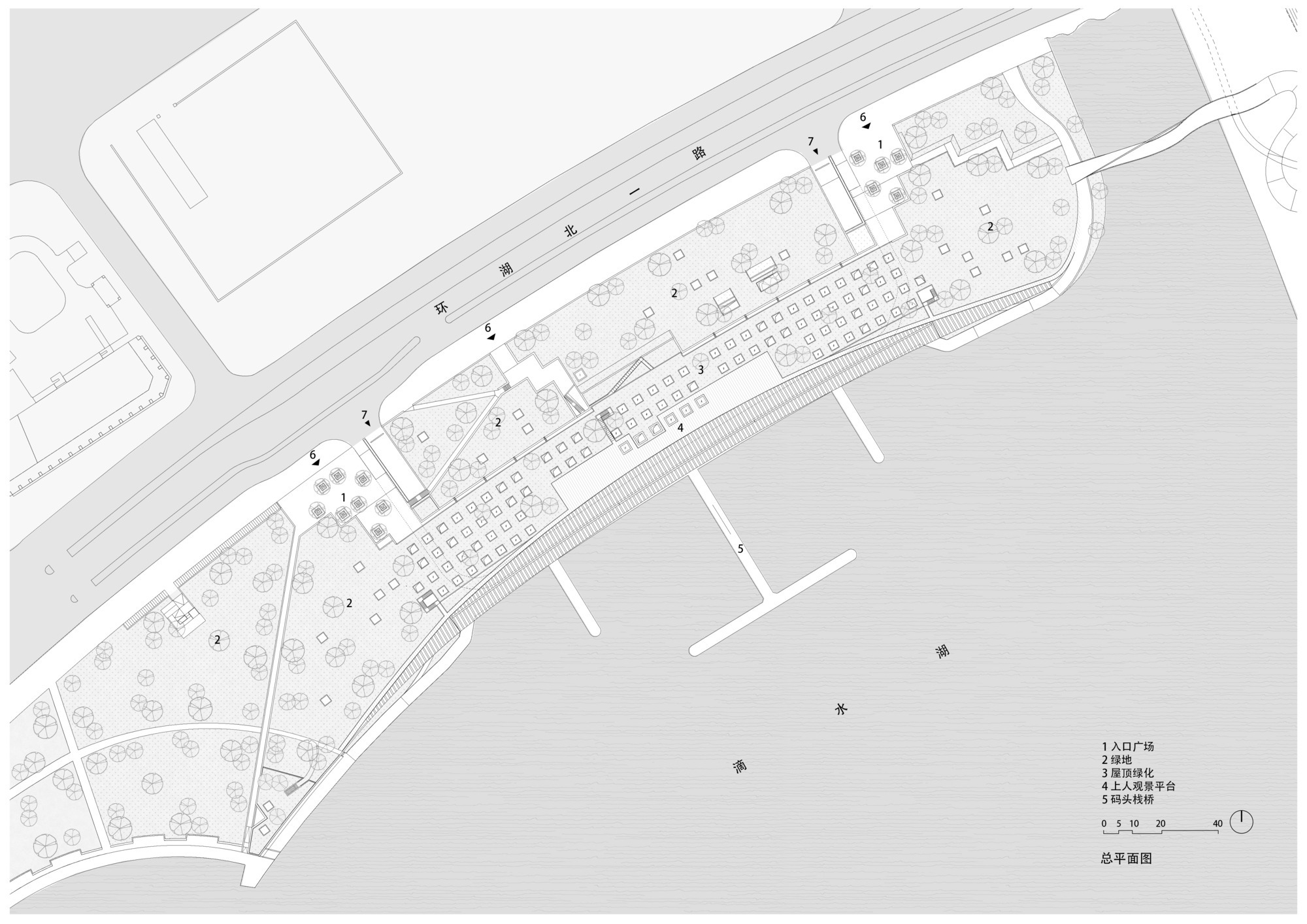
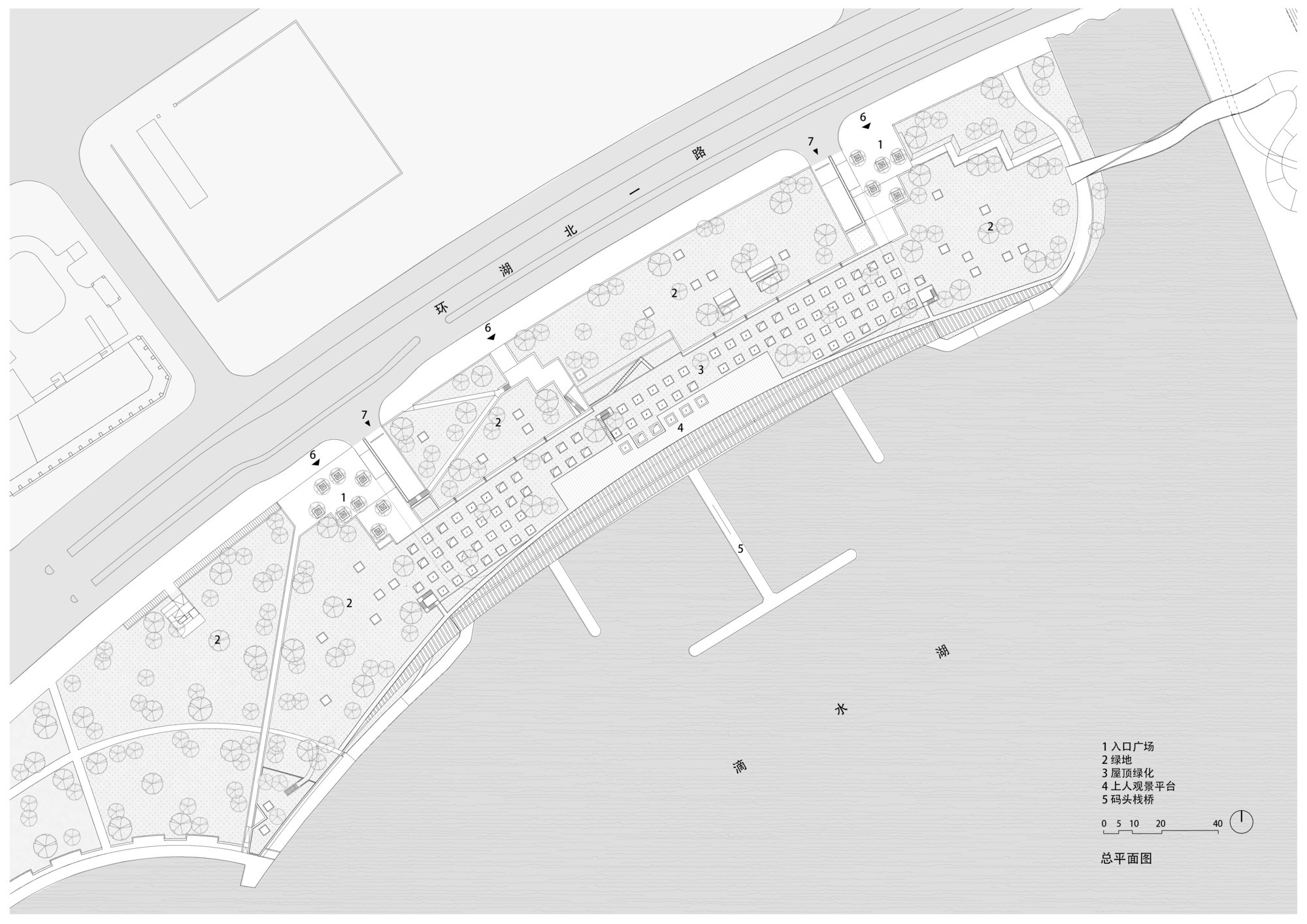
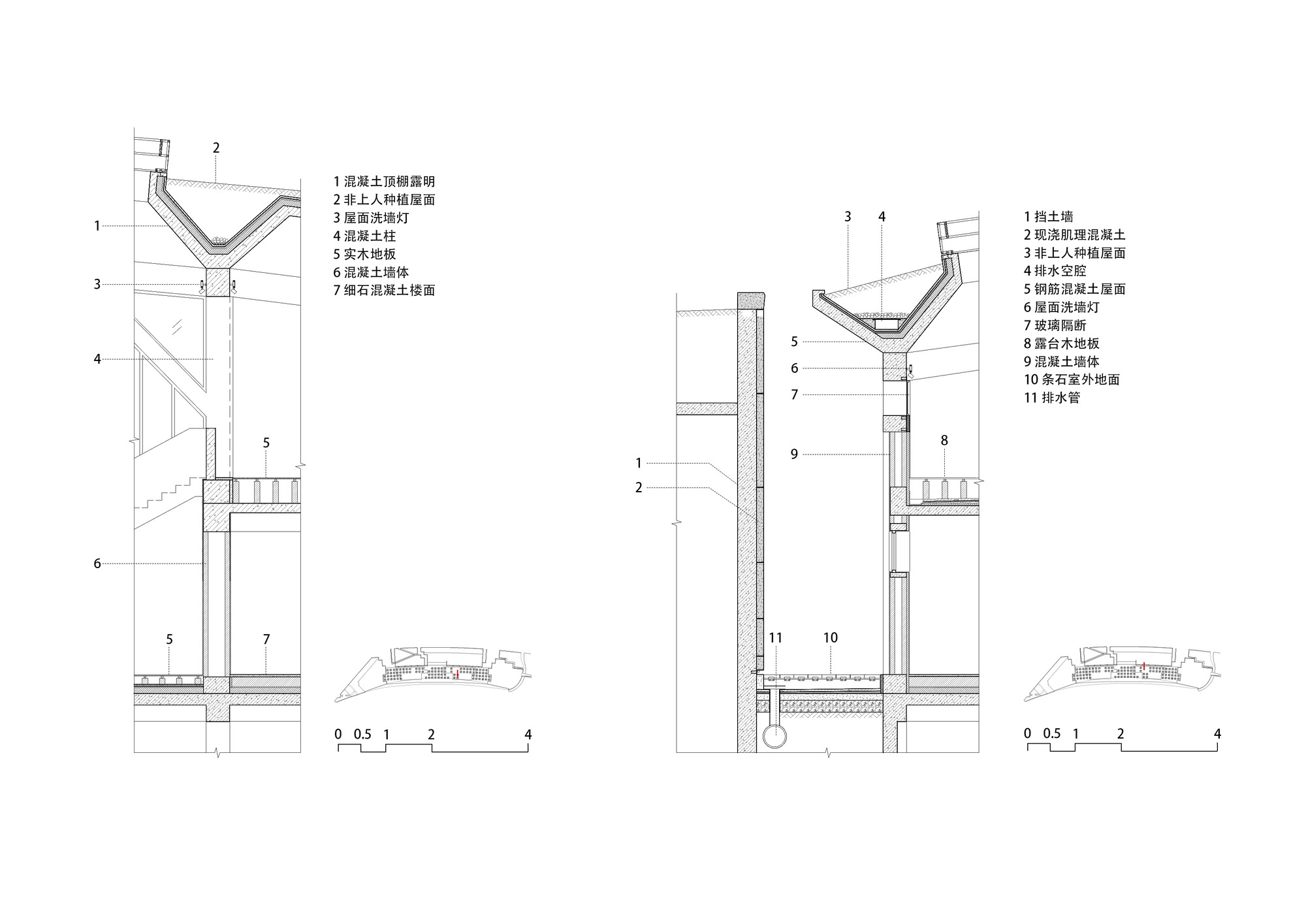
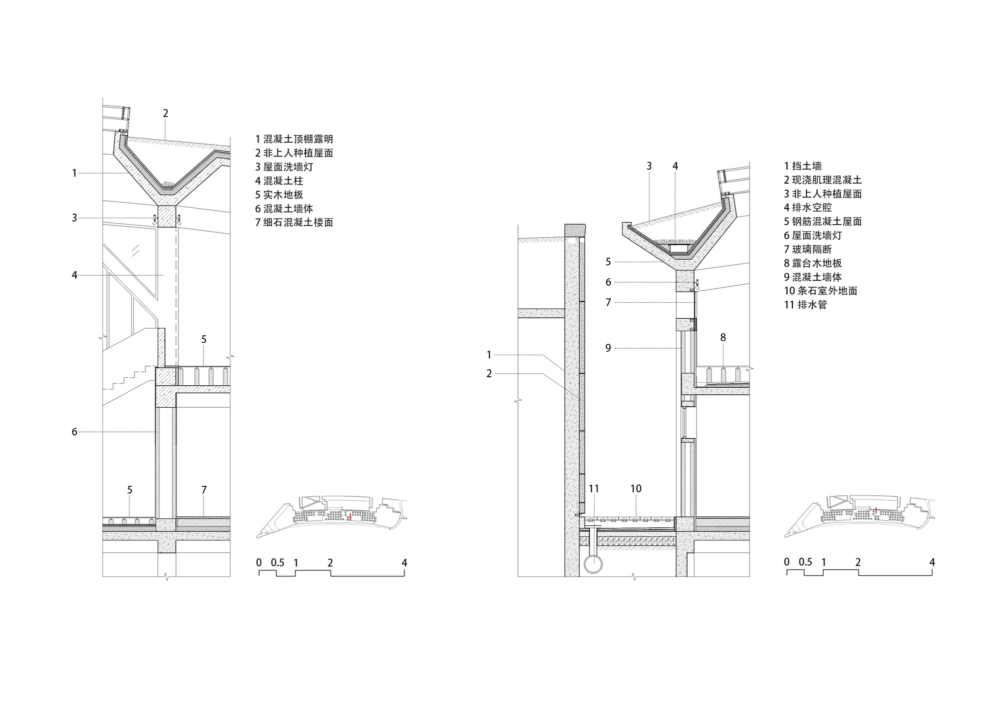
상하이 린강신도시 디슈이호를 둘러싼 80미터 녹지띠 안에 자리한 디슈이호 부두 1호는 단순한 교통시설을 넘어선 혁신적인 도시공간이다. 지하철 16호선 디슈이호역과 인접한 이곳은 린강신도시와 상하이 도심을 연결하는 중요한 거점 역할을 한다. 전체 계획에 따르면 이곳은 크루즈선이 정박하고 관광객들이 승선하는 부두로 기능하며, 이를 지원하는 건축물들이 각종 서비스를 제공하게 된다. 
특별한 위치와 기능적 위상을 고려할 때, 부두 1호는 호수를 둘러싼 녹지띠와 독립적으로 존재하는 단순한 장식적 건물이 아니어야 했다. 대신 전체 대지를 수변환경에 완전히 통합시키고 호수 경관의 일부가 되는 것을 목표로 해야 했다. 이는 마치 한국 전통정원에서 건축물이 자연과 조화를 이루며 경계를 허무는 철학과 맥을 같이 한다. 
경관지향형 건축설계의 혁신적 접근 
디슈이호 부두 1호 프로젝트는 창의적인 경관지향형 건축설계 전략을 채택하여, 토지이용계획으로 인한 부두건물과 녹색경관의 분리 현상을 근본적으로 해결했다. 부두 건축물과 경관을 완전히 통합함으로써 일상을 넘어선 수변공간 경험을 창조하는 동시에 다양한 기능과 행위활동을 자연스럽게 수용한다. 
디슈이호 부두 1호의 건축은 창의적인 구조설계를 통해 녹지띠 경관과 부두 기능을 결합한다. 3차원적으로 배치된 서로 다른 동선들이 호수 주변 녹지띠의 단조롭고 빈곤한 분위기를 변화시키며, 경관과 공공활동, 생태 측면에서 수변공간의 연속성을 유지한다. 
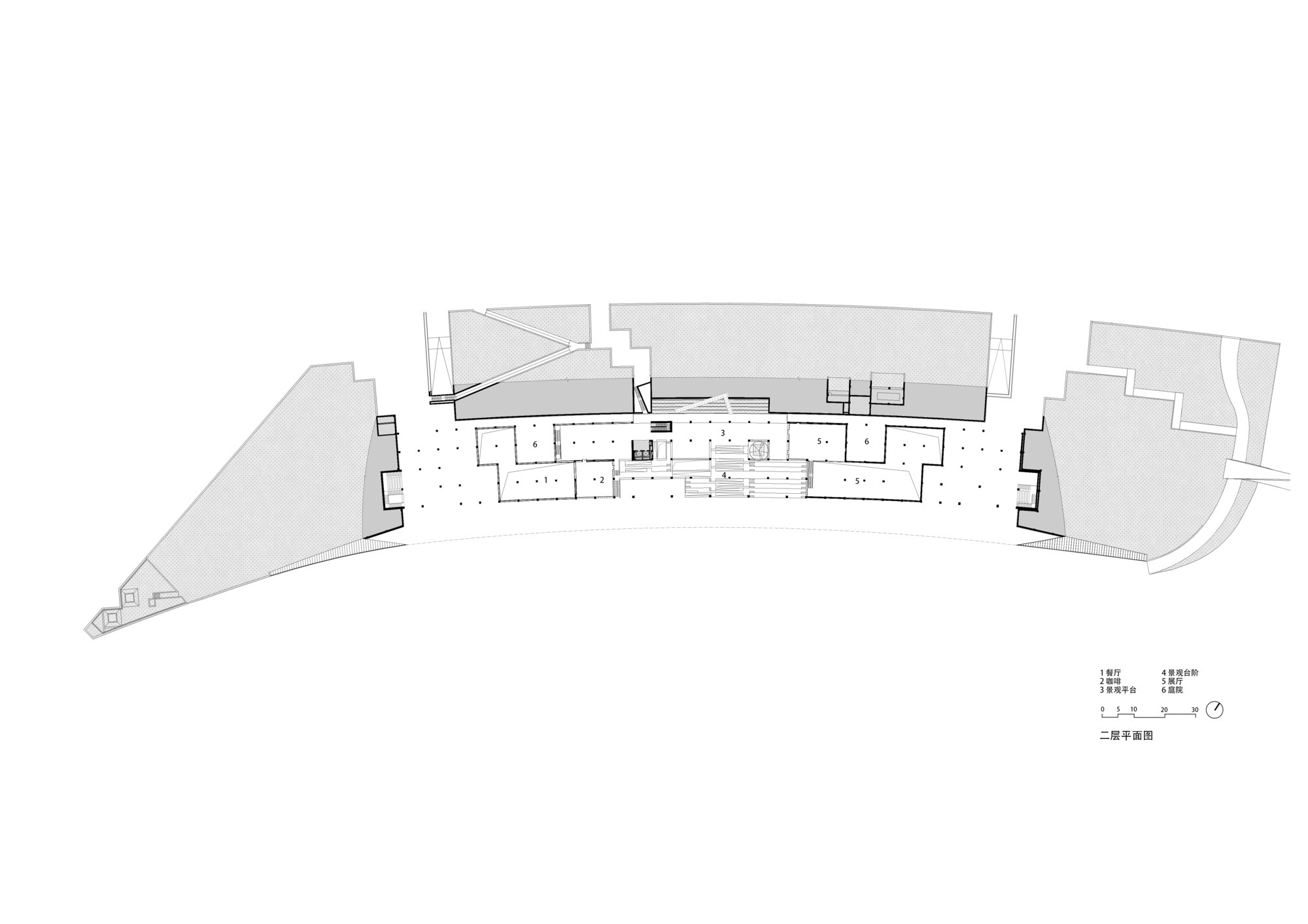
다공 아치형 지붕 아래 펼쳐지는 풍부한 공간 
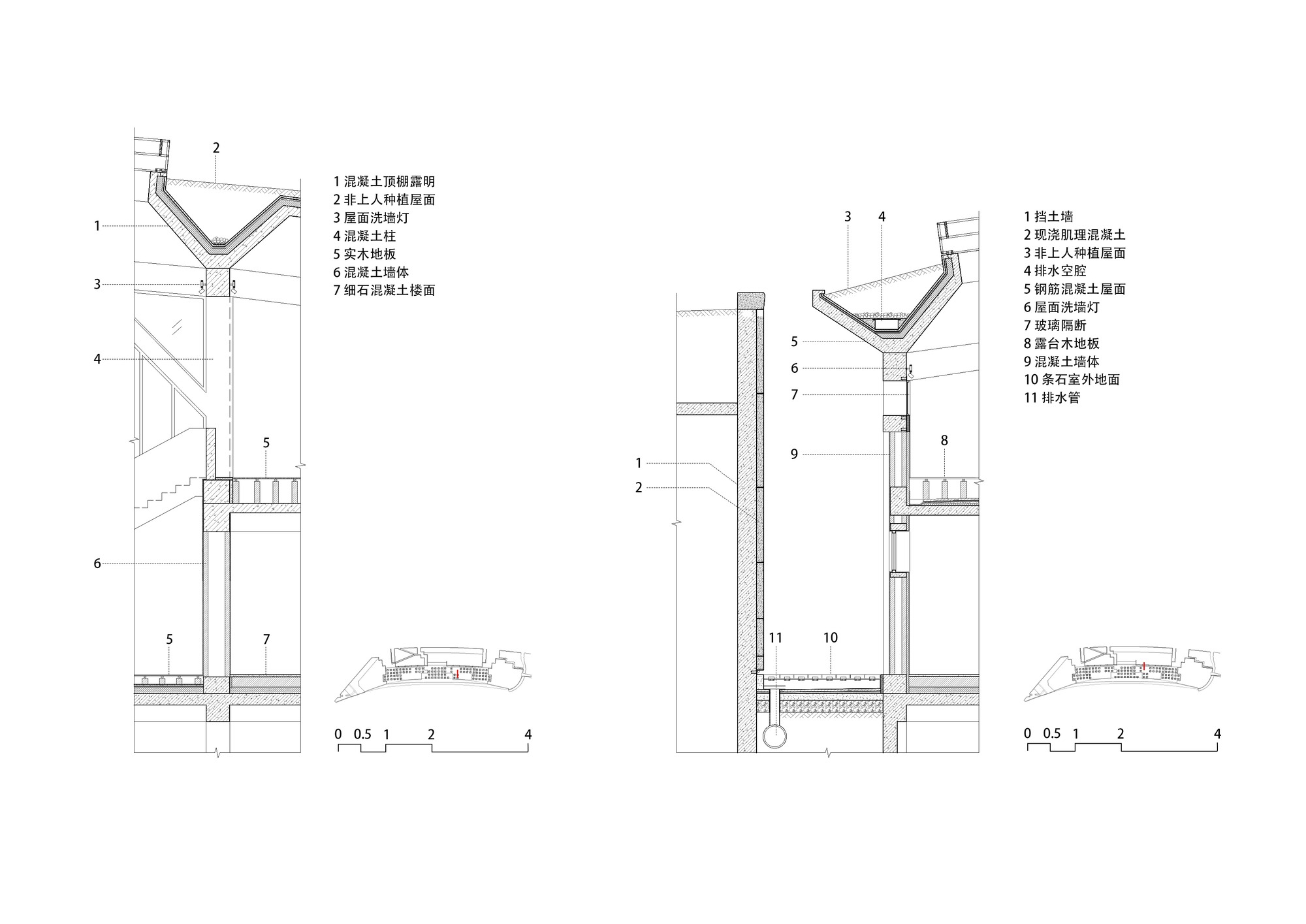
새로운 설계안은 공공공간체계의 개입을 최대화하는 전략을 적용한다. 대지 전체를 덮는 다공 아치형 식재 지붕이 부두건물과 녹색경관을 통합하며, 풍부한 빛과 그림자, 푸른 나무들, 그리고 독특한 공간경험이 어우러진 '내부공간' 아래에서 사람들의 수변 휴식활동을 품어낸다. 
내부공간 안의 넓은 계단, 플랫폼, 수목 화분, 경사로, 계단, 중정 등은 건물의 풍부한 공간적 위계를 구성한다. 동시에 부두건물 주변과 지붕 트러스 위의 녹지가 무성하게 자라나기를 기다리고 있으며, 건물을 푸른 나무와 빛 속에 완전히 감싸고 숨기는 역할을 하게 된다. 한편 공간구조가 대지 위에 구축한 공공공간체계는 이 건물의 가장 중요한 상징이 될 것이다. 
이러한 접근은 우리에게 익숙한 한강공원의 수변데크나 동대문디자인플라자의 공공공간과는 다른 차원의 경험을 제공한다. 단순히 기능적 시설물을 배치하는 것이 아니라, 건축물 자체가 거대한 공공공간이 되어 도시민들의 다양한 활동을 자연스럽게 유도하고 수용한다. 
교통시설에서 특별한 공공공간으로의 전환
디슈이호 부두 1호는 교통시설을 차별화된 공공공간으로 변모시켰다. 상하이 중심부에서 멀리 떨어진 신도시인 디슈이호에 독특한 수변환경을 조성한 것이다. 이러한 새로운 유형의 경관건축을 통해 부두 1호는 대지 가치에 대한 사람들의 인식을 일깨우고 자연 속에서 생태적 특성을 육성하려 시도한다. 
이 프로젝트는 장소 내에서 빈번한 일상활동과 축제행사를 자극하여 이 신도시에 지속가능한 활력을 불어넣었다. 단순한 기능적 시설을 넘어서, 도시와 자연, 인간의 활동이 하나로 어우러지는 새로운 도시공간의 가능성을 제시한다. 
현대 도시건축이 나아가야 할 방향을 보여주는 이 프로젝트는 건축물이 환경을 지배하는 것이 아니라 환경의 일부가 되어 더 큰 가치를 창조하는 진정한 통합적 사고의 결과물이다. 특히 급속한 도시화를 경험하고 있는 한국의 신도시 개발에도 중요한 시사점을 제공한다. 
Write by Claude & Jean Browwn
































The Pier One Dishui Lake is located within the 80 meter green belt surrounding Dishui Lake in Lingang New Town, Shanghai. It is also adjacent to the Dishui Lake terminal station of Metro Line 16 and is an important node connecting Lingang New Town and the urban area of Shanghai. According to the overall plan, this will be a place for cruise ships to dock and tourists to board, and supporting buildings will be set up to provide services. Given its specific location and functional positioning, Pier One should not be just an embellishment building independent of the green belt surrounding the lake, but should strive to fully integrate the entire site into the waterfront environment and become a part of the lake landscape. 
The Pier One Dishui Lake project creatively adopts a landscape oriented architectural design strategy, avoiding the separation of pier buildings and green landscapes caused by land use planning, allowing the pier buildings and landscapes to fully integrate, thus creating a waterfront space experience that transcends daily life while accommodating multiple func-tions and behavioral activities.  
The architecture of Pier One Dishui Lake combines the green belt landscape with the pier function through creative structural design. Different flow lines are arranged in a three dimensional manner, changing the monotonous and impoverished atmosphere of the lake surrounding green belt and maintaining the continuity of the waterfront in terms of land-scape, public activities, and ecology. 
The new design plan for the Pier One Dishui Lake adopts a  strategy which maximizes the intervention of public space systems and integrates the pier building and green landscape with a multi hole arc-shaped planting roof covering the site. It accommodates people's waterfront leisure activities under a "cavity" with rich light and shadow, green trees, and spatial experience.  
The wide steps, platforms, tree pools, ramps, stairs, courtyards, etc. in the cavity constitute the rich spatial hierarchy of the building. At the same time, the greenery around the dock buildings and on the roof trusses is waiting to flourish, or to completely accommodate and conceal the building in green trees and light, while the public space system constructed by its spatial structure on the site will become the most important symbol of this building. 
The Pier One Dishui Lake has transformed transportation facilities into a distinctive public space, creating a unique waterfront environment for Dishui Lake, a new city located far from the center of Shanghai. With the help of this new type of landscape architecture, Pier One attempts to awaken people's awareness of the value of the site and nurture ecological characteristics in nature. It has stimulated frequent daily activities and festive events within the venue, bringing sustainable vitality to this new city.
 from archdaily


