"건축은 자연과 조화를 이뤄야 한다. 우리의 임무는 자연을 모방하는 것이 아니라 자연의 원리를 이해하는 것이다." - 안토니 가우디

![]() |
![]() |
![]() |
숲속의 미래형 캐빈, Hello Wood-PEBL Cabins
Hello Wood 스튜디오의 공동창립자이자 CEO인 안드라시 후사르는 "PEBL 그랜드가 뉴욕에서 데뷔했다. 워크스테이션 캐빈으로도 알려진 PEBL 원의 대형 업그레이드 버전으로, 꿈이 현실이 되었다"고 말했다.
창작 캠프에서 본격적인 개발까지
Hello Wood는 처음에 건축 창작 캠프를 조직하는 데 주력했지만, 수년에 걸쳐 풀서비스 제품 개발 디자인 앤 빌드 스튜디오로 성장했다. 공공 설치물을 통해 인정을 받은 이 스튜디오는 이제 "고정관념을 벗어난 사고"라는 원칙을 받아들여 자체 숙박 개발 프로젝트를 만들고 있다. 카폴치 시클라크 리조트 설립과 운영을 통해 얻은 경험을 바탕으로, 그들만의 글램핑 시대를 열었다. 새롭게 선보인 PEBL 그랜드는 4년 전 시작된 건축 개발의 결과물인 획기적인 모듈형 캐빈 개념이다. 초기 모델은 혁신적인 아이디어에 열린 만족한 재방문 고객 덕분에 가능해졌다. 이전에 그는 12세 딸을 위한 꿈의 프로젝트로 특별한 비행기 모양의 캐빈인 제트 하우스를 의뢰했다. 이러한 프로토타입 개발 지원 덕분에 캐빈들이 이제 뉴욕까지 진출하게 되었다.
기술과 디자인의 혁신
독창적으로 설계된 캐빈은 조립식 건축의 잠재력을 완전히 새롭게 상상한다. 그 외관은 유기적이면서도 미래적이다. 프리미엄 수준의 편안함과 환경 의식을 결합하여 기술적 혁신과 자연에서 영감을 받은 형태를 조화시킨다. 우주 캡슐이나 지질학적 지층을 연상시키는 디자인은 전통적인 직각의 건축 규범에서 벗어난다. 그 결과, "다면체" 디자인 언어로 정의된 조약돌 모양의 캐빈은 자연 환경과 도시 환경, 예를 들어 이전에 사용되지 않던 옥상에도 매끄럽게 통합될 수 있다.
이 독특하고 조각적인 구조물의 효율적이고 현대적인 실현 뒤에는 Hello Wood만의 특허받은 독자적인 건설 시스템이 있다. 이 컴퓨터수치제어로 제작된 3차원 쉘 구조는 견고한 목재 직교집성판 내력 코어와 단열 및 방수 층을 결합한다. 이 혁신은 복잡한 공간 형태와 불규칙한 기하학의 창조를 가능하게 하면서 동시에 재료 낭비와 조립 시간을 줄인다. 디자인은 다양한 환경과 고객 요구에 매우 적응적이다. 유지보수가 필요 없는 외부 클래딩의 재료와 질감에 따라 목재, 석재, 알루미늄, 또는 심지어 거울까지 사용할 수 있어, 숲이든 산업 지역이든 주변 환경에 자연스럽게 어우러지거나 의도적으로 돋보이게 할 수 있다.
맞춤화와 효율성의 만남
캐빈의 생산과 설치는 예측 가능성과 속도를 바탕으로 구축된다. 캡슐들은 유럽 전역에서 완전히 조립식으로 제작되어 조립되고 턴키 방식으로 배송될 수 있으며, 더 먼 지역의 경우 표준 해상 컨테이너에 평면 포장되어 운송된다. 조립식 캐빈의 현장 설치는 대략 하루가 걸린다. 그라운드 스크류 기초 시스템 덕분에 콘크리트 기초가 필요하지 않아 환경 영향을 최소화한다. 이러한 방식으로 필요한 현장 준비는 단 반나절 만에 완료될 수 있다. 이 과정은 지연이 종종 문제가 되는 숙박 개발 프로젝트에서 특히 유리하다.
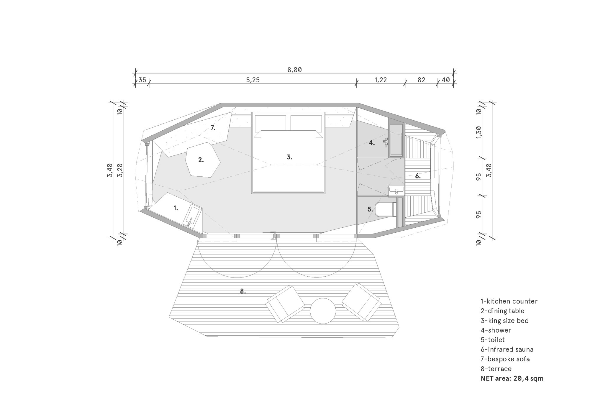
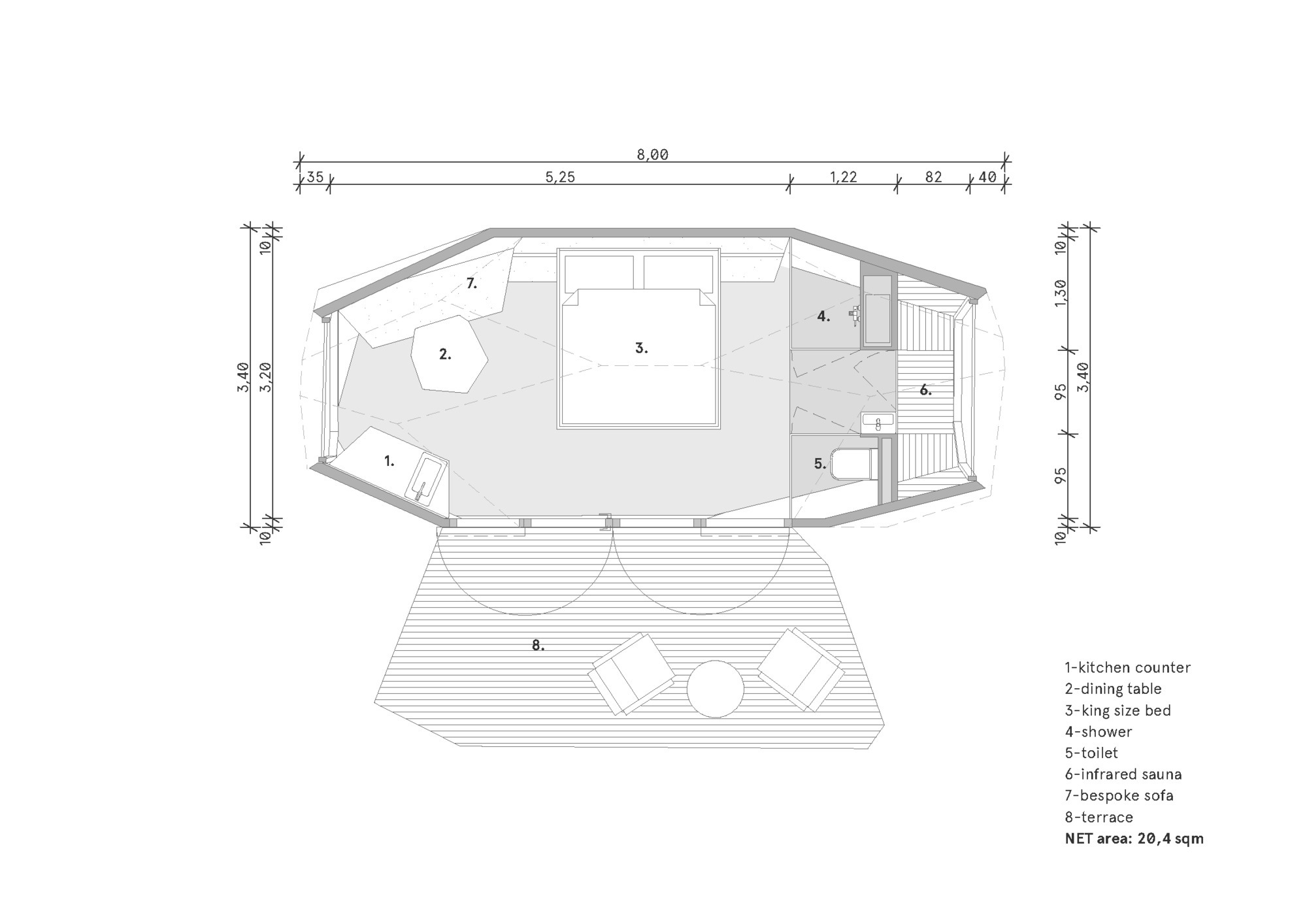
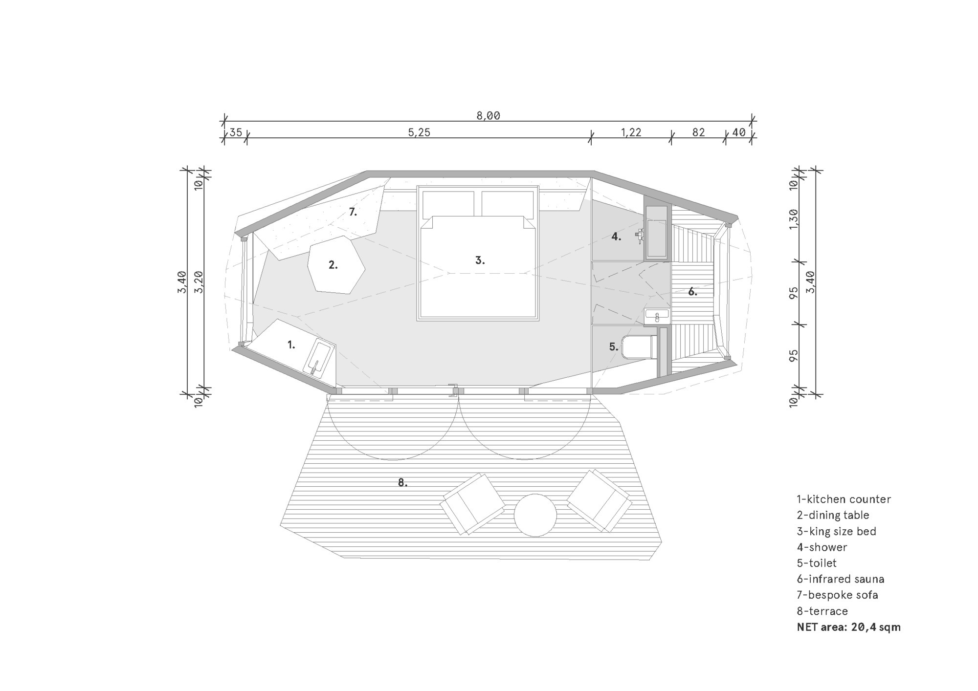
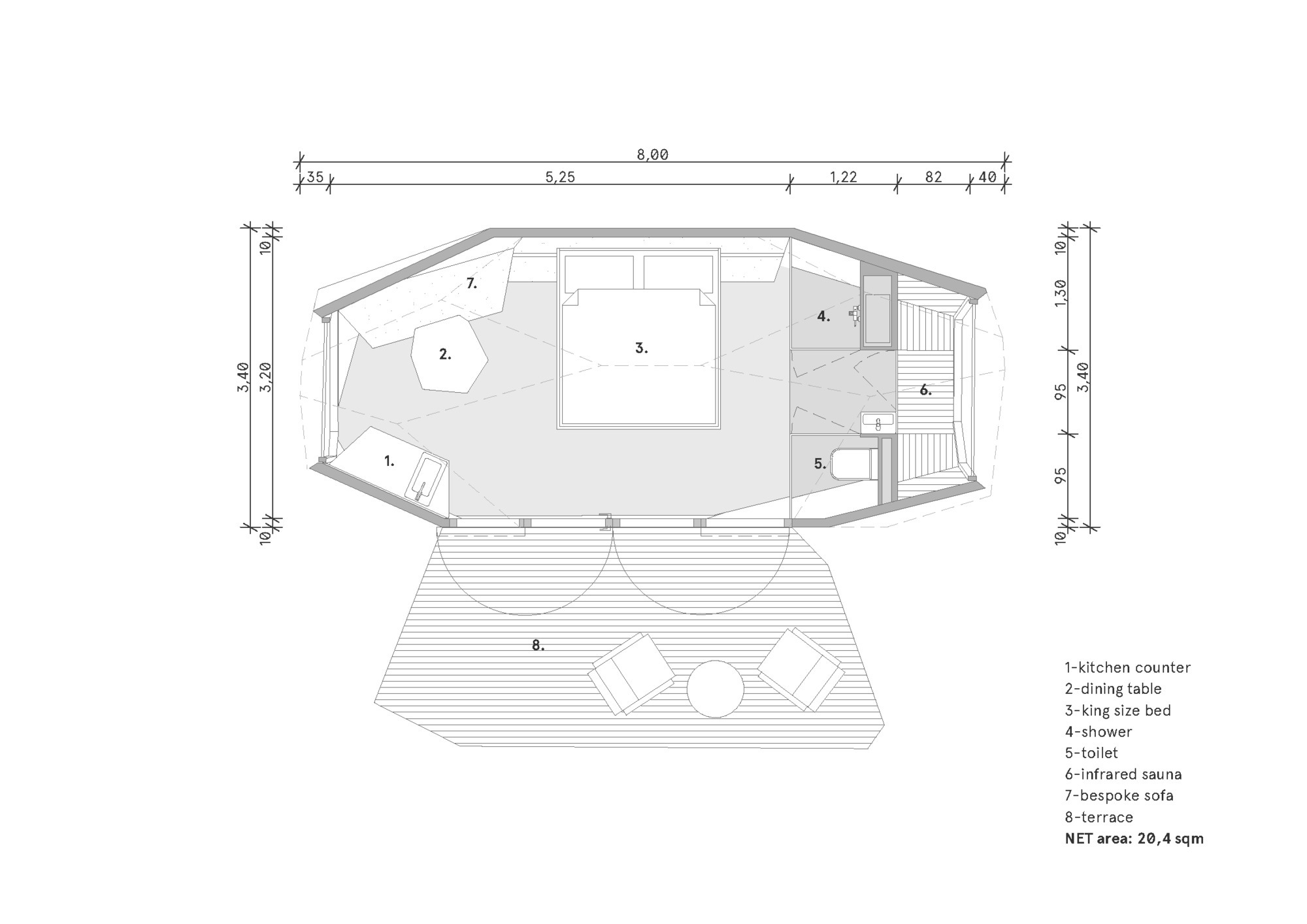
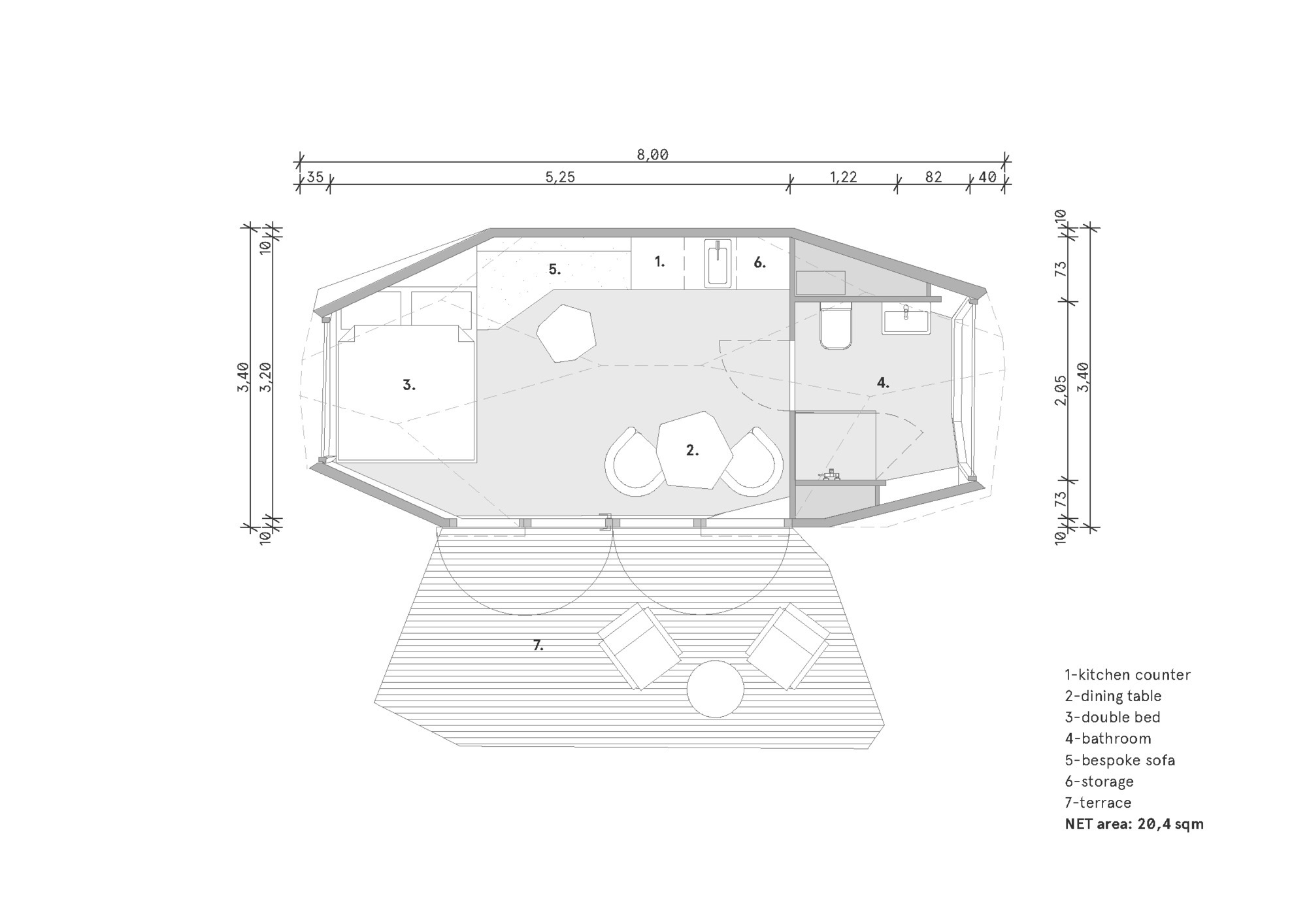
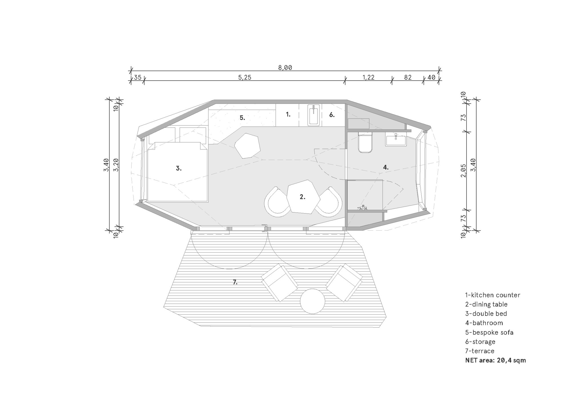
캐빈들은 기능과 재료 면에서 완전히 맞춤화 가능하며, 각 고객의 특정 요구에 맞춰 조정된다. 컴팩트한 크기에도 불구하고, 킹사이즈 침대, 식사 공간, 주방, 욕실, 파노라믹 적외선 사우나, 그리고 대형 유리 표면을 포함하여 5성급 2인용 호텔 스위트의 편안함과 품질을 갖춘 완전한 사용자 경험을 제공한다. 더욱이 캐빈은 추가 PEBL 유닛으로 확장될 수 있어 공간 배치가 매우 유연하다. 이 독특한 모양의 조각적 랜드 아트 오브제들은 회전하고 재배치할 수 있어, 불규칙한 모양의 조약돌처럼 모든 각도에서 다른 면을 보여준다. 그들의 잠재적 용도는 거의 무한하다. 페스티벌 휴식 공간, 명상 스튜디오, 창작 작업 공간, 독점적인 게스트 룸, 또는 심지어 개인 사우나까지 역할할 수 있다.
Hello Wood의 PEBL 그랜드는 단순한 숙박 시설을 넘어선다. 이는 자연과 기술, 전통과 혁신이 만나는 지점에서 탄생한 새로운 주거 패러다임이다. 마치 한옥의 자연 친화적 철학을 현대적 기술로 재해석한 듯, 이 캐빈은 우리에게 건축이 환경과 어떻게 조화를 이룰 수 있는지를 보여준다. 숲속에서 발견하는 순간부터 내부에서 경험하는 모든 공간까지, PEBL 그랜드는 거주자에게 자연 속에서의 프리미엄 경험을 선사한다.
Write by Claude & Jean Browwn






















"The PEBL Grand debuted in New York a larger, upgraded version of the PEBL One, also known as the Workstation Cabin, – a dream come true," said András Huszár, co-founder and CEO of Hello Wood.
From creative camps to full-fledged development -Hello Wood initially focused on organizing architectural creative camps, but over the years, it has grown into a full-service product-developing design & build studio. While it gained recognition through its public installations, the studio now creates its own accommodation developments, embracing the principle of "thinking outside the box." Drawing on the experiences gained from establishing and operating their Kapolcsi Sziklák Resort, they launched their own glamping era. The newly introduced PEBL Grand is a groundbreaking modular cabin concept, the result of an architectural development that began four years ago. The initial model was made possible by a returning, satisfied client who is open to innovative ideas — previously, he commissioned a special airplane-shaped cabin, the Jet House, as a dream project for his 12-year-old daughter. Thanks to this supported prototype development, the cabins have now made their way all the way to New York.
Innovation in technology and design The uniquely designed cabin completely reimagines the potential of prefabricated architecture. Its appearance is both organic and futuristic; by merging premium-level comfort with environmental awareness, it combines technological innovation with nature-inspired forms. Its design—reminiscent more of space capsules or geological formations—breaks away from traditional, right-angled architectural norms. As a result, the pebble-shaped cabin, defined by a "low-poly" design language, can seamlessly integrate into both natural and urban environments—such as previously unused rooftops.
Behind the efficient and contemporary realization of this unique, sculptural structure is Hello Wood's own patented, proprietary construction system. This CNC-manufactured three-dimensional shell structure combines a solid wood CLT (Cross-Laminated Timber) load bearing core with insulating and waterproof layers. This innovation enables the creation of complex spatial forms and irregular geometries, while also reducing material waste and assembly time. The design is highly adaptable to various environments and client needs: depending on the material and texture of the maintenance-free exterior cladding – which may be wood, stone, aluminum, or even mirror – it can either blend into its surroundings, whether forested or industrial, or intentionally stand out from them.
Customization meets efficiency The production and installation of the cabin are built on predictability and speed. The capsules can be fully prefabricated, assembled, and delivered turnkey-ready throughout Europe, while for more distant locations, they are shipped flat-packed in standard sea containers. On-site installation of the prefabricated cabin takes approximately one day. Thanks to the ground screw foundation system, no concrete base is required, minimizing environmental impact. This way, the necessary site preparation can be completed in just half a day. This process is especially advantageous in accommodation development projects, where delays are often a challenge.
The cabins are fully customizable in functionality and materials, tailored to the specific needs of each client. Despite its compact size, it offers a complete user experience with the comfort and quality of a five-star, two-person hotel suite – including a king size bed, dining area, kitchen, bathroom, panoramic infrared sauna, and large glass surfaces. Moreover, the cabin can be expanded with additional PEBL units, making its spatial layout highly flexible. These uniquely shaped, sculptural land art objects can be rotated and relocated, showing different faces from every angle – much like irregularly shaped pebbles. Their potential uses are nearly endless: they can serve as a festival resting area, meditation studio, creative workspace, exclusive guest room, or even a private sauna.
from archdaily


