"건축은 땅과 하늘, 그리고 그 사이를 살아가는 사람들을 위한 것이다." - 알바로 시자 (Álvaro Siza)

![]() |
![]() |
![]() |
경사를 품은 집, 기후를 조율하는 건축 Mesure Studio-House in Forêt-Fouesnant
sliding curtains veil ecological cork-clad residence by mesure studio in brittany, france
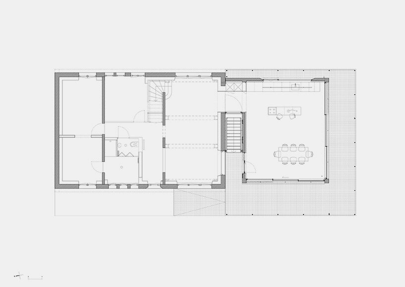
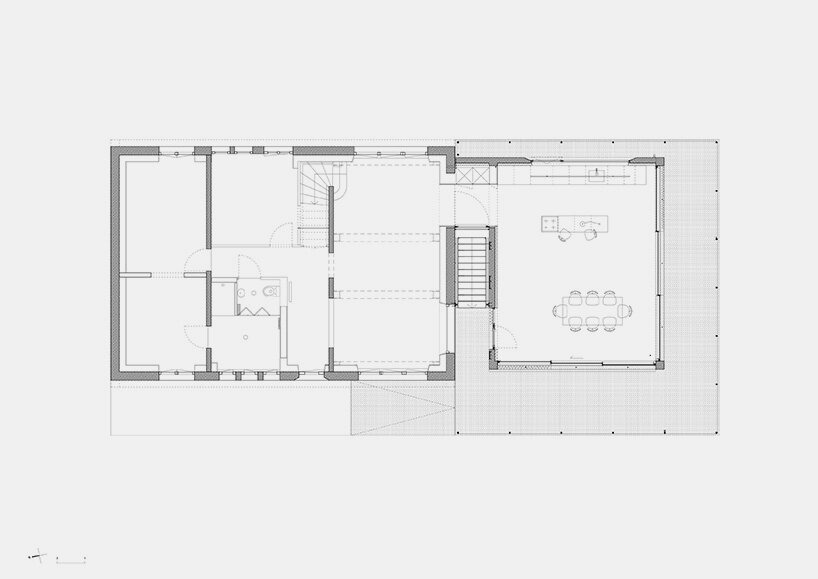
Mesure Studio가 설계한 이 해안가 주택은 프랑스 브르타뉴 지방 포레-푸에스낭의 가파른 경사지에 자리한다. 100제곱미터 규모의 이 건축은 실험적인 저탄소 건축 기법과 변화하는 기후에 대응하는 열적 쾌적성 전략을 결합한다. 노출된 천연 코르크 내부와 현장타설 콘크리트 외피가 원시적 공간감을 형성하며, 콘크리트 표면에 매입된 광택 스테인리스 스틸 판이 광물성 실루엣을 반사한다.
지형과 기후를 조율하는 형태
이 지역의 전형적인 화강암 지붕 주택을 답습하는 대신, 건축가는 외팔보 구조의 현대적 해석을 제시한다. 지붕선이 땅에서 떠올라 박공벽과 분리되는 이 제스처는 핵심 조망을 보호하면서 연못과 대서양을 내려다보는 전망 공간을 만들어낸다. 공중에 떠 있는 듯한 이 볼륨은 아래쪽에 그늘진 정원을 품는다. 정원은 점점 강렬해지는 여름 더위를 완화하고 비가 내릴 때 보호막이 되어준다. 지형이 건물을 향해 상승하면서 녹지는 위로 이어져 옥상 녹화로 건물을 감싼다.
대형 차양막이 파사드를 가로질러 미끄러지듯 움직이며 일사를 걸러낸다. 이는 경사진 땅 위를 가볍게 떠 있는 볼륨의 인상을 강조한다. 주택은 이렇게 바닷바람과 햇빛, 비에 대응하면서도 대양 수평선과의 시각적 연속성을 유지한다.
저탄소 재료의 공예적 접근
이러한 형태 전략은 재료 선택에서도 이어진다. 콘크리트 외피는 저탄소 배합으로 현장에서 타설되며, 여러 마감 기법으로 처리된다. 샌딩, 잔다듬, 매끈한 처리, 무광 마감. 각 면이 빛에 다르게 반응한다. 벽체 안에 매입된 거울광 스테인리스 스틸 인서트는 돌의 지질학적 기원을 환기하면서 주변 식물과 하늘의 덧없는 반사상을 만들어낸다. 외부에는 염분 함유 공기에 저항성을 지닌 XS2 콘크리트를 사용한다. 해양 환경에서 열화될 수 있는 외장재나 코팅이 필요 없다.
내부로 향하면 단열재가 노출되고, 코르크 표면이 그늘진 정원의 식물적 성격을 이어받는다. 이 선택은 환경적이면서 동시에 감각적이다. 코르크는 음향을 흡수하고 열적 쾌적성을 조절하며, 내장재나 페인트 같은 이차적 마감을 생략한다. 재료 층위를 줄이고 공사 기간을 단축한다. 내부의 원시성은 외부에 매입된 스틸이 만들어내는 빛나는 반사와 대비를 이룬다.
환경 통합의 건축적 의미
이 주택이 보여주는 것은 전통적 형태에 대한 존중과 현대적 환경 전략 사이의 균형이다. 재료의 물성을 솔직하게 드러내면서도 변화하는 기후에 유연하게 대응한다. 콘크리트와 코르크, 스틸이라는 최소한의 재료 팔레트는 지속가능성을 장식이 아닌 구조적 논리로 실현한다.
프로젝트 정보
프로젝트명: 포레-푸에스낭 주택
건축가: Mesure Studio
위치: 포레-푸에스낭, 브르타뉴, 프랑스
면적: 100제곱미터
사진: Raphaël Boursier Desvignes</parameter>
Write by Claude & Jean Browwn


















poured-in-place concrete clads Mesure Studio’s house in france
Mesure Studio completes a seaside residence nestled into the steep slopes of Forêt Fouesnant on the coast of Brittany, France, that pairs experimental low-carbon construction with strategies for thermal comfort in shifting climates. The 100 square-meter house is defined by its raw interior of exposed natural cork and an envelope of poured-in-place concrete, into which sheets of polished stainless steel are inlaid to create reflective mineral silhouettes.
Rather than replicate the pitched granite roofed houses typical of the region, the architects developed a contemporary interpretation of the lean-to form. The roofline is lifted from the ground and detached from the gable, a gesture that protects key sightlines while generating a belvedere overlooking the pond and the Atlantic. This elevated volume also shelters a shaded garden below, designed to mitigate heat during increasingly intense summers and provide cover during periods of rain. As the landscape rises toward the house, the garden extends upward to crown the building with a green roof.
Large exterior curtains slide across the facade, filtering solar gain and accentuating the impression of the elevated volume floating lightly above the sloping ground. In this way, the house negotiates its exposure to sea winds, sunlight, and rain while sustaining visual continuity with the ocean horizon.
Low-carbon concrete as both structure and surface
The house’s concrete shell is treated as a crafted material, poured on-site using a low carbon mix; its surfaces are articulated in multiple finishes — sanded, bush-hammered, smooth, and matt — so that each exposure responds to light differently. Mirror-polished stainless steel inserts embedded within the walls recall the geological origins of stone while producing fleeting reflections of the surrounding vegetation and sky. For outside use, the Paris- and Bretagne-based team at Mesure Studio chooses XS2 concrete for its resistance to saline air, eliminating the need for cladding or coatings that might weather poorly in a marine environment.
Inside, the architects leave insulation uncovered, with cork surfaces continuing the vegetal character of the shaded garden. This choice is both environmental and sensory, as cork improves acoustic absorption, regulates thermal comfort, and removes the need for secondary finishes such as linings or paint, reducing material layers and the project’s duration. The interior’s rawness contrasts with the luminous reflections cast by the embedded steel on the exterior.
name: House in Forêt-Fouesnant
architect: Mesure Studio | @mesure_studio
location: Forêt-Fouesnant, Brittany, France
area: 100 square meters
photographer: Raphaël Boursier Desvignes
from designboom


