"건축은 단순히 건물을 짓는 것이 아니라, 그 안에서 살아갈 삶을 만드는 일이다." - 안도 다다오

![]() |
![]() |
![]() |
쌓은 돌처럼 층층이 올라간 출창, 도시와 이어지는 오피스 Mitsubishi Jisho Design Inc.-Front Place Chiyoda Ichibancho
이 임대 오피스 빌딩은 도쿄 황궁 인근, 역사가 깃든 이치반초 지역에 있다. 지하철역에서 불과 몇 걸음 거리다. 이곳은 옛 에도성의 해자와 석벽이 아직 남아 있는, 도심 속 역사 문화 지구다. 하지만 이 건물이 주목받는 이유는 입지만이 아니다. 기존 임대 오피스가 안고 있던 근본적 한계를 정면으로 마주하고, 그에 대한 건축적 해법을 제시했기 때문이다.
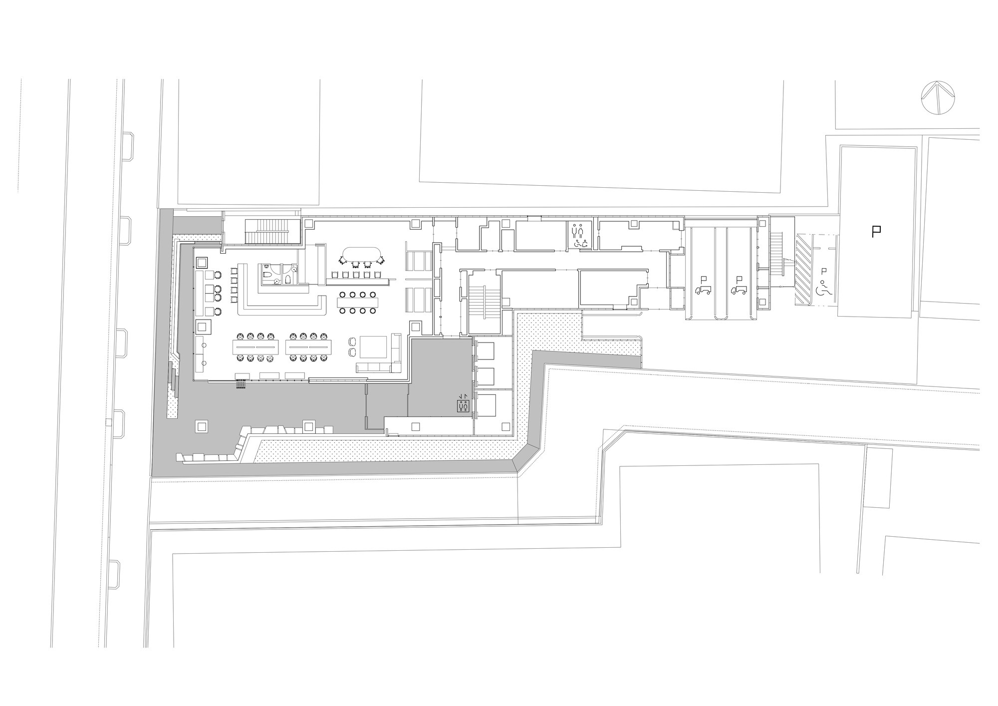
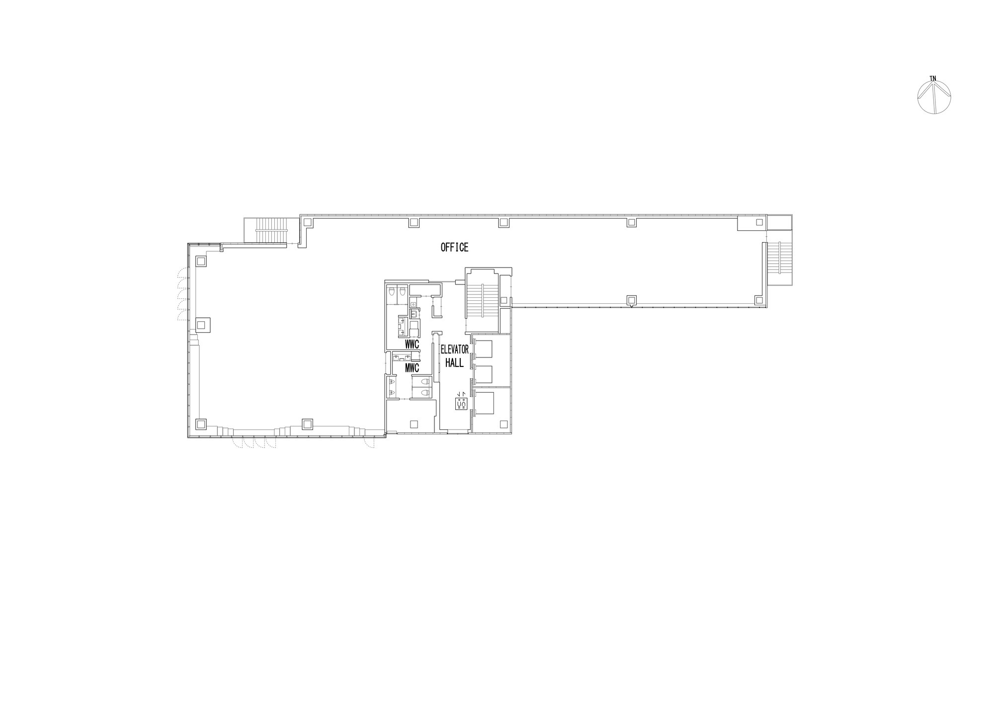
일반적인 임대 오피스 빌딩은 하나의 건물 안에 여러 회사가 입주하지만, 획일적인 파사드는 그 다양성을 드러내지 못한다. 주변 지역사회와 단절된 채, 가로 풍경에 기여하는 바도 거의 없다. 이 프로젝트는 바로 이 문제를 극복하기 위해 출발했다. 사람들을 도시 환경과 연결하고, 점점 다양해지는 일하는 방식과 가치관을 수용하는 건물을 만들고자 했다. 이를 위해 두 가지 핵심 요소를 도입했다. 하나는 각기 다른 형태의 출창이 만들어내는 내부 공간이고, 다른 하나는 개방된 외부 공간이다.
파사드 설계는 주변에 남아 있는 옛 성곽의 석벽에서 영감을 받았다. '쌓은 돌'이라는 개념을 바탕으로, 층마다 다른 형태의 출창을 쌓아 올렸다. 이 출창들은 입주 기업과 직원들의 다채로운 활동을 시각적으로 드러내며, 가로에 활기를 불어넣는다. 동시에 건물 안 사람들이 자신의 일터와 연결감을 느끼도록 돕는다. 설계팀은 네 가지 서로 다른 U자형 PC 슬래브와 표준 알루미늄 창호를 조합하여 외관의 복잡한 표현을 구현했다. 디자인의 표현력과 경제적 효율성, 두 마리 토끼를 동시에 잡은 셈이다.
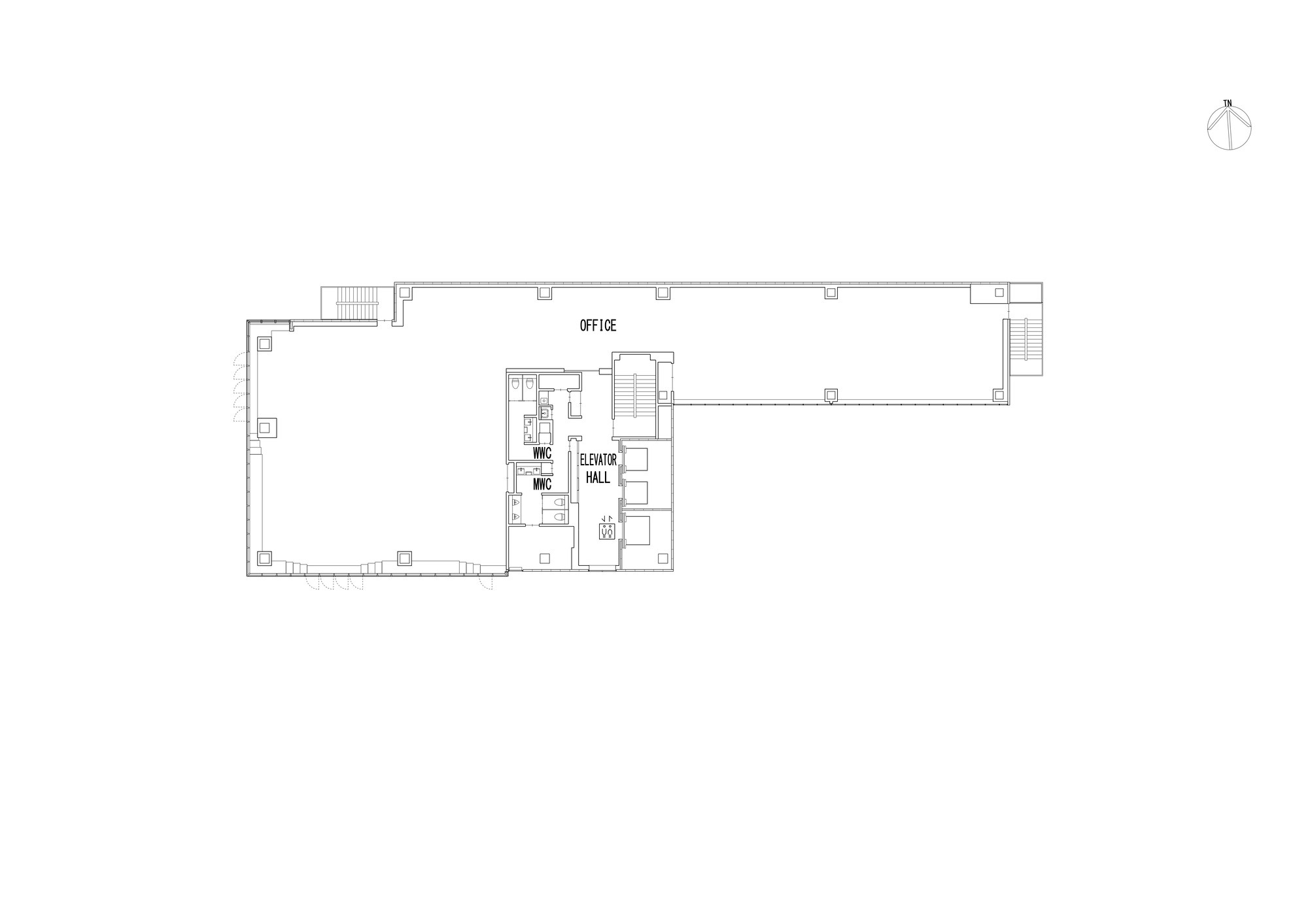
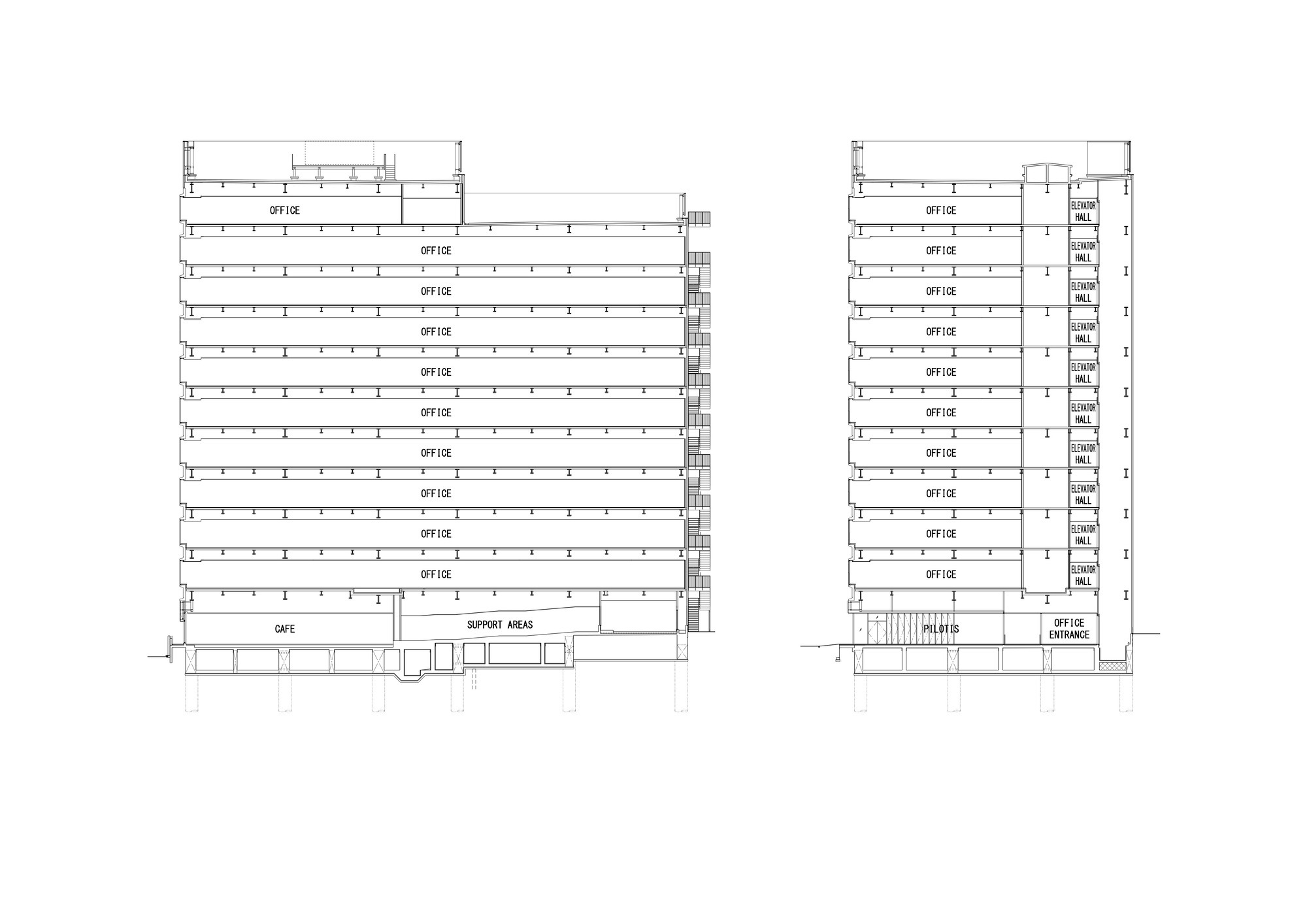
각 층의 출창이 만드는 공간은 파사드와 통합하며, 높이가 다양하다. 카운터 높이부터 책상 높이까지, 용도에 따라 앉을 수 있는 공간으로 구성했다. 건축 법규상 예외 조항을 적용하여 이 공간들을 바닥 면적 산정에서 제외하고, 허용된 건축 용적 안에서 실제 사용 가능한 업무 공간을 늘렸다. 동시에 일반적인 오피스 배치에서 흔히 활용도가 낮았던 창가 영역을 활동의 중심으로 재정의했다. 그 결과 유연한 일하는 방식과 창의적인 가구 배치를 가능하게 하는 오피스 빌딩이 탄생했다. 출창이 공간 구성의 중심이다.
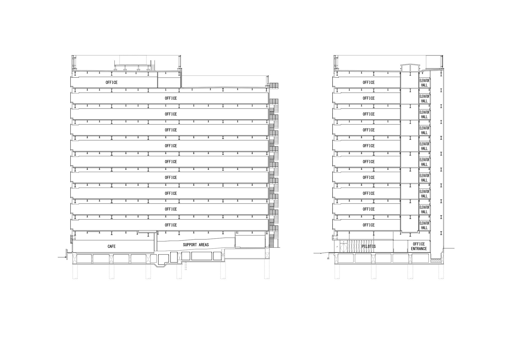
경사진 지형을 활용하여, 입구에는 주변 도로와의 높이 차이를 이용한 벤치와 테라스를 두었다. 1층 카페는 진입로 쪽으로 완전히 열 수 있다. 창호를 접어 넣으면 거리, 오피스 입구, 카페가 필로티 공간을 통해 끊김 없이 이어진다. 지역 주민, 오피스 직장인, 카페 방문객 모두를 환대하는, 사람을 끌어들이는 외부 공간을 만들었다.
모든 오피스 층에는 공기 기반 복사냉방 시스템과 자연환기를 위한 여닫이창을 설치했다. DALI 조명 제어 시스템을 적용하여 입주사의 인테리어 공사가 환경에 미치는 영향도 줄였다. 이러한 노력으로 건물은 일반 기준 대비 연간 1차 에너지 소비를 40% 이상 감축했다. 건물에너지효율지수(BEI) 0.58에 해당하며, BELS 5등급 및 ZEB 지향 수준의 성능을 달성했다. 공용 공간에는 WELL 개념을 적용했다. 층마다 서로 다른 색상 구성, 계단 사용을 유도하는 사인 시스템, 건물 전체에 적용된 '쌓은 돌' 모티프가 그 예다. 그 결과 이 프로젝트는 일본 임대 오피스 빌딩 중 최초로 WELL 코어 v2 사전 인증을 획득했다.
이 건물은 단순히 임대 오피스라는 유형을 넘어선다. 도시와 건물, 건물과 사용자를 새로운 방식으로 연결하며, 다양성을 외관으로 드러내고, 지역사회에 활력을 더하는 건축이다. 쌓은 돌처럼 층층이 올라간 출창은 단순한 디자인 요소가 아니라, 새로운 오피스 문화를 담아내는 그릇이다.
Write by Claude & Jean Browwn




























This tenant office building stands just steps from a subway station in the Ichibancho district of Tokyo's Chiyoda Ward—an area near the Imperial Palace (the former Edo Castle), steeped in history and culture. Conventional tenant office buildings generally house multiple companies within a single structure, yet their facades fail to reflect the diversity within. On top of this, they lack a sense of connection with the surrounding community and contribute little to the streetscape or the character of the local neighborhood. This project addresses these problems by creating a building that connects people to the surrounding urban environment while accommodating increasingly diverse work styles and values. To achieve this, two key architectural elements were incorporated: interior spaces defined by projecting bay windows and an open exterior space.
The design for the facade, composed of bay windows of varying shapes stacked floor by floor, is based on the concept of piled stones a theme inspired by the stone walls still visible along the old castle moat in the vicinity. The bay windows give expression to the diverse activities of the tenant companies and their employees, enlivening the surrounding streetscape and nurturing a sense of connection between the occupants and their workplace. The exterior's complex appearance was achieved through a combination of standard aluminum window frames and precast concrete (PC) slabs in four different U-shaped configurations, balancing expressive design with economic efficiency.
The spaces created by the bay windows on each office floor are integrated with the facade and vary in height, accommodating counter- to desk level seating. Under building code exemptions, these spaces are excluded from floor area calculations, effectively adding usable workspace within the allotted building volume and creating an economic advantage. At the same time, the design redefines the window perimeter—an often underused zone in standard office layouts—as an area of activity. The result is an office building that encourages flexible working styles and imaginative furniture arrangements, with the bay windows as the centerpiece.
Taking advantage of the sloping terrain, we incorporated benches and terraces at the entrance that utilize the difference in elevation from the surrounding streets. The ground floor café can be fully opened in the direction of the approach; when the window frames are retracted, the street, office entrance, and café connect seamlessly through the piloti space, creating an inviting exterior that welcomes local residents, office workers, and café visitors alike.
In addition, all office floors are equipped with an air based radiant cooling system and operable windows for natural ventilation. The use of a DALI (Digital Addressable Lighting Interface) lighting control system also reduces the environmental impact of tenant fit-outs. Through these measures, the building achieves a reduction of more than 40 percent in annual primary energy consumption compared to standard benchmarks, corresponding to a BEI of 0.58—equivalent to BELS 5-star and ZEB-oriented performance levels. In the common areas, WELL concepts were incorporated through strategies such as distinct color schemes on each floor, signage that facilitates and encourages stair use, and the application of the "piled stones" motif throughout the building. As a result, the project became the first tenant office building in Japan to obtain WELL Core v2 pre-certification.
from archdaily


