"새로운 것은 오래된 것을 존중할 때 비로소 의미를 갖는다."— Carlo Scarpa

![]() |
![]() |
![]() |
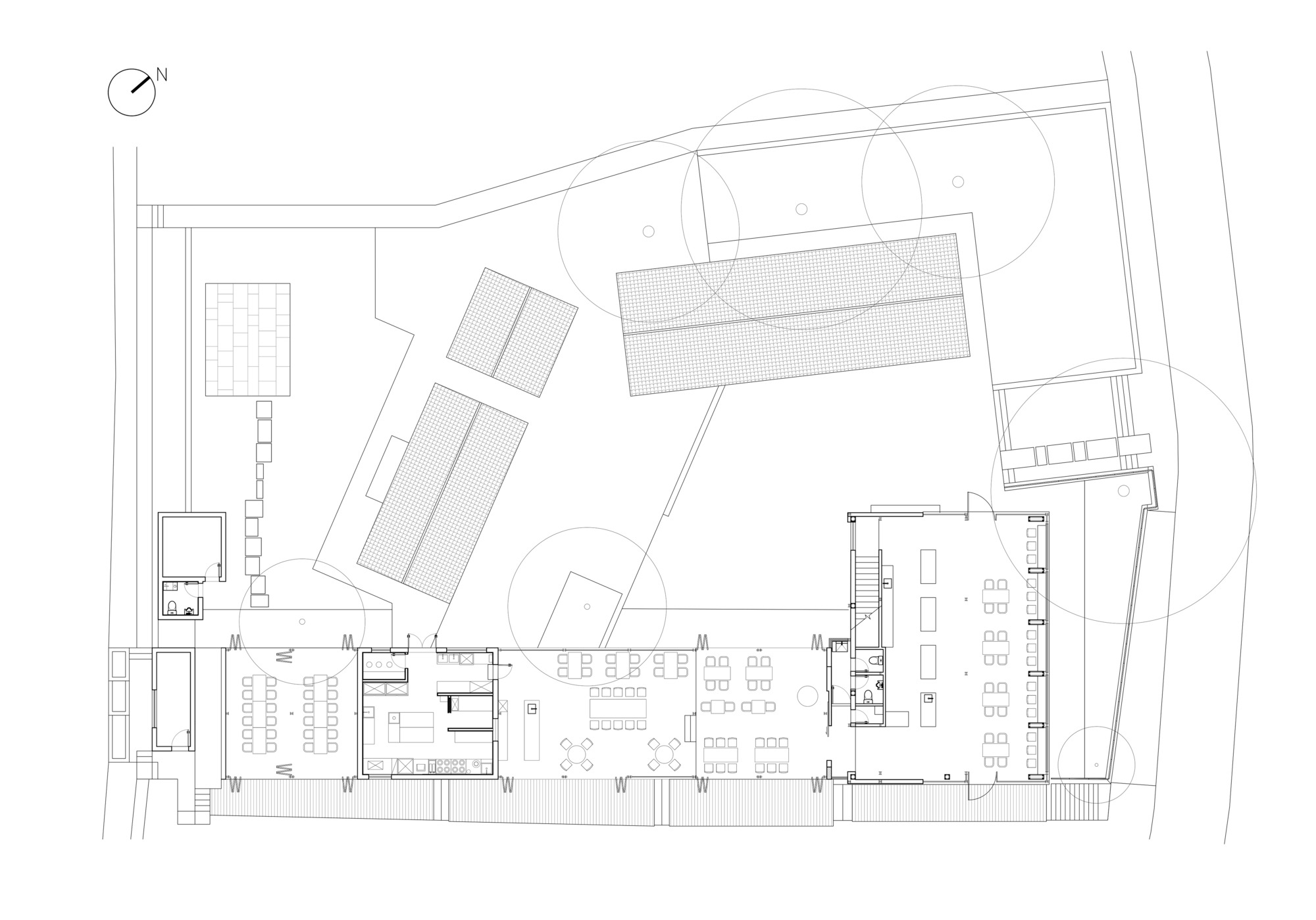
투명한 구조, 겹쳐진 시간 차밭 위에 펼쳐진 Hill Architecture의 new 33 coffee
Hill Architecture-new 33 coffee
차밭 사이로 난 길을 따라가면 유리와 철골의 두 건물이 남북으로 나란히 서 있다. 낮은 차밭 언덕 가까이 자리한 남쪽 건물은 1층 규모의 주방과 식당으로, 북쪽의 탁 트인 조망을 품은 2층 건물은 카페 공간으로 계획되었다. 대지 서쪽에 자리한 몇 그루의 거대한 나무는 한여름 뜨거운 햇살을 막아주며, 덕분에 건물 전면에 큰 유리창을 낼 수 있었다. 건물 북동쪽의 낮은 지형 너머로는 원경의 차밭과 마을 풍경이 시원하게 펼쳐진다.
건물을 감싸고 있는 아름다운 차밭 경관은 설계의 핵심 과제가 되었다. 설계팀은 차밭 풍경을 실내로 온전히 끌어들이기 위해 최대한 투명한 시야를 확보하고자 했다. 구조 프레임과 필수적인 기능 공간의 칸막이를 제외한 나머지 벽체는 모두 투명한 유리 파티션과 폴딩 도어, 창호로 설계되었다. 건물 동쪽과 북쪽에는 금속 캔틸레버 처마를 설치하여 회랑을 만들었다. 이 중간 영역은 실내와 실외를 자연스럽게 연결한다. 동시에 식당의 좌석도 늘려주며, 공간 활용도를 높인다.
설계 초기 단계에서 원 건물은 여러 문제를 안고 있었다. 벽체의 구조 균열, 나무뿌리에 의해 들뜬 1층 바닥, 지붕 누수, 2층 슬래브 균열 등 무질서한 증축과 개조를 거치며 건물의 구조는 매우 불안정한 상태였다. 1차 철거 공사 후 다시 실측했다. 마감재를 걷어낸 후 드러난 것은 목재 바닥, 벽돌 칸막이, 간이 C형강 합성 슬래브, 앵글 격자 프레임, 현장 타설 콘크리트 슬래브 등이 뒤섞인 복합 구조체였다.
원 건물의 자발적인 증축과 개조는 설계 이론의 제약도, 표준화된 규범도 없었지만, 그렇기에 오히려 생동감 있고 흥미로운 구조 형태를 드러냈다. 설계 단계에서 건축주와 여러 차례 논의한 끝에 주요 건물 구조 프레임의 대부분을 보존하기로 결정했다. 다만 기존 구조 프레임에는 여전히 많은 불확실한 안전 리스크가 남아 있었기에, 설계팀은 기존 골조 위에 완전한 철골 구조 시스템을 추가했다. 새로운 구조와 기존 건물 구조는 함께 건물을 떠받치며, 공간 내에서 수많은 교차 지점을 만들어낸다.
이곳에서 과거와 현재는 충돌하지 않는다. 오래된 골조가 드러낸 시간의 흔적 위로 새로운 철골 프레임이 겹쳐지며, 두 시간대의 구조는 서로를 지탱한다. 투명한 유리벽 너머로 흘러드는 차밭의 초록빛, 목재 천장을 따라 부드럽게 퍼지는 자연광, 철골 트러스가 그려내는 기하학적 리듬. 방문자는 이 공간에서 구조가 곧 장식이 되고, 과거가 미래의 일부가 되는 경험을 마주한다. new 33 coffee는 단순히 차를 마시는 장소가 아니라, 시간과 구조, 자연과 인공이 투명하게 공존하는 건축적 실험의 현장이다.
Write by Claude & Jean Browwn


































The building is a combination of blocks with high and low juxtaposition in a straight north-south shape. The first-floor building near the low tea hill in the south is designed as a kitchen and dining room, and the second floor building with a wide view in the north is designed as a coffee shop. Several huge trees in the west of the site can reduce indoor energy consumption in hot summer, which creates favorable conditions for the design of large-area glass floor-to-ceiling windows. The lower terrain in the northeast of the building can be seen by tea gardens and villages in the distance.
The beautiful tea garden landscape around the building makes the design consider ensuring the transparent indoor and outdoor vision as much as possible, so as to introduce the tea garden landscape into the interior without reservation. In addition to the necessary structural frame and local functional space partition walls, the remaining walls of the architectural design are all designed as highly transparent white glass partitions and folding doors and windows.
We designed metal cantilevered eaves on the east and north sides of the building to form a corridor space. As an indoor and outdoor transitional gray space, the corridor also increases the number of dining seats outside the restaurant and improves the utilization rate of the space.
In the early stage of design, there are many problems in the original building: structural cracks in the wall, uneven ground on the first floor topped by tree roots, roof leakage, structural cracks on the second floor, etc. After many disorderly reconstruction, the structure of the building has become very unstable. After the first demolition project, we carried out secondary surveying and mapping. After the decoration and demolition, what was exposed to us was a comprehensive space body composed of wooden floor, brick partition wall, simple C shaped steel composite floor, angle steel lattice frame, cast-in-place concrete floor, etc.
Although the spontaneous construction and renovation of the original building lacks design dogma constraints lacks standardization and sense of security, the structural form presented is very lively and interesting. In the design stage, we repeatedly communicated with Party A and decided to keep most of the structural frames of the main building. However, due to many uncertain safety risks in the original structural frame, we added a complete steel structure system on the basis of the old frame structure. The new structure and the original building structure participated in the load together, forming a large number of staggered nodes in the space.
from archdaily


