"건축은 삶과 특별한 물리적 관계를 맺는다. 그것은 고유한 영역을 가진다."— 페터 춤토르(Peter Zumthor)

![]() |
![]() |
![]() |
숲에 스며든 고요한 건축 Studio J. Bridgland, ZOLAND·에메이 리조트 Studio J. Bridgland-ZOLAND·Emei, Resort
ZOLAND·에메이 리조트는 중국 에메이산에 자리한 정제된 산속 은신처다. Studio J. Bridgland가 설계한 이 프로젝트는 고요한 건축의 철학을 바탕으로, 황폐했던 구조물들을 자연 속으로 매끄럽게 스며드는 은신처로 만든다. 이곳은 머무는 이가 자연과 다시 연결되고, 자기 자신과 마주할 수 있도록 초대하는 장소다.
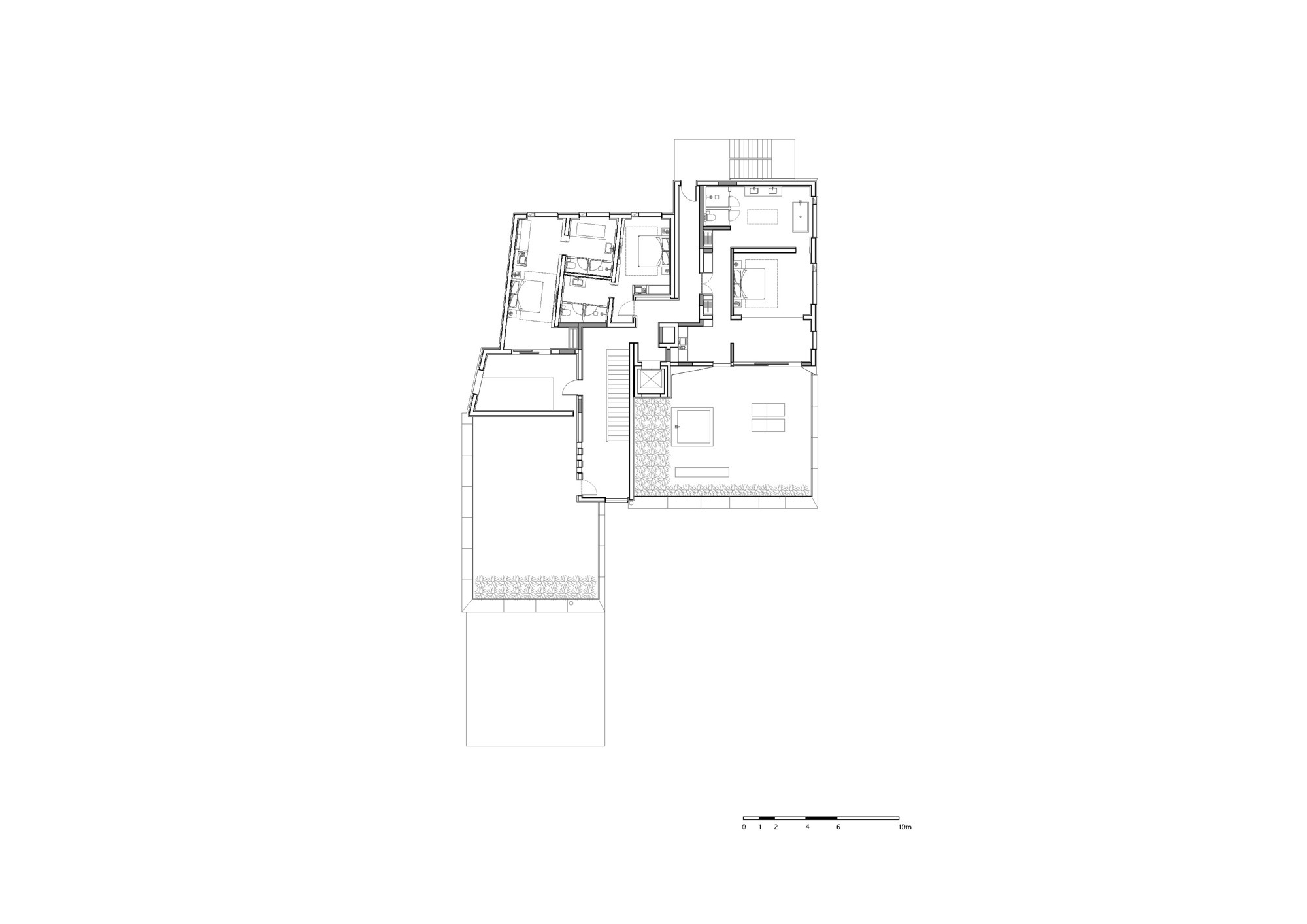
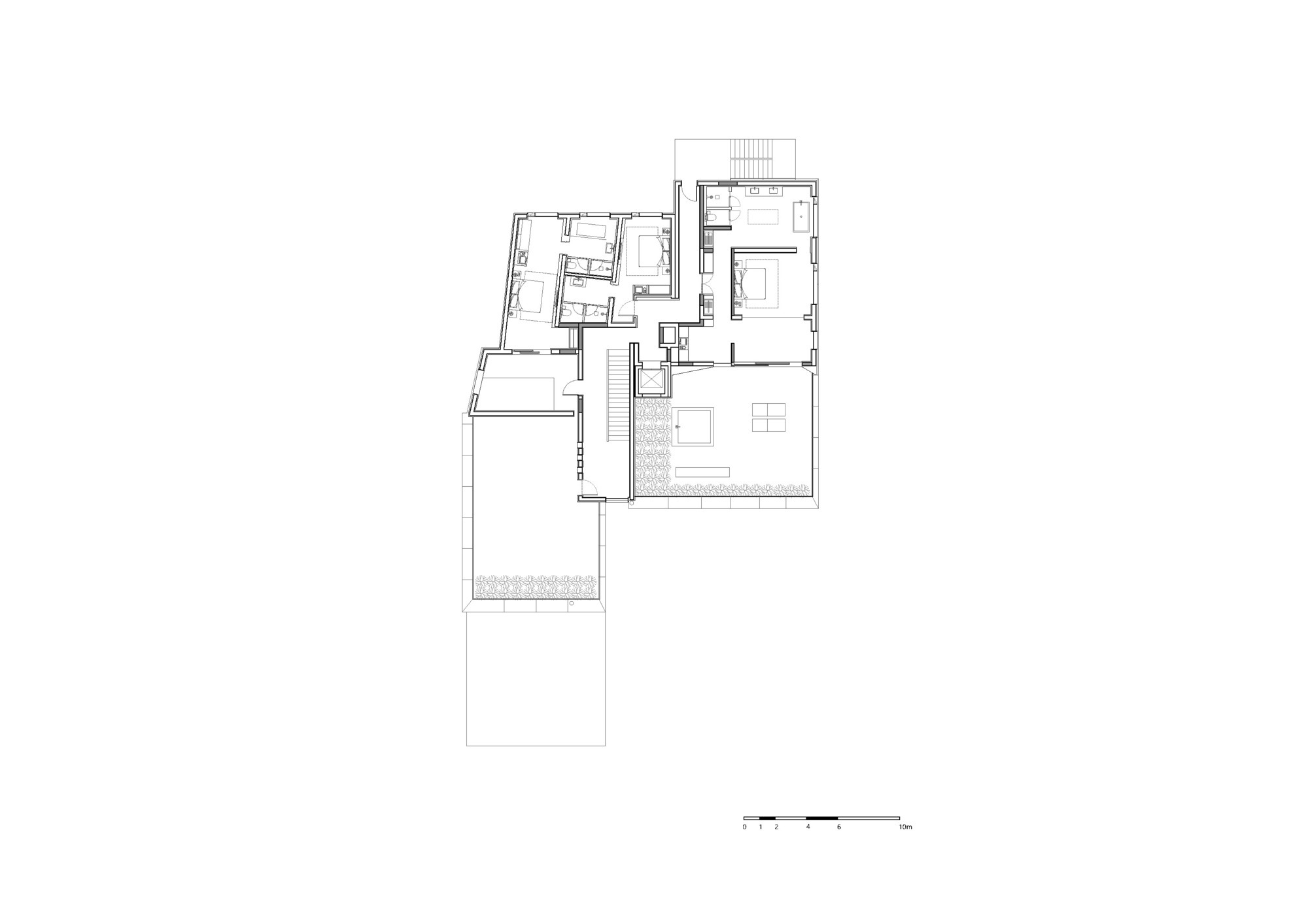
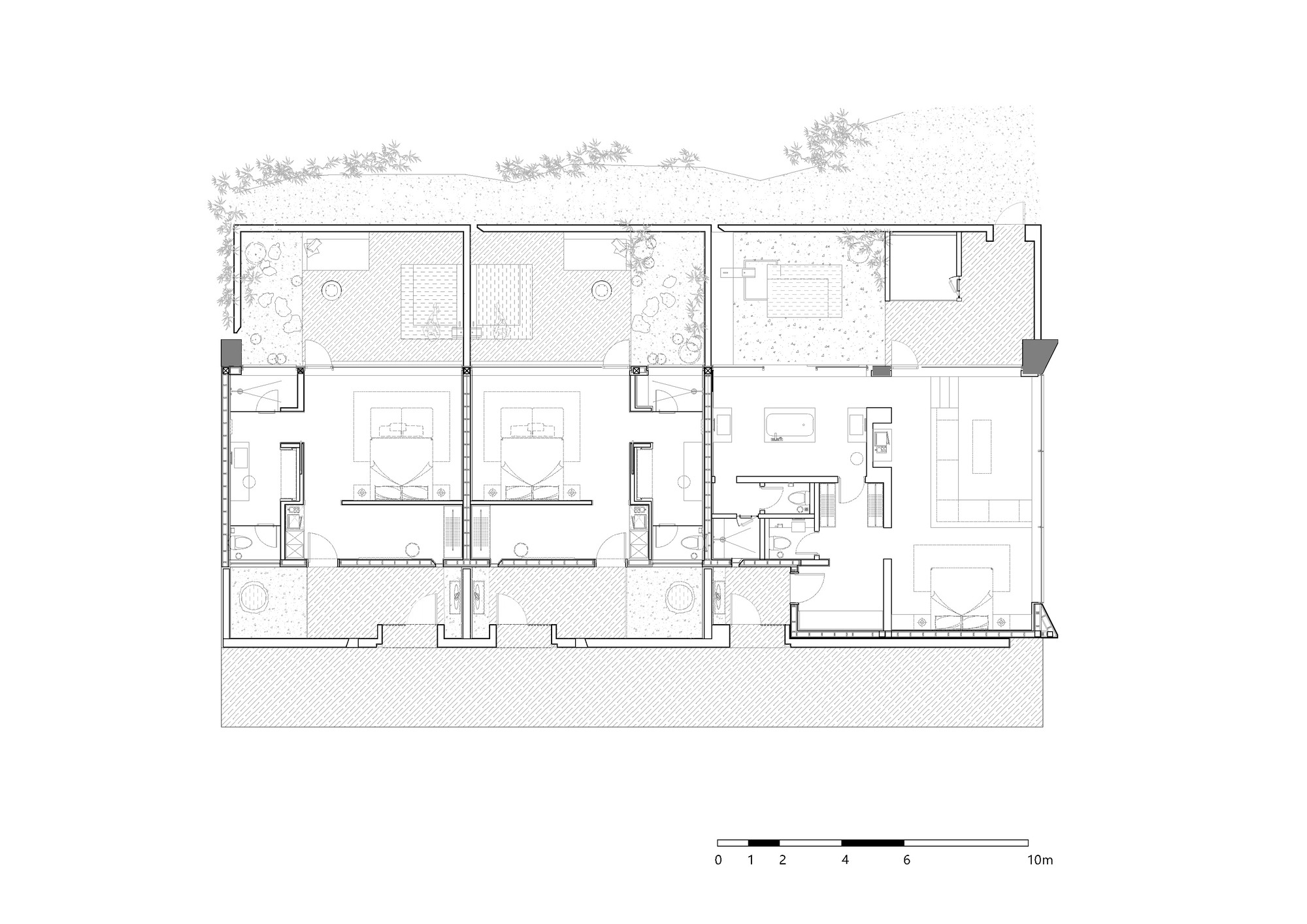
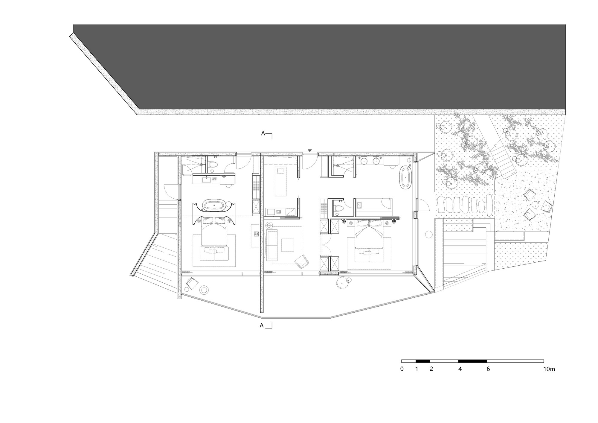
설계는 이 땅의 지형과 문화 유산을 깊이 읽어낸다. 건물들이 언덕을 따라 층층이 앉으며, 마을처럼 구성된다. 이는 산비탈에 자리 잡은 돌집을 떠올리게 한다. 전통적인 경사지붕과 깊은 처마가 현대적 감각으로 재해석되어, 과거와 현재를 이어준다. 자연을 먼저 고려하는 접근, 절제된 재료 구성, 전통과 현대의 시적 통합을 통해 ZOLAND·에메이 리조트는 단순한 호텔을 넘어 은신처로 구상된다. 이곳은 성찰과 느림, 그리고 사람과 땅 사이의 새로운 대화를 장려하는 환경이다.
입구 파사드를 정으로 쪼아낸 노출콘크리트가 이룬다. 거친 질감이 건축을 영속성 속에 단단히 뿌리내린다. 장인의 손길이 담긴 이 표면은 재료의 진정성과 시간을 초월한 느낌을 즉각 전달한다.
중정은 리조트의 중심이다. 이곳은 자연과 건축이 만나는 열린 공간이며, 웅장한 산을 배경으로 펼쳐진다. 중앙에는 수백 년 된 정난나무가 수경에 둘러싸여 서 있다. 계곡에서 가장 오래되고 높은 이 나무는 묵묵한 수호자가 되어, 경험을 역사와 연속성 속에 고정시킨다. 탁 트인 통창이 감싸는 이 공간은 내부와 외부의 경계를 지운다. 그 결과 숲과의 깊은 교감이 이루어지며, 주변 환경에 대한 고요함과 개방성을 촉진한다.
식당은 지역 장인 정신과 정제된 구조의 결합을 표현한다. 외부에서는 지붕이 전통적인 러산 회색 기와로 마감되고, 내부에서는 삼나무 구조틀이 천장을 가로지르며 따스함과 리듬감을 더한다. 에메이산에서 채취한 편암으로 쌓은 벽이 공간을 이 땅의 지질 위에 뿌리내린다.
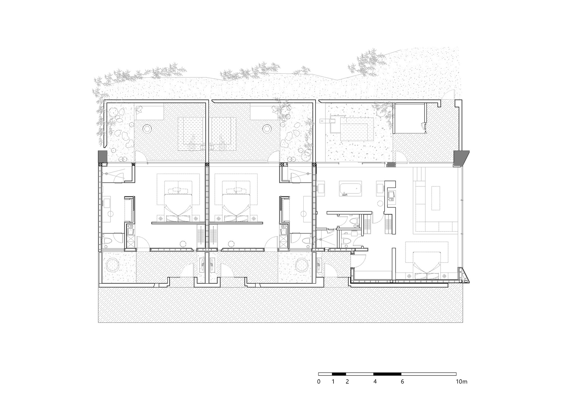
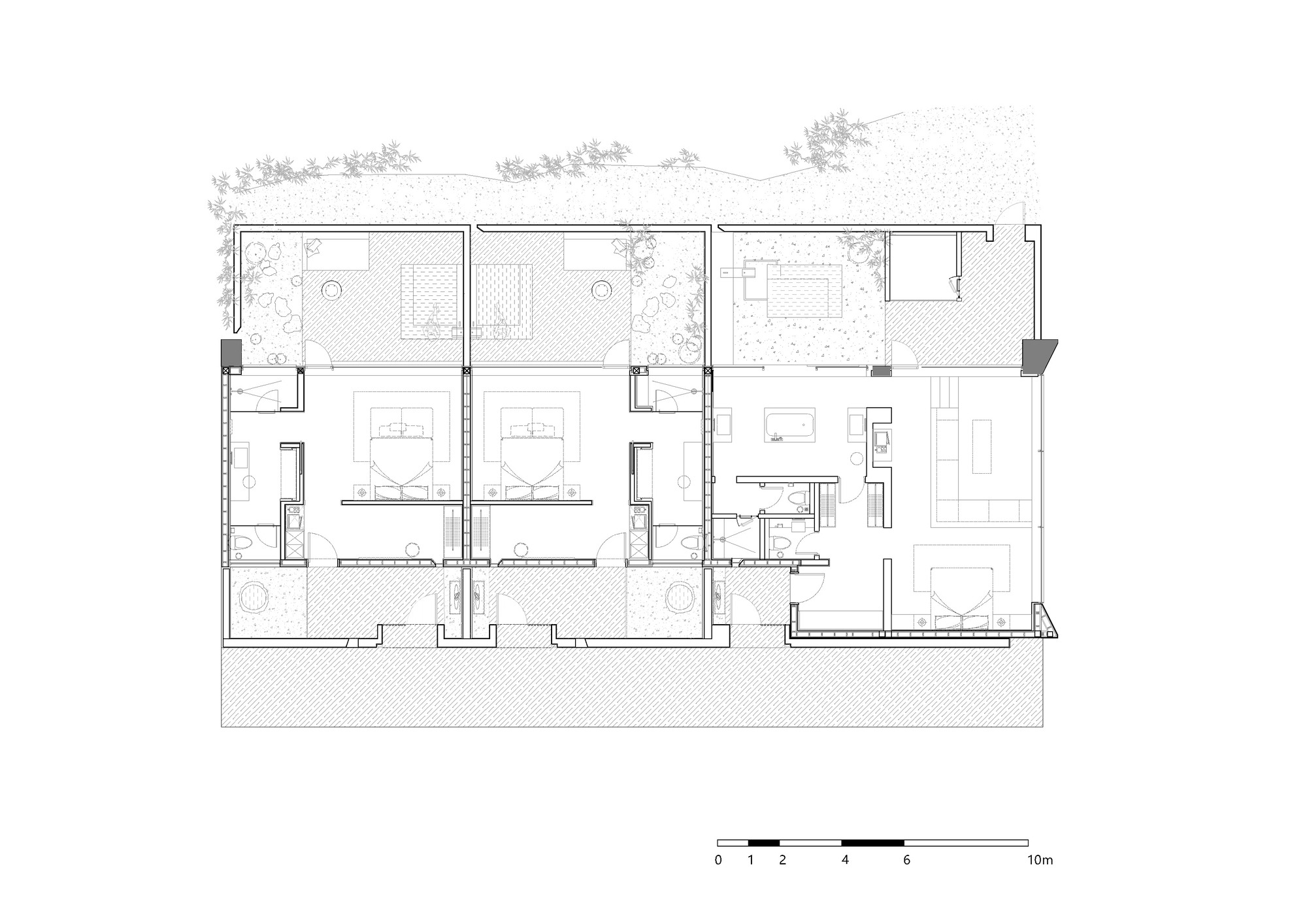
가장 높은 곳에는 물갈이돌로 마감된 구조물이 자리한다. 객실은 들어 올려진 녹색 경관 아래 은밀하게 통합된다. 외부에서는 건물이 거의 보이지 않고, 내부에서는 통창이 고요한 산의 풍경을 액자처럼 담아낸다.
욕실은 짙은 붉은색 로컬 석재를 사용하여, 땅과의 손끝으로 느껴지는, 시간을 초월한 연결을 만든다. 자연스러운 질감과 절제된 톤이 공간을 산속의 고요한 은신처로 변모시킨다. 목욕 경험은 야외로 확장되어, 석재 수공간이 산의 지형과 하나로 연결된다. 물갈이돌과 녹색 화강암으로 마감된 이곳은 건축과 조경 사이의 경계를 흐리며, 머무는 이를 자연의 품 안으로 감싼다.
ZOLAND·에메이 리조트에서 설계 철학을 느린 시간이라는 개념이 이끈다. 이는 분주함에서 벗어나는 의식적 선택이다. 자연을 우선하는 계획과 차분하고 절제된 건축 언어를 통해, 리조트는 머무는 이가 속도를 늦추고, 주변을 음미하며, 내면의 자아와 다시 연결되도록 초대한다.
Write by Claude & Jean Browwn







































ZOLAND·Emei Resort is a boutique mountain retreat in Emeishan, designed by Studio J. Bridgland(SJB). Rooted in the philosophy of architectural quietude, the project transforms a series of dilapidated structures into a sanctuary that dissolves seamlessly into the forested landscape—inviting guests to reconnect with nature and with themselves.
The architecture draws inspiration from the site's terrain and cultural heritage. Buildings are arranged in a staggered, village-like composition, recalling stone dwellings nestled into the hillside. Traditional pitched roofs and deep eaves are reinterpreted with a contemporary sensibility, bridging past and present. With its landscape-first approach, restrained material palette, and poetic integration of tradition and modernity, ZOLAND·Emei Resort is conceived not merely as a hotel but as a secluded haven—an environment that encourages reflection, slowness, and a renewed dialogue between people and the land.
At the entrance, the façade is formed in hand-chiseled textured concrete, its raw tactility grounding the architecture in permanence. This crafted surface establishes an immediate sense of material authenticity and timelessness.
The central courtyard serves as the social core of the resort, an outward-looking space where nature and architecture converge against the majestic mountain backdrop. At its centre stands an ancient Zhennan tree, encircled by a reflecting pool. As the valley's oldest and tallest tree, it becomes a silent guardian—anchoring the experience in history and continuity. Defined by expansive floor-to-ceiling glazing, the spiritual space dissolves the boundary between interior and exterior. The result is an immersive dialogue with the forest, fostering stillness and openness to the surrounding environment.
The dining hall expresses a union of local craftsmanship and refined structure. Externally, the roof is clad in traditional Leshan grey tiles; internally, a cedar framework spans the ceiling with warmth and rhythm. Walls of schist stone sourced from Emei Mountain root the space in its geological context. Perched at the highest point of the site, a washed stone-clad structure houses guest suites discreetly integrated beneath a lifted green landscape. From the exterior, the building is nearly invisible; from within, floor-to-ceiling windows frame tranquil mountain vistas.
Bathrooms feature deep red local stone, fostering a tactile and timeless connection to the land. The natural textures and muted tones transform the space into a serene retreat within the mountain. The bathing experience extends outdoors, where a stone pool merges with the mountain terrain. Finished in washed stone and green granite, it blurs the threshold between built form and landscape, enveloping guests in nature's embrace.
At ZOLAND·Emei Resort, the design philosophy is guided by the idea of slow time—a conscious retreat from distraction. Through its landscape-led planning and calm, understated architectural language, the resort invites guests to slow down, notice their surroundings, and reconnect with their inner selves.
from archdaily


