"건축은 생각으로 지어진 공간이다. 빛이 없다면 그것을 볼 수 없다."- 루이스 칸

![]() |
![]() |
![]() |
시간의 그릇, 시안의 기억을 담다 MUDA-Architects-Younch Hotel
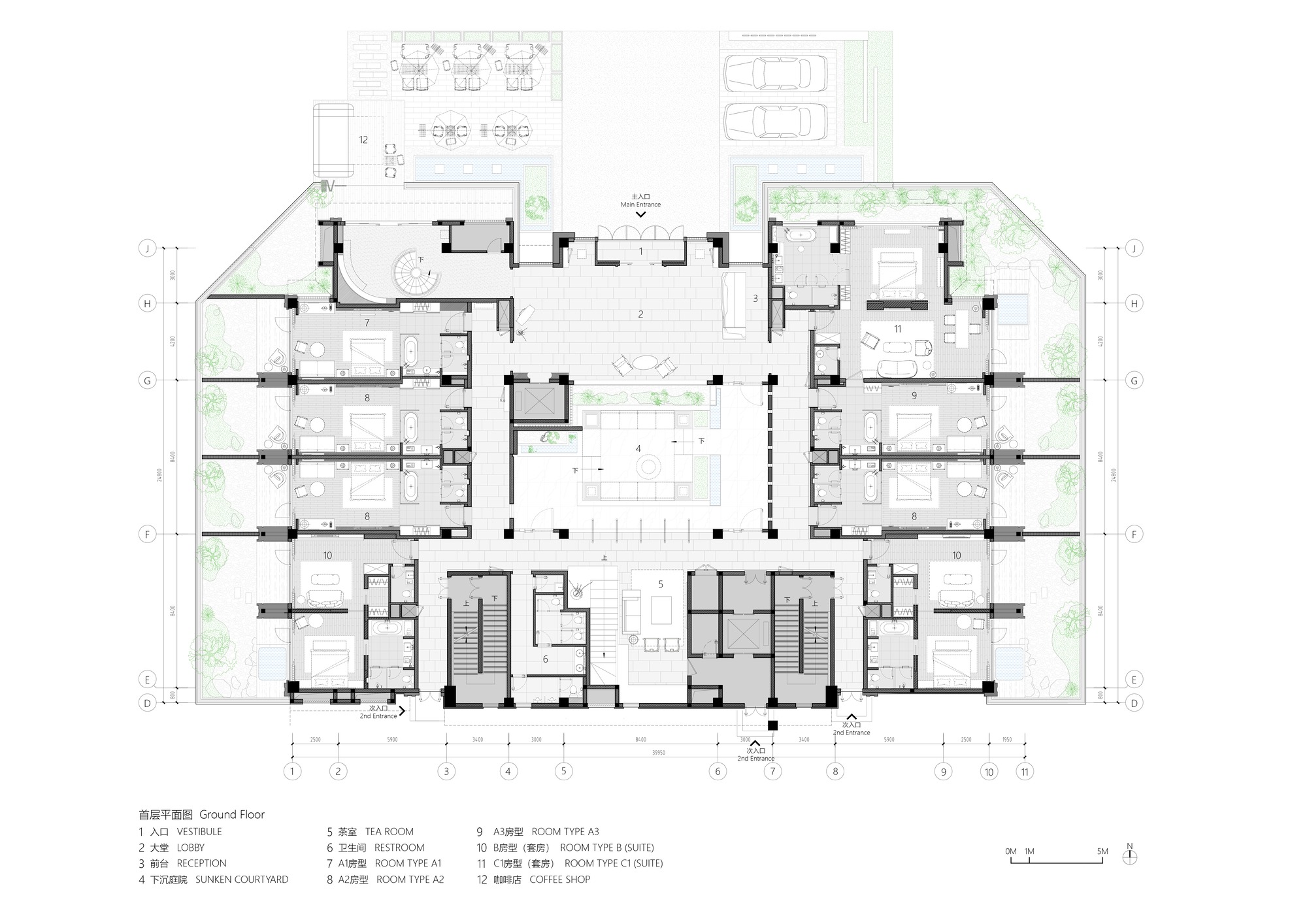
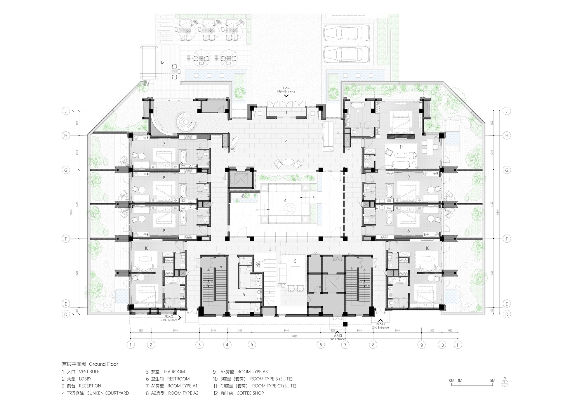
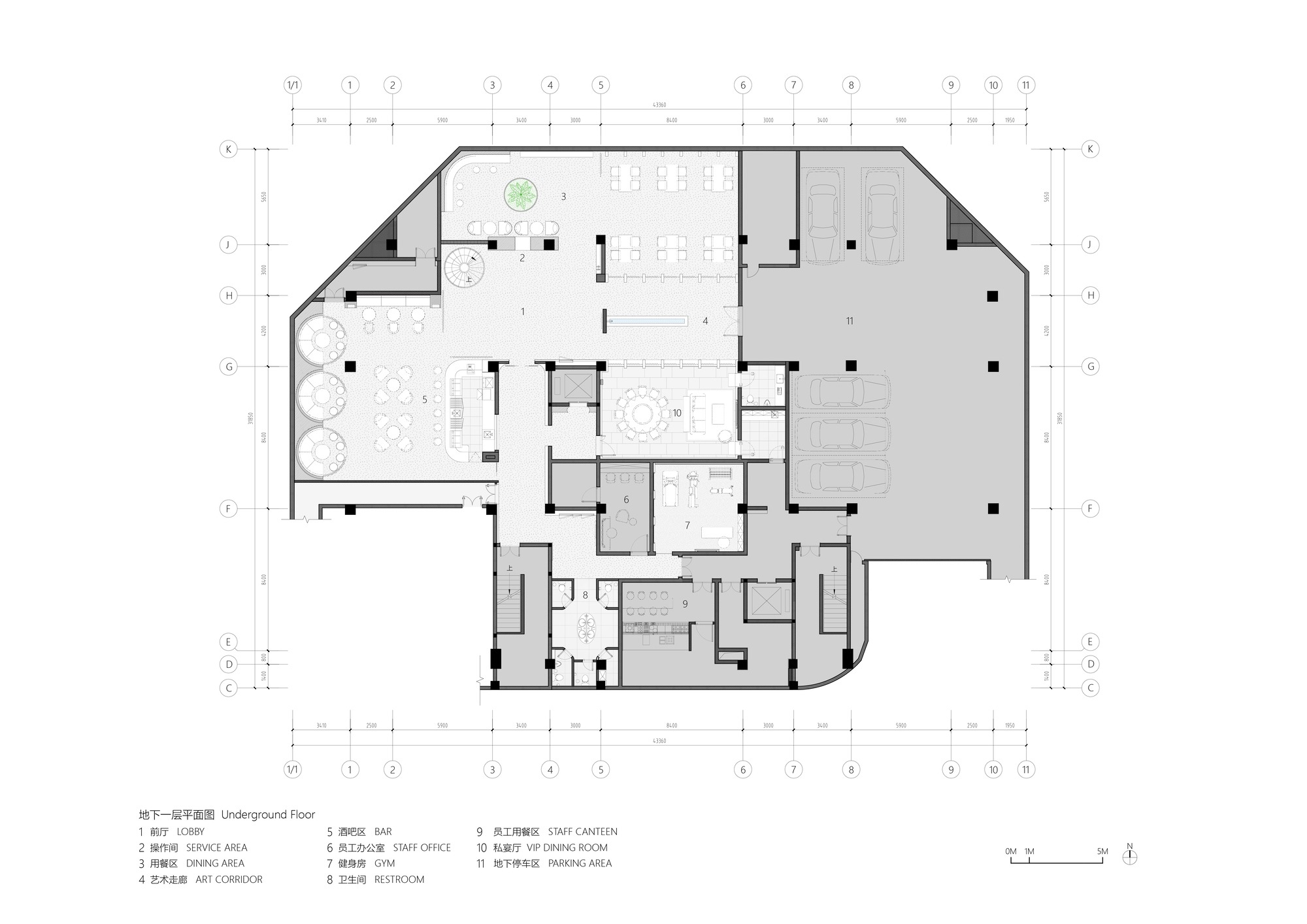
시안 황청방 역사지구, 명왕조 성벽의 동북쪽 모퉁이 근처에 영취호텔이 자리한다. MUDA-Architects가 설계한 이 16실 규모의 부티크 호텔은 고대 성문루와 인접한 땅에서 13왕조 수도의 문화 유산과 현대 여행자의 필요를 연결한다. 역사적 맥락과 도시 재생이 만나는 이 부지는 전통 중국 공간 논리와 현대 설계 언어가 교차하는 기회를 제공한다.
MUDA-Architects는 "시간의 그릇"이라는 개념으로 프로젝트를 이끌었다. 시안의 깊은 문화 유산과 현대 여행자의 감각을 잇는 공간 서사다. 호텔은 고요하고 몰입적인 환경으로 구상되었으며, 전통 중국 공간 논리가 현대 설계 언어와 만난다. 겹겹의 경험을 담는 공간으로, 재료와 빛과 그림자가 과거와 현재를 동시에 비춘다.
설계는 시간을 관통하는 몰입의 여정으로 펼쳐진다. 투숙객은 시안 거리의 활기찬 리듬에서 차분하고 질감이 살아있는 성소로 이동한다. 공용 공간은 문화 갤러리로 기획되었다. 손으로 빚은 도자기, 서예 작품, 계절마다 표정을 바꾸는 정원이 시간의 흐름을 담아낸다. 객실은 섬세한 재료와 자연광을 담아 포근함과 친밀함을 빚어낸다. 질감, 그림자, 비례를 통해 호텔은 시대의 경계를 녹이는 다감각 경험을 제공한다.
건축과 실내 설계는 절제되면서도 풍부한 전통 재료를 현대적 시선으로 재해석한다. 세월의 결을 품은 목재, 날것 그대로의 석재, 흑유를 입힌 도자기, 손염색 린넨이 전체를 관통하며 이 지역 장인정신의 촉각적 아름다움을 반영한다. 황토고원을 떠올리게 하는 판축 텍스처, 스치는 빛과 그림자를 포착하는 대나무 짜임 문양이 곳곳에 스며든다. 각각의 재료는 문화적 기억을 지니며, 호텔을 정의하는 고요하고 분위기 있는 환경에 기여한다.
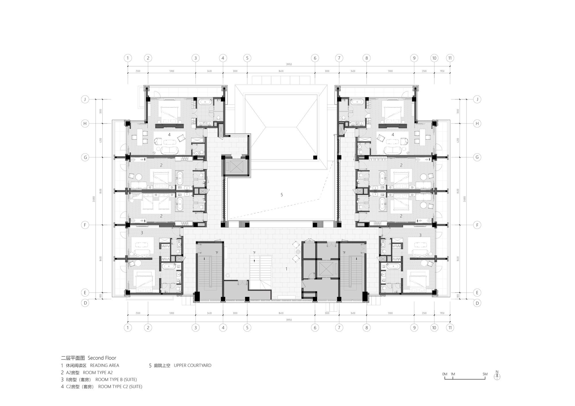
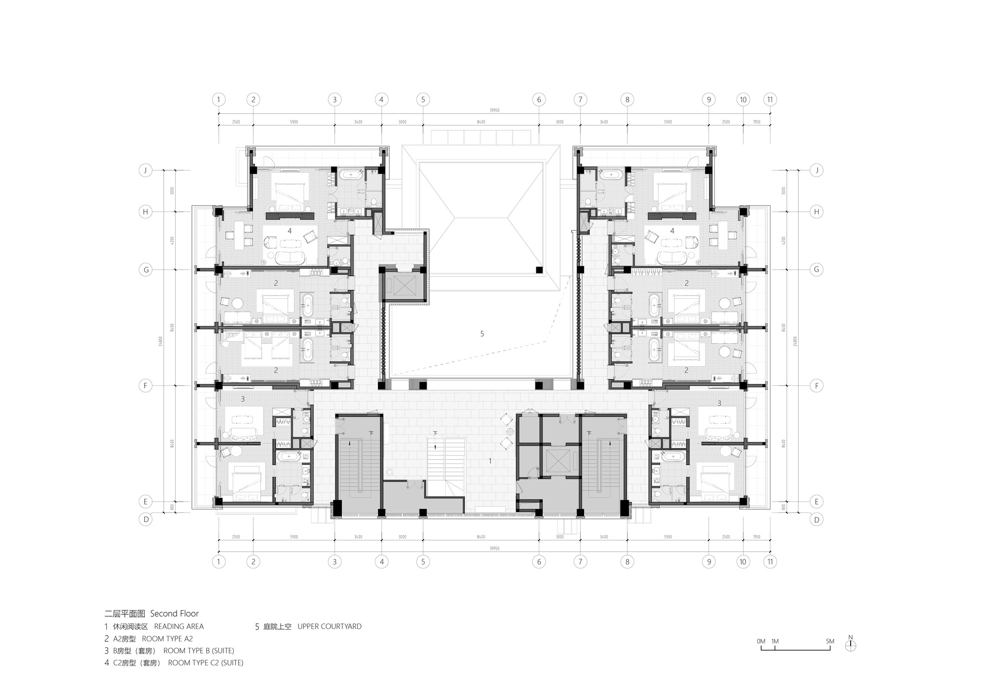
선큰 중정 정원과 다실은 실내와 실외의 경계를 지운다. 계절 식물과 잔잔한 수면의 연못이 살아 움직이는 고요의 그림을 만든다. 청동 나선 계단은 지하 다이닝과 웰니스 공간으로 이어지며, 조명은 자연광을 재현하여 숨겨진 숲속의 느낌을 불러온다. 객실은 40㎡에서 160㎡까지 다양하며, 전통 중국 지붕 형태를 참조한 완만한 천장 곡선과 부드러운 선, 장안 산수화에서 영감을 받은 작품을 담는다. 일부 스위트룸은 개인 욕조와 중정 조망을 갖춘다. 재료의 진정성과 서사의 명료함을 융합하며, 영취호텔은 단순한 숙박 장소 이상을 창조한다. 시안의 이어지는 이야기를 담은 살아 숨 쉬는 두루마리가 되는 것이다. 시간이 건축이 되고, 건축이 기억이 되는 곳.
Write by Claude & Jean Browwn
































Located in the historic Huangchengfang district of Xi'an, Younch Hotel is a 16-room boutique hotel designed by MUDA-Architects. The project is situated near the northeast corner of the city's ancient walls, in close proximity to a Ming Dynasty gate tower. The site is defined by the intersection of historical context and urban renewal, offering an opportunity to reinterpret the heritage of the thirteen-dynasty capital within a contemporary framework.
Guided by the concept of a "temporal vessel" a spatial narrative that connects Xi'an's deep cultural heritage with the needs of modern travelers. MUDA-Architects aimed to create a quiet, immersive environment where traditional Chinese spatial logic meets modern design language. The hotel is conceived as a layered experience, where material, light, and shadow reflect both the past and the present.
The design unfolds as an immersive journey through time where guests transition from the vibrant rhythm of Xi'an's streets into a calm, textural sanctuary. Public spaces are envisioned as cultural galleries, filled with handcrafted ceramics, calligraphy, and seasonal gardens that evoke the passage of time. Guestrooms embrace subtle materiality and natural light to create warmth and intimacy. Through texture, shadow, and proportion, the hotel offers a multi-sensory experience that dissolves the boundaries of eras.
The architecture and interior design employ a restrained yet rich palette of traditional materials reinterpreted through a contemporary lens. Aged wood, raw stone, black-glazed ceramics, and hand dyed linen are used throughout to reflect the tactile beauty of the region's craftsmanship. Rammed earth textures recall the Loess Plateau, while bamboo weaving patterns capture fleeting moments of light and shadow. Each material carries cultural memory while contributing to the calm, atmospheric environment that defines the hotel.
The sunken courtyard garden and tea room blur boundaries between indoor and outdoor, with seasonal plants and reflective pools shaping a living painting of tranquility. A bronze spiral staircase leads to a subterranean dining and wellness area, where lighting mimics daylight to evoke the feel of a hidden grove. Guestrooms range from 40 to 16㎡ and feature sloping ceiling lines referencing traditional Chinese roof forms, soft curves, and artwork inspired by Chang'an landscapes. Select suites offer private soaking pools and courtyard views. By merging material authenticity with narrative clarity, Younch Hotel creates more than a place to stay—it becomes a living scroll of Xi'an's evolving story, where time becomes architecture, and architecture becomes memory.
from archdaily


