"건축은 시간을 담는 그릇이다. 재료는 세월과 함께 익어가며, 그 과정에서 건축은 더욱 깊어진다." - 피터 줌터

세르지오 레벨로 - 아도리고 퀸타 와이너리 Atelier Sergio Rebelo-Adorigo Farm Winery
아도리고 퀸타 와이너리는 2024년 완공되었다. 포르투갈에서 가장 명성 높은 와인 산지, 도우로 계곡에 자리한다. 이곳은 2001년 유네스코 세계자연유산이자 문화유산으로 등재된 알투 도우로 비냐테이루 지역이다. 뛰어난 자연경관과 수천 년 인간의 흔적, 수백 년 이어진 와인 생산 전통이 어우러진다. 건축가는 이러한 배경에서 방향을 잡았다. 풍경을 존중하고 지역 문화를 이해하며, 혁신적이고 지속가능한 건축을 제시하는 것. 와이너리는 가족이 운영하는 와인 관광 개발의 일부이며, 아직 공사 중인 호텔과 함께 완성될 예정이다.
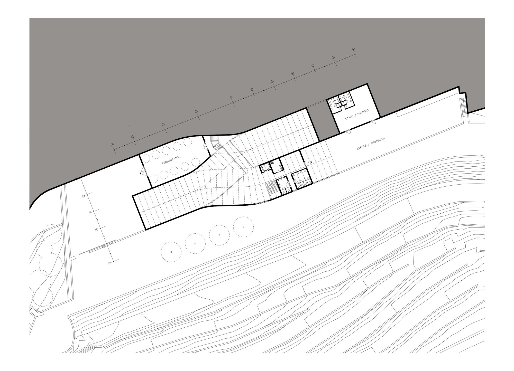
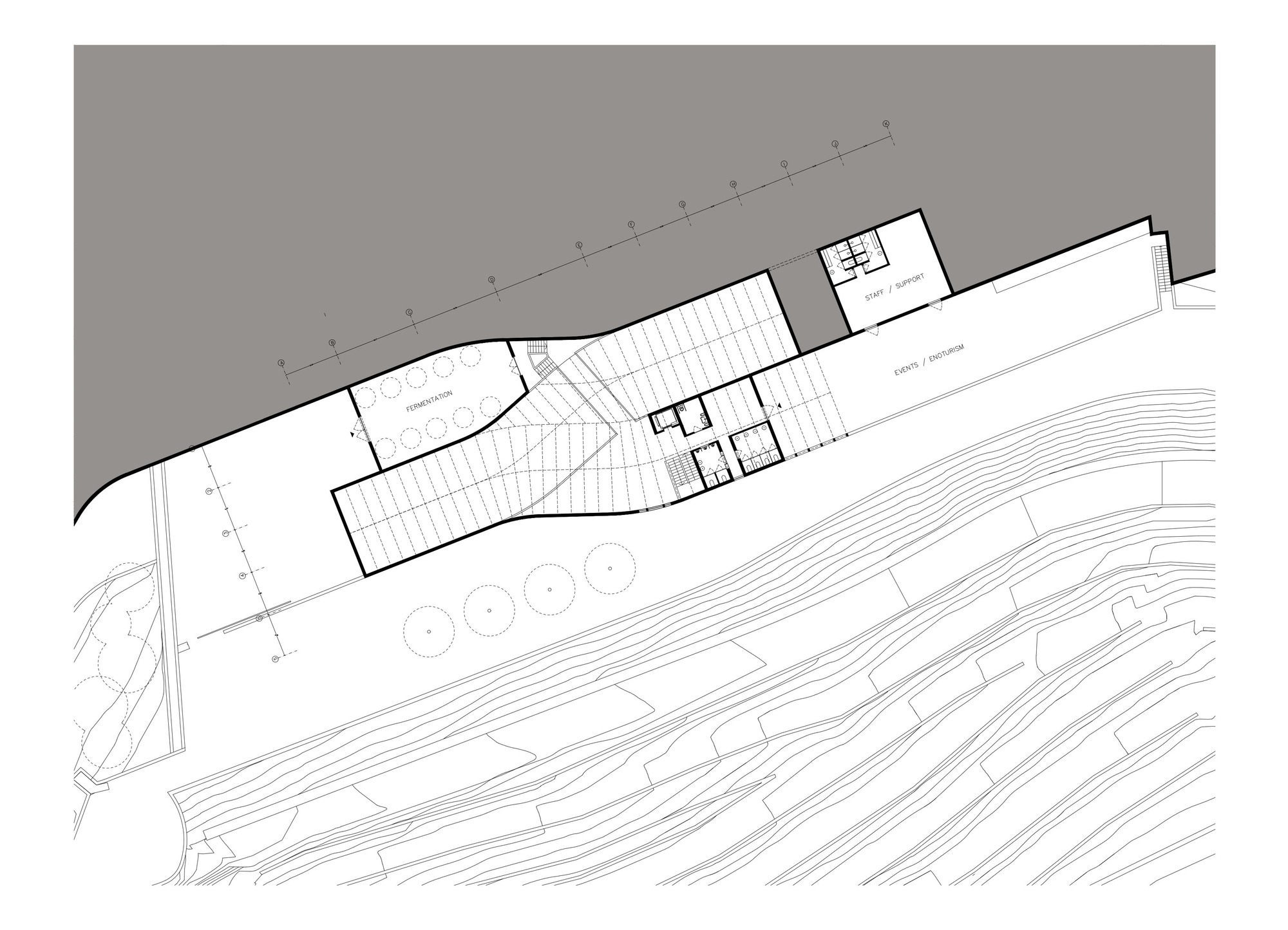
와이너리는 주변 포도밭의 곡선을 따라 흐른다. 건물의 수평적 형태도, 공간을 잇는 동선도 언덕과 계곡을 오가는 포도밭의 리듬을 담아낸다. 그러나 건축가는 풍경을 문자 그대로 모방하지 않았다. 일상적 동선과 소통, 업무 효율을 우선했다. 대신 건물은 계단식 대지를 따라 아래로 흐른다. 이는 내부 작동 원리를 그대로 반영한 것이다. 중력을 따라 진행되는 와인 생산 과정을 건축으로 구현했다. 중력식 양조 시스템은 도우로 강변 지역의 오랜 전통이다. 이 와이너리는 그 전통을 현대적 운영 방식으로 보여준다. 따라서 건물 형태는 여러 매스가 서로 엮이며 지형 경사를 따라 내려가는 구성이다. 내부 역시 여러 레벨로 나뉘어 그 경사를 반복한다.
와이너리 지붕은 이 지역 전통 박공지붕을 해석했다. 와이너리는 이 전통 구조를 계승하고 노출했다. 그러나 단순히 반복하지 않고 물 흐르듯 이어지는, 연속적이고 유기적인 조형 요소로 발전시켰다. 포도밭 경사면의 접선을 따라 곡선이 흐른다.
재료 선택 역시 이러한 철학을 따른다. 재료는 분홍빛 브라운, 녹색, 회색 등 자연의 색감을 담아낸다. 전통 기술과 공예를 존중하되, 현대 기술로 갱신했다. 외부 요소와 내부 콘크리트 옹벽에는 편암과 화강암을 사용했다. 건물 매스는 적층 목구조 프레임과 직교집성목재(CLT) 패널로 구성했다. 외장은 유리섬유강화콘크리트(GRC) 조립식 패널로 마감했다. 북부 지역에서 생산한 패널로, 와이너리에서 150킬로미터 이내 거리다. 지역 산업과 커뮤니티에 기여하고, 장거리 운송을 줄이는 지속가능한 선택이다. 조립식 건축 요소 덕분에 현장 공사 기간이 단축되었고, 부지 내 교통량도 감소했다. 건물이 땅에 닿지 않는 부분에는 목구조를 사용하여 콘크리트 사용을 최소화했다. 이로써 콘크리트 건물 대비 이산화탄소 배출량을 40퍼센트 줄였다.
기후의 영향에 노출된 이 모든 재료는 세월과 함께 은은한 색감의 변화와 질감을 얻는다. 와이너리가 자연환경에 더욱 통합되고, 시간이 지날수록 품질이 향상된다. 마치 오래 숙성하는 포트 와인처럼.
와이너리는 에너지 보존과 생산을 결합하여 최적화했다. 에너지 소비를 최소화하고 대기 중 온실가스 배출을 줄이는 방식을 선택했다. 건축이 가진 잠재력을 활용한 패시브 냉각 전략이다. 와인 숙성 공간의 내부 온도를 섭씨 14도에서 16도 사이로 유지하는 것이 목표였다. 외부 온도는 겨울 영하 5도에서 여름 45도까지 변화한다. 건물의 남쪽 입면을 대지와 접하게 배치하여 땅의 열 관성을 활용했다. 주 입면은 북쪽을 향해 여름에도 햇빛이 거의 들지 않는다. 이러한 전략으로 목표를 달성했다.
건물은 자연과의 관계를 만들어낸다. 내부에서는 풍경이 액자처럼 펼쳐진다. 외부에는 산책로와 아늑한 구석, 테라스가 마련되어 사색과 산책, 교류를 이끈다.
Write by Claude & Jean Browwn




























The winery at Quinta de Adorigo was completed in 2024 and is part of a family wine tourism development that also includes a hotel, which is still under construction. This quinta is located in the Alto Douro Vinhateiro, Portugal's most prestigious wine growing area, listed by UNESCO as a World Natural and Cultural Heritage Site since 2001. The exceptional beauty of the natural surroundings, the millennia-old human occupations and the centuries-old tradition of wine production motivated an architectural project that honors the landscape and local culture and presents innovative construction strategies and effective sustainability.
The horizontal curvilinear shapes of the winery and the circuits between areas mirror the zigzags of the vineyards in the surrounding hills and valleys. However, we avoided literally quoting the landscape, compromising daily routines, circulation and communication. On the contrary, the downward movement of the building on the terraces of the land reflects its internal mechanics, where the winemaking process takes place by gravity, a common procedure on the banks of the River Douro. The gravitational wine production system, so characteristic of the region, is demonstrated here with its current operational capabilities. The configuration of the building is therefore a set of interwoven naves that follow the existing topographic slope, replicated on the various interior levels.
The geometry of the winery's roof interprets the vernacular gable roof structured in wood. This structure has been taken over and exposed in this winery and has become a sinuous, continuous and organic sculptural element that flows through the tangential curves of the vineyard slopes.
The winery's materials replicate the natural palette of pinkish browns, greens and greys, underlining traditional skills and crafts, but updated by modern technologies. Schist and granite were used in the exterior elements and in the interior concrete retaining walls. The structure of the building's naves is made of laminated wood frames and CLT (Cross Laminated Timber) panels, covered with prefabricated GRC (Glass Fiber Reinforced Concrete) cladding panels, produced in the north, less than 150 km from the winery. This benefits the northern industry and community and reflects the sustainable practice of cutting down on the long-distance transportation of materials. These prefabricated building elements also saved on-site construction and reduced traffic on the property. Wooden structures have been used at the points where the building does not touch the ground, to also minimize the use of concrete, which has reduced CO2 emissions into the atmosphere by 40%, compared to what a building completely made of concrete would emit.
Exposed to the effects of the climate, all these materials take on beautiful shades of tone and texture, that better integrate the winery into its natural surroundings and allows the building to improve its quality over time, just like a good Port wine. This building encourages an involvement with nature by framing views from inside the winery and, outside, there are trails, nooks and patios that invite introspection, contemplation, meditation, walking and socializing.
The winery's energy optimization implemented and combined preservation and energy production solutions, selecting the lowest energy consumption and reducing greenhouse gas emissions into the atmosphere. The energy solutions explore the potential of architecture to take advantage of passive strategies to preserve the interior space of the wine ageing area with a temperature between 14 and 16 degrees, when the outside temperature range between -5º and 45º Celsius degrees from winter to summer. We achieved our goal placing the building with the southern envelope in contact with the earth, taking advantage of its inertia, and turning the main façade to the north where there is little sunlight, even in summer.
from archdaily
'Commerce' 카테고리의 다른 글
| * 일상과 공간을 잇는 목조 구축의 새로운 가능성 [ ure LLC ] KItoNOKO (0) | 2026.02.20 |
|---|---|
| * 대지와 구축성의 대화, 그리고 중세적 기억의 변주 [ Laboratory of Architecture #3 ] Vachnadziani Winery (0) | 2026.01.27 |
| * 만드는 그대로 [ Studio Knot ] MMK Cafe (0) | 2026.01.07 |
| * 네오고딕 약국, 스페셜티 커피숍으로 다시 깨어나다 [ practices EktraArhitectura and Fain Design ] Laboratorium (0) | 2025.12.29 |
| * 투명한 구조, 겹쳐진 시간 차밭 위에 펼쳐진 [ Hill Architecture ] new 33 coffee (0) | 2025.12.19 |