건축은 형태를 만드는 것이 아니라, 사람과 사람, 사람과 장소를 연결하는 것이다. - 구마 겐고 (Kengo Kuma)

![]() |
![]() |
![]() |
(A New Possibility of Timber Construction Connecting Daily Life and Space)
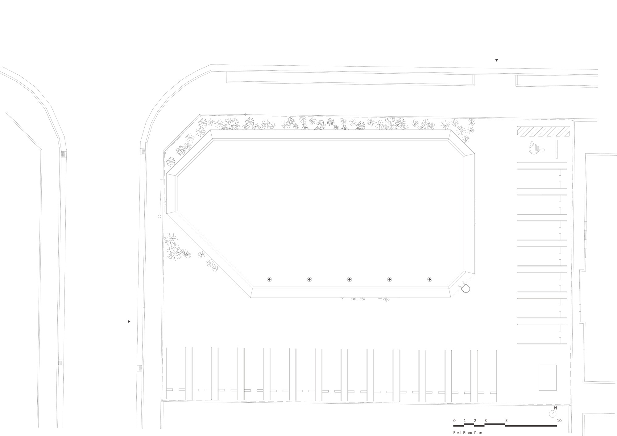
교외 상업 지구에 스며든 인간 중심의 공간
• 기토노코는 교외 상업 지구에 자리 잡은 지역 밀착형 복합 시설로, 건축이 사람과 업무, 그리고 일상을 조용히 이어주는 매개체가 되도록 설계했습니다.
• 대규모 상업 시설과 도로변 개발이 주를 이루는 전형적인 자동차 중심의 환경 속에서, 이 프로젝트는 사람의 눈높이에 맞춘 개방적이고 다가가기 쉬운 환경을 제시합니다.
• 폐쇄적인 상업 시설로 기능하기보다는 공간의 개방성과 연속성을 통해 지역 주민과 방문객, 그리고 직원이 자연스럽게 마주치도록 유도합니다.
• 이 건축물은 일본의 목조 주택 문화에 깊은 뿌리를 둔 건설 회사인 닛코 홈의 정체성을 반영하며, 주거 건축의 장인 정신을 중규모 공공건축물로 훌륭하게 옮겨 놓았습니다.
예산 제약이 만들어낸 긍정적인 설계 전환
• 초기 기획 단계에서 이 프로젝트는 주차 공간을 최대한 확보하기 위해 1층에 필로티를 두는 철근 콘크리트 및 철골 혼합 구조로 계획했습니다.
• 하지만 예산을 초과하면서 어쩔 수 없이 설계를 전면 수정해야 했습니다.
• 이러한 제약은 오히려 생산적인 전환점이 되었습니다.
• 건축 시스템을 전통적인 목조 기둥-보 구조로 바꾸면서, 건축주의 자체 시공 팀이 공사의 상당 부분을 직접 맡을 수 있었습니다.
• 닛코 홈의 핵심 전문성이 목조 건축에 있었기 때문에, 이 같은 변화는 건축적 의도와 경제성, 그리고 지역의 시공 기술 사이에 강력한 시너지를 만들어냈습니다.
표준 규격 목재로 구현한 탁 트인 공간감
• 기토노코는 넓은 공간을 덮기 위해 대형 공학 목재를 사용하는 대신, 주택 건축에 널리 쓰이는 일상적인 표준 규격의 소경목을 의도적으로 선택했습니다.
• 작고 친숙한 나무 부재들을 활용해 넉넉한 중규모의 공간감을 만들어내는 것이 이번 프로젝트의 가장 큰 과제였습니다.
• 세심한 구조적 조율과 치수 계산을 통해, 이 건물은 전통적인 목재 골조의 구축 방식을 유지하면서도 탁 트인 개방성을 확보했습니다.
• 이러한 접근 방식은 일상적인 시공 기술이 어떻게 더 크고 유연한 공간 구성을 뒷받침할 수 있는지 명확하게 보여줍니다.
마감이 된 뼈대, 솔직한 구축의 미학
• 디자인의 핵심 원칙 중 하나는 구조와 마감을 하나로 통합하는 것이었습니다.
• 노출된 목재 골조는 그 자체로 내부 마감재가 되어, 방문객이 기둥과 보, 그리고 결합부를 보며 건물의 힘이 어떻게 흘러가는지 시각적으로 느낄 수 있게 합니다.
• 이는 뼈대를 그대로 드러내어 공간에 깊이감을 더하는 한국 전통 한옥의 연등천장이 보여주는 솔직한 미학과도 맥을 같이 합니다.
• 기토노코는 뼈대를 마감재 뒤에 숨기지 않고 훌륭한 건축적 표현으로 승화시켰습니다.
• 이를 위해 부재의 크기와 간격, 공간의 리듬을 섬세하게 조율하여 구조가 제 기능을 다하면서도 아름다운 분위기를 낼 수 있도록 건축팀과 구조팀이 긴밀하게 협력했습니다.
빛이 스며드는 연속적인 흐름
• 공간의 구성은 닫힌 방들의 집합이 아니라 끊임없이 이어지는 흐름으로 이루어집니다.
• 이동하는 길과 공용 공간, 그리고 각 기능을 담당하는 영역들이 서로 유기적으로 이어지며 사람들의 자유로운 이동과 자연스러운 소통을 이끌어냅니다.
• 촘촘하게 짜인 목재 프레임 사이로 스며드는 빛은 상업 건축물 특유의 차가움 대신, 주거 공간에서 흔히 느낄 수 있는 아늑함과 따뜻함을 공간 전체에 채워줍니다.
일상의 풍경을 바꾸는 목조 건축의 탐구
• 전통적인 목조 기둥-보 시스템을 주택이 아닌 상업 시설의 규모로 적용하면서, 기토노코는 평범한 교외 환경에서 목조 건축이 나아갈 새로운 가능성을 탐구합니다.
• 이 프로젝트는 비용과 시공의 현실적인 조건, 그리고 지역의 정체성이 어떻게 디자인을 발전시키는 훌륭한 원동력이 될 수 있는지 증명합니다.
• 결과적으로 기술적인 합리성을 갖추면서도, 사람과 사람 사이의 사회적 유대감을 따뜻하게 이끌어내는 완성도 높은 건축물을 완성했습니다.
Write by Gemini & Jean Browwn























KITONOKO is a community oriented complex located in a suburban commercial district, conceived as a place where architecture quietly connects people, work, and everyday life. Surrounded by large-scale retail and roadside developments, the project seeks to introduce a more human-scaled, open, and approachable environment within a typically car-oriented context. Rather than operating as a closed commercial facility, the building encourages local residents, visitors, and staff to naturally intersect through spatial openness and continuity.
The architecture reflects the identity of Nikko Home, a construction company deeply rooted in Japanese wooden housing culture, translating residential craftsmanship into a mid-scale public building.
During the initial phase, the project was planned as a mixed reinforced concrete and steel structure with a pilotis ground floor to maximize parking capacity. However, the cost exceeded the project's limits, forcing a fundamental redesign. This constraint became a productive turning point. The scheme shifted to a conventional Japanese post-and-beam timber system, enabling construction to be carried out largely by the client's own team. Since Nikko Home's core expertise lies in wooden construction, the change created strong synergy between architectural intent, economic feasibility, and local craftsmanship.
Instead of using large engineered timber members to span wide spaces, KITONOKO intentionally employs standard-sized timber typically used in residential construction. The challenge was to create a generous, mid scale volume using small-diameter, familiar materials. Through careful structural coordination and dimensional control, the building achieves spatial openness while remaining within the logic of conventional timber framing. This approach demonstrates how everyday construction techniques can be expanded to support larger and more flexible spatial configurations.
A key design principle was to merge structure and finish. The wooden frame is left exposed and becomes the interior surface itself, allowing visitors to read the building through its columns, beams, and joints. Rather than hiding structural elements behind finishes, KITONOKO treats them as architectural expression. This required close collaboration between architectural and structural design, balancing spans, member sizes, and spatial rhythm so that the structure provides both performance and atmosphere.
Spatially, the project is organized as a continuous sequence rather than a collection of isolated rooms. Circulation, shared spaces, and functional areas flow into one another, encouraging informal movement and interaction. Light filters through the timber framework, reinforcing a sense of human scale and warmth more commonly associated with housing than with commercial architecture.
By using a conventional wooden post-and beam system at an unconventional scale, KITONOKO explores new possibilities for timber architecture in everyday suburban contexts. The project shows how cost, construction logic, and local identity can become generators of design, producing a building that is both technically rational and socially engaging.
from archdaily
'Commerce' 카테고리의 다른 글
| * 미술품 수장고로 재해석된 뷰티 리테일 [ AIM Architecture ] HARMAY Beijing Hopson One Flagship (0) | 2026.03.30 |
|---|---|
| * 공학적 정밀함과 조각적 명료성의 조우 [ YSPractice ] THE PORT (1) | 2026.03.16 |
| * 대지와 구축성의 대화, 그리고 중세적 기억의 변주 [ Laboratory of Architecture #3 ] Vachnadziani Winery (0) | 2026.01.27 |
| * 세르지오 레벨로 - 아도리고 퀸타 와이너리 [ Atelier Sergio Rebelo ] Adorigo Farm Winery (1) | 2026.01.12 |
| * 만드는 그대로 [ Studio Knot ] MMK Cafe (0) | 2026.01.07 |


