"건축은 대지에 쓰는 한 편의 시와 같으며, 그곳에 존재하는 자연과 완벽하게 하나가 되어야 한다." - 프랭크 로이드 라이트

![]() |
![]() |
![]() |
역사적 맥락과 수변 공간의 부활
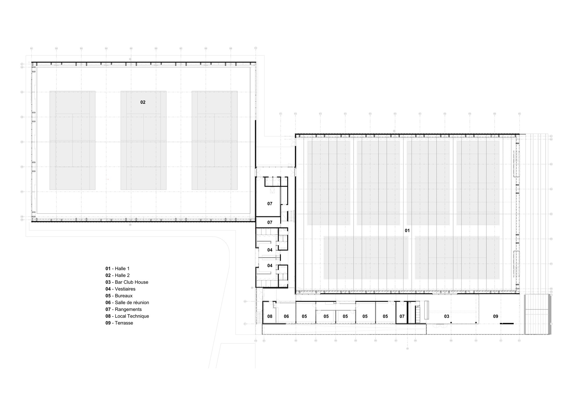
이 프로젝트는 비시 공원의 유서 깊은 부지를 마주한다. 2014년 알리에 호수 우안을 시작으로 2019년 좌안까지 이어진 야심 찬 수변 공간 복원 사업의 연장선에 놓여 있다. 두 차례의 복원 작업이 마무리된 지금, 스포르팅 리노베이션 프로젝트는 이 수변 공간에 새로운 활력을 불어넣는다. 설계팀은 클럽의 새로운 정체성을 확립하고자 했다. 이를 위해 유네스코 세계문화유산인 강변의 풍경, 그리고 도시 건축물이 품은 파사드의 역사성에 깊이 몰두했다. 그 결과, 건축물은 역사적 대지의 맥락을 거스르지 않고 주변 풍경을 조용히 끌어안는다.
고전적 축선과 현대적 합리성의 조화
대지는 지극히 고전적인 축선 배치를 띠고 있으며, 이는 전체 프로젝트를 이끄는 든든한 기준점이 되었다. 레스토랑과 실내 코트 등 여러 건축 매스가 서로 마주 보도록 배치했고, 그 사이로 나무가 늘어선 산책로를 조성했다. 여기에 미묘한 형태적 변주를 더했다. 기존의 질서를 존중하면서도 현대적인 감각을 영리하게 불어넣은 것이다. 알리에 강을 향해 열린 클럽하우스와 테라스에서는 실내 코트의 역동적인 모습과 강변의 경이로운 풍경을 동시에 조망할 수 있다. 설계 과정에서 가장 치열하게 고민한 부분은 공간의 압축성이다. 동선과 배치의 효율성을 한껏 끌어올리면서도, 사용자가 경험하는 내부 공간은 결코 좁게 느껴지지 않도록 여유로운 볼륨을 확보했다.
자연에 스며드는 매개 공간
건축물이 알리에 강변에서 시각적으로 홀로 도드라지지 않도록, 건물 전체를 수변의 기존 식생 속에 살포시 내려놓았다. 덕분에 기존 실내 코트 건물은 전체 마스터플랜에 유기적으로 녹아들며, 시설 전체의 이미지를 성공적으로 바꿔놓는다. 두 개의 실내 테니스 코트 건물 사이에 자리 잡은 클럽하우스와 부대시설은 매개 공간 역할을 톡톡히 해낸다. 테니스와 파델 테니스라는 두 스포츠 활동을 물리적으로, 또 시각적으로 매끄럽게 이어준다. 정원과 빛, 그리고 하늘은 그 자체로 이 프로젝트를 완성하는 훌륭한 건축 소재로 기능한다.
일렁이는 생동감, 풍경이 된 파사드
실내 코트 건물의 거대한 매스는 다면체 패널로 덮여 있다. 이 입면은 마치 나뭇잎들이 겹겹이 모인 듯 수많은 조각으로 나뉘어, 빛을 받을 때마다 일렁이는 생동감을 자아낸다. 주변의 나무와 물결, 하늘을 거울처럼 투영하며 은은하게 빛나는 이 건축물은 알리에 강변의 장엄한 풍경 속에 견고하면서도 아름답게 닻을 내리고 있다.
Write by Gemini & Jean Browwn
















Comte & Vollenweider-Sporting Vichy
The project faces the historic site of the Vichy parks. It is part of an ambitious project to reclaim the water body, which began with the renovation of the right bank of Lake Allier in 2014 and the left bank in 2019. Now that these two renovations are complete, we have the opportunity to contribute to the vitality of these banks through the Sporting renovation project.
To build the club's new identity, we immersed ourselves in the city, its remarkable buildings and facades, and the development of the riverbanks, which are listed as a UNESCO World Heritage Site.
The site has a very "classic" composition, which was the project baseline. The buildings—restaurants and halls face each other, and between them we have organized tree-lined walkways. We then created a few shifts and offsets to build on what already existed and enhance it with a contemporary design. The clubhouse facilities and terraces face the Allier River, offering views of the indoor courts and this extraordinary landscape.
Keen to respond as accurately as possible to the program's expectations, we focused our project on achieving maximum compactness for optimal rationality. We sought to achieve the most efficient overall layout, while ensuring generous spaces for users.
We have limited the visual impact from the banks of the Allier, with the building blending into the existing vegetation located on the riverbank. It promotes the integration of the existing hall into an overall design and helps to change its image. The clubhouse and associated facilities (changing rooms, toilets, etc.) are located at the interface between the two indoor tennis court buildings, which allows these buildings to have a significant impact on tennis and padel tennis. The "garden," the light, and the sky become components of the architectural project.
Composed of facets that create a vibration, the volumes of the halls break down into a multitude of objects resembling tree leaves. Vibrantly reflecting the trees, water, and sky, the project is anchored in the landscape of the banks of the Allier.
from archdaily


