재료는 자신이 무엇이 되고 싶은지 알고 있다. - 루이스 칸 (Louis Kahn)

![]() |
![]() |
![]() |
다큐멘터리의 진정성을 짓다 Tanghua Architects - Xichang Jianchuan Film Museum
기억과 풍경을 연결하는 기념비
중국 선전에 기반을 둔 탕화 아키텍츠가 시창의 신규 고속철도 지구에 젠촨 영화 박물관을 선보였습니다. 이 건물은 단번에 시선을 사로잡는 독보적인 존재감을 자랑합니다. 광대한 박물관 부지 한가운데 자리한 이 건물은 기념비적인 콘크리트 매스와 지그재그로 꺾인 지붕을 뽐내며 방문객을 맞이합니다. 훗날 이곳 전체에는 영화사의 다양한 측면을 탐구하는 열일곱 개의 기관이 들어설 예정입니다. 이 박물관은 그 마스터플랜의 중심축을 담당하며, 영화의 역사와 기술을 아우르는 거대한 문화 복합 단지로서 중추적인 역할을 수행하게 됩니다.
다큐멘터리 영화에서 길을 찾다
탕화 아키텍츠는 다큐멘터리 영화가 가진 고유한 진정성에 주목했습니다. 삶의 경험과 관찰을 다루는 다큐멘터리의 특성을 건축으로 어떻게 빚어낼 수 있을까요. 설계팀은 재료의 물성을 가감 없이 드러내는 정직함, 그리고 누구나 편하게 접근할 수 있는 공간의 개방성에서 그 해답을 찾았습니다. 그 결과 건물은 복잡한 장식 없이 아주 직관적인 구조를 띠게 되었습니다. 노출 콘크리트의 순수한 표면은 시창의 맑은 자연 기후를 너그럽게 수용하며 주변 환경과 깊이 교감합니다.
하늘을 담아내는 지붕과 빛의 유희
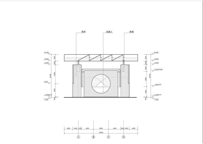
박물관의 형태를 결정짓는 가장 핵심적인 요소는 단연 분절된 지붕 구조입니다. 탕화 아키텍츠는 콘크리트 면을 여러 겹으로 접어 올려 이 독특한 지붕을 완성했습니다. 일정한 리듬으로 바깥을 향해 뻗어 나가는 지붕은 아래쪽 테라스와 갤러리 위로 깊고 넓은 그림자를 드리웁니다. 멀리서 바라보면 하늘을 배경으로 조각 같은 실루엣이 펼쳐집니다. 하지만 가까이 다가가면 내부 전체로 뻗어 나가는 정교한 구조적 그리드가 시야를 가득 채웁니다.
머리 위로 펼쳐진 이 거대한 구조물은 공간 전체에 웅장한 스케일감을 불어넣습니다. 개방된 홀 위에서 굵직한 보들이 서로 교차하며 정방형의 우물천장 패턴을 만들어냅니다. 이 패턴은 노출 콘크리트 표면 위로 빛을 정교하게 이끕니다. 하루 동안 태양이 이동함에 따라 변화하는 빛의 조각들이 바닥과 벽을 부드럽게 가로지릅니다. 마치 한 편의 영화처럼 극적이고 시적인 장면이 연출되는 순간입니다.
닫힌 공간에서 열린 풍경으로
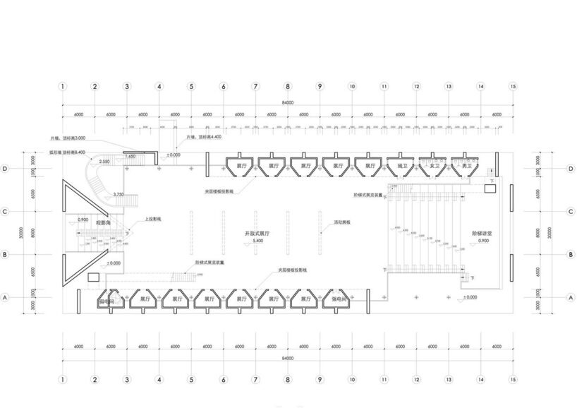
설계팀은 이 박물관을 닫힌 갤러리와 넓게 트인 전시 홀이 교차하는 공간의 연속체로 조직했습니다. 1층 출입구를 지나면 영화와 다큐멘터리의 역사에 할애된 닫힌 전시 홀이 관람객을 맞이합니다. 이 갤러리는 귀중한 기록물과 기획 전시를 온전히 보존하기 위해 빛과 온도를 세심하게 통제합니다. 관람객은 이 묵직한 기단부에서 출발해 경사로와 계단을 따라 위층으로 서서히 걸음을 옮깁니다.
닫힌 갤러리를 벗어나 개방형 홀로 들어서는 순간, 공간은 매우 통쾌하고 극적으로 변모합니다. 2층 전체는 자연풍과 햇빛이 자유롭게 드나드는 거대한 공공 테라스 역할을 합니다. 가느다란 기둥들이 지붕을 묵묵히 떠받치는 가운데, 시야는 캠퍼스와 산맥을 향해 막힘없이 뻗어 나갑니다. 특히 콘크리트 벽에 뚫린 거대한 원형 개구부는 주변의 아름다운 풍경을 마치 한 폭의 그림처럼 차경하여 액자에 담아냅니다. 관람객은 이 높은 전이 공간을 거닐며 계곡의 바람을 느끼고 자연과 대화하듯 박물관을 경험하게 됩니다.
콘크리트와 벽돌이 빚어낸 앙상블
콘크리트는 이 영화 박물관의 디자인 언어를 관통하는 가장 중요한 뼈대입니다. 탕화 아키텍츠는 시공 과정의 미세한 흔적조차 감추지 않고 온전히 노출시켰습니다. 거푸집을 떼어낸 자국과 미묘하게 달라지는 표면의 질감은 타설과 조립 과정을 있는 그대로 보여줍니다. 구조를 굳이 숨기지 않겠다는 설계자의 단호한 의지가 돋보이는 대목입니다.
차갑고 육중한 콘크리트 구조체 사이로 어두운 벽돌 볼륨들이 내부 가장자리를 따라 단정하게 자리 잡고 있습니다. 이 벽돌 공간들은 소규모 전시실과 이동 동선을 품어주는 동시에, 자칫 단조로울 수 있는 넓은 홀에 깊이감과 리듬감을 더해줍니다. 묵직한 콘크리트 프레임과 섬세하게 쌓아 올린 벽돌의 앙상블은 이 건물이 육중한 무게감과 탁 트인 개방성 사이에서 완벽한 균형을 잡도록 도와줍니다.
프로젝트 개요
이름: 시창 젠촨 영화 박물관 복합단지 - 다큐멘터리 영화 박물관
건축: 탕화 아키텍츠 (Tanghua Architects)
위치: 중국 량산 이족 자치주
면적: 4,167 제곱미터
완공: 2025년
사진: MMCM 스튜디오 (MMCM Studio)
수석 건축가: 유 원보
디자인 팀: 자오 율리, 리우 화웨이
기술 팀: 왕 톈하오
공동 디자이너: CCDI 인터내셔널 디자인 컨설턴트
클라이언트: 쓰촨 허진 고속철도 신도시화 투자
Write by Gemini & Jean Browwn
















tanghua architects shapes monumental museum in china dedicated to documentary films
a complex for the history and craft of cinema
The Xichang Jianchuan Film Museum by Shenzhen based Tanghua Architects stands in Xichang, China as a prominent presence within the city’s new high-speed rail district. With its monumental concrete structure and folding rooftop, the project is part of the expansive Jianchuan museum campus and contributes to a cultural complex dedicated to the history and craft of cinema.
Set within a large master plan that will ultimately include seventeen institutions devoted to different aspects of film history, the museum occupies a central position along the campus’s main route. It’s within this larger context that the team developed a building dedicated to documentary cinema, a discipline defined by its close relationship with lived experience and observation.
Tanghua Architects is Guided by Documentary Film
The team at Tanghua Architects approached the design with the premise that documentary filmmaking carries a unique quality of authenticity. Architecture for such a program could express that sensibility through material honesty and spatial openness. The building therefore presents itself with direct structural expression, surfaces of exposed concrete, and a generous relationship with the surrounding climate of Xichang.
Tanghua Architects organizes the Film Museum as a sequence of spaces that shift between enclosed galleries and an expansive open exhibition hall above. The second floor operates as a large shaded platform that allows air and sunlight to pass through the building. Visitors move across this elevated space while remaining connected to the atmosphere of the valley in a way that allows them to experience the museum in dialogue with the environment beyond its walls.
A Roof That Frames the Sky
The most defining element of the Film Museum is its articulated roof structure, which Tanghua Architects shapes as a series of folded concrete planes. The structure projects outward in a repeating rhythm which creates broad eaves that cast long bands of shade across the terraces and galleries below. From a distance, the roof reads as a sculptural silhouette against the sky, while at closer range it reveals a structural grid that extends throughout the interior.
This overhead structure introduces a sense of scale to the Film Museum. Massive beams intersect above the open hall, forming a pattern of square coffers that guide light across the concrete surfaces. As the sun moves through the day, shifting patches of brightness cinematically travel across the floor and walls..
Movement Through the Building
The ground level entrance leads to enclosed exhibition halls dedicated to the history of film and documentary practice. These galleries provide controlled conditions for archival material and curated installations. From this base, visitors ascend through ramps and stairways toward the open platform above.
The transition from enclosed galleries to the open hall is a dramatic shift. Above, the building becomes a large civic terrace supported by slender columns. Views extend outward across the campus and toward the mountains, and circular openings cut into the concrete walls to frame these landscapes.
Material and Structure
Concrete defines the design language of the Film Museum. Tanghua Architects leaves the material exposed so that the subtle traces of construction remain visible. Slight variations in tone and texture reveal the process of casting and assembly, a strategy which reinforces the building’s emphasis on direct expression.
Alongside the concrete structure, dark brick volumes line sections of the interior perimeter. These brick elements introduce depth and rhythm along the open hall while housing smaller rooms and circulation routes. The combination of concrete frame and brick surfaces gives the building a balance between mass and openness.
name: Xichang Jianchuan Film Museum Complex – Documentary Film Museum
architect: Tanghua Architects | @tanghua.architects
location: Liangshan Yi Autonomous Prefecture, China
area: 4167 square meters
completion: 2025
photography: © MMCM Studio | @mmcm.studio
lead architect: Yu Wenbo
design team: Zhao Yuli, Liu Huawei
technical team: Wang Tianhao
co-designer: CCDI International (Shenzhen) Design Consultants
client: Sichuan Hejin High-speed Railway New Urbanization Investment
from designboom


