의미 있는 건축을 제공하는 것은 역사를 패러디하는 것이 아니라, 역사를 분명하게 표현하는 것이다. - 다니엘 리베스킨트 (Daniel Libeskind)

![]() |
![]() |
![]() |
LMA designs Jewish history museum as "dreamscape" of village destroyed in Holocaust
도입: 잊힌 마을을 다시 그리다
핀란드 건축사사무소 LMA가 리투아니아에 완공한 잃어버린 슈테틀 유대인 박물관은 홀로코스트로 파괴된 유대인 마을을 하얀색 박공지붕 군락으로 형상화한 작품입니다. 셰두바 지역에 자리한 이 박물관은 과거 동유럽에 있던 아슈케나지 유대인들의 소규모 집단 거주지, 즉 이디시어 슈테틀에서 이름을 따왔습니다. 이곳은 나치에 의해 무참히 파괴되고 인근 숲에서 664명의 주민이 목숨을 잃은 셰두바 슈테틀을 온전히 기리는 숭고한 추모 공간입니다. 박물관 측은 과거 바르샤바 폴란드 유대인 역사 박물관을 설계했던 LMA의 작업에 깊은 감명을 받아 이번 프로젝트를 맡겼습니다.
외관: 꿈의 풍경으로 재현한 건축
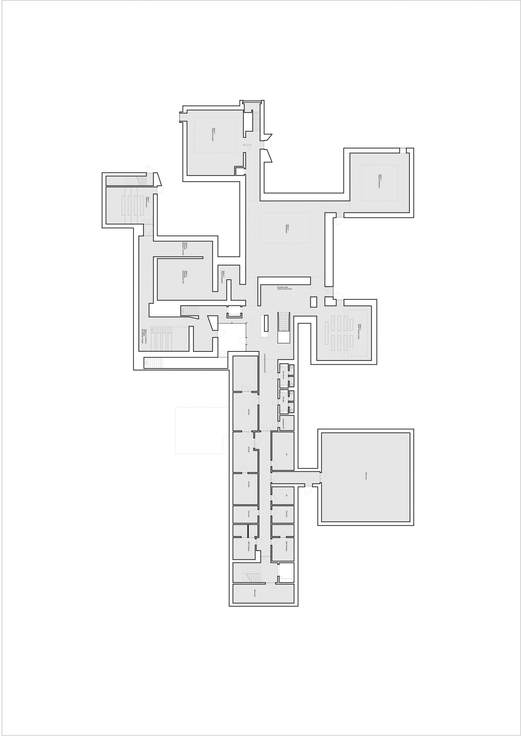
4,900제곱미터 규모의 박물관 내부에는 전시실, 도서관, 다목적 공간, 카페가 차례로 자리합니다. 주변 농가와 비슷한 크기로 지은 하얀 집들은 잊힌 옛 마을을 기억하려는 의도적인 장치입니다. LMA의 공동 창립자 라이너 마흘라마키는 파괴된 마을을 일종의 꿈의 풍경으로 재현하는 것이 설계의 핵심이었다고 말합니다. 박물관이라는 기능을 넘어 홀로코스트 희생자를 추모하는 거대한 공간을 만들고자 했습니다. 넓은 들판 한가운데 자리한 농가들이 나무에 둘러싸여 있듯, 이 건축물 역시 고즈넉한 시골 풍경 속 무성한 공원 품에 조용히 안겨 있습니다.
진입: 빛으로 이끄는 추모의 길
박물관 진입부는 제2차 세계대전 이전 리투아니아에 존재했던 294개 슈테틀의 이름이 빼곡히 새겨진 추모벽과 마주합니다. 나무 격자 사이를 채운 수공예 유리 블록들이 은은한 빛을 머금고 방문객의 발걸음을 이끕니다. 안으로 들어서면 짧은 복도를 통해 각 건물 공간이 유기적으로 이어집니다. 1층 안내 데스크 주변으로는 도서관과 교육 공간을 널찍하게 배치했습니다. 가파른 지붕 경사면과 채광창이 빚어내는 극적인 공간감이 시선을 단번에 사로잡습니다. 가장 규모가 큰 중앙 건물의 위층은 관리 시설로, 아래층은 주요 전시 공간으로 채웠습니다.
전시: 상실의 기억에서 희망의 협곡으로
아래층 전시실은 셰두바를 비롯한 동유럽 슈테틀의 삶과 잊힌 역사를 차분히 조명합니다. 홀로코스트의 비극을 다루는 관람 동선은 좁고 깊은 협곡을 닮은 공간으로 방문객을 안내합니다. 셰두바 슈테틀 희생자들의 이름이 가득 새겨진 차가운 돌벽 앞에서 이 여정은 절정에 달합니다. 전시의 마지막은 희망의 협곡이라 불리는 층고가 높고 웅장한 하얀색 공간입니다. 바닥부터 천장까지 이어진 거대한 통창이 주변의 고요한 자연을 마치 그림 액자처럼 담아내며, 관람객에게 깊은 위로와 긴 여운을 전합니다.
물성: 위로를 건네는 따뜻한 질감
공용 공간은 참나무와 밝은 규암을 넉넉히 사용해 따뜻하고 평온하게 마감했습니다. 기존 추모 기념물들이 흔히 보여주던 과장된 비장함이나 거친 질감과는 의도적으로 거리를 둔, LMA만의 세심한 배려입니다. 외부의 박공지붕 건물들은 비늘처럼 섬세한 질감을 지닌 하얀색 알루미늄 패널로 부드럽게 감쌌습니다. 여기에 창문 셔터와 출입구는 나무로 마감해 주변 농가의 친근한 정서를 자연스럽게 녹여냈습니다. 금속, 나무, 돌이라는 단순한 재료를 썼지만, 외관의 색감은 주변 환경에 따라 다채롭게 변합니다. 밝은 알루미늄 외벽은 흐린 날씨엔 잿빛 농가처럼 차분해 보이고, 멀리서 바라보면 맑은 하늘빛과 자연스럽게 하나가 됩니다.
풍경: 사유와 치유의 자연
박물관을 둥글게 감싸는 외부 조경은 그 자체로 생명력 넘치는 거대한 추모 공원입니다. 자작나무 숲길과 야생화 꽃밭, 고요한 습지와 과수원이 굽이치는 산책로를 따라 끝없이 펼쳐집니다. 산책로 길목 곳곳에 자리한 낙엽송 쉼터는 이곳을 찾는 모든 이들에게 조용한 사유와 치유의 시간을 온전히 내어줍니다.
Write by Gemini & Jean Browwn






























A cluster of white gabled volumes that represent a village demolished during the Holocaust make up The Lost Shtetl Jewish Museum, completed by Finnish architecture studio Lahdelma & Mahlamäki Architects in Lithuania.
Located in Šeduva, the museum is named after a shtetl a Yiddish word for small towns of predominantly Ashkenazi Jews, which once existed in Eastern Europe.
It pays homage to the Šeduva shtetl, which was destroyed by the Nazis during the Holocaust, with 664 of its inhabitants executed in the surrounding forests.
The director of The Lost Shtetl Jewish Museum approached Lahdelma & Mahlamäki Architects (LMA) to design the building following the studio's work on the Museum of the History of Polish Jews in Warsaw, which opened in 2013.
Across 4,900 square metres, the museum hosts exhibition areas, a library, an events space and a cafe, housed within a series of abstract white "houses".
These volumes match the scale of the surrounding farmhouses, aiming to memorialise the former settlement.
"The core concept was to recreate a destroyed village – a shtetl as a kind of dreamscape that would serve not only as a museum but also as a memorial to Holocaust victims," LMA co-founder Rainer Mahlamäki told Dezeen.
"The building is located in the countryside and takes its modest scale from local farmhouses. The museum is surrounded by a new, lush park, just as farmhouses in the middle of fields are surrounded by trees," he added.
The entrance to The Lost Shtetl Jewish Museum sits alongside a memorial wall, where a wooden grid is filled with handblown glass blocks bearing the names of all 294 shtetls that existed in Lithuania before world war two.
Inside, each of the individual volumes is connected by short corridors. The ground floor of the museum contains a library, educational spaces and multipurpose areas organised around a reception, with steep roof pitches and skylights overhead.
Above, administration areas have been inserted into the upper level of the largest central volume, while the main exhibition areas sit on a lower level.
These lower level rooms tell the story of life both in the Šeduva shtetl and other shtetls in Eastern Europe. A narrow, canyon-like space tells the story of the Holocaust, ending in a stone memorial wall carved with the names of victims from the Šeduva shtetl.
The exhibition route culminates in a tall white space named the Canyon of Hope, which frames the surrounding countryside through a full-height glazed opening.
Public spaces are finished with a "warm" and "tranquil" palette of oak and pale quartzite stone. LMA described this as a deliberate departure from "the pathos and roughness of materials characteristic of many monuments".
Externally, the gabled volumes are clad in scale like panels of white, slightly textured aluminium, with window shutters and entrance reveals finished in timber to echo the surrounding farmhouses.
"The materials are simple: metal, wood, and stone," explained Mahlamäki. "The colour scheme of the facade is light but chameleon like: the light aluminium resembles grey farmhouses and, when viewed from a distance, blends into the sky in all weather conditions."
The landscape surrounding The Lost Shtetl Jewish Museum has been turned into a memorial park, which includes a birch alley, flower meadows, wetlands and an orchard, connected by a winding path and dotted with a series of larch shelters.
Other museums in Lithuania recently featured on Dezeen include the Science Island Museum in Kaunas by Australian practice SMAR Architecture Studio, which is topped with a large, tilted aluminium disc, and Studio Libeskind's MO Museum, which is punctured by skylights and stairways.
from dezeen


