
아이들의 상상력을 자극하는 푸른고래는 별명처럼 자유로운 형상과 열린 내부공간 구성으로 어린이들의 독서를 포함한 다양한 문화활동을 지원한다.
건축 스튜디오, OPEN Architecture의 최근작으로 상하이에 위치한 Qingpu Pinghe 국제학교내 문화시설
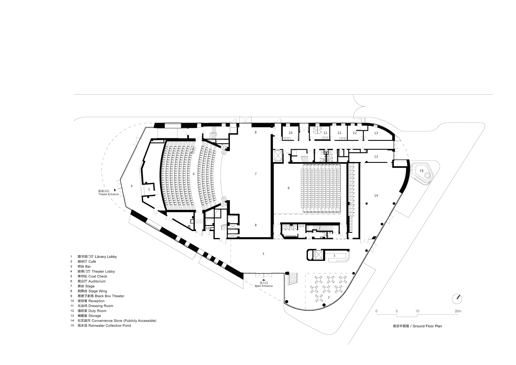
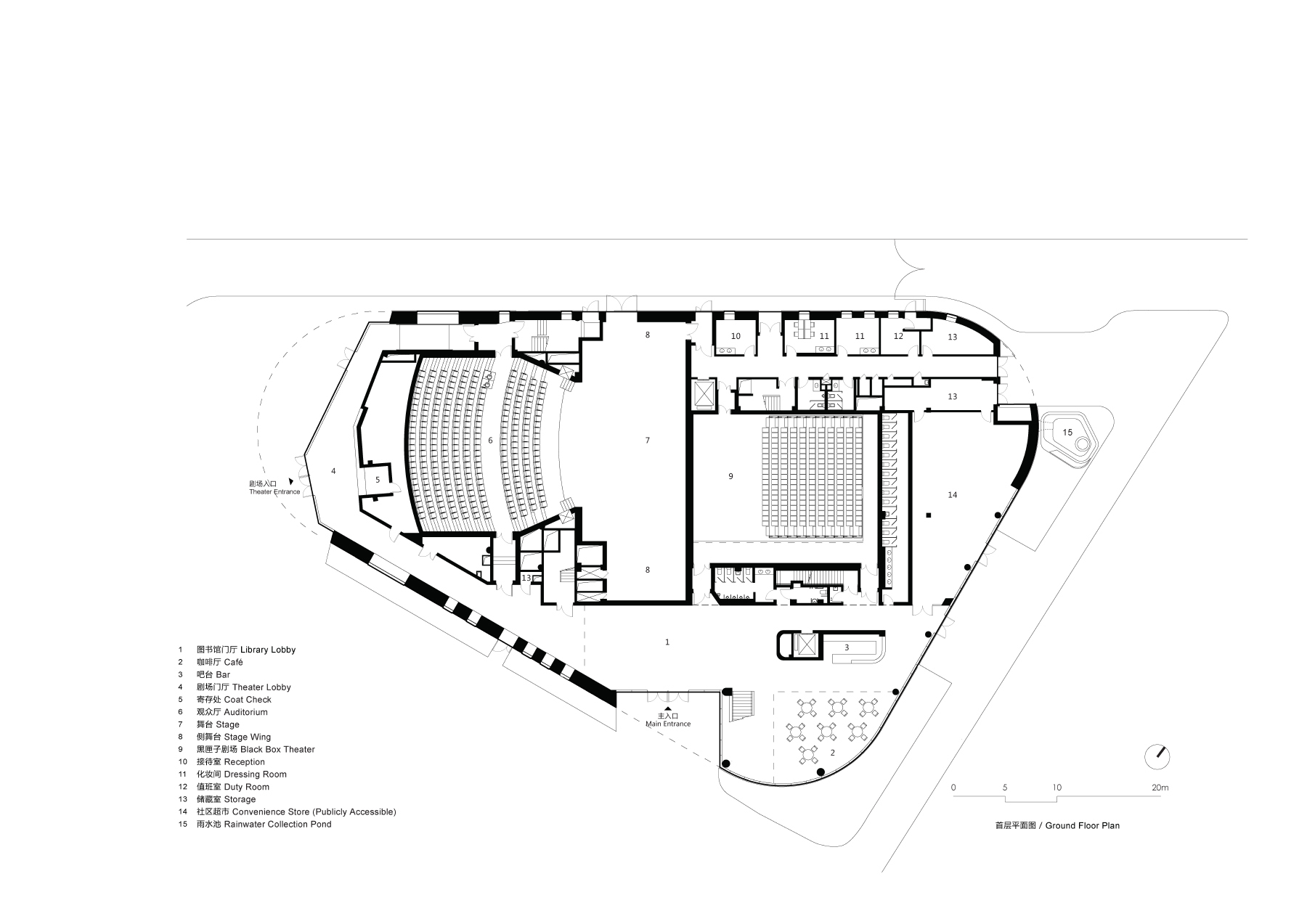
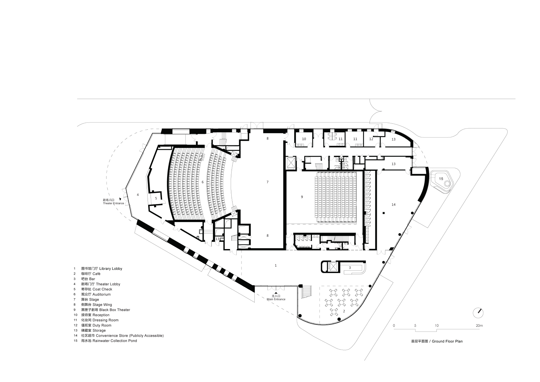
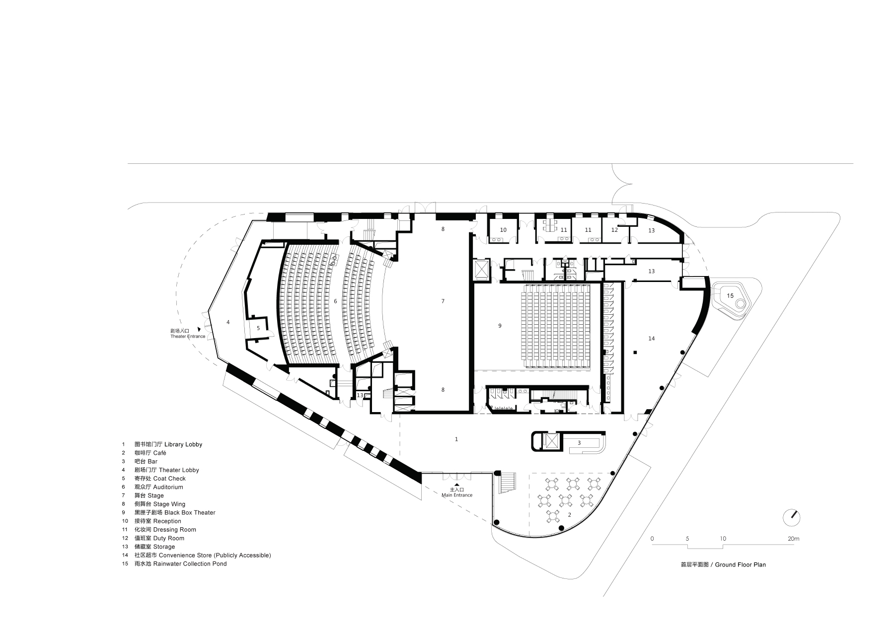
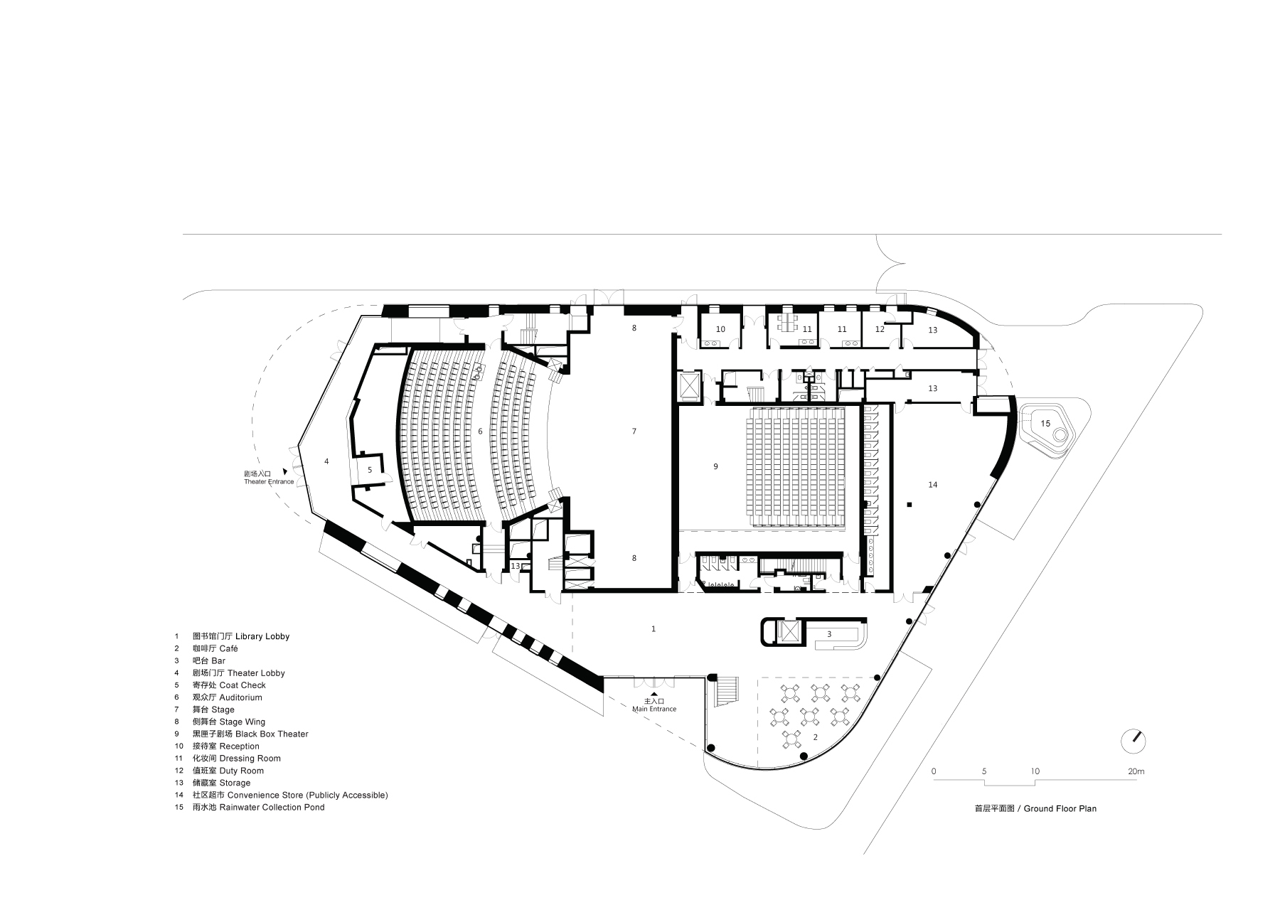
Pinghe Bibliotheater is the core of OPEN’s latest project-School as Village/Shanghai Qingpu Pinghe International School. A library, a theater, and a black box interlock together like a Chinese puzzle to form this characteristic building that some call ‘the blue whale’ while others see it as an ocean liner. The unique form of the building and the free-flowing spaces not only cultivate the students’ interests in reading and performing, but also encourage their imagination to roam freely in the ocean of knowledge.
The Bibliotheater abuts an important corner of this school-village, at a junction near which a major city highway and an ancient canal also meet. The slanted roof with spiky skylights, ship portholes like round windows, and eye-catching blue color leave a strong impression on passersby.
When we were given the extensive and jumbled-together program of a new school for 2000 students aged from 3 to 18 years, the immediate reaction was how dreadful it would be for a kid spending these many years fixed in one building. We decided to break away from the current trend of school-as-megastructure. Instead, the original program was deconstructed and grouped into many smaller and distinctive buildings, forming a village-like campus. The marriage of library and theater came from the architect’s belief that the act of extensive reading and thinking, and the act of expression through performances, should be critical components of education but are often ignored in test-driven educational systems. The distinctive qualities of these two programs and the respective physical needs came to inspire the design of the building.























from designboom
파트너스 활동을 통해 일정액의 수수료를 제공받을 수 있음
'Culture' 카테고리의 다른 글
| *붉은벽돌 스포츠센터 [ Galfetti ] Camp del Ferro Sports Center (0) | 2021.02.13 |
|---|---|
| *버밍엄 티칭 빌딩 [ BDP ] University of Birmingham Teaching and Learning Building (0) | 2021.01.29 |
| *메타볼리즘 스페인 문화재연구소[ Fernando Higueras ] Spanish Cultural Heritage Institute (0) | 2021.01.05 |
| *백색 아치회랑 pablo millán (0) | 2020.12.30 |
| *설경속으로 사라지는 의회센터 [ MAD ] yabuli entrepreneurs' congress center (0) | 2020.12.22 |